■2025年5月リフォーム済 ■7階部分 ■3LDK 担当:上田
パノラマ
物件のポイント
物件の特徴
-
- 都市ガス
- 給湯
- 追焚機能
- 温水洗浄便座
- システムキッチン
- シャンプードレッサー
- 浴室乾燥機
- 大規模(総戸数100戸以上)
- 管理員日勤
- リフォーム
-
●2025年05月/≪新調≫キッチン・浴室・洗面化粧台・トイレ・給湯器
●2025年05月/≪新調≫建具全箇所
●2025年05月/≪張替≫床材全室・クロス全室
- 立地・周辺環境
-
2沿線以上利用可|駅徒歩5分以内
セールスポイント
■総戸数288戸の大規模マンション
■7階部分
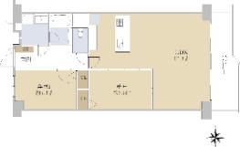
■専有面積:61.60u
■3LDK
■浴室暖房乾燥機
【リフォーム内容】
≪新調≫キッチン・浴室・洗面化粧台
トイレ・給湯器・建具全箇所
≪張替≫床材全室・クロス全室
【交通アクセス】
近鉄難波・奈良線『今里』駅 徒歩5分
大阪メトロ千日前線『新深江』駅 徒歩5分
大阪メトロ千日前線『小路』駅 徒歩8分
【周辺環境】
ファミリーマート新今里4丁目店 約280m
ローソン生野新今里6丁目店 約450m
ライフ新深江店 約500m
大今里南公園 約110m
大阪市片江小学校 約560m
担当からのひとこと
【今里グリーンハイツ】は
大阪市東成区大今里南4丁目に建つ、
総戸数288戸の大規模マンションです。
本物件は『7階部分』『3LDK』で、
最寄り駅まで徒歩5分の立地です。
リフォーム済みですので、
すぐにご内覧可能です。
是非現地にてご内覧ください。
現地見学希望、物件の詳細については
フリーコール:0120−066−562
担当:上田(うえだ)まで
お気軽にお電話下さい!
皆様からのお問い合わせを
心よりお待ちしております。
周辺環境
・ファミリーマート新今里4丁目店 徒歩4分(約280m)
・ローソン生野今里6丁目店 徒歩6分(約450m)
・ライフ新深江店 徒歩7分(約500m)
・大今里南公園 徒歩2分(約110m)
・大阪市立片江小学校 徒歩7分(約560m)
物件詳細
| 物件名 | 今里グリーンハイツ |
|---|---|
| 物件番号 | C5543041 |
| 所在地 |
大阪府大阪市東成区大今里南4丁目 |
| 価格 |
2,480万円
|
| 交通 | 近鉄難波・奈良線「今里」駅徒歩5 分 大阪メトロ千日前線「新深江」駅徒歩5 分 大阪メトロ千日前線「小路」駅徒歩8 分 |
| 間取り | 3LDK |
| 専有面積 | 61.60m2(壁芯) |
| 所在階 構造 |
7階部分/地上12階建て 鉄骨鉄筋コンクリート造 |
| 築年月 | 1979年08月 |
| バルコニー(テラス)面積 | 7.60m2 |
| 採光方向 | 西 |
| 総戸数 | 288 戸 |
| 管理形態 管理方式 管理会社 |
管理会社に全部委託 日勤 互光建物管理 |
| 施工会社 | (株)長谷川工務店 |
| 管理費(月額) | 5,060円 |
| 修繕積立金(月額) | 10,157円 |
| 引渡時期 | 相談 |
| 現況 | 空家 |
| 駐車場 | 空無し |
| 土地権利 | 所有権 |
| 取引態様 | 仲介 |
この情報は2025年11月17日当社物件システムのデータにもとづくものであり、次回更新予定日は2025年12月01日です。
