「25年以内 | 逗子駅の一戸建て」での物件検索一覧です。さらに、ご希望の条件に変更してお探し頂けます。
現在の検索条件
| 検索条件 | 価格 : 下限なし〜上限なし 建物面積 : 下限なし 〜 上限なし 土地面積 : 下限なし 〜 上限なし 間取り : 指定なし 駅徒歩 : 指定なし 築年数 : 25年以内 | |
|---|---|---|
| こだわり条件 | 指定なし |
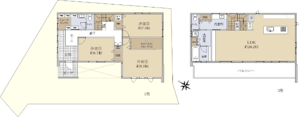
10件中1〜10件を表示
![]()
1週間以内に登録された物件
1週間以内に価格が更新された物件
営業センターのおすすめ物件
リフォームやリノベーション済み
駅徒歩10分以内
築10年以内
南道路(南西・南東含む)に接道
角地
低層住居専用地域に立地
建物面積が100m²以上
新築物件
オープンハウス・予約制内覧会
販売開始まで契約または予約の申し込みは出来ません
最近見た物件
条件で絞り込む
内覧・入居
逗子駅の一戸建て
をお探しの方へ。
住友不動産ステップのホームページ「STEPON」では、マンション、一戸建て、土地などの購入にあたって物件情報のご紹介以外にも、
新着物件をお知らせする「新着物件メール」、気になった物件を一覧化できる「気になるリスト」、登録すれば何度でも同じ条件で検索できる「ワンクリック検索」、
物件を比較できる「比較リスト」のマイページ機能をご利用いただけます。
また、ご希望のマンションが見つからなくても売出物件が出たらお伝えすることも可能ですので弊社にお気軽にご相談ください。

































