事業用徳庵駅の事業用不動産を探す

現在の検索条件

JR片町線(学研都市線)
検索条件 物件種別 : 指定なし 価格 : 4,000万円 〜 5,000万円 専有面積 : 下限なし 〜 上限なし 建物面積 : 下限なし 〜 上限なし 土地面積 : 下限なし 〜 上限なし 駅徒歩 : 指定なし 築年数 : 指定なし 検索条件を変更
こだわり条件 小学校まで徒歩10分以内(800m) こだわり条件を変更

1件中1〜1件を表示

  • 画像を大きく表示
  • リストで表示

表示件数

並び替え

チェックした物件をまとめて

資料請求・お問い合わせ

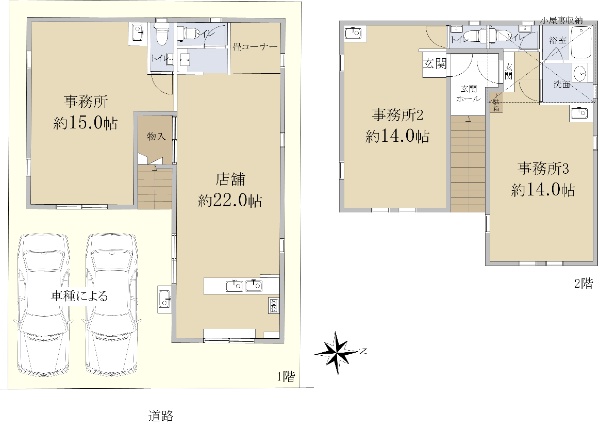
■令和2年建築(木造2階建)事務所×3部屋+店舗1部屋

  • 駅徒歩10分以内
  • 築10年以内
  • 建物面積が100m?以上
フロア画像を拡大する
画像枚数24枚
価格
4,150万円
物件種別
店舗・事務所
所在地
大阪府東大阪市稲田本町2丁目
交通

JR片町線(学研都市線)徳庵」駅徒歩9分

JRおおさか東線高井田中央」駅徒歩21分

大阪メトロ中央線高井田」駅徒歩21分

間取り/建物面積
- / 127.1m²
土地面積
132.23m²
築年月
2020年10月築
構造
木造
  • 気になるリストへ
  • 比較リストへ

資料請求・お問い合わせ

チェックした物件をまとめて

資料請求・お問い合わせ

  • 新着1週間以内に登録された物件
  • 価格更新1週間以内に価格が更新された物件
  • おすすめ物件営業センターのおすすめ物件
  • リフォーム済みリフォームやリノベーション済み
  • 駅徒歩5分以内駅徒歩5分以内
  • 駅徒歩10分以内駅徒歩10分以内
  • 築10年以内築10年以内
  • 南向き(南西・南東含む)バルコニー方向が南向き(南西・南東含む)
  • 角部屋角部屋
  • 大規模マンション総戸数100戸以上のマンション
  • タワーマンション20階建て以上のマンション
  • 南道路(南西・南東含む)南道路(南西・南東含む)に接道
  • 角地角地
  • 低層住居専用地域低層住居専用地域に立地
  • 建物面積100m²以上建物面積が100m²以上
  • 建築条件なし建築条件がない
  • 土地面積100m²以上土地面積が100m²以上
  • 更地(引渡時も含む)更地(引渡時も含む)
  • 新築新築物件
  • 【現地見学】オープンハウス開催オープンハウス・予約制内覧会
  • 【現地見学】オープンランド開催オープンランド・予約制内覧会
  • 予告広告販売開始まで契約または予約の申し込みは出来ません
  • 認定中古適用物件認定中古適用物件