投資用東京23区の投資用不動産を探す

現在の検索条件

検索条件 物件種別 : 指定なし 価格 : 5億円 〜 10億円 専有面積 : 下限なし 〜 上限なし 建物面積 : 下限なし 〜 上限なし 土地面積 : 下限なし 〜 上限なし 駅徒歩 : 指定なし 築年数 : 指定なし 利回り : 指定なし 検索条件を変更
こだわり条件 角地 こだわり条件を変更

8件中1〜8件を表示

  • 画像を大きく表示
  • リストで表示

表示件数

並び替え

チェックした物件をまとめて

資料請求・お問い合わせ

東武伊勢崎線「五反野」駅徒歩10分 総戸数40戸 一棟マンション

  • 駅徒歩10分以内
  • 南道路(南西・南東含む)に接道
  • 角地
  • 建物面積が100m?以上
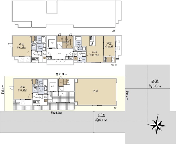
フロア画像を拡大する
画像枚数15枚
価格
7億5,000万円
物件種別
マンション(一棟)
想定利回り
4.99%満室稼働中
所在地
東京都足立区足立4丁目
交通

東武伊勢崎・大師線五反野」駅徒歩10分

東武伊勢崎・大師線梅島」駅徒歩11分

間取り/建物面積
- / 1387.06m²
土地面積
337.61m²
築年月
1992年10月築
構造
SRC造
  • 気になるリストへ
  • 比較リストへ

資料請求・お問い合わせ

RC造6階建、都営三田線「高島平」駅徒歩2分の一棟マンションです。

  • 駅徒歩5分以内
  • 南道路(南西・南東含む)に接道
  • 角地
  • 建物面積が100m?以上
フロア画像を拡大する
画像枚数20枚
価格
7億1,500万円
物件種別
マンション(一棟)
想定利回り
4.3%
所在地
東京都板橋区高島平8丁目
交通

都営三田線高島平」駅徒歩2分

都営三田線新高島平」駅徒歩11分

都営三田線西台」駅徒歩13分

間取り/建物面積
- / 1241.12m²
土地面積
384m²
築年月
1989年06月築
構造
RC造
  • 気になるリストへ
  • 比較リストへ

資料請求・お問い合わせ

中野区大和町 一棟マンション

  • 駅徒歩10分以内
  • 角地
  • 低層住居専用地域に立地
  • 建物面積が100m?以上
フロア画像を拡大する
画像枚数14枚
価格
5億9,800万円
物件種別
マンション(一棟)
想定利回り
4.47%満室稼働中
所在地
東京都中野区大和町2丁目
交通

西武新宿線野方」駅徒歩8分

中央線高円寺」駅徒歩15分

間取り/建物面積
- / 832.59m²
土地面積
571.33m²
築年月
1990年10月築
構造
RC造
  • 気になるリストへ
  • 比較リストへ

資料請求・お問い合わせ

◆半蔵門線「錦糸町」駅徒歩3分◆3路線利用可能◆満室稼働中◆2017年3月築

  • 駅徒歩5分以内
  • 築10年以内
  • 南道路(南西・南東含む)に接道
  • 角地
  • 建物面積が100m?以上
フロア画像を拡大する
画像枚数14枚
価格
5億5,700万円
物件種別
マンション(一棟)
想定利回り
2.9%満室稼働中
所在地
東京都墨田区錦糸3丁目
交通

東京メトロ半蔵門線錦糸町」駅徒歩3分

総武線錦糸町」駅徒歩4分

総武線(快速)錦糸町」駅徒歩4分

間取り/建物面積
- / 398.85m²
土地面積
132.23m²
築年月
2017年03月築
構造
RC造
  • 気になるリストへ
  • 比較リストへ

資料請求・お問い合わせ

■2025年6月築 ■満室想定利回り3.72%

  • 駅徒歩10分以内
  • 築10年以内
  • 角地
  • 建物面積が100m?以上
フロア画像を拡大する
画像枚数10枚
価格
6億8,500万円
物件種別
ビル(一棟)
想定利回り
3.72%
所在地
東京都中野区中野5丁目
交通

中央線中野」駅徒歩10分

間取り/建物面積
- / 358.54m²
土地面積
91.55m²
築年月
2025年06月築
構造
鉄骨造
  • 気になるリストへ
  • 比較リストへ

資料請求・お問い合わせ

◇一棟マンション ◇複数路線利用可能

  • 駅徒歩5分以内
  • 築10年以内
  • 角地
  • 建物面積が100m?以上
フロア画像を拡大する
画像枚数24枚
価格
7億円
物件種別
旅館
想定利回り
2.58%
所在地
東京都江東区森下4丁目
交通

都営新宿線菊川」駅徒歩5分

都営大江戸線森下」駅徒歩10分

東京メトロ半蔵門線清澄白河」駅徒歩8分

間取り/建物面積
- / 357.88m²
土地面積
123.82m²
築年月
2024年08月築
構造
RC造
  • 気になるリストへ
  • 比較リストへ

資料請求・お問い合わせ

◇オーナーチェンジ物件 ◇表面利回り4.53% ◇快適な住環境

  • 駅徒歩10分以内
  • 南道路(南西・南東含む)に接道
  • 角地
  • 低層住居専用地域に立地
  • 建物面積が100m?以上
フロア画像を拡大する
画像枚数14枚
価格
6億9,060万円
物件種別
アパート
想定利回り
4.53%
所在地
東京都杉並区井草2丁目
交通

西武新宿線井荻」駅徒歩7分

西武新宿線下井草」駅徒歩10分

間取り/建物面積
- / 202.68m²
土地面積
922.94m²
築年月
2002年04月築
構造
軽量鉄骨
  • 気になるリストへ
  • 比較リストへ

資料請求・お問い合わせ

◆所有権付き平置駐車場あり◆広尾に佇むヴィンテージマンション

  • 駅徒歩10分以内
  • 南向き(南西・南東含む)
  • 角部屋
  • 大規模マンション
フロア画像を拡大する
画像枚数7枚
価格
5億円
物件種別
マンション(区分)
想定利回り
1.27%
所在地
東京都渋谷区広尾4丁目
交通

東京メトロ日比谷線広尾」駅徒歩6分

間取り/専有面積
4LDK / 125.82
所在階(向き)
11階部分(南)/地上12階建て
築年月
1984年06月築
構造
SRC造
  • 気になるリストへ
  • 比較リストへ

資料請求・お問い合わせ

チェックした物件をまとめて

資料請求・お問い合わせ

  • 新着1週間以内に登録された物件
  • 価格更新1週間以内に価格が更新された物件
  • おすすめ物件営業センターのおすすめ物件
  • リフォーム済みリフォームやリノベーション済み
  • 駅徒歩5分以内駅徒歩5分以内
  • 駅徒歩10分以内駅徒歩10分以内
  • 築10年以内築10年以内
  • 南向き(南西・南東含む)バルコニー方向が南向き(南西・南東含む)
  • 角部屋角部屋
  • 大規模マンション総戸数100戸以上のマンション
  • タワーマンション20階建て以上のマンション
  • 南道路(南西・南東含む)南道路(南西・南東含む)に接道
  • 角地角地
  • 低層住居専用地域低層住居専用地域に立地
  • 建物面積100m²以上建物面積が100m²以上
  • 建築条件なし建築条件がない
  • 土地面積100m²以上土地面積が100m²以上
  • 更地(引渡時も含む)更地(引渡時も含む)
  • 新築新築物件
  • 【現地見学】オープンハウス開催オープンハウス・予約制内覧会
  • 【現地見学】オープンランド開催オープンランド・予約制内覧会
  • 予告広告販売開始まで契約または予約の申し込みは出来ません
  • 満室稼働中満室稼働中の物件
  • 認定中古適用物件認定中古適用物件