事業用池子の事業用不動産を探す

現在の検索条件

  • 検索条件を保存
  • 登録した検索条件
逗子市
検索条件 物件種別 : 指定なし 価格 : 下限なし 〜 上限なし 専有面積 : 下限なし 〜 上限なし 建物面積 : 下限なし 〜 上限なし 土地面積 : 下限なし 〜 上限なし 駅徒歩 : 指定なし 築年数 : 指定なし 検索条件を変更
こだわり条件 指定なし こだわり条件を変更

1件中1〜1件を表示

  • 画像を大きく表示
  • リストで表示

表示件数

並び替え

チェックした物件をまとめて

資料請求・お問い合わせ

■京浜急行線「神武寺駅」徒歩5分の一棟ビル

  • 駅徒歩5分以内
  • 建物面積が100m?以上
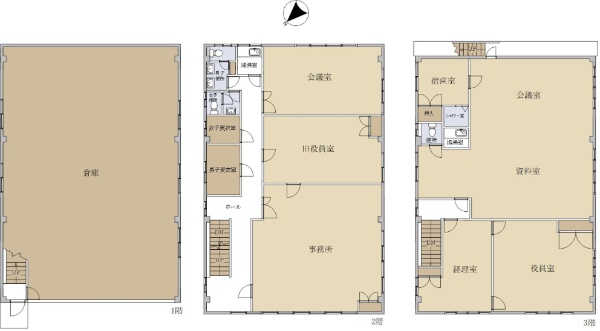
フロア画像を拡大する
画像枚数18枚
価格
7,950万円
物件種別
事務所
所在地
神奈川県逗子市池子2丁目
交通

京急逗子線神武寺」駅徒歩5分

間取り/建物面積
- / 433.86m²
土地面積
247.96m²
築年月
1983年04月築
構造
鉄骨造
  • 気になるリストへ
  • 比較リストへ

資料請求・お問い合わせ

チェックした物件をまとめて

資料請求・お問い合わせ

新着物件をメールでお知らせします

検索条件を登録すれば、その条件に合う新着物件をパソコン・携帯メール宛にお知らせします。
まずは、右の「検索条件登録」ボタンから、現在の検索条件を登録してください。

検索条件登録

  • 新着1週間以内に登録された物件
  • 価格更新1週間以内に価格が更新された物件
  • おすすめ物件営業センターのおすすめ物件
  • リフォーム済みリフォームやリノベーション済み
  • 駅徒歩5分以内駅徒歩5分以内
  • 駅徒歩10分以内駅徒歩10分以内
  • 築10年以内築10年以内
  • 南向き(南西・南東含む)バルコニー方向が南向き(南西・南東含む)
  • 角部屋角部屋
  • 大規模マンション総戸数100戸以上のマンション
  • タワーマンション20階建て以上のマンション
  • 南道路(南西・南東含む)南道路(南西・南東含む)に接道
  • 角地角地
  • 低層住居専用地域低層住居専用地域に立地
  • 建物面積100m²以上建物面積が100m²以上
  • 建築条件なし建築条件がない
  • 土地面積100m²以上土地面積が100m²以上
  • 更地(引渡時も含む)更地(引渡時も含む)
  • 新築新築物件
  • 【現地見学】オープンハウス開催オープンハウス・予約制内覧会
  • 【現地見学】オープンランド開催オープンランド・予約制内覧会
  • 予告広告販売開始まで契約または予約の申し込みは出来ません
  • 認定中古適用物件認定中古適用物件