| 検索条件 | 物件種別 : 指定なし 価格 : 下限なし 〜 上限なし 専有面積 : 下限なし 〜 上限なし 建物面積 : 下限なし 〜 上限なし 土地面積 : 下限なし 〜 上限なし 駅徒歩 : 指定なし 築年数 : 指定なし 利回り : 指定なし | |
|---|---|---|
| こだわり条件 | 新着物件(価格変更を含む) |
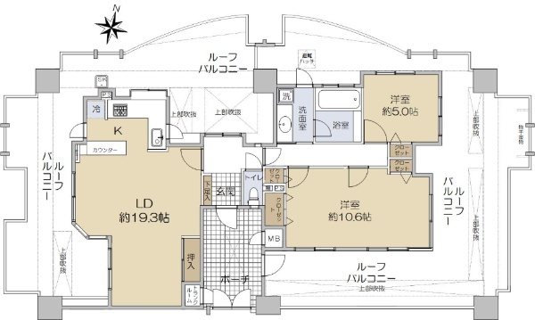
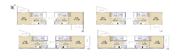
11件中1〜11件を表示
1週間以内に登録された物件
1週間以内に価格が更新された物件
営業センターのおすすめ物件
リフォームやリノベーション済み
駅徒歩5分以内
駅徒歩10分以内
築10年以内
バルコニー方向が南向き(南西・南東含む)
角部屋
総戸数100戸以上のマンション
20階建て以上のマンション
南道路(南西・南東含む)に接道
角地
低層住居専用地域に立地
建物面積が100m²以上
建築条件がない
土地面積が100m²以上
更地(引渡時も含む)
新築物件
オープンハウス・予約制内覧会
オープンランド・予約制内覧会
販売開始まで契約または予約の申し込みは出来ません
満室稼働中の物件
認定中古適用物件
























