投資用長沼駅の投資用不動産を探す

現在の検索条件

  • 検索条件を保存
  • 登録した検索条件
京王線
検索条件 物件種別 : マンション(一棟)、ビル(一棟)、アパート(一棟)、マンション(区分)、店舗・事務所、投資用戸建、工場・倉庫、社宅・寮、ホテル・旅館、リゾート・別荘、その他建物 価格 : 下限なし 〜 上限なし 専有面積 : 下限なし 〜 上限なし 建物面積 : 下限なし 〜 上限なし 土地面積 : 下限なし 〜 上限なし 駅徒歩 : 指定なし 築年数 : 指定なし 利回り : 指定なし 検索条件を変更
こだわり条件 指定なし こだわり条件を変更

2件中1〜2件を表示

  • 画像を大きく表示
  • リストで表示

表示件数

並び替え

チェックした物件をまとめて

資料請求・お問い合わせ

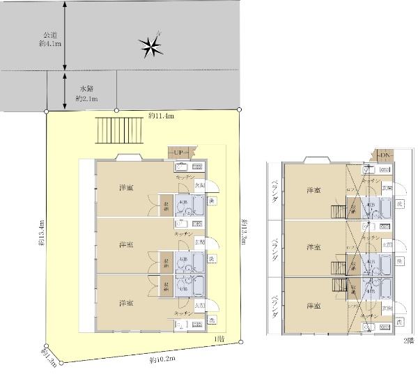
◆京王線長沼駅徒歩9分◆オーナーチェンジ物件(満室想定利回り7.51%)

  • 駅徒歩10分以内
  • 低層住居専用地域に立地
  • 建物面積が100m?以上
フロア画像を拡大する
画像枚数14枚
価格
3,320万円
物件種別
アパート
想定利回り
7.51%満室稼働中
所在地
東京都八王子市長沼町
交通

京王線長沼」駅徒歩9分

間取り/建物面積
- / 120.96m²
土地面積
154.29m²
築年月
1988年03月築
構造
木造
  • 気になるリストへ
  • 比較リストへ

資料請求・お問い合わせ

☆彡土地面積:389u(117.67坪) 閑静な住宅地に位置する

  • 低層住居専用地域に立地
フロア画像を拡大する
画像枚数7枚
価格
3,480万円
物件種別
事務所
想定利回り
1.72%
所在地
東京都八王子市北野町
交通

京王線長沼」駅徒歩16分

間取り/建物面積
- / 68.58m²
土地面積
387.26m²
築年月
築年月不詳
構造
木造
  • 気になるリストへ
  • 比較リストへ

資料請求・お問い合わせ

チェックした物件をまとめて

資料請求・お問い合わせ

新着物件をメールでお知らせします

検索条件を登録すれば、その条件に合う新着物件をパソコン・携帯メール宛にお知らせします。
まずは、右の「検索条件登録」ボタンから、現在の検索条件を登録してください。

検索条件登録

  • 新着1週間以内に登録された物件
  • 価格更新1週間以内に価格が更新された物件
  • おすすめ物件営業センターのおすすめ物件
  • リフォーム済みリフォームやリノベーション済み
  • 駅徒歩5分以内駅徒歩5分以内
  • 駅徒歩10分以内駅徒歩10分以内
  • 築10年以内築10年以内
  • 南向き(南西・南東含む)バルコニー方向が南向き(南西・南東含む)
  • 角部屋角部屋
  • 大規模マンション総戸数100戸以上のマンション
  • タワーマンション20階建て以上のマンション
  • 南道路(南西・南東含む)南道路(南西・南東含む)に接道
  • 角地角地
  • 低層住居専用地域低層住居専用地域に立地
  • 建物面積100m²以上建物面積が100m²以上
  • 建築条件なし建築条件がない
  • 土地面積100m²以上土地面積が100m²以上
  • 更地(引渡時も含む)更地(引渡時も含む)
  • 新築新築物件
  • 【現地見学】オープンハウス開催オープンハウス・予約制内覧会
  • 【現地見学】オープンランド開催オープンランド・予約制内覧会
  • 予告広告販売開始まで契約または予約の申し込みは出来ません
  • 満室稼働中満室稼働中の物件
  • 認定中古適用物件認定中古適用物件