投資用瀬谷駅の投資用不動産を探す

現在の検索条件

  • 検索条件を保存
  • 登録した検索条件
相鉄本線
検索条件 物件種別 : 指定なし 価格 : 下限なし 〜 上限なし 専有面積 : 下限なし 〜 上限なし 建物面積 : 下限なし 〜 上限なし 土地面積 : 下限なし 〜 上限なし 駅徒歩 : 指定なし 築年数 : 指定なし 利回り : 指定なし 検索条件を変更
こだわり条件 指定なし こだわり条件を変更

2件中1〜2件を表示

  • 画像を大きく表示
  • リストで表示

表示件数

並び替え

チェックした物件をまとめて

資料請求・お問い合わせ

◆相鉄本線『瀬谷』駅徒歩5分!満室想定利回り5.52%!◆

  • 駅徒歩5分以内
  • 建物面積が100m?以上
フロア画像を拡大する
画像枚数30枚
価格
7,380万円
物件種別
ビル(一棟)
想定利回り
5.52%
所在地
神奈川県横浜市瀬谷区瀬谷4丁目
交通

相鉄本線瀬谷」駅徒歩5分

相鉄本線三ツ境」駅徒歩24分

小田急江ノ島線大和」駅徒歩29分

間取り/建物面積
- / 234.63m²
土地面積
100.74m²
築年月
1996年11月築
構造
鉄骨造
  • 気になるリストへ
  • 比較リストへ

資料請求・お問い合わせ

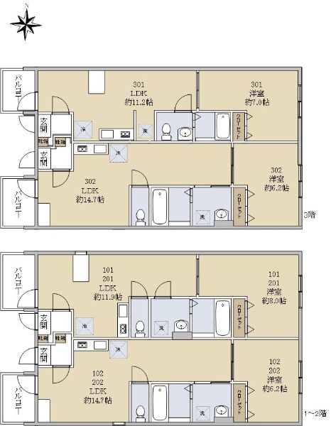
新築アパート/想定利回り6.17%/相鉄「瀬谷」駅徒歩9分/全戸35u以上

  • 駅徒歩10分以内
  • 建物面積が100m?以上
フロア画像を拡大する
画像枚数20枚
価格
1億4,981万円
物件種別
アパート
想定利回り
6.17%
所在地
神奈川県横浜市瀬谷区橋戸1丁目
交通

相鉄本線瀬谷」駅徒歩9分

間取り/建物面積
- / 260.71m²
土地面積
159.79m²
築年月
2026年03月築新築
構造
木造
  • 気になるリストへ
  • 比較リストへ

資料請求・お問い合わせ

チェックした物件をまとめて

資料請求・お問い合わせ

新着物件をメールでお知らせします

検索条件を登録すれば、その条件に合う新着物件をパソコン・携帯メール宛にお知らせします。
まずは、右の「検索条件登録」ボタンから、現在の検索条件を登録してください。

検索条件登録

  • 新着1週間以内に登録された物件
  • 価格更新1週間以内に価格が更新された物件
  • おすすめ物件営業センターのおすすめ物件
  • リフォーム済みリフォームやリノベーション済み
  • 駅徒歩5分以内駅徒歩5分以内
  • 駅徒歩10分以内駅徒歩10分以内
  • 築10年以内築10年以内
  • 南向き(南西・南東含む)バルコニー方向が南向き(南西・南東含む)
  • 角部屋角部屋
  • 大規模マンション総戸数100戸以上のマンション
  • タワーマンション20階建て以上のマンション
  • 南道路(南西・南東含む)南道路(南西・南東含む)に接道
  • 角地角地
  • 低層住居専用地域低層住居専用地域に立地
  • 建物面積100m²以上建物面積が100m²以上
  • 建築条件なし建築条件がない
  • 土地面積100m²以上土地面積が100m²以上
  • 更地(引渡時も含む)更地(引渡時も含む)
  • 新築新築物件
  • 【現地見学】オープンハウス開催オープンハウス・予約制内覧会
  • 【現地見学】オープンランド開催オープンランド・予約制内覧会
  • 予告広告販売開始まで契約または予約の申し込みは出来ません
  • 満室稼働中満室稼働中の物件
  • 認定中古適用物件認定中古適用物件

条件で絞り込む

価格

  • 1000万円以下
  • 1000万円以下
  • 1000万円以下
  • 1000万円以下
  • 1000万円以下
  • 1000万円以下
  • 1000万円以下
  • 1000万円以下
  • 7000万円〜8000万円
  • 1000万円以下
  • 1000万円以下
  • 1億円〜1億5千万円
  • 1000万円以下
  • 1000万円以下
  • 1000万円以下
  • 1000万円以下
  • 1000万円以下

マンション(区分)用:間取り

マンション(区分)用:所在階