投資用東京23区の投資用不動産を探す

現在の検索条件

検索条件 物件種別 : アパート(一棟) 価格 : 下限なし 〜 上限なし 専有面積 : 下限なし 〜 上限なし 建物面積 : 下限なし 〜 上限なし 土地面積 : 下限なし 〜 上限なし 駅徒歩 : 指定なし 築年数 : 指定なし 利回り : 指定なし 検索条件を変更
こだわり条件 指定なし こだわり条件を変更

122件中61〜90件を表示

  • 画像を大きく表示
  • リストで表示

表示件数

並び替え

チェックした物件をまとめて

資料請求・お問い合わせ

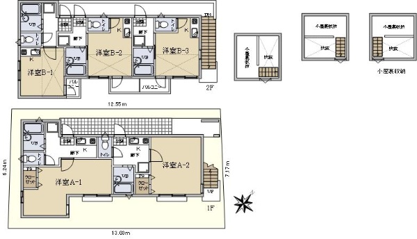
満室想定利回り5.54% 満室稼働中 「六町」駅まで徒歩9分

  • 駅徒歩10分以内
  • 南道路(南西・南東含む)に接道
  • 角地
  • 建物面積が100m?以上
フロア画像を拡大する
画像枚数11枚
価格
5,780万円
物件種別
アパート
想定利回り
5.54%満室稼働中
所在地
東京都足立区保塚町
交通

つくばエクスプレス六町」駅徒歩9分

間取り/建物面積
1K / 156.51m²
土地面積
103.45m²
築年月
1989年11月築
構造
木造
  • 気になるリストへ
  • 比較リストへ

資料請求・お問い合わせ

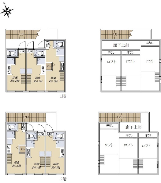
◆「千駄木」駅 徒歩5分 借地権付一棟アパートのオーナーチェンジ物件

  • 駅徒歩5分以内
  • 南道路(南西・南東含む)に接道
  • 角地
  • 建物面積が100m?以上
フロア画像を拡大する
画像枚数21枚
価格
7,000万円
物件種別
アパート
想定利回り
7.21%
所在地
東京都台東区谷中2丁目
交通

東京メトロ千代田線千駄木」駅徒歩5分

山手線日暮里」駅徒歩13分

東京メトロ千代田線根津」駅徒歩9分

間取り/建物面積
- / 178.8m²
土地面積
158.15m²
築年月
1956年01月築
構造
木造
  • 気になるリストへ
  • 比較リストへ

資料請求・お問い合わせ

東急多摩川線「武蔵新田」駅「下丸子」駅 各徒歩10分/アパート

  • 駅徒歩10分以内
  • 南道路(南西・南東含む)に接道
  • 建物面積が100m?以上
フロア画像を拡大する
画像枚数15枚
価格
9,800万円
物件種別
アパート
想定利回り
9.88%満室稼働中
所在地
東京都大田区下丸子2丁目
交通

東急多摩川線下丸子」駅徒歩10分

東急多摩川線武蔵新田」駅徒歩10分

間取り/建物面積
- / 375.98m²
土地面積
363.64m²
築年月
1963年11月築
構造
木造
  • 気になるリストへ
  • 比較リストへ

資料請求・お問い合わせ

満室稼働中!! JR京浜東北線「蒲田」駅まで徒歩8分!

  • 駅徒歩10分以内
  • 角地
  • 建物面積が100m?以上
画像枚数10枚
価格
1億4,800万円
物件種別
アパート
想定利回り
6.19%満室稼働中
所在地
東京都大田区西蒲田6丁目
交通

京浜東北・根岸線蒲田」駅徒歩8分

間取り/建物面積
1K / 249.67m²
土地面積
136.23m²
築年月
1994年08月築
構造
鉄骨造
  • 気になるリストへ
  • 比較リストへ

資料請求・お問い合わせ

◆特区民泊(収益アパート)

  • 築10年以内
  • 建物面積が100m?以上
フロア画像を拡大する
画像枚数20枚
価格
3億5,200万円
物件種別
アパート
想定利回り
3.43%満室稼働中
所在地
東京都大田区西六郷3丁目
交通

京急本線雑色」駅徒歩12分

京急本線六郷土手」駅徒歩13分

間取り/建物面積
- / 345.49m²
土地面積
246.45m²
築年月
2018年03月築
構造
鉄骨造
  • 気になるリストへ
  • 比較リストへ

資料請求・お問い合わせ

◆2017年3月築の木造一棟アパート◆

  • 築10年以内
  • 南道路(南西・南東含む)に接道
  • 建物面積が100m?以上
フロア画像を拡大する
画像枚数10枚
価格
1億500万円
物件種別
アパート
想定利回り
4.94%満室稼働中
所在地
東京都大田区西糀谷2丁目
交通

京急空港線糀谷」駅徒歩11分

間取り/建物面積
- / 160.94m²
土地面積
99.72m²
築年月
2017年03月築
構造
木造
  • 気になるリストへ
  • 比較リストへ

資料請求・お問い合わせ

■想定表面利回り:5.02%  ■2008年9月築の木造アパート

  • 駅徒歩10分以内
  • 南道路(南西・南東含む)に接道
  • 角地
  • 建物面積が100m?以上
フロア画像を拡大する
画像枚数16枚
価格
2億3,000万円
物件種別
アパート
想定利回り
5.02%
所在地
東京都大田区大森東1丁目
交通

京急本線平和島」駅徒歩8分

京急本線大森町」駅徒歩10分

間取り/建物面積
- / 324.6m²
土地面積
300.04m²
築年月
2008年09月築
構造
木造
  • 気になるリストへ
  • 比較リストへ

資料請求・お問い合わせ

◆ 満室稼働中利回り6.55% ◆ 大田区大森東5丁目一棟アパート

  • 駅徒歩10分以内
  • 築10年以内
  • 建物面積が100m?以上
画像枚数11枚
価格
1億2,400万円
物件種別
アパート
想定利回り
6.55%満室稼働中
所在地
東京都大田区大森東5丁目
交通

東京モノレール羽田昭和島」駅徒歩9分

京急本線大森町」駅徒歩17分

間取り/建物面積
1K / 201.88m²
土地面積
181.63m²
築年月
2018年06月築
構造
木造
  • 気になるリストへ
  • 比較リストへ

資料請求・お問い合わせ

◇閑静な住宅街に佇む1棟アパート◇オーナーチェンジ◇表面利回り5.16%

  • 築10年以内
  • 南道路(南西・南東含む)に接道
  • 低層住居専用地域に立地
  • 建物面積が100m?以上
フロア画像を拡大する
画像枚数15枚
価格
1億3,500万円
物件種別
アパート
想定利回り
5.16%満室稼働中
所在地
東京都大田区中央5丁目
交通

都営浅草線西馬込」駅徒歩11分

間取り/建物面積
1K / 151.3m²
土地面積
151.96m²
築年月
2018年06月築
構造
木造
  • 気になるリストへ
  • 比較リストへ

資料請求・お問い合わせ

2階建一棟アパート!【1K×8戸】新耐震基準アパート

  • 南道路(南西・南東含む)に接道
  • 建物面積が100m?以上
フロア画像を拡大する
画像枚数14枚
価格
1億2,800万円
物件種別
アパート
想定利回り
3.51%満室稼働中
所在地
東京都大田区中央7丁目
交通

東急池上線池上」駅徒歩16分

間取り/建物面積
- / 148.44m²
土地面積
140.51m²
築年月
1988年06月築
構造
軽量鉄骨
  • 気になるリストへ
  • 比較リストへ

資料請求・お問い合わせ

◆オーナーチェンジ物件◆表面利回り13.43%◆

  • 南道路(南西・南東含む)に接道
  • 低層住居専用地域に立地
  • 建物面積が100m?以上
画像枚数16枚
価格
7,500万円
物件種別
アパート
想定利回り
13.43%
所在地
東京都大田区東雪谷5丁目
交通

東急池上線石川台」駅徒歩17分

都営浅草線西馬込」駅徒歩17分

間取り/建物面積
- / 262.26m²
土地面積
389.71m²
築年月
1973年08月築
構造
木造
  • 気になるリストへ
  • 比較リストへ

資料請求・お問い合わせ

新江古田駅徒歩5分 満室賃貸中

  • 駅徒歩5分以内
  • 低層住居専用地域に立地
フロア画像を拡大する
画像枚数15枚
価格
7,000万円
物件種別
アパート
想定利回り
5.94%満室稼働中
所在地
東京都中野区江原町2丁目
交通

都営大江戸線新江古田」駅徒歩5分

西武池袋・豊島線江古田」駅徒歩13分

間取り/建物面積
- / 99.62m²
土地面積
90.32m²
築年月
1991年03月築
構造
木造
  • 気になるリストへ
  • 比較リストへ

資料請求・お問い合わせ

◆複数路線利用可能なオーナーチェンジ物件

  • 南道路(南西・南東含む)に接道
  • 角地
  • 低層住居専用地域に立地
フロア画像を拡大する
画像枚数14枚
価格
9,500万円
物件種別
アパート
想定利回り
5.39%
所在地
東京都中野区上高田1丁目
交通

西武新宿線新井薬師前」駅徒歩11分

都営大江戸線東中野」駅徒歩13分

中央線中野」駅徒歩15分

間取り/建物面積
- / 95.72m²
土地面積
82.42m²
築年月
2004年12月築
構造
木造
  • 気になるリストへ
  • 比較リストへ

資料請求・お問い合わせ

◎西武新宿線「新井薬師前」駅徒歩10分 ◎一棟アパート/想定利回り9.13%

  • 駅徒歩10分以内
  • 低層住居専用地域に立地
  • 建物面積が100m?以上
フロア画像を拡大する
画像枚数24枚
価格
1億1,480万円
物件種別
アパート
想定利回り
9.53%
所在地
東京都中野区上高田5丁目
交通

西武新宿線新井薬師前」駅徒歩10分

都営大江戸線落合南長崎」駅徒歩13分

西武新宿線中井」駅徒歩17分

間取り/建物面積
- / 329.92m²
土地面積
223.29m²
築年月
1967年09月築
構造
木造
  • 気になるリストへ
  • 比較リストへ

資料請求・お問い合わせ

■平成28年11月築 ■オーナーチェンジ一棟アパート ■利回り5.23%

  • 駅徒歩10分以内
  • 築10年以内
  • 南道路(南西・南東含む)に接道
フロア画像を拡大する
画像枚数10枚
価格
9,560万円
物件種別
アパート
想定利回り
5.23%満室稼働中
所在地
東京都中野区新井1丁目
交通

中央線中野」駅徒歩9分

東京メトロ東西線中野」駅徒歩10分

西武新宿線新井薬師前」駅徒歩13分

間取り/建物面積
- / 65.14m²
土地面積
73.26m²
築年月
2016年11月築
構造
木造
  • 気になるリストへ
  • 比較リストへ

資料請求・お問い合わせ

「中野」駅、「新中野」駅が利用可能な立地にある収益アパート

  • 駅徒歩10分以内
  • 南道路(南西・南東含む)に接道
  • 建物面積が100m?以上
画像枚数8枚
価格
3億4,320万円
物件種別
アパート
想定利回り
4.04%
所在地
東京都中野区中央4丁目
交通

中央線中野」駅徒歩8分

東京メトロ丸ノ内線新中野」駅徒歩7分

間取り/建物面積
- / 227.54m²
土地面積
201.25m²
築年月
2004年01月築
構造
木造
  • 気になるリストへ
  • 比較リストへ

資料請求・お問い合わせ

【満室想定利回り4.72%】一棟アパート 全9戸

  • 駅徒歩5分以内
  • 築10年以内
  • 建物面積が100m?以上
画像枚数13枚
価格
2億5,000万円
物件種別
アパート
想定利回り
4.72%
所在地
東京都中野区中央4丁目
交通

東京メトロ丸ノ内線新中野」駅徒歩5分

中央線中野」駅徒歩11分

間取り/建物面積
- / 247.94m²
土地面積
164.96m²
築年月
2023年03月築
構造
木造
  • 気になるリストへ
  • 比較リストへ

資料請求・お問い合わせ

◇2023年1月築 ◇西武新宿線「鷺ノ宮」駅 徒歩11分 ◇サブリース物件です。

  • 築10年以内
  • 低層住居専用地域に立地
  • 建物面積が100m?以上
フロア画像を拡大する
画像枚数15枚
価格
1億4,000万円
物件種別
アパート
想定利回り
4.39%満室稼働中
所在地
東京都中野区白鷺2丁目
交通

西武新宿線鷺ノ宮」駅徒歩11分

間取り/建物面積
- / 120.86m²
土地面積
123.66m²
築年月
2023年01月築
構造
木造
  • 気になるリストへ
  • 比較リストへ

資料請求・お問い合わせ

◇オーナーチェンジ物件 ◇2017年8月築 ◇現況利回り5.03% 

  • 駅徒歩10分以内
  • 築10年以内
  • 南道路(南西・南東含む)に接道
フロア画像を拡大する
画像枚数18枚
価格
1億4,000万円
物件種別
アパート
想定利回り
5.03%満室稼働中
所在地
東京都中野区本町6丁目
交通

東京メトロ丸ノ内線新中野」駅徒歩7分

東京メトロ丸ノ内線東高円寺」駅徒歩9分

間取り/建物面積
- / 93.24m²
土地面積
109.18m²
築年月
2017年08月築
構造
木造
  • 気になるリストへ
  • 比較リストへ

資料請求・お問い合わせ

新築アパート/想定利回り5.50%/京浜急行電鉄空港線利用/各戸20u以上

  • 駅徒歩10分以内
  • 築10年以内
  • 建物面積が100m?以上
フロア画像を拡大する
画像枚数15枚
価格
1億2,284万円
物件種別
アパート
想定利回り
5.5%
所在地
東京都大田区羽田3丁目
交通

京急空港線穴守稲荷」駅徒歩8分

京急空港線天空橋」駅徒歩12分

東京モノレール羽田天空橋」駅徒歩14分

間取り/建物面積
- / 144.4m²
土地面積
123.86m²
築年月
2025年09月築新築
構造
木造
  • 気になるリストへ
  • 比較リストへ

資料請求・お問い合わせ

満室想定利回り約8.68%

  • 駅徒歩10分以内
フロア画像を拡大する
画像枚数11枚
価格
1,700万円
物件種別
アパート
想定利回り
8.68%
所在地
東京都板橋区宮本町
交通

都営三田線板橋本町」駅徒歩6分

間取り/建物面積
- / 39.66m²
土地面積
27.25m²
築年月
1968年07月築
構造
木造
  • 気になるリストへ
  • 比較リストへ

資料請求・お問い合わせ

◇満室稼働中◇有楽町線小竹向原駅 徒歩7分◇

  • 駅徒歩10分以内
フロア画像を拡大する
画像枚数20枚
価格
2,900万円
物件種別
アパート
想定利回り
8.44%満室稼働中
所在地
東京都板橋区向原2丁目
交通

東京メトロ有楽町線小竹向原」駅徒歩7分

西武池袋・豊島線江古田」駅徒歩13分

間取り/建物面積
- / 70.83m²
土地面積
52.44m²
築年月
1965年07月築
構造
木造
  • 気になるリストへ
  • 比較リストへ

資料請求・お問い合わせ

☆都営三田線『高島平』駅 徒歩10分 ☆鉄骨鉄筋コンクリート造

  • 駅徒歩10分以内
  • 建物面積が100m?以上
フロア画像を拡大する
画像枚数15枚
価格
5,900万円
物件種別
アパート
想定利回り
5.13%満室稼働中
所在地
東京都板橋区高島平9丁目
交通

都営三田線高島平」駅徒歩10分

都営三田線西台」駅徒歩13分

間取り/建物面積
- / 118.49m²
土地面積
54.54m²
築年月
1987年07月築
構造
SRC造
  • 気になるリストへ
  • 比較リストへ

資料請求・お問い合わせ

建物延床面146.37u 鉄骨造3階建 北西角地

  • 角地
  • 建物面積が100m?以上
フロア画像を拡大する
画像枚数16枚
価格
6,250万円
物件種別
アパート
想定利回り
6.66%満室稼働中
所在地
東京都板橋区若木1丁目
交通

東武東上線上板橋」駅徒歩12分

間取り/建物面積
- / 146.37m²
土地面積
81.36m²
築年月
1985年02月築
構造
鉄骨造
  • 気になるリストへ
  • 比較リストへ

資料請求・お問い合わせ

満室賃貸中 全8室の収益アパート 

  • 建物面積が100m?以上
フロア画像を拡大する
画像枚数13枚
価格
6,340万円
物件種別
アパート
想定利回り
7.02%満室稼働中
所在地
東京都板橋区若木2丁目
交通

東武東上線上板橋」駅徒歩11分

東武東上線東武練馬」駅徒歩13分

都営三田線志村三丁目」駅徒歩25分

間取り/建物面積
1K / 100.08m²
土地面積
99.15m²
築年月
1989年11月築
構造
木造
  • 気になるリストへ
  • 比較リストへ

資料請求・お問い合わせ

◆徒歩圏内に買い物施設が充実 ◆複数路線利用可能

  • 駅徒歩10分以内
  • 南道路(南西・南東含む)に接道
  • 建物面積が100m?以上
フロア画像を拡大する
画像枚数21枚
価格
9,400万円
物件種別
アパート
想定利回り
8.13%満室稼働中
所在地
東京都板橋区成増5丁目
交通

東武東上線成増」駅徒歩10分

東京メトロ副都心線地下鉄成増」駅徒歩11分

都営三田線西高島平」駅徒歩23分

間取り/建物面積
- / 272.32m²
土地面積
238.71m²
築年月
1970年03月築
構造
木造
  • 気になるリストへ
  • 比較リストへ

資料請求・お問い合わせ

・都営三田線「本蓮沼」駅徒歩6分 ・2021年1月建築

  • 駅徒歩10分以内
  • 築10年以内
  • 建物面積が100m?以上
フロア画像を拡大する
画像枚数15枚
価格
1億2,000万円
物件種別
アパート
想定利回り
4.5%満室稼働中
所在地
東京都板橋区泉町
交通

都営三田線本蓮沼」駅徒歩6分

都営三田線板橋本町」駅徒歩9分

間取り/建物面積
- / 134.4m²
土地面積
128.24m²
築年月
2021年01月築
構造
木造
  • 気になるリストへ
  • 比較リストへ

資料請求・お問い合わせ

〜オーナーチェンジ物件・満室稼働中〜 3路線利用可・周辺に大学複数あり

  • 駅徒歩10分以内
  • 築10年以内
フロア画像を拡大する
画像枚数12枚
価格
7,980万円
物件種別
アパート
想定利回り
4.63%満室稼働中
所在地
東京都板橋区仲宿
交通

都営三田線板橋区役所前」駅徒歩10分

都営三田線板橋本町」駅徒歩11分

埼京線十条」駅徒歩18分

間取り/建物面積
- / 90.06m²
土地面積
91.21m²
築年月
2016年04月築
構造
木造
  • 気になるリストへ
  • 比較リストへ

資料請求・お問い合わせ

■3駅6路線利用可能 ■満室稼働中

  • 駅徒歩5分以内
  • 南道路(南西・南東含む)に接道
  • 建物面積が100m?以上
フロア画像を拡大する
画像枚数10枚
価格
8,500万円
物件種別
アパート
想定利回り
7.35%満室稼働中
所在地
東京都品川区大崎4丁目
交通

東急池上線大崎広小路」駅徒歩5分

山手線大崎」駅徒歩9分

山手線五反田」駅徒歩10分

間取り/建物面積
- / 140.4m²
土地面積
93.31m²
築年月
1996年04月築
構造
SRC造
  • 気になるリストへ
  • 比較リストへ

資料請求・お問い合わせ

■山手線「西日暮里」駅徒歩7分 ■東京メトロ千代田線「千駄木」駅徒歩5分

  • 駅徒歩5分以内
  • 南道路(南西・南東含む)に接道
  • 建物面積が100m?以上
フロア画像を拡大する
画像枚数14枚
価格
8,800万円
物件種別
アパート
想定利回り
6.81%
所在地
東京都文京区千駄木3丁目
交通

山手線西日暮里」駅徒歩7分

山手線日暮里」駅徒歩9分

東京メトロ千代田線千駄木」駅徒歩5分

間取り/建物面積
- / 113.1m²
土地面積
43.92m²
築年月
1964年04月築
構造
RC造
  • 気になるリストへ
  • 比較リストへ

資料請求・お問い合わせ

チェックした物件をまとめて

資料請求・お問い合わせ

  • 新着1週間以内に登録された物件
  • 価格更新1週間以内に価格が更新された物件
  • おすすめ物件営業センターのおすすめ物件
  • リフォーム済みリフォームやリノベーション済み
  • 駅徒歩5分以内駅徒歩5分以内
  • 駅徒歩10分以内駅徒歩10分以内
  • 築10年以内築10年以内
  • 南向き(南西・南東含む)バルコニー方向が南向き(南西・南東含む)
  • 角部屋角部屋
  • 大規模マンション総戸数100戸以上のマンション
  • タワーマンション20階建て以上のマンション
  • 南道路(南西・南東含む)南道路(南西・南東含む)に接道
  • 角地角地
  • 低層住居専用地域低層住居専用地域に立地
  • 建物面積100m²以上建物面積が100m²以上
  • 建築条件なし建築条件がない
  • 土地面積100m²以上土地面積が100m²以上
  • 更地(引渡時も含む)更地(引渡時も含む)
  • 新築新築物件
  • 【現地見学】オープンハウス開催オープンハウス・予約制内覧会
  • 【現地見学】オープンランド開催オープンランド・予約制内覧会
  • 予告広告販売開始まで契約または予約の申し込みは出来ません
  • 満室稼働中満室稼働中の物件
  • 認定中古適用物件認定中古適用物件

最近見た物件