投資用世田谷区の投資用不動産を探す

現在の検索条件

  • 検索条件を保存
  • 登録した検索条件
検索条件 物件種別 : 指定なし 価格 : 下限なし 〜 上限なし 専有面積 : 下限なし 〜 上限なし 建物面積 : 下限なし 〜 上限なし 土地面積 : 下限なし 〜 上限なし 駅徒歩 : 指定なし 築年数 : 指定なし 利回り : 指定なし 検索条件を変更
こだわり条件 指定なし こだわり条件を変更

76件中1〜30件を表示

  • 画像を大きく表示
  • リストで表示

表示件数

並び替え

チェックした物件をまとめて

資料請求・お問い合わせ

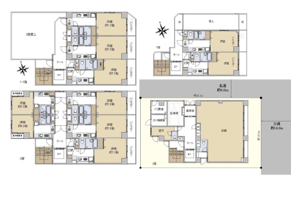
【オーナーチェンジ物件】○経堂すずらん通り商店街沿い ○利回り:4.26%

  • 駅徒歩5分以内
  • 建物面積が100m?以上
フロア画像を拡大する
画像枚数22枚
価格
1億3,000万円
物件種別
店舗
想定利回り
4.26%
所在地
東京都世田谷区経堂2丁目
交通

小田急小田原線経堂」駅徒歩2分

間取り/建物面積
- / 126.05m²
土地面積
82.66m²
築年月
1988年07月築
構造
木造
  • 気になるリストへ
  • 比較リストへ

資料請求・お問い合わせ

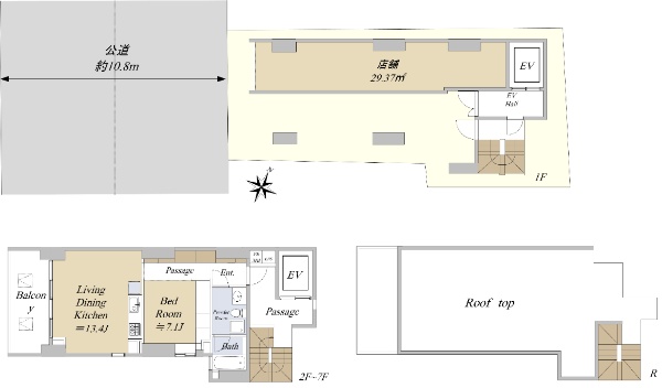
オーナーチェンジ戸建 利回り4.55%

  • 南道路(南西・南東含む)に接道
  • 低層住居専用地域に立地
フロア画像を拡大する
画像枚数20枚
価格
4,480万円
物件種別
一戸建て
想定利回り
4.55%
所在地
東京都世田谷区駒沢4丁目
交通

東急田園都市線駒沢大学」駅徒歩11分

間取り/建物面積
2SDK / 75.73m²
土地面積
58.76m²
築年月
1992年09月築
構造
木造
  • 気になるリストへ
  • 比較リストへ

資料請求・お問い合わせ

2017年10月築 利便性良好 南西側接道

  • 駅徒歩10分以内
  • 築10年以内
  • 南道路(南西・南東含む)に接道
フロア画像を拡大する
画像枚数16枚
価格
1億6,800万円
物件種別
アパート
想定利回り
4.14%満室稼働中
所在地
東京都世田谷区三軒茶屋1丁目
交通

東急田園都市線三軒茶屋」駅徒歩6分

東急世田谷線三軒茶屋」駅徒歩9分

間取り/建物面積
- / 88.64m²
土地面積
96.18m²
築年月
2017年10月築
構造
木造
  • 気になるリストへ
  • 比較リストへ

資料請求・お問い合わせ

◆3駅2路線利用可◆2024年築◆一棟アパート◆

  • 駅徒歩5分以内
  • 築10年以内
  • 低層住居専用地域に立地
フロア画像を拡大する
画像枚数15枚
価格
1億4,900万円
物件種別
アパート
想定利回り
4.39%満室稼働中
所在地
東京都世田谷区赤堤3丁目
交通

東急世田谷線松原」駅徒歩5分

小田急小田原線豪徳寺」駅徒歩10分

小田急小田原線経堂」駅徒歩13分

間取り/建物面積
- / 99.12m²
土地面積
129.19m²
築年月
2024年06月築
構造
木造
  • 気になるリストへ
  • 比較リストへ

資料請求・お問い合わせ

平成12年1月築 賃貸併用住宅 居住部分3LDK

  • 建物面積が100m?以上
フロア画像を拡大する
画像枚数15枚
価格
2億800万円
物件種別
一戸建て
想定利回り
3.62%
所在地
東京都世田谷区中町5丁目
交通

東急大井町線上野毛」駅徒歩14分

東急田園都市線用賀」駅徒歩14分

東急田園都市線二子玉川」駅徒歩25分

間取り/建物面積
3LDK / 201.62m²
土地面積
182.18m²
築年月
2000年01月築
構造
鉄骨造
  • 気になるリストへ
  • 比較リストへ

資料請求・お問い合わせ

2路線利用可能 南東向き角住戸 8階建て8階部分最上階 通風・採光良好

  • 駅徒歩5分以内
  • 南向き(南西・南東含む)
  • 角部屋
フロア画像を拡大する
画像枚数14枚
価格
4,780万円
物件種別
マンション(区分)
想定利回り
3.76%
所在地
東京都世田谷区世田谷1丁目
交通

東急世田谷線上町」駅徒歩2分

東急田園都市線桜新町」駅徒歩18分

間取り/専有面積
3LDK / 69.3
所在階(向き)
8階部分(南)/地上8階建て
築年月
1984年09月築
構造
RC造
  • 気になるリストへ
  • 比較リストへ

資料請求・お問い合わせ

オーナーチェンジ物件/1991年6月築/利回り4.17%

  • 駅徒歩10分以内
フロア画像を拡大する
画像枚数11枚
価格
2,100万円
物件種別
マンション(区分)
想定利回り
4.17%
所在地
東京都世田谷区羽根木2丁目
交通

京王線代田橋」駅徒歩7分

京王井の頭線新代田」駅徒歩9分

京王井の頭線下北沢」駅徒歩15分

間取り/専有面積
ワンルーム / 26.01
所在階(向き)
2階部分(北)/地上5階建て
築年月
1991年06月築
構造
RC造
  • 気になるリストへ
  • 比較リストへ

資料請求・お問い合わせ

○オーナーチェンジ物件 ○事務所 ○現状賃貸中 

  • 駅徒歩5分以内
フロア画像を拡大する
画像枚数10枚
価格
1億9,300万円
物件種別
事務所(区分)
想定利回り
6.36%
所在地
東京都世田谷区玉川台2丁目
交通

東急田園都市線用賀」駅徒歩5分

間取り/専有面積
- / 338.51
所在階(向き)
1階部分(-)/地上7階建て
築年月
1981年08月築
構造
RC造
  • 気になるリストへ
  • 比較リストへ

資料請求・お問い合わせ

世田谷区野毛に佇むアイディーコート二子玉川

  • 南向き(南西・南東含む)
フロア画像を拡大する
画像枚数30枚
価格
6,250万円
物件種別
マンション(区分)
想定利回り
3.82%
所在地
東京都世田谷区野毛3丁目
交通

東急大井町線上野毛」駅徒歩15分

東急田園都市線二子玉川」駅徒歩18分

東急大井町線等々力」駅徒歩19分

間取り/専有面積
3LDK / 65.88
所在階(向き)
3階部分(南西)/地上5階建て
築年月
2011年06月築
構造
RC造
  • 気になるリストへ
  • 比較リストへ

資料請求・お問い合わせ

◆オーナーチェンジ物件 表面利回り2.79%◆

  • 駅徒歩10分以内
  • 築10年以内
  • 低層住居専用地域に立地
  • 建物面積が100m?以上
フロア画像を拡大する
画像枚数30枚
価格
3億7,600万円
物件種別
一戸建て
想定利回り
2.79%
所在地
東京都世田谷区上馬1丁目
交通

東急世田谷線三軒茶屋」駅徒歩9分

東急田園都市線駒沢大学」駅徒歩14分

間取り/建物面積
3LDK / 177.74m²
土地面積
121.18m²
築年月
2021年09月築
構造
木造
  • 気になるリストへ
  • 比較リストへ

資料請求・お問い合わせ

小田急線「成城学園前」駅徒歩2分/3LDK/81.93u

  • 駅徒歩5分以内
  • 南向き(南西・南東含む)
フロア画像を拡大する
画像枚数29枚
価格
6,980万円
物件種別
マンション(区分)
想定利回り
4.29%
所在地
東京都世田谷区成城2丁目
交通

小田急小田原線成城学園前」駅徒歩2分

間取り/専有面積
3LDK / 81.93
所在階(向き)
3階部分(南西)/地上6階建て
築年月
1976年01月築
構造
RC造
  • 気になるリストへ
  • 比較リストへ

資料請求・お問い合わせ

☆オーナーチェンジ物件 ☆2駅3線利用可能

  • 南道路(南西・南東含む)に接道
  • 低層住居専用地域に立地
  • 建物面積が100m?以上
フロア画像を拡大する
画像枚数28枚
価格
1億5,000万円
物件種別
アパート
想定利回り
1.4%
所在地
東京都世田谷区大蔵6丁目
交通

小田急小田原線成城学園前」駅バス22分徒歩4分

東急田園都市線二子玉川」駅バス23分徒歩3分

東急大井町線二子玉川」駅バス23分徒歩3分

間取り/建物面積
- / 254.11m²
土地面積
300.19m²
築年月
1964年02月築
構造
木造
  • 気になるリストへ
  • 比較リストへ

資料請求・お問い合わせ

◇7階建5階部分角部屋2面バルコニーにつき陽当たり・眺望良好 

  • リフォーム済み
  • 駅徒歩10分以内
  • 南向き(南西・南東含む)
  • 角部屋
フロア画像を拡大する
画像枚数28枚
価格
3,000万円
物件種別
マンション(区分)
想定利回り
5.16%
所在地
東京都世田谷区奥沢1丁目
交通

東急目黒線奥沢」駅徒歩10分

東急池上線石川台」駅徒歩13分

東急東横線田園調布」駅徒歩14分

間取り/専有面積
ワンルーム / 39.43
所在階(向き)
5階部分(南西)/地上7階建て
築年月
1968年12月築
構造
RC造
  • 気になるリストへ
  • 比較リストへ

資料請求・お問い合わせ

住居・店舗・事務所等の用途が選択可能

  • 駅徒歩5分以内
  • 建物面積が100m?以上
フロア画像を拡大する
画像枚数28枚
価格
2億5,800万円
物件種別
ビル(一棟)
想定利回り
5.58%
所在地
東京都世田谷区奥沢7丁目
交通

東急東横線自由が丘」駅徒歩5分

東急大井町線自由が丘」駅徒歩5分

間取り/建物面積
- / 171.23m²
土地面積
93.04m²
築年月
1981年09月築
構造
RC造
  • 気になるリストへ
  • 比較リストへ

資料請求・お問い合わせ

◆東急田園都市線『三軒茶屋』駅 徒歩9分 ◇表面利回り:4.36%

  • リフォーム済み
  • 駅徒歩5分以内
  • 南向き(南西・南東含む)
フロア画像を拡大する
画像枚数27枚
価格
4,400万円
物件種別
マンション(区分)
想定利回り
4.36%
所在地
東京都世田谷区若林1丁目
交通

東急田園都市線三軒茶屋」駅徒歩9分

東急世田谷線西太子堂」駅徒歩5分

間取り/専有面積
1LDK / 47.06
所在階(向き)
3階部分(南西)/地上9階建て
築年月
1981年01月築
構造
SRC造
  • 気になるリストへ
  • 比較リストへ

資料請求・お問い合わせ

☆築年月:2023年8月 ☆京王線「代田橋」駅 徒歩3分の立地!

  • 駅徒歩5分以内
  • 築10年以内
  • 建物面積が100m?以上
フロア画像を拡大する
画像枚数26枚
価格
2億3,800万円
物件種別
マンション(一棟)
想定利回り
4.26%満室稼働中
所在地
東京都世田谷区大原2丁目
交通

京王線代田橋」駅徒歩3分

京王線笹塚」駅徒歩12分

京王井の頭線明大前」駅徒歩14分

間取り/建物面積
- / 170.66m²
土地面積
56.34m²
築年月
2023年08月築
構造
RC造
  • 気になるリストへ
  • 比較リストへ

資料請求・お問い合わせ

世田谷区池尻三丁目の投資用アパート オーナーチェンジ物件

  • 駅徒歩10分以内
  • 建物面積が100m?以上
フロア画像を拡大する
画像枚数25枚
価格
1億7,000万円
物件種別
アパート
想定利回り
4.38%
所在地
東京都世田谷区池尻3丁目
交通

東急田園都市線池尻大橋」駅徒歩8分

東急田園都市線三軒茶屋」駅徒歩12分

間取り/建物面積
- / 166.26m²
土地面積
155.61m²
築年月
2001年01月築
構造
軽量鉄骨
  • 気になるリストへ
  • 比較リストへ

資料請求・お問い合わせ

二駅利用可利用可 一棟マンション

  • 駅徒歩10分以内
  • 南道路(南西・南東含む)に接道
  • 低層住居専用地域に立地
  • 建物面積が100m?以上
フロア画像を拡大する
画像枚数24枚
価格
6億9,800万円
物件種別
その他建物(一棟)
想定利回り
3.2%
所在地
東京都世田谷区砧8丁目
交通

小田急小田原線成城学園前」駅徒歩10分

小田急小田原線祖師ヶ谷大蔵」駅徒歩8分

間取り/建物面積
- / 719.72m²
土地面積
640.66m²
築年月
1986年03月築
構造
RC造
  • 気になるリストへ
  • 比較リストへ

資料請求・お問い合わせ

☆オーナーチェンジ物件 ☆小田急線「豪徳寺」駅徒歩5分 ☆南東向き・角部屋

  • 駅徒歩5分以内
  • 南向き(南西・南東含む)
  • 角部屋
フロア画像を拡大する
画像枚数23枚
価格
1,600万円
物件種別
マンション(区分)
想定利回り
5.62%
所在地
東京都世田谷区赤堤2丁目
交通

東急世田谷線山下」駅徒歩5分

小田急小田原線豪徳寺」駅徒歩5分

小田急小田原線梅ヶ丘」駅徒歩8分

間取り/専有面積
1DK / 30.4
所在階(向き)
4階部分(南東)/地上6階建て
築年月
1971年03月築
構造
RC造
  • 気になるリストへ
  • 比較リストへ

資料請求・お問い合わせ

◇6階南向きのため陽当たり・通風良好 ◇オーナーチェンジ物件 

  • リフォーム済み
  • 駅徒歩10分以内
  • 南向き(南西・南東含む)
  • 大規模マンション
フロア画像を拡大する
画像枚数23枚
価格
2,050万円
物件種別
マンション(区分)
想定利回り
6.08%
所在地
東京都世田谷区池尻3丁目
交通

東急田園都市線池尻大橋」駅徒歩8分

東急世田谷線三軒茶屋」駅徒歩10分

東急田園都市線三軒茶屋」駅徒歩10分

間取り/専有面積
ワンルーム / 26.97
所在階(向き)
6階部分(南)/地上13階建て
築年月
1971年06月築
構造
SRC造
  • 気になるリストへ
  • 比較リストへ

資料請求・お問い合わせ

☆小田急線「経堂」駅徒歩5分 ☆2022年7月築 ☆南西側公道約7.7m

  • 駅徒歩5分以内
  • 築10年以内
  • 南道路(南西・南東含む)に接道
  • 建物面積が100m?以上
フロア画像を拡大する
画像枚数22枚
価格
1億8,500万円
物件種別
アパート
想定利回り
4.4%
所在地
東京都世田谷区経堂1丁目
交通

小田急小田原線経堂」駅徒歩5分

間取り/建物面積
- / 182.88m²
土地面積
98.92m²
築年月
2022年07月築
構造
木造
  • 気になるリストへ
  • 比較リストへ

資料請求・お問い合わせ

〜オーナーチェンジ物件〜 三井不動産旧分譲/清水建設施工

  • 駅徒歩10分以内
  • 南向き(南西・南東含む)
フロア画像を拡大する
画像枚数22枚
価格
1億980万円
物件種別
マンション(区分)
想定利回り
2.84%
所在地
東京都世田谷区経堂5丁目
交通

小田急小田原線千歳船橋」駅徒歩6分

小田急小田原線経堂」駅徒歩10分

間取り/専有面積
3SLDK / 107.96
所在階(向き)
4階部分(南)/地上5階建て
築年月
1988年04月築
構造
RC造
  • 気になるリストへ
  • 比較リストへ

資料請求・お問い合わせ

*【現況賃貸中】 三方角部屋につき日照良好 5駅3路線利用可*

  • 駅徒歩10分以内
  • 角部屋
フロア画像を拡大する
画像枚数22枚
価格
3,800万円
物件種別
マンション(区分)
想定利回り
3.94%
所在地
東京都世田谷区世田谷2丁目
交通

東急世田谷線上町」駅徒歩6分

東急世田谷線世田谷」駅徒歩10分

小田急小田原線経堂」駅徒歩17分

間取り/専有面積
2LDK / 51.84
所在階(向き)
3階部分(西)/地上5階建て
築年月
1989年10月築
構造
RC造
  • 気になるリストへ
  • 比較リストへ

資料請求・お問い合わせ

3路線4駅利用可能

  • 駅徒歩10分以内
フロア画像を拡大する
画像枚数21枚
価格
900万円
物件種別
マンション(区分)
想定利回り
6.24%
所在地
東京都世田谷区大原1丁目
交通

京王線代田橋」駅徒歩8分

京王井の頭線新代田」駅徒歩8分

小田急小田原線下北沢」駅徒歩13分

間取り/専有面積
ワンルーム / 15.6
所在階(向き)
4階部分(東)/地上5階建て
築年月
1983年06月築
構造
RC造
  • 気になるリストへ
  • 比較リストへ

資料請求・お問い合わせ

◇◆京王線「千歳烏山」「仙川」駅徒歩17分◆◇ 最上階(5階建5階部分)

  • 南向き(南西・南東含む)
  • 角部屋
  • 大規模マンション
フロア画像を拡大する
画像枚数21枚
価格
2,080万円
物件種別
マンション(区分)
想定利回り
5.42%
所在地
東京都世田谷区給田4丁目
交通

京王線千歳烏山」駅徒歩17分

京王線仙川」駅徒歩17分

間取り/専有面積
3DK / 59.83
所在階(向き)
5階部分(南)/地上5階建て
築年月
1973年04月築
構造
RC造
  • 気になるリストへ
  • 比較リストへ

資料請求・お問い合わせ

最上階8階部分の南西向き住戸!!

  • リフォーム済み
  • 南向き(南西・南東含む)
フロア画像を拡大する
画像枚数21枚
価格
2,880万円
物件種別
マンション(区分)
想定利回り
5.5%
所在地
東京都世田谷区深沢5丁目
交通

東急大井町線等々力」駅徒歩17分

東急大井町線尾山台」駅徒歩17分

間取り/専有面積
2DK / 50.22
所在階(向き)
8階部分(南)/地上8階建て
築年月
1970年08月築
構造
鉄骨造
  • 気になるリストへ
  • 比較リストへ

資料請求・お問い合わせ

〜オーナーチェンジ物件〜 住友不動産旧分譲

  • 南向き(南西・南東含む)
  • 角部屋
フロア画像を拡大する
画像枚数20枚
価格
7,500万円
物件種別
マンション(区分)
想定利回り
3.52%
所在地
東京都世田谷区三宿2丁目
交通

東急田園都市線三軒茶屋」駅徒歩13分

東急世田谷線三軒茶屋」駅徒歩13分

京王井の頭線池ノ上」駅徒歩17分

間取り/専有面積
2LDK / 77.14
所在階(向き)
4階部分(南東)/地上4階建て
築年月
1974年06月築
構造
RC造
  • 気になるリストへ
  • 比較リストへ

資料請求・お問い合わせ

南西・南東の角地 〜オーナーチェンジ物件〜

  • 南道路(南西・南東含む)に接道
  • 角地
  • 低層住居専用地域に立地
フロア画像を拡大する
画像枚数20枚
価格
9,870万円
物件種別
一戸建て
想定利回り
3.04%
所在地
東京都世田谷区桜3丁目
交通

東急田園都市線桜新町」駅徒歩18分

小田急小田原線経堂」駅徒歩20分

東急世田谷線上町」駅徒歩17分

間取り/建物面積
2LDK / 91.6m²
土地面積
91.23m²
築年月
1999年07月築
構造
木造
  • 気になるリストへ
  • 比較リストへ

資料請求・お問い合わせ

【投資用物件】駒沢大学駅徒歩5分、2017年築のシェアハウス

  • 駅徒歩5分以内
  • 築10年以内
  • 低層住居専用地域に立地
  • 建物面積が100m?以上
フロア画像を拡大する
画像枚数20枚
価格
1億5,000万円
物件種別
その他建物(一棟)
想定利回り
6%
所在地
東京都世田谷区上馬3丁目
交通

東急田園都市線駒沢大学」駅徒歩5分

東急田園都市線三軒茶屋」駅徒歩19分

東急東横線学芸大学」駅バス13分徒歩4分

間取り/建物面積
- / 139.94m²
土地面積
139.17m²
築年月
2017年04月築
構造
木造
  • 気になるリストへ
  • 比較リストへ

資料請求・お問い合わせ

視認性良好/環状8号沿い/鉄骨造4階建て/満室稼働中

  • 駅徒歩10分以内
  • 角地
  • 建物面積が100m?以上
フロア画像を拡大する
画像枚数20枚
価格
1億3,000万円
物件種別
ビル(一棟)
想定利回り
5.49%満室稼働中
所在地
東京都世田谷区尾山台2丁目
交通

東急大井町線尾山台」駅徒歩9分

東急大井町線九品仏」駅徒歩11分

間取り/建物面積
- / 161.05m²
土地面積
63.56m²
築年月
1989年04月築
構造
鉄骨造
  • 気になるリストへ
  • 比較リストへ

資料請求・お問い合わせ

チェックした物件をまとめて

資料請求・お問い合わせ

新着物件をメールでお知らせします

検索条件を登録すれば、その条件に合う新着物件をパソコン・携帯メール宛にお知らせします。
まずは、右の「検索条件登録」ボタンから、現在の検索条件を登録してください。

検索条件登録

  • 新着1週間以内に登録された物件
  • 価格更新1週間以内に価格が更新された物件
  • おすすめ物件営業センターのおすすめ物件
  • リフォーム済みリフォームやリノベーション済み
  • 駅徒歩5分以内駅徒歩5分以内
  • 駅徒歩10分以内駅徒歩10分以内
  • 築10年以内築10年以内
  • 南向き(南西・南東含む)バルコニー方向が南向き(南西・南東含む)
  • 角部屋角部屋
  • 大規模マンション総戸数100戸以上のマンション
  • タワーマンション20階建て以上のマンション
  • 南道路(南西・南東含む)南道路(南西・南東含む)に接道
  • 角地角地
  • 低層住居専用地域低層住居専用地域に立地
  • 建物面積100m²以上建物面積が100m²以上
  • 建築条件なし建築条件がない
  • 土地面積100m²以上土地面積が100m²以上
  • 更地(引渡時も含む)更地(引渡時も含む)
  • 新築新築物件
  • 【現地見学】オープンハウス開催オープンハウス・予約制内覧会
  • 【現地見学】オープンランド開催オープンランド・予約制内覧会
  • 予告広告販売開始まで契約または予約の申し込みは出来ません
  • 満室稼働中満室稼働中の物件
  • 認定中古適用物件認定中古適用物件

条件で絞り込む

マンション(区分)用:間取り

マンション(区分)用:所在階