海老名営業センター
  • TEL
    0120-669-500
  • 最寄駅
    • ・小田急電鉄小田原線 海老名駅
    • ・相模鉄道本線 海老名駅

取扱物件一覧(中古一戸建て)

  • マンション
  • 中古一戸建て
  • 新築一戸建て
  • 土地
  • 事業用
  • 投資用

32件中1〜30件を表示

  • 画像を大きく表示
  • リストで表示

表示件数

並び替え

チェックした物件をまとめて

資料請求・お問い合わせ

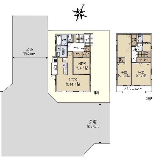
◎カースペース2台 ◎ロフト付き2LDK(3LDKに間取り変更可)

フロア画像を拡大する
画像枚数30枚
価格
2,280万円
所在地
神奈川県海老名市杉久保北5丁目
交通

小田急小田原線海老名」駅バス23分徒歩3分

相鉄本線海老名」駅バス23分徒歩3分

間取り/建物面積
2LDK / 94.39m²
土地面積
157.76m²
築年月
2013年11月築
  • 気になるリストへ
  • 比較リストへ

資料請求・お問い合わせ

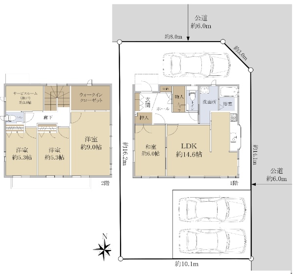
(株)木下工務店施工の注文住宅 5SLDK 相鉄不動産旧分譲地

  • 低層住居専用地域に立地
  • 建物面積が100m?以上
フロア画像を拡大する
画像枚数28枚
価格
4,480万円
所在地
神奈川県海老名市国分寺台1丁目
交通

相模線海老名」駅バス13分徒歩2分

小田急小田原線海老名」駅バス13分徒歩2分

間取り/建物面積
5SLDK / 176.9m²
土地面積
238.49m²
築年月
1997年02月築
  • 気になるリストへ
  • 比較リストへ

資料請求・お問い合わせ

相鉄線「海老名」駅徒歩17分 2LDK+S

  • 築10年以内
  • 南道路(南西・南東含む)に接道
  • 低層住居専用地域に立地
フロア画像を拡大する
画像枚数18枚
価格
5,080万円
所在地
神奈川県海老名市国分北2丁目
交通

相鉄本線海老名」駅徒歩17分

小田急小田原線海老名」駅徒歩21分

相模線海老名」駅徒歩21分

間取り/建物面積
2SLDK / 87.05m²
土地面積
111.95m²
築年月
2022年11月築
  • 気になるリストへ
  • 比較リストへ

資料請求・お問い合わせ

◎小田急線「座間」駅徒歩15分 4LDK

  • 低層住居専用地域に立地
  • 建物面積が100m?以上
フロア画像を拡大する
画像枚数17枚
価格
3,280万円
所在地
神奈川県海老名市上今泉4丁目
交通

小田急小田原線座間」駅徒歩15分

相鉄本線かしわ台」駅徒歩18分

間取り/建物面積
4LDK / 109.61m²
土地面積
158.95m²
築年月
1995年11月築
  • 気になるリストへ
  • 比較リストへ

資料請求・お問い合わせ

◎土地面積:125.65u(約38.00坪) 3LDK

  • 低層住居専用地域に立地
フロア画像を拡大する
画像枚数15枚
価格
2,190万円
所在地
神奈川県厚木市林2丁目
交通

小田急小田原線本厚木」駅バス11分徒歩2分

間取り/建物面積
3LDK / 82.8m²
土地面積
125.65m²
築年月
2003年01月築
  • 気になるリストへ
  • 比較リストへ

資料請求・お問い合わせ

◎一条工務店施工の注文住宅です 2019年2月築 4LDK

  • 築10年以内
  • 建物面積が100m?以上
フロア画像を拡大する
画像枚数14枚
価格
4,780万円
所在地
神奈川県伊勢原市高森
交通

小田急小田原線愛甲石田」駅バス10分徒歩1分

間取り/建物面積
4LDK / 107.2m²
土地面積
150.25m²
築年月
2019年02月築
  • 気になるリストへ
  • 比較リストへ

資料請求・お問い合わせ

オープンハウスミサワホーム施工の注文住宅

  • 角地
  • 低層住居専用地域に立地
  • 建物面積が100m?以上
フロア画像を拡大する
画像枚数30枚
価格
3,280万円
所在地
神奈川県海老名市上今泉1丁目
交通

相鉄本線かしわ台」駅徒歩19分

小田急小田原線座間」駅徒歩21分

間取り/建物面積
5LDK / 136.63m²
土地面積
172.17m²
築年月
1988年03月築
  • 気になるリストへ
  • 比較リストへ

資料請求・お問い合わせ

オープンハウス☆南向き ☆陽当たり良好 ☆閑静な住宅街

  • 南道路(南西・南東含む)に接道
  • 建物面積が100m?以上
フロア画像を拡大する
画像枚数30枚
価格
3,780万円
所在地
神奈川県厚木市戸室2丁目
交通

小田急小田原線本厚木」駅徒歩20分

間取り/建物面積
3LDK / 109.29m²
土地面積
132.35m²
築年月
2004年05月築
  • 気になるリストへ
  • 比較リストへ

資料請求・お問い合わせ

☆小田急線・JR相模線「厚木」駅徒歩9分 3LDK 南西角地

  • リフォーム済み
  • 駅徒歩10分以内
  • 南道路(南西・南東含む)に接道
フロア画像を拡大する
画像枚数30枚
価格
4,580万円
所在地
神奈川県海老名市中新田2丁目
交通

小田急小田原線厚木」駅徒歩9分

相模線厚木」駅徒歩9分

相鉄本線海老名」駅徒歩25分

間取り/建物面積
3LDK / 87.07m²
土地面積
118m²
築年月
2013年01月築
  • 気になるリストへ
  • 比較リストへ

資料請求・お問い合わせ

■南西・南東角地 ■日当たり・風通り良好です。

  • 南道路(南西・南東含む)に接道
  • 角地
フロア画像を拡大する
画像枚数30枚
価格
2,680万円
所在地
神奈川県大和市上草柳6丁目
交通

小田急江ノ島線大和」駅徒歩20分

相鉄本線相模大塚」駅徒歩18分

小田急江ノ島線鶴間」駅徒歩20分

間取り/建物面積
3LDK / 93.98m²
土地面積
95.23m²
築年月
2006年03月築
  • 気になるリストへ
  • 比較リストへ

資料請求・お問い合わせ

オープンハウス☆令和4年築☆ ◎4LDK ◎吹抜けあり

  • 築10年以内
  • 低層住居専用地域に立地
フロア画像を拡大する
画像枚数29枚
価格
4,200万円
所在地
神奈川県海老名市国分寺台2丁目
交通

小田急小田原線海老名」駅バス6分徒歩3分

相鉄本線海老名」駅バス6分徒歩3分

間取り/建物面積
4LDK / 88.08m²
土地面積
111.69m²
築年月
2022年09月築
  • 気になるリストへ
  • 比較リストへ

資料請求・お問い合わせ

オープンハウス☆住友不動産施工の注文住宅☆2024年1月築 

  • 築10年以内
  • 南道路(南西・南東含む)に接道
フロア画像を拡大する
画像枚数29枚
価格
3,900万円
所在地
神奈川県綾瀬市深谷上5丁目
交通

相鉄本線さがみ野」駅バス16分徒歩4分

間取り/建物面積
2SLDK / 99.36m²
土地面積
120.34m²
築年月
2024年01月築
  • 気になるリストへ
  • 比較リストへ

資料請求・お問い合わせ

オープンハウス☆相鉄ホーム施工 2×4工法 閑静な住宅街

  • 南道路(南西・南東含む)に接道
  • 低層住居専用地域に立地
  • 建物面積が100m?以上
フロア画像を拡大する
画像枚数28枚
価格
3,480万円
所在地
神奈川県海老名市望地2丁目
交通

相鉄本線海老名」駅徒歩20分

小田急小田原線海老名」駅徒歩21分

相模線海老名」駅徒歩24分

間取り/建物面積
4LDK / 105.63m²
土地面積
149.61m²
築年月
2008年11月築
  • 気になるリストへ
  • 比較リストへ

資料請求・お問い合わせ

オープンハウス◎4LDK カースペースあり 南西バルコニー

フロア画像を拡大する
画像枚数28枚
価格
2,240万円
所在地
神奈川県海老名市杉久保北2丁目
交通

小田急小田原線海老名」駅バス18分徒歩7分

相鉄本線海老名」駅バス18分徒歩7分

相模線社家」駅徒歩29分

間取り/建物面積
4LDK / 85m²
土地面積
100.06m²
築年月
2004年04月築
  • 気になるリストへ
  • 比較リストへ

資料請求・お問い合わせ

オープンハウス☆ソーラーパネル付き ◎2LDK

  • 築10年以内
フロア画像を拡大する
画像枚数25枚
価格
3,380万円
所在地
神奈川県海老名市杉久保北5丁目
交通

相鉄本線海老名」駅バス23分徒歩6分

小田急小田原線海老名」駅バス23分徒歩6分

間取り/建物面積
2LDK / 80.72m²
土地面積
135.54m²
築年月
2018年01月築
  • 気になるリストへ
  • 比較リストへ

資料請求・お問い合わせ

3LDK 南西向きにつき陽当り良好 庭付き

  • 低層住居専用地域に立地
  • 建物面積が100m?以上
フロア画像を拡大する
画像枚数23枚
価格
2,980万円
所在地
神奈川県綾瀬市寺尾釜田3丁目
交通

相鉄本線海老名」駅バス23分徒歩2分

小田急小田原線海老名」駅バス23分徒歩2分

間取り/建物面積
3LDK / 120.46m²
土地面積
146.26m²
築年月
2003年06月築
  • 気になるリストへ
  • 比較リストへ

資料請求・お問い合わせ

積水ハウス施工の注文住宅 2015年12月築 カースペース2台分あり

  • 南道路(南西・南東含む)に接道
フロア画像を拡大する
画像枚数23枚
価格
4,180万円
所在地
神奈川県海老名市中新田3丁目
交通

小田急小田原線厚木」駅徒歩13分

相鉄本線海老名」駅バス9分徒歩5分

相模線社家」駅徒歩27分

間取り/建物面積
3LDK / 96.07m²
土地面積
110.14m²
築年月
2015年12月築
  • 気になるリストへ
  • 比較リストへ

資料請求・お問い合わせ

オープンハウス◎小田急線「本厚木」駅徒歩15分 4LDK 南向きにつき、日当たり良好です

  • 南道路(南西・南東含む)に接道
  • 建物面積が100m?以上
フロア画像を拡大する
画像枚数22枚
価格
8,480万円
所在地
神奈川県厚木市南町
交通

小田急小田原線本厚木」駅徒歩15分

間取り/建物面積
4LDK / 139.05m²
土地面積
231.49m²
築年月
2005年05月築
  • 気になるリストへ
  • 比較リストへ

資料請求・お問い合わせ

◎富士住建の注文住宅です 2LDK 南西向きにつき陽当り良好

  • 駅徒歩10分以内
  • 南道路(南西・南東含む)に接道
フロア画像を拡大する
画像枚数22枚
価格
3,180万円
所在地
神奈川県伊勢原市石田
交通

小田急小田原線愛甲石田」駅徒歩10分

間取り/建物面積
2LDK / 99.36m²
土地面積
129.68m²
築年月
2009年12月築
  • 気になるリストへ
  • 比較リストへ

資料請求・お問い合わせ

平成24年3月築、セキスイハイムの注文住宅

  • 南道路(南西・南東含む)に接道
  • 角地
  • 建物面積が100m?以上
フロア画像を拡大する
画像枚数19枚
価格
5,280万円
所在地
神奈川県伊勢原市高森3丁目
交通

小田急小田原線愛甲石田」駅徒歩19分

間取り/建物面積
4LDK / 126.92m²
土地面積
187.92m²
築年月
2012年03月築
  • 気になるリストへ
  • 比較リストへ

資料請求・お問い合わせ

◎4LDK 3路線利用可

フロア画像を拡大する
画像枚数17枚
価格
3,490万円
所在地
神奈川県海老名市下今泉1丁目
交通

相模線海老名」駅徒歩14分

小田急小田原線海老名」駅徒歩16分

相鉄本線海老名」駅徒歩16分

間取り/建物面積
4LDK / 88.19m²
土地面積
110.17m²
築年月
2006年11月築
  • 気になるリストへ
  • 比較リストへ

資料請求・お問い合わせ

☆一条工務店施工 4LDK 床暖房 南東向きにつき陽当り良好

  • 築10年以内
  • 南道路(南西・南東含む)に接道
フロア画像を拡大する
画像枚数17枚
価格
4,650万円
所在地
神奈川県綾瀬市深谷中2丁目
交通

小田急江ノ島線長後」駅バス17分徒歩4分

相鉄本線さがみ野」駅バス23分徒歩5分

小田急小田原線海老名」駅バス30分徒歩7分

間取り/建物面積
4LDK / 99.36m²
土地面積
207.4m²
築年月
2018年03月築
  • 気になるリストへ
  • 比較リストへ

資料請求・お問い合わせ

◎141.34uの軽量鉄骨造住宅 ◎LDK25帖以上

  • 南道路(南西・南東含む)に接道
  • 建物面積が100m?以上
フロア画像を拡大する
画像枚数16枚
価格
2,480万円
所在地
神奈川県厚木市長谷
交通

小田急小田原線本厚木」駅バス17分徒歩2分

間取り/建物面積
3LDK / 141.34m²
土地面積
202.98m²
築年月
1993年06月築
  • 気になるリストへ
  • 比較リストへ

資料請求・お問い合わせ

車庫(19.64u・2022年2月設置) 旧区画整理地内 南東道路につき陽当たり良好

  • 南道路(南西・南東含む)に接道
  • 低層住居専用地域に立地
  • 建物面積が100m?以上
フロア画像を拡大する
画像枚数16枚
価格
3,180万円
所在地
神奈川県海老名市上今泉5丁目
交通

相鉄本線かしわ台」駅徒歩14分

小田急小田原線座間」駅徒歩18分

間取り/建物面積
3LDK / 107.41m²
土地面積
187.91m²
築年月
2000年08月築
  • 気になるリストへ
  • 比較リストへ

資料請求・お問い合わせ

◎住友不動産の注文住宅です 令和4年9月築 南向きにつき、陽当り良好

  • 築10年以内
  • 南道路(南西・南東含む)に接道
  • 建物面積が100m?以上
フロア画像を拡大する
画像枚数15枚
価格
6,100万円
所在地
神奈川県海老名市杉久保南1丁目
交通

小田急小田原線海老名」駅バス21分徒歩6分

相鉄本線海老名」駅バス21分徒歩6分

間取り/建物面積
3LDK / 102.67m²
土地面積
158.06m²
築年月
2022年09月築
  • 気になるリストへ
  • 比較リストへ

資料請求・お問い合わせ

◎JR相模線「社家」駅徒歩12分 4LDK

フロア画像を拡大する
画像枚数15枚
価格
3,180万円
所在地
神奈川県海老名市中野1丁目
交通

相模線社家」駅徒歩12分

相模線門沢橋」駅徒歩19分

間取り/建物面積
4LDK / 98m²
土地面積
123.05m²
築年月
2008年10月築
  • 気になるリストへ
  • 比較リストへ

資料請求・お問い合わせ

セキスイハイム施工注文住宅 3SLDK

  • 南道路(南西・南東含む)に接道
  • 低層住居専用地域に立地
  • 建物面積が100m?以上
フロア画像を拡大する
画像枚数15枚
価格
3,280万円
所在地
神奈川県海老名市国分寺台5丁目
交通

相鉄本線海老名」駅バス20分徒歩3分

間取り/建物面積
3SLDK / 126.71m²
土地面積
161.88m²
築年月
1990年02月築
  • 気になるリストへ
  • 比較リストへ

資料請求・お問い合わせ

積水ハウスの注文住宅・2000年5月築・間取り/4LD・K+納戸

  • 建物面積が100m?以上
フロア画像を拡大する
画像枚数15枚
価格
2,080万円
所在地
神奈川県厚木市飯山
交通

小田急小田原線本厚木」駅バス19分徒歩6分

小田急小田原線本厚木」駅バス21分徒歩3分

間取り/建物面積
4SLDK / 114.42m²
土地面積
150.06m²
築年月
2000年05月築
  • 気になるリストへ
  • 比較リストへ

資料請求・お問い合わせ

■1999年5月築の3LDK戸建です

  • 南道路(南西・南東含む)に接道
フロア画像を拡大する
画像枚数13枚
価格
1,990万円
所在地
神奈川県厚木市三田南1丁目
交通

小田急小田原線本厚木」駅バス26分徒歩4分

間取り/建物面積
3LDK / 80.14m²
土地面積
120.93m²
築年月
1999年05月築
  • 気になるリストへ
  • 比較リストへ

資料請求・お問い合わせ

☆旧開発分譲地内の閑静な住宅地 カースペース3台分あり 4LDK

  • 低層住居専用地域に立地
  • 建物面積が100m?以上
フロア画像を拡大する
画像枚数13枚
価格
2,380万円
所在地
神奈川県厚木市まつかげ台
交通

小田急小田原線本厚木」駅バス35分徒歩3分

間取り/建物面積
4LDK / 120.52m²
土地面積
190.4m²
築年月
2012年10月築
  • 気になるリストへ
  • 比較リストへ

資料請求・お問い合わせ

チェックした物件をまとめて

資料請求・お問い合わせ

  • 新着1週間以内に登録された物件
  • 価格更新1週間以内に価格が更新された物件
  • おすすめ物件営業センターのおすすめ物件
  • リフォーム済みリフォームやリノベーション済み
  • 駅徒歩10分以内駅徒歩10分以内
  • 築10年以内築10年以内
  • 南道路(南西・南東含む)南道路(南西・南東含む)に接道
  • 角地角地
  • 低層住居専用地域低層住居専用地域に立地
  • 建物面積100m²以上建物面積が100m²以上
  • 新築新築物件
  • 【現地見学】オープンハウス開催オープンハウス・予約制内覧会
  • 予告広告販売開始まで契約または予約の申し込みは出来ません