川口営業センター
  • TEL
    0120-646-668
  • 最寄駅
    • ・京浜東北・根岸線 川口駅

取扱物件一覧(中古一戸建て)

  • マンション
  • 中古一戸建て
  • 新築一戸建て
  • 土地
  • 事業用
  • 投資用

15件中1〜15件を表示

  • 画像を大きく表示
  • リストで表示

表示件数

並び替え

チェックした物件をまとめて

資料請求・お問い合わせ

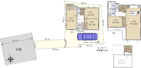
〜緑と調和する、閑静な立地に住まう〜LDK約17.6帖・全居室6.0帖以上あり

  • 築10年以内
  • 南道路(南西・南東含む)に接道
  • 建物面積が100m?以上
フロア画像を拡大する
画像枚数17枚
価格
4,180万円
所在地
埼玉県川口市弥平2丁目
交通

埼玉高速鉄道南鳩ヶ谷」駅徒歩23分

埼玉高速鉄道川口元郷」駅徒歩24分

日暮里舎人ライナー舎人」駅徒歩30分

間取り/建物面積
4LDK / 107.23m²
土地面積
89.11m²
築年月
2018年10月築
  • 気になるリストへ
  • 比較リストへ

資料請求・お問い合わせ

オープンハウス南向き陽当たり良好な5DK中古戸建

  • 南道路(南西・南東含む)に接道
  • 低層住居専用地域に立地
画像枚数30枚
価格
2,100万円
所在地
埼玉県川口市大字源左衛門新田
交通

武蔵野線東川口」駅バス13分徒歩7分

間取り/建物面積
5DK / 98.7m²
土地面積
103.89m²
築年月
1987年09月築
  • 気になるリストへ
  • 比較リストへ

資料請求・お問い合わせ

◇JR京浜東北・根岸線「川口」駅 徒歩18分 ◇2005年(平成17年)8月築

  • 南道路(南西・南東含む)に接道
  • 角地
  • 建物面積が100m?以上
画像枚数15枚
価格
4,980万円
所在地
埼玉県川口市中青木2丁目
交通

京浜東北・根岸線川口」駅徒歩18分

埼玉高速鉄道南鳩ヶ谷」駅バス7分徒歩7分

間取り/建物面積
3LDK / 110.95m²
土地面積
84.09m²
築年月
2005年08月築
  • 気になるリストへ
  • 比較リストへ

資料請求・お問い合わせ

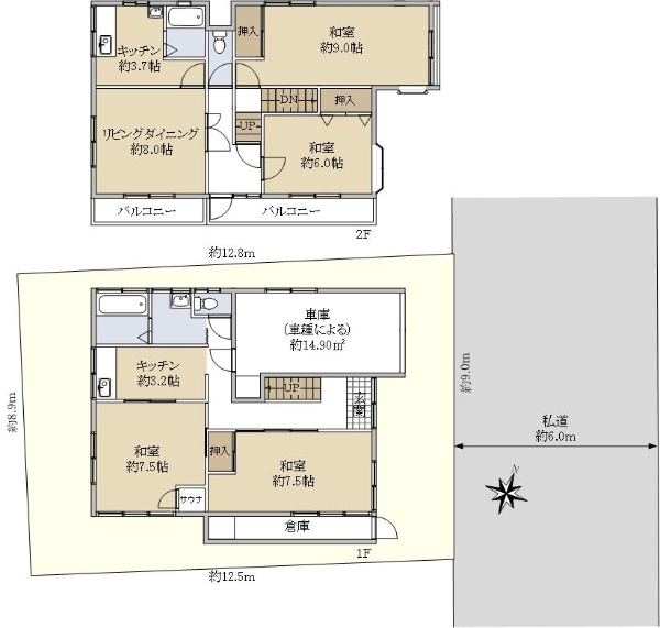
オープンハウス土地面積41.99坪 2015年築木造2階建 LDK約19.8帖(床暖房有)

  • リフォーム済み
  • 建物面積が100m?以上
フロア画像を拡大する
画像枚数30枚
価格
6,650万円
所在地
埼玉県川口市並木元町
交通

京浜東北・根岸線西川口」駅徒歩12分

京浜東北・根岸線川口」駅徒歩16分

間取り/建物面積
4LDK / 111.16m²
土地面積
138.84m²
築年月
2015年05月築
  • 気になるリストへ
  • 比較リストへ

資料請求・お問い合わせ

◎平成29年8月築の注文住宅 ◎南東・北西2面道路 ◎陽当たり良好

  • 築10年以内
  • 南道路(南西・南東含む)に接道
  • 建物面積が100m?以上
フロア画像を拡大する
画像枚数30枚
価格
6,980万円
所在地
埼玉県越谷市東越谷10丁目
交通

武蔵野線南越谷」駅バス23分徒歩3分

東武伊勢崎・大師線新越谷」駅バス23分徒歩3分

東武伊勢崎・大師線越谷」駅バス11分徒歩7分

間取り/建物面積
5SLDK / 189.01m²
土地面積
217.05m²
築年月
2017年08月築
  • 気になるリストへ
  • 比較リストへ

資料請求・お問い合わせ

オープンハウス2009年5月築 土地面積31.44坪 吹抜・床暖房・畳コーナーあり

  • 南道路(南西・南東含む)に接道
  • 建物面積が100m?以上
フロア画像を拡大する
画像枚数28枚
価格
4,780万円
所在地
埼玉県蕨市南町4丁目
交通

京浜東北・根岸線西川口」駅徒歩18分

埼京線戸田公園」駅徒歩25分

京浜東北・根岸線」駅徒歩23分

間取り/建物面積
3LDK / 105.98m²
土地面積
103.95m²
築年月
2009年05月築
  • 気になるリストへ
  • 比較リストへ

資料請求・お問い合わせ

閑静な住宅街に存する南向き陽当たり良好な4LDK

  • 南道路(南西・南東含む)に接道
フロア画像を拡大する
画像枚数26枚
価格
3,680万円
所在地
埼玉県川口市北原台2丁目
交通

武蔵野線東川口」駅徒歩21分

埼玉高速鉄道東川口」駅徒歩22分

間取り/建物面積
4LDK / 98.52m²
土地面積
99.6m²
築年月
2014年11月築
  • 気になるリストへ
  • 比較リストへ

資料請求・お問い合わせ

オープンハウス☆令和5年7月築 3LDKの戸建☆

  • 築10年以内
フロア画像を拡大する
画像枚数25枚
価格
4,200万円
所在地
東京都足立区入谷4丁目
交通

日暮里舎人ライナー舎人」駅徒歩12分

間取り/建物面積
3LDK / 80.42m²
土地面積
88.33m²
築年月
2023年07月築
  • 気になるリストへ
  • 比較リストへ

資料請求・お問い合わせ

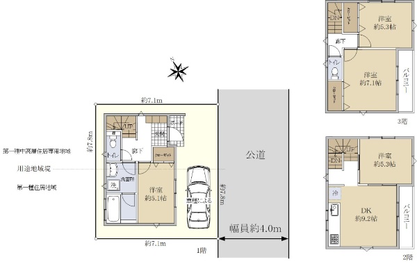
カースペース2台駐車可能(車種による)のオール電化住宅!!

  • 南道路(南西・南東含む)に接道
  • 低層住居専用地域に立地
フロア画像を拡大する
画像枚数21枚
価格
2,680万円
所在地
埼玉県川口市大字安行原
交通

京浜東北・根岸線川口」駅バス38分徒歩3分

東武伊勢崎・大師線草加」駅バス18分徒歩8分

間取り/建物面積
4LDK / 96.88m²
土地面積
107.19m²
築年月
2012年06月築
  • 気になるリストへ
  • 比較リストへ

資料請求・お問い合わせ

オープンハウス◆開放的な吹抜けから自然な光が降り注ぐ、平成29年築の注文住宅◆

  • 築10年以内
フロア画像を拡大する
画像枚数20枚
価格
4,480万円
所在地
埼玉県川口市戸塚東1丁目
交通

武蔵野線東川口」駅徒歩11分

埼玉高速鉄道東川口」駅徒歩11分

間取り/建物面積
2LDK / 68.72m²
土地面積
63.55m²
築年月
2017年04月築
  • 気になるリストへ
  • 比較リストへ

資料請求・お問い合わせ

オープンハウスJR京浜東北線「西川口」駅まで徒歩14分 全居室6帖以上あり

  • 建物面積が100m?以上
フロア画像を拡大する
画像枚数20枚
価格
4,100万円
所在地
埼玉県川口市西青木3丁目
交通

京浜東北・根岸線西川口」駅徒歩14分

間取り/建物面積
4LDK / 100.19m²
土地面積
90.83m²
築年月
2006年02月築
  • 気になるリストへ
  • 比較リストへ

資料請求・お問い合わせ

【閑静な住宅地】車庫付き(車種による)4LDK

  • 建物面積が100m?以上
フロア画像を拡大する
画像枚数20枚
価格
1,750万円
所在地
埼玉県川口市大字安行北谷
交通

東武伊勢崎・大師線草加」駅バス17分徒歩2分

間取り/建物面積
4LDK / 119.23m²
土地面積
114m²
築年月
1982年09月築
  • 気になるリストへ
  • 比較リストへ

資料請求・お問い合わせ

*見沼代親水公園駅徒歩7分 *2023年6月築 *2LDK

  • 駅徒歩10分以内
  • 築10年以内
  • 南道路(南西・南東含む)に接道
  • 低層住居専用地域に立地
フロア画像を拡大する
画像枚数13枚
価格
5,480万円
所在地
東京都足立区舎人4丁目
交通

日暮里舎人ライナー見沼代親水公園」駅徒歩7分

間取り/建物面積
2LDK / 85.2m²
土地面積
82.51m²
築年月
2023年06月築
  • 気になるリストへ
  • 比較リストへ

資料請求・お問い合わせ

オープンハウス【積水ハウス株式会社施工】〜こだわりの注文住宅〜

  • 南道路(南西・南東含む)に接道
  • 建物面積が100m?以上
フロア画像を拡大する
画像枚数13枚
価格
5,500万円
所在地
埼玉県川口市上青木西3丁目
交通

京浜東北・根岸線西川口」駅バス20分徒歩2分

間取り/建物面積
3SLDK / 123.92m²
土地面積
155.47m²
築年月
2004年09月築
  • 気になるリストへ
  • 比較リストへ

資料請求・お問い合わせ

JR埼京線「戸田公園」駅徒歩7分/商業地域/容積率400%/ガレージ付き

  • 駅徒歩10分以内
  • 建物面積が100m?以上
フロア画像を拡大する
画像枚数13枚
価格
5,000万円
所在地
埼玉県戸田市下前2丁目
交通

埼京線戸田公園」駅徒歩7分

間取り/建物面積
4LDK / 145.73m²
土地面積
91.49m²
築年月
1995年07月築
  • 気になるリストへ
  • 比較リストへ

資料請求・お問い合わせ

チェックした物件をまとめて

資料請求・お問い合わせ

  • 新着1週間以内に登録された物件
  • 価格更新1週間以内に価格が更新された物件
  • おすすめ物件営業センターのおすすめ物件
  • リフォーム済みリフォームやリノベーション済み
  • 駅徒歩10分以内駅徒歩10分以内
  • 築10年以内築10年以内
  • 南道路(南西・南東含む)南道路(南西・南東含む)に接道
  • 角地角地
  • 低層住居専用地域低層住居専用地域に立地
  • 建物面積100m²以上建物面積が100m²以上
  • 新築新築物件
  • 【現地見学】オープンハウス開催オープンハウス・予約制内覧会
  • 予告広告販売開始まで契約または予約の申し込みは出来ません