川崎営業センター
  • TEL
    0120-314-213
  • 最寄駅
    • ・東海道本線 川崎駅
    • ・京浜東北・根岸線 川崎駅

取扱物件一覧(中古一戸建て)

  • マンション
  • 中古一戸建て
  • 新築一戸建て
  • 土地
  • 事業用
  • 投資用

18件中1〜18件を表示

  • 画像を大きく表示
  • リストで表示

表示件数

並び替え

チェックした物件をまとめて

資料請求・お問い合わせ

■ビルトイン車庫1台分付 ■2019年1月築 ■屋上にルーフバルコニー付

  • 築10年以内
フロア画像を拡大する
画像枚数17枚
価格
4,380万円
所在地
神奈川県川崎市川崎区浅田4丁目
交通

鶴見線武蔵白石」駅徒歩12分

東海道本線川崎」駅バス19分徒歩2分

間取り/建物面積
3SLDK / 96.57m²
土地面積
62.86m²
築年月
2019年01月築
  • 気になるリストへ
  • 比較リストへ

資料請求・お問い合わせ

■宮前小学校まで徒歩1分! ■間取り5SLDK ■中庭付き

  • リフォーム済み
  • 建物面積が100m?以上
フロア画像を拡大する
画像枚数13枚
価格
2億5,000万円
所在地
神奈川県川崎市川崎区宮前町
交通

東海道本線川崎」駅徒歩12分

京急本線京急川崎」駅徒歩11分

京急大師線港町」駅徒歩18分

間取り/建物面積
5SLDK / 164.83m²
土地面積
181.47m²
築年月
2008年03月築
  • 気になるリストへ
  • 比較リストへ

資料請求・お問い合わせ

◆地下1階付3階建て戸建 ◆4SLDK(延面積147.34u)

  • 南道路(南西・南東含む)に接道
  • 建物面積が100m?以上
フロア画像を拡大する
画像枚数25枚
価格
6,480万円
所在地
神奈川県川崎市川崎区貝塚2丁目
交通

東海道本線川崎」駅徒歩15分

南武線川崎新町」駅徒歩12分

京浜東北・根岸線川崎」駅徒歩15分

間取り/建物面積
4SLDK / 147.34m²
土地面積
67.2m²
築年月
1997年12月築
  • 気になるリストへ
  • 比較リストへ

資料請求・お問い合わせ

◎吹き抜けのある明るく開放的なリビング・ダイニング、是非ご内見ください!!

  • 築10年以内
  • 低層住居専用地域に立地
フロア画像を拡大する
画像枚数21枚
価格
7,650万円
所在地
東京都世田谷区北烏山7丁目
交通

京王線千歳烏山」駅徒歩17分

京王線千歳烏山」駅バス9分徒歩5分

間取り/建物面積
2SLDK / 84.6m²
土地面積
106.68m²
築年月
2023年07月築
  • 気になるリストへ
  • 比較リストへ

資料請求・お問い合わせ

■南武線「鹿島田」駅まで徒歩5分 ■大和ハウス工業株式会社施工

  • 駅徒歩10分以内
  • 建物面積が100m?以上
フロア画像を拡大する
画像枚数20枚
価格
1億4,800万円
所在地
神奈川県川崎市幸区下平間
交通

南武線鹿島田」駅徒歩5分

横須賀線新川崎」駅徒歩10分

湘南新宿ライン(宇都宮〜逗子)新川崎」駅徒歩10分

間取り/建物面積
3DK / 220.37m²
土地面積
149.34m²
築年月
1997年10月築
  • 気になるリストへ
  • 比較リストへ

資料請求・お問い合わせ

◇「川崎大師」駅まで徒歩8分 ◇間取り3LDK ◇両面バルコニー(北・南)

  • 駅徒歩10分以内
フロア画像を拡大する
画像枚数18枚
価格
4,450万円
所在地
神奈川県川崎市川崎区川中島1丁目
交通

京急大師線川崎大師」駅徒歩8分

京急大師線鈴木町」駅徒歩11分

京浜東北・根岸線川崎」駅バス23分徒歩2分

間取り/建物面積
3LDK / 87.56m²
土地面積
60.02m²
築年月
2011年04月築
  • 気になるリストへ
  • 比較リストへ

資料請求・お問い合わせ

◆南道路につき陽当り良好 ◆2002年3月築 ◆間取り:2SLDK

  • 駅徒歩10分以内
  • 南道路(南西・南東含む)に接道
フロア画像を拡大する
画像枚数18枚
価格
4,980万円
所在地
神奈川県川崎市川崎区京町1丁目
交通

南武線川崎新町」駅徒歩8分

京急本線八丁畷」駅徒歩13分

京急本線鶴見市場」駅徒歩12分

間取り/建物面積
2SLDK / 94.18m²
土地面積
69.21m²
築年月
2002年03月築
  • 気になるリストへ
  • 比較リストへ

資料請求・お問い合わせ

◆3LDK(78.37u) ◆令和2年3月築 ◆駐車場1台分あり

  • 築10年以内
フロア画像を拡大する
画像枚数18枚
価格
3,980万円
所在地
神奈川県川崎市川崎区浜町3丁目
交通

南武線浜川崎」駅徒歩17分

東海道本線川崎」駅バス15分徒歩6分

京急本線京急川崎」駅バス19分徒歩6分

間取り/建物面積
3LDK / 78.37m²
土地面積
50.34m²
築年月
2020年03月築
  • 気になるリストへ
  • 比較リストへ

資料請求・お問い合わせ

◇2世帯に対応した1SLDK+2SLDK ◇西・南角地に立地 

  • 築10年以内
  • 南道路(南西・南東含む)に接道
  • 角地
  • 建物面積が100m?以上
フロア画像を拡大する
画像枚数14枚
価格
6,980万円
所在地
神奈川県川崎市川崎区中島2丁目
交通

京急大師線港町」駅徒歩12分

間取り/建物面積
3SLDK / 122.23m²
土地面積
94.65m²
築年月
2016年11月築
  • 気になるリストへ
  • 比較リストへ

資料請求・お問い合わせ

■前面道路の幅員約15m ■3階建5LDKの豊富なお部屋

  • 建物面積が100m?以上
フロア画像を拡大する
画像枚数14枚
価格
3,980万円
所在地
神奈川県川崎市川崎区浜町3丁目
交通

南武線浜川崎」駅徒歩19分

東海道本線川崎」駅バス15分徒歩5分

間取り/建物面積
5LDK / 100m²
土地面積
56.5m²
築年月
2004年07月築
  • 気になるリストへ
  • 比較リストへ

資料請求・お問い合わせ

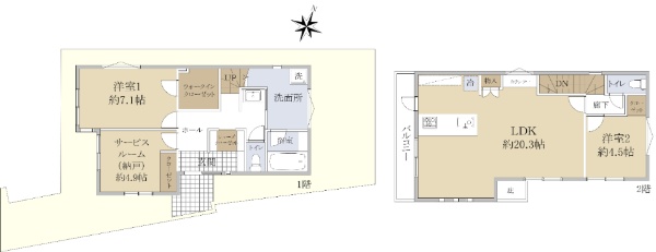
◇LDKは余裕ある広さの約20.3帖 ◇2023年12月築 

  • 駅徒歩10分以内
  • 築10年以内
  • 南道路(南西・南東含む)に接道
フロア画像を拡大する
画像枚数14枚
価格
4,499万円
所在地
神奈川県横浜市青葉区恩田町
交通

東急こどもの国線恩田」駅徒歩8分

間取り/建物面積
2SLDK / 95.64m²
土地面積
126.94m²
築年月
2023年12月築
  • 気になるリストへ
  • 比較リストへ

資料請求・お問い合わせ

◎4路線3駅利用可能! ◎2020年8月築の2SLDKの中古戸建

  • 駅徒歩10分以内
  • 築10年以内
フロア画像を拡大する
画像枚数14枚
価格
3,890万円
所在地
神奈川県川崎市川崎区渡田新町3丁目
交通

南武線川崎新町」駅徒歩3分

京急本線八丁畷」駅徒歩11分

東海道本線川崎」駅徒歩18分

間取り/建物面積
2SLDK / 70.18m²
土地面積
43.32m²
築年月
2020年08月築
  • 気になるリストへ
  • 比較リストへ

資料請求・お問い合わせ

◇大師線「東門前」駅まで徒歩3分の駅近物件 ◇LDK約18.5帖の広々空間

  • 駅徒歩10分以内
  • 築10年以内
  • 南道路(南西・南東含む)に接道
フロア画像を拡大する
画像枚数13枚
価格
4,480万円
所在地
神奈川県川崎市川崎区東門前1丁目
交通

京急大師線東門前」駅徒歩3分

京急大師線川崎大師」駅徒歩10分

京急大師線大師橋」駅徒歩11分

間取り/建物面積
2SLDK / 80.94m²
土地面積
74.09m²
築年月
2018年11月築
  • 気になるリストへ
  • 比較リストへ

資料請求・お問い合わせ

◆東海道線「川崎」駅徒歩9分 ◆2022年3月築 車庫1台分あり

  • 駅徒歩10分以内
  • 築10年以内
フロア画像を拡大する
画像枚数13枚
価格
6,800万円
所在地
神奈川県川崎市幸区幸町3丁目
交通

東海道本線川崎」駅徒歩9分

京浜東北・根岸線川崎」駅徒歩9分

南武線川崎」駅徒歩9分

間取り/建物面積
1SLDK / 78.04m²
土地面積
50.81m²
築年月
2022年03月築
  • 気になるリストへ
  • 比較リストへ

資料請求・お問い合わせ

◆2019年2月築 ◆間取り:2SLDK ◆駐車場1台分あり

  • 築10年以内
フロア画像を拡大する
画像枚数13枚
価格
3,980万円
所在地
神奈川県川崎市川崎区大島3丁目
交通

東海道本線川崎」駅バス12分徒歩3分

間取り/建物面積
2SLDK / 77.82m²
土地面積
48.06m²
築年月
2019年02月築
  • 気になるリストへ
  • 比較リストへ

資料請求・お問い合わせ

◇2022年7月築 ◇LDKに床暖房有り ◇ルーフバルコニー有り

  • 駅徒歩10分以内
  • 築10年以内
  • 南道路(南西・南東含む)に接道
フロア画像を拡大する
画像枚数13枚
価格
4,280万円
所在地
神奈川県川崎市川崎区小田3丁目
交通

南武線小田栄」駅徒歩4分

南武線川崎新町」駅徒歩8分

間取り/建物面積
2SLDK / 67.53m²
土地面積
52.98m²
築年月
2022年07月築
  • 気になるリストへ
  • 比較リストへ

資料請求・お問い合わせ

■3階建中古一戸建 ■徒歩10分圏内に施設充実・利便性の高い立地

画像枚数16枚
価格
4,480万円
所在地
神奈川県川崎市幸区小倉3丁目
交通

南武線矢向」駅徒歩15分

横須賀線新川崎」駅徒歩19分

南武線鹿島田」駅徒歩20分

間取り/建物面積
3SLDK / 91.5m²
土地面積
65.09m²
築年月
1998年11月築
  • 気になるリストへ
  • 比較リストへ

資料請求・お問い合わせ

【オーナーチェンジ物件】◆JR南武線「矢向」駅徒歩13分

画像枚数15枚
価格
3,780万円
所在地
神奈川県川崎市幸区古川町
交通

南武線矢向」駅徒歩13分

間取り/建物面積
3K / 52.14m²
土地面積
58.62m²
築年月
1977年02月築
  • 気になるリストへ
  • 比較リストへ

資料請求・お問い合わせ

チェックした物件をまとめて

資料請求・お問い合わせ

  • 新着1週間以内に登録された物件
  • 価格更新1週間以内に価格が更新された物件
  • おすすめ物件営業センターのおすすめ物件
  • リフォーム済みリフォームやリノベーション済み
  • 駅徒歩10分以内駅徒歩10分以内
  • 築10年以内築10年以内
  • 南道路(南西・南東含む)南道路(南西・南東含む)に接道
  • 角地角地
  • 低層住居専用地域低層住居専用地域に立地
  • 建物面積100m²以上建物面積が100m²以上
  • 新築新築物件
  • 【現地見学】オープンハウス開催オープンハウス・予約制内覧会
  • 予告広告販売開始まで契約または予約の申し込みは出来ません