吉祥寺営業センター
  • TEL
    0120-301-451
  • 最寄駅
    • ・中央本線 吉祥寺駅
    • ・京王電鉄井の頭線 吉祥寺駅

取扱物件一覧(中古一戸建て)

  • マンション
  • 中古一戸建て
  • 新築一戸建て
  • 土地
  • 事業用
  • 投資用

33件中1〜30件を表示

  • 画像を大きく表示
  • リストで表示

表示件数

並び替え

チェックした物件をまとめて

資料請求・お問い合わせ

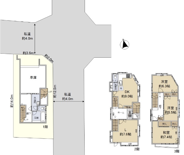
◇西武多摩川線「新小金井」駅まで徒歩11分 ◇2013年6月築 ◇LDKは広々17帖超

  • 低層住居専用地域に立地
フロア画像を拡大する
画像枚数27枚
価格
6,500万円
所在地
東京都三鷹市井口4丁目
交通

西武多摩川線新小金井」駅徒歩11分

中央線武蔵境」駅バス8分徒歩10分

中央線武蔵境」駅徒歩26分

間取り/建物面積
3LDK / 92.2m²
土地面積
116m²
築年月
2013年06月築
  • 気になるリストへ
  • 比較リストへ

資料請求・お問い合わせ

【すみふの仲介ステップ】土地面積 353.76u(107.01坪)

  • 南道路(南西・南東含む)に接道
  • 低層住居専用地域に立地
  • 建物面積が100m?以上
フロア画像を拡大する
画像枚数25枚
価格
2億7,800万円
所在地
東京都杉並区善福寺1丁目
交通

中央線西荻窪」駅徒歩14分

中央線吉祥寺」駅徒歩25分

西武新宿線上石神井」駅徒歩27分

間取り/建物面積
4LDK / 176.46m²
土地面積
353.76m²
築年月
1992年01月築
  • 気になるリストへ
  • 比較リストへ

資料請求・お問い合わせ

二世帯住宅 大和ハウス工業施工

  • リフォーム済み
  • 南道路(南西・南東含む)に接道
  • 低層住居専用地域に立地
  • 建物面積が100m?以上
フロア画像を拡大する
画像枚数23枚
価格
1億9,900万円
所在地
東京都杉並区久我山3丁目
交通

京王井の頭線久我山」駅徒歩12分

京王井の頭線三鷹台」駅徒歩12分

間取り/建物面積
5LDK / 176.4m²
土地面積
232.49m²
築年月
2002年02月築
  • 気になるリストへ
  • 比較リストへ

資料請求・お問い合わせ

☆西武新宿線「田無」駅まで徒歩14分 閑静な住宅街 

  • 築10年以内
  • 低層住居専用地域に立地
フロア画像を拡大する
画像枚数23枚
価格
6,600万円
所在地
東京都西東京市向台町1丁目
交通

西武新宿線田無」駅徒歩14分

中央線武蔵境」駅バス14分徒歩4分

間取り/建物面積
3LDK / 90.28m²
土地面積
115.04m²
築年月
2020年11月築
  • 気になるリストへ
  • 比較リストへ

資料請求・お問い合わせ

◇吉祥寺駅徒歩20分 ◇平屋建注文住宅 ◇バリアフリー ◇床暖房 ◇天窓

  • 築10年以内
  • 南道路(南西・南東含む)に接道
  • 低層住居専用地域に立地
フロア画像を拡大する
画像枚数21枚
価格
2億2,000万円
所在地
東京都杉並区善福寺3丁目
交通

中央線吉祥寺」駅徒歩20分

中央線荻窪」駅バス25分徒歩2分

西武新宿線上石神井」駅徒歩22分

間取り/建物面積
1DK / 33.12m²
土地面積
268.21m²
築年月
2018年08月築
  • 気になるリストへ
  • 比較リストへ

資料請求・お問い合わせ

◆アグレ都市デザイン株式会社分譲戸建◆令和2年10月築◆太陽光発電システム

  • 築10年以内
  • 南道路(南西・南東含む)に接道
  • 角地
  • 低層住居専用地域に立地
フロア画像を拡大する
画像枚数21枚
価格
6,480万円
所在地
東京都西東京市芝久保町1丁目
交通

西武新宿線花小金井」駅徒歩11分

西武新宿線田無」駅徒歩23分

間取り/建物面積
3SLDK / 91.51m²
土地面積
116.03m²
築年月
2020年10月築
  • 気になるリストへ
  • 比較リストへ

資料請求・お問い合わせ

◆建物面積200u越えの邸宅◆南向きワイドバルコニー◆豊富な収納

  • 南道路(南西・南東含む)に接道
  • 建物面積が100m?以上
フロア画像を拡大する
画像枚数21枚
価格
1億1,900万円
所在地
東京都三鷹市下連雀4丁目
交通

中央線三鷹」駅徒歩12分

総武線三鷹」駅徒歩12分

間取り/建物面積
6LDK / 225.43m²
土地面積
200.65m²
築年月
2003年05月築
  • 気になるリストへ
  • 比較リストへ

資料請求・お問い合わせ

オープンハウス国立市中の住宅街に位置する戸建

  • 建物面積が100m?以上
フロア画像を拡大する
画像枚数20枚
価格
1億2,000万円
所在地
東京都国立市中2丁目
交通

中央線国立」駅徒歩15分

南武線谷保」駅徒歩20分

間取り/建物面積
5SLDK / 158.98m²
土地面積
197.44m²
築年月
2007年12月築
  • 気になるリストへ
  • 比較リストへ

資料請求・お問い合わせ

オープンハウス◇東急ホームズ施工の輸入住宅Millcreek‐BASIS

  • 南道路(南西・南東含む)に接道
  • 角地
  • 低層住居専用地域に立地
  • 建物面積が100m?以上
フロア画像を拡大する
画像枚数20枚
価格
3,480万円
所在地
東京都あきる野市伊奈
交通

五日市線武蔵増戸」駅徒歩12分

間取り/建物面積
3LDK / 103.28m²
土地面積
149m²
築年月
2015年12月築
  • 気になるリストへ
  • 比較リストへ

資料請求・お問い合わせ

大和ハウス工業施工×南向き住戸のため陽当り良好×令和4年築の2階建て戸建

  • 駅徒歩10分以内
  • 築10年以内
  • 低層住居専用地域に立地
フロア画像を拡大する
画像枚数19枚
価格
6,480万円
所在地
東京都西東京市富士町6丁目
交通

西武新宿線西武柳沢」駅徒歩8分

西武新宿線東伏見」駅徒歩10分

間取り/建物面積
3LDK / 93.61m²
土地面積
111.93m²
築年月
2022年01月築
  • 気になるリストへ
  • 比較リストへ

資料請求・お問い合わせ

〜高井戸に佇む邸宅〜 ◆4LDK+サービスルーム(納戸)2部屋 

  • 駅徒歩10分以内
  • 低層住居専用地域に立地
  • 建物面積が100m?以上
フロア画像を拡大する
画像枚数19枚
価格
1億1,500万円
所在地
東京都杉並区高井戸西1丁目
交通

京王井の頭線高井戸」駅徒歩8分

間取り/建物面積
4SLDK / 145.27m²
土地面積
203.7m²
築年月
1996年03月築
  • 気になるリストへ
  • 比較リストへ

資料請求・お問い合わせ

吉祥寺駅徒歩圏、閑静な住宅街に存する3LDK

  • 低層住居専用地域に立地
フロア画像を拡大する
画像枚数18枚
価格
6,980万円
所在地
東京都練馬区関町南2丁目
交通

中央線吉祥寺」駅徒歩18分

総武線吉祥寺」駅徒歩18分

京王井の頭線吉祥寺」駅徒歩18分

間取り/建物面積
3LDK / 76.59m²
土地面積
82.05m²
築年月
2005年10月築
  • 気になるリストへ
  • 比較リストへ

資料請求・お問い合わせ

京王井の頭線「三鷹台」駅徒歩4分×2階建×平成30年9月築の重厚感溢れる戸建

  • 駅徒歩10分以内
  • 築10年以内
  • 南道路(南西・南東含む)に接道
  • 低層住居専用地域に立地
  • 建物面積が100m?以上
フロア画像を拡大する
画像枚数17枚
価格
2億円
所在地
東京都杉並区久我山4丁目
交通

京王井の頭線三鷹台」駅徒歩4分

京王井の頭線久我山」駅徒歩15分

京王井の頭線井の頭公園」駅徒歩15分

間取り/建物面積
4LDK / 157.32m²
土地面積
170.45m²
築年月
2018年09月築
  • 気になるリストへ
  • 比較リストへ

資料請求・お問い合わせ

◆南西向き ◆4LDK ◆住友不動産新築そっくりさんでリフォーム済み

  • リフォーム済み
  • 南道路(南西・南東含む)に接道
  • 低層住居専用地域に立地
フロア画像を拡大する
画像枚数16枚
価格
6,280万円
所在地
東京都三鷹市北野4丁目
交通

京王線仙川」駅徒歩19分

間取り/建物面積
4LDK / 98.12m²
土地面積
157.27m²
築年月
2004年02月築
  • 気になるリストへ
  • 比較リストへ

資料請求・お問い合わせ

西久保三丁目にある閑静な住宅街

  • 築10年以内
  • 南道路(南西・南東含む)に接道
フロア画像を拡大する
画像枚数16枚
価格
7,480万円
所在地
東京都武蔵野市西久保3丁目
交通

中央線三鷹」駅徒歩16分

間取り/建物面積
2SLDK / 89.67m²
土地面積
83.92m²
築年月
2020年01月築
  • 気になるリストへ
  • 比較リストへ

資料請求・お問い合わせ

◆◇閑静な住宅街 鉄骨造の邸宅 西武新宿線「東伏見」駅徒歩8分◇◆

  • 駅徒歩10分以内
  • 角地
  • 低層住居専用地域に立地
  • 建物面積が100m?以上
フロア画像を拡大する
画像枚数16枚
価格
5,880万円
所在地
東京都西東京市東伏見6丁目
交通

西武新宿線東伏見」駅徒歩8分

間取り/建物面積
4LDK / 132.3m²
土地面積
149.48m²
築年月
1997年09月築
  • 気になるリストへ
  • 比較リストへ

資料請求・お問い合わせ

◆◇前面道路公道幅員約16.0m 近隣商業地域◇◆

フロア画像を拡大する
画像枚数15枚
価格
2,180万円
所在地
東京都三鷹市大沢3丁目
交通

中央線武蔵境」駅バス22分徒歩1分

京王線調布」駅バス20分徒歩1分

間取り/建物面積
2K / 39.26m²
土地面積
28.72m²
築年月
1998年09月築
  • 気になるリストへ
  • 比較リストへ

資料請求・お問い合わせ

4LDKの戸建 土地:110.01u 建物:102.81u

  • 低層住居専用地域に立地
  • 建物面積が100m?以上
フロア画像を拡大する
画像枚数15枚
価格
6,200万円
所在地
東京都練馬区石神井台8丁目
交通

西武新宿線武蔵関」駅徒歩18分

間取り/建物面積
4LDK / 102.81m²
土地面積
110.01m²
築年月
1985年07月築
  • 気になるリストへ
  • 比較リストへ

資料請求・お問い合わせ

◇JR中央線・西武多摩川線「武蔵境」駅徒歩13分 ◇2024年10月築

  • 築10年以内
  • 低層住居専用地域に立地
フロア画像を拡大する
画像枚数14枚
価格
9,000万円
所在地
東京都武蔵野市境南町5丁目
交通

中央線武蔵境」駅徒歩13分

西武多摩川線武蔵境」駅徒歩13分

間取り/建物面積
1SLDK / 71.46m²
土地面積
63.22m²
築年月
2024年10月築
  • 気になるリストへ
  • 比較リストへ

資料請求・お問い合わせ

三鷹と吉祥寺2つの街を使いこなす、自然・教育・利便性が揃うエリア

  • 低層住居専用地域に立地
フロア画像を拡大する
画像枚数14枚
価格
9,000万円
所在地
東京都三鷹市下連雀1丁目
交通

中央線吉祥寺」駅徒歩19分

中央線三鷹」駅徒歩19分

中央線吉祥寺」駅バス15分徒歩2分

間取り/建物面積
4LDK / 82.62m²
土地面積
73.63m²
築年月
1996年04月築
  • 気になるリストへ
  • 比較リストへ

資料請求・お問い合わせ

田無駅徒歩11分、角地に存する戸建です。

  • 角地
  • 低層住居専用地域に立地
  • 建物面積が100m?以上
フロア画像を拡大する
画像枚数13枚
価格
2,480万円
所在地
東京都西東京市向台町4丁目
交通

西武新宿線田無」駅徒歩11分

間取り/建物面積
3LDK / 123.23m²
土地面積
67.98m²
築年月
1989年04月築
  • 気になるリストへ
  • 比較リストへ

資料請求・お問い合わせ

◇2019年10月リフォーム ◇3世帯住宅 ◇角地 ◇閑静な住宅街

  • リフォーム済み
  • 南道路(南西・南東含む)に接道
  • 角地
  • 低層住居専用地域に立地
  • 建物面積が100m?以上
フロア画像を拡大する
画像枚数13枚
価格
1億8,500万円
所在地
東京都武蔵野市八幡町4丁目
交通

中央線三鷹」駅バス15分徒歩4分

中央線吉祥寺」駅バス20分徒歩4分

西武新宿線西武柳沢」駅徒歩17分

間取り/建物面積
5LDK / 202.34m²
土地面積
208.91m²
築年月
1983年11月築
  • 気になるリストへ
  • 比較リストへ

資料請求・お問い合わせ

◇◆西武新宿線「田無」駅徒歩9分 北・東側接道の角地◆◇

  • 駅徒歩10分以内
  • 角地
  • 建物面積が100m?以上
フロア画像を拡大する
画像枚数13枚
価格
6,980万円
所在地
東京都西東京市南町6丁目
交通

西武新宿線田無」駅徒歩9分

間取り/建物面積
4LDK / 120.96m²
土地面積
100.43m²
築年月
2006年12月築
  • 気になるリストへ
  • 比較リストへ

資料請求・お問い合わせ

井の頭5丁目アドレスに佇む中古戸建×閑静な住宅街

  • 駅徒歩10分以内
  • 低層住居専用地域に立地
  • 建物面積が100m?以上
フロア画像を拡大する
画像枚数13枚
価格
8,980万円
所在地
東京都三鷹市井の頭5丁目
交通

京王井の頭線井の頭公園」駅徒歩10分

京王井の頭線三鷹台」駅徒歩13分

中央線吉祥寺」駅徒歩19分

間取り/建物面積
5LDK / 132.79m²
土地面積
140.1m²
築年月
1990年01月築
  • 気になるリストへ
  • 比較リストへ

資料請求・お問い合わせ

◇「吉祥寺」駅徒歩14分 ◇閑静な住宅街 

  • 駅徒歩10分以内
  • 低層住居専用地域に立地
フロア画像を拡大する
画像枚数13枚
価格
2億円
所在地
東京都武蔵野市吉祥寺南町3丁目
交通

京王井の頭線井の頭公園」駅徒歩6分

中央線吉祥寺」駅徒歩14分

間取り/建物面積
1LDK / 56.3m²
土地面積
135.92m²
築年月
2009年06月築
  • 気になるリストへ
  • 比較リストへ

資料請求・お問い合わせ

◆◇閑静な住宅街に佇む邸宅 2駅2路線利用可能 4LDK◆◇

  • 建物面積が100m?以上
フロア画像を拡大する
画像枚数13枚
価格
3,980万円
所在地
東京都多摩市貝取1丁目
交通

京王相模原線京王永山」駅徒歩13分

小田急多摩線小田急永山」駅徒歩13分

間取り/建物面積
4LDK / 103.29m²
土地面積
297.45m²
築年月
1988年03月築
  • 気になるリストへ
  • 比較リストへ

資料請求・お問い合わせ

京王線「つつじヶ丘」駅徒歩16分、閑静な住宅街

  • 低層住居専用地域に立地
フロア画像を拡大する
画像枚数12枚
価格
980万円
所在地
東京都三鷹市中原4丁目
交通

京王線つつじヶ丘」駅徒歩16分

間取り/建物面積
1K / 54.54m²
土地面積
61.34m²
築年月
1967年09月築
  • 気になるリストへ
  • 比較リストへ

資料請求・お問い合わせ

末広通り沿いに面する旭化成ホームズ株式会社施工の注文住宅

  • 駅徒歩10分以内
  • 建物面積が100m?以上
フロア画像を拡大する
画像枚数11枚
価格
5億9,800万円
所在地
東京都武蔵野市吉祥寺南町2丁目
交通

中央線吉祥寺」駅徒歩4分

間取り/建物面積
2LDK / 101.85m²
土地面積
165.88m²
築年月
2015年03月築
  • 気になるリストへ
  • 比較リストへ

資料請求・お問い合わせ

〜三菱地所ホーム施工の注文住宅〜

  • 南道路(南西・南東含む)に接道
  • 低層住居専用地域に立地
  • 建物面積が100m?以上
フロア画像を拡大する
画像枚数11枚
価格
1億2,800万円
所在地
東京都杉並区松庵2丁目
交通

中央線西荻窪」駅徒歩13分

京王井の頭線三鷹台」駅徒歩12分

中央線吉祥寺」駅徒歩19分

間取り/建物面積
3LDK / 103.77m²
土地面積
109.15m²
築年月
2005年12月築
  • 気になるリストへ
  • 比較リストへ

資料請求・お問い合わせ

◆4LDK ◆京王線「芦花公園」駅徒歩5分 

  • リフォーム済み
  • 駅徒歩10分以内
  • 低層住居専用地域に立地
フロア画像を拡大する
画像枚数10枚
価格
6,480万円
所在地
東京都世田谷区北烏山1丁目
交通

京王線芦花公園」駅徒歩5分

京王線千歳烏山」駅徒歩14分

間取り/建物面積
4LDK / 98.32m²
土地面積
99.22m²
築年月
1989年07月築
  • 気になるリストへ
  • 比較リストへ

資料請求・お問い合わせ

チェックした物件をまとめて

資料請求・お問い合わせ

  • 新着1週間以内に登録された物件
  • 価格更新1週間以内に価格が更新された物件
  • おすすめ物件営業センターのおすすめ物件
  • リフォーム済みリフォームやリノベーション済み
  • 駅徒歩10分以内駅徒歩10分以内
  • 築10年以内築10年以内
  • 南道路(南西・南東含む)南道路(南西・南東含む)に接道
  • 角地角地
  • 低層住居専用地域低層住居専用地域に立地
  • 建物面積100m²以上建物面積が100m²以上
  • 新築新築物件
  • 【現地見学】オープンハウス開催オープンハウス・予約制内覧会
  • 予告広告販売開始まで契約または予約の申し込みは出来ません