武蔵小金井営業センター
  • TEL
    0120-848-183
  • 最寄駅
    • ・中央本線 武蔵小金井駅

取扱物件一覧(中古一戸建て)

  • マンション
  • 中古一戸建て
  • 新築一戸建て
  • 土地
  • 事業用
  • 投資用

16件中1〜16件を表示

  • 画像を大きく表示
  • リストで表示

表示件数

並び替え

チェックした物件をまとめて

資料請求・お問い合わせ

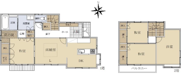
オープンハウス◇JR中央線「東小金井」駅徒歩11分◇2022年10月築◇カースペース2台分(並列)

  • 築10年以内
  • 南道路(南西・南東含む)に接道
  • 低層住居専用地域に立地
フロア画像を拡大する
画像枚数30枚
価格
8,980万円
所在地
東京都小金井市東町3丁目
交通

中央線東小金井」駅徒歩11分

中央線武蔵境」駅徒歩16分

西武多摩川線新小金井」駅徒歩14分

間取り/建物面積
2SLDK / 95.56m²
土地面積
124.04m²
築年月
2022年10月築
  • 気になるリストへ
  • 比較リストへ

資料請求・お問い合わせ

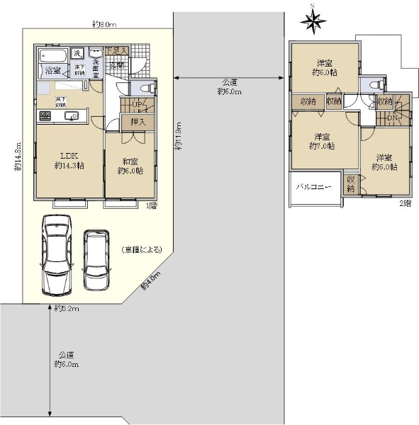
オープンハウス◇木造2階建て ◇4LDK ◇閑静な住宅地 

  • 築10年以内
  • 南道路(南西・南東含む)に接道
  • 建物面積が100m?以上
フロア画像を拡大する
画像枚数30枚
価格
3,980万円
所在地
東京都小平市花小金井3丁目
交通

西武新宿線花小金井」駅バス11分徒歩9分

間取り/建物面積
4LDK / 100.19m²
土地面積
100.1m²
築年月
2018年01月築
  • 気になるリストへ
  • 比較リストへ

資料請求・お問い合わせ

◇都営大江戸線「光が丘」駅徒歩10分 ◇ロフト付2017年1月建築の一戸建

  • 駅徒歩10分以内
  • 築10年以内
  • 低層住居専用地域に立地
フロア画像を拡大する
画像枚数29枚
価格
7,680万円
所在地
東京都練馬区高松4丁目
交通

都営大江戸線光が丘」駅徒歩10分

都営大江戸線練馬春日町」駅徒歩14分

西武池袋・豊島線練馬高野台」駅バス13分徒歩4分

間取り/建物面積
3SLDK / 87.48m²
土地面積
88.08m²
築年月
2017年01月築
  • 気になるリストへ
  • 比較リストへ

資料請求・お問い合わせ

◇スウェーデンハウス施工の注文住宅 ◇オール電化住宅

  • 低層住居専用地域に立地
  • 建物面積が100m?以上
フロア画像を拡大する
画像枚数28枚
価格
4,980万円
所在地
東京都小平市花小金井3丁目
交通

西武新宿線花小金井」駅バス10分徒歩5分

西武新宿線花小金井」駅徒歩22分

間取り/建物面積
4LDK / 103.34m²
土地面積
138.86m²
築年月
2005年05月築
  • 気になるリストへ
  • 比較リストへ

資料請求・お問い合わせ

◆建物面積111.13u(他に未登記部分約8.4u:1階洋室部分あり)

  • 低層住居専用地域に立地
  • 建物面積が100m?以上
フロア画像を拡大する
画像枚数28枚
価格
4,980万円
所在地
東京都小平市花小金井3丁目
交通

西武新宿線花小金井」駅徒歩21分

西武新宿線花小金井」駅バス10分徒歩9分

間取り/建物面積
5LDK / 111.13m²
土地面積
155.34m²
築年月
1998年11月築
  • 気になるリストへ
  • 比較リストへ

資料請求・お問い合わせ

◆建物面積89.90u(27.19坪) 4DK◆閑静な住宅地

  • 低層住居専用地域に立地
フロア画像を拡大する
画像枚数28枚
価格
2,850万円
所在地
東京都東村山市恩多町5丁目
交通

西武新宿線久米川」駅徒歩20分

西武新宿線久米川」駅バス7分徒歩6分

間取り/建物面積
4DK / 89.9m²
土地面積
103.23m²
築年月
1989年10月築
  • 気になるリストへ
  • 比較リストへ

資料請求・お問い合わせ

オープンハウス◇2024年11月築木造2階建て ◇閑静な住宅地

  • 築10年以内
フロア画像を拡大する
画像枚数25枚
価格
4,490万円
所在地
東京都小平市天神町1丁目
交通

西武新宿線小平」駅徒歩19分

間取り/建物面積
2SLDK / 90.98m²
土地面積
82.09m²
築年月
2024年11月築
  • 気になるリストへ
  • 比較リストへ

資料請求・お問い合わせ

オープンハウス◆中央線「武蔵境」駅まで徒歩17分 ◆3階建 ◆LDK20帖以上

  • 建物面積が100m?以上
フロア画像を拡大する
画像枚数20枚
価格
7,280万円
所在地
東京都三鷹市井口1丁目
交通

中央線武蔵境」駅徒歩17分

間取り/建物面積
3SLDK / 119.02m²
土地面積
84.14m²
築年月
2007年06月築
  • 気になるリストへ
  • 比較リストへ

資料請求・お問い合わせ

オープンハウス◆南側約4.0m道路に面しております

  • 南道路(南西・南東含む)に接道
  • 低層住居専用地域に立地
  • 建物面積が100m?以上
フロア画像を拡大する
画像枚数19枚
価格
4,480万円
所在地
東京都小平市花小金井南町3丁目
交通

西武新宿線花小金井」駅徒歩11分

間取り/建物面積
4DK / 101.99m²
土地面積
140.66m²
築年月
1967年01月築
  • 気になるリストへ
  • 比較リストへ

資料請求・お問い合わせ

オープンハウス南西角地 陽当たり良好 閑静な住宅地

  • 南道路(南西・南東含む)に接道
  • 角地
  • 低層住居専用地域に立地
  • 建物面積が100m?以上
フロア画像を拡大する
画像枚数18枚
価格
3,980万円
所在地
東京都小平市鈴木町1丁目
交通

西武多摩湖線一橋学園」駅徒歩18分

西武新宿線花小金井」駅バス16分徒歩3分

間取り/建物面積
4DK / 127.31m²
土地面積
117.29m²
築年月
1992年09月築
  • 気になるリストへ
  • 比較リストへ

資料請求・お問い合わせ

オープンハウス◇住友不動産による新築そっくりさん(平成14年7月リフォーム済)

  • リフォーム済み
  • 低層住居専用地域に立地
  • 建物面積が100m?以上
フロア画像を拡大する
画像枚数15枚
価格
4,280万円
所在地
東京都小平市花小金井2丁目
交通

西武新宿線花小金井」駅徒歩13分

間取り/建物面積
4LDK / 106.4m²
土地面積
121.44m²
築年月
1981年11月築
  • 気になるリストへ
  • 比較リストへ

資料請求・お問い合わせ

◆ 2駅2路線利用可 ◆ 駅徒歩10分以内 ◆

  • 駅徒歩10分以内
  • 低層住居専用地域に立地
フロア画像を拡大する
画像枚数14枚
価格
1,480万円
所在地
神奈川県逗子市山の根2丁目
交通

湘南新宿ライン(宇都宮〜逗子)逗子」駅徒歩10分

京急逗子線逗子・葉山」駅徒歩12分

間取り/建物面積
3LDK / 86.11m²
土地面積
119m²
築年月
1984年11月築
  • 気になるリストへ
  • 比較リストへ

資料請求・お問い合わせ

◇木造2階建て ◇4SLDK ◇閑静な住宅地 

  • 低層住居専用地域に立地
フロア画像を拡大する
画像枚数13枚
価格
8,490万円
所在地
東京都小金井市桜町2丁目
交通

中央線武蔵小金井」駅徒歩19分

間取り/建物面積
4SLDK / 49.41m²
土地面積
128.5m²
築年月
2007年03月築
  • 気になるリストへ
  • 比較リストへ

資料請求・お問い合わせ

オープンハウス全居室南向き 大型車駐車可能なロフト付きの4DKの一戸建 

  • 低層住居専用地域に立地
フロア画像を拡大する
画像枚数13枚
価格
5,480万円
所在地
東京都小金井市梶野町4丁目
交通

中央線東小金井」駅徒歩15分

間取り/建物面積
4DK / 79.92m²
土地面積
100.01m²
築年月
1996年07月築
  • 気になるリストへ
  • 比較リストへ

資料請求・お問い合わせ

こだわりの注文住宅。JR中央線「国立」駅徒歩4分。旭化成施工の軽量鉄骨造

  • 駅徒歩10分以内
  • 南道路(南西・南東含む)に接道
  • 低層住居専用地域に立地
  • 建物面積が100m?以上
フロア画像を拡大する
画像枚数12枚
価格
2億1,500万円
所在地
東京都国立市北1丁目
交通

中央線国立」駅徒歩4分

間取り/建物面積
4LDK / 219.47m²
土地面積
366.81m²
築年月
2012年05月築
  • 気になるリストへ
  • 比較リストへ

資料請求・お問い合わせ

◇西武国分寺線「鷹の台」駅徒歩4分 ◇オーナーチェンジ

  • 駅徒歩10分以内
  • 低層住居専用地域に立地
画像枚数13枚
価格
3,200万円
所在地
東京都小平市上水新町3丁目
交通

西武国分寺線鷹の台」駅徒歩4分

間取り/建物面積
4DK / 61.14m²
土地面積
88.52m²
築年月
1969年01月築
  • 気になるリストへ
  • 比較リストへ

資料請求・お問い合わせ

チェックした物件をまとめて

資料請求・お問い合わせ

  • 新着1週間以内に登録された物件
  • 価格更新1週間以内に価格が更新された物件
  • おすすめ物件営業センターのおすすめ物件
  • リフォーム済みリフォームやリノベーション済み
  • 駅徒歩10分以内駅徒歩10分以内
  • 築10年以内築10年以内
  • 南道路(南西・南東含む)南道路(南西・南東含む)に接道
  • 角地角地
  • 低層住居専用地域低層住居専用地域に立地
  • 建物面積100m²以上建物面積が100m²以上
  • 新築新築物件
  • 【現地見学】オープンハウス開催オープンハウス・予約制内覧会
  • 予告広告販売開始まで契約または予約の申し込みは出来ません