千里中央営業センター
  • TEL
    0120-017-770
  • 最寄駅
    • ・北大阪急行南北線 千里中央駅

取扱物件一覧(中古一戸建て)

  • マンション
  • 中古一戸建て
  • 新築一戸建て
  • 土地
  • 事業用
  • 投資用

35件中31〜35件を表示

  • 画像を大きく表示
  • リストで表示

表示件数

並び替え

チェックした物件をまとめて

資料請求・お問い合わせ

2020年6月建築の戸建です。

  • 築10年以内
  • 低層住居専用地域に立地
フロア画像を拡大する
画像枚数4枚
価格
5,500万円
所在地
大阪府茨木市北春日丘4丁目
交通

大阪モノレール彩都線阪大病院前」駅徒歩16分

大阪モノレール彩都線公園東口」駅徒歩19分

間取り/建物面積
2LDK / 71.74m²
土地面積
82.03m²
築年月
2020年06月築
  • 気になるリストへ
  • 比較リストへ

資料請求・お問い合わせ

◆北大阪急行南北線「箕面船場阪大前」駅徒歩13分◆土地158.87u◆建物135.54u

  • 建物面積が100m?以上
フロア画像を拡大する
画像枚数1枚
価格
3,580万円
所在地
大阪府箕面市稲6丁目
交通

北大阪急行南北線箕面船場阪大前」駅徒歩13分

間取り/建物面積
5LDK / 135.54m²
土地面積
158.87m²
築年月
1980年06月築
  • 気になるリストへ
  • 比較リストへ

資料請求・お問い合わせ

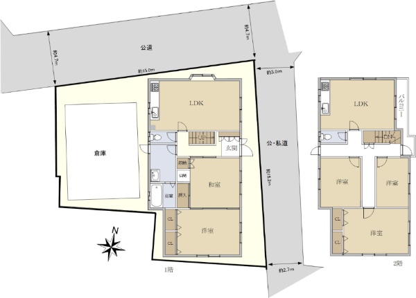
☆近鉄南大阪線【河内松原】駅徒歩8分!  物件担当:山中雄人

  • 駅徒歩10分以内
  • 建物面積が100m?以上
画像枚数14枚
価格
1,980万円
所在地
大阪府松原市上田7丁目
交通

近鉄南大阪線河内松原」駅徒歩8分

間取り/建物面積
3LDK / 145.8m²
土地面積
57.54m²
築年月
1996年03月築
  • 気になるリストへ
  • 比較リストへ

資料請求・お問い合わせ

☆普通車2台駐車可(車種による) 物件担当:山中雄人

  • 築10年以内
  • 南道路(南西・南東含む)に接道
  • 低層住居専用地域に立地
  • 建物面積が100m?以上
画像枚数12枚
価格
3,280万円
所在地
大阪府堺市中区福田
交通

南海高野線北野田」駅バス12分徒歩3分

間取り/建物面積
3SLDK / 105.57m²
土地面積
114.71m²
築年月
2017年04月築
  • 気になるリストへ
  • 比較リストへ

資料請求・お問い合わせ

◆オーナーチェンジ物件 ◆平成6年6月建築

画像枚数8枚
価格
1,980万円
所在地
兵庫県宝塚市安倉中1丁目
交通

JR福知山線(宝塚線)中山寺」駅徒歩28分

間取り/建物面積
3SLDK / 85.7m²
土地面積
80.49m²
築年月
1994年06月築
  • 気になるリストへ
  • 比較リストへ

資料請求・お問い合わせ

チェックした物件をまとめて

資料請求・お問い合わせ

  • 新着1週間以内に登録された物件
  • 価格更新1週間以内に価格が更新された物件
  • おすすめ物件営業センターのおすすめ物件
  • リフォーム済みリフォームやリノベーション済み
  • 駅徒歩10分以内駅徒歩10分以内
  • 築10年以内築10年以内
  • 南道路(南西・南東含む)南道路(南西・南東含む)に接道
  • 角地角地
  • 低層住居専用地域低層住居専用地域に立地
  • 建物面積100m²以上建物面積が100m²以上
  • 新築新築物件
  • 【現地見学】オープンハウス開催オープンハウス・予約制内覧会
  • 予告広告販売開始まで契約または予約の申し込みは出来ません