石神井営業センター
  • TEL
    0120-491-587
  • 最寄駅
    • ・西武池袋・豊島線 石神井公園駅

取扱物件一覧(中古一戸建て)

  • マンション
  • 中古一戸建て
  • 新築一戸建て
  • 土地
  • 事業用
  • 投資用

12件中1〜12件を表示

  • 画像を大きく表示
  • リストで表示

表示件数

並び替え

チェックした物件をまとめて

資料請求・お問い合わせ

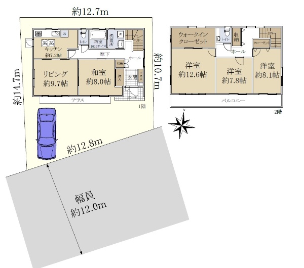
4沿線利用可能〜収納豊富な4LDK〜

  • 駅徒歩10分以内
  • 築10年以内
  • 角地
  • 建物面積が100m?以上
フロア画像を拡大する
画像枚数25枚
価格
5,980万円
所在地
東京都北区田端新町2丁目
交通

山手線田端」駅徒歩11分

日暮里舎人ライナー赤土小学校前」駅徒歩4分

山手線西日暮里」駅徒歩14分

間取り/建物面積
4LDK / 100.39m²
土地面積
55.47m²
築年月
2019年02月築
  • 気になるリストへ
  • 比較リストへ

資料請求・お問い合わせ

〜旭化成ホームズ(株)施工の中古戸建〜 お車2台駐車可能(車種による)

  • リフォーム済み
  • 南道路(南西・南東含む)に接道
  • 低層住居専用地域に立地
フロア画像を拡大する
画像枚数22枚
価格
5,480万円
所在地
東京都練馬区高野台4丁目
交通

西武池袋・豊島線石神井公園」駅徒歩15分

西武池袋・豊島線練馬高野台」駅徒歩11分

間取り/建物面積
2LDK / 75.33m²
土地面積
80.64m²
築年月
1993年01月築
  • 気になるリストへ
  • 比較リストへ

資料請求・お問い合わせ

西武池袋線「富士見台」駅徒歩12分 閑静な住宅街に佇む3LDK戸建 

  • 低層住居専用地域に立地
フロア画像を拡大する
画像枚数30枚
価格
7,060万円
所在地
東京都練馬区富士見台1丁目
交通

西武池袋・豊島線富士見台」駅徒歩12分

西武池袋・豊島線練馬高野台」駅徒歩15分

間取り/建物面積
3LDK / 99.78m²
土地面積
110m²
築年月
2001年10月築
  • 気になるリストへ
  • 比較リストへ

資料請求・お問い合わせ

土地面積290.91u(88坪)開口部全居室南向きの5LDK

  • 低層住居専用地域に立地
  • 建物面積が100m?以上
フロア画像を拡大する
画像枚数30枚
価格
1億4,000万円
所在地
東京都練馬区貫井4丁目
交通

西武池袋・豊島線富士見台」駅徒歩13分

西武池袋・豊島線練馬高野台」駅徒歩14分

西武池袋・豊島線中村橋」駅徒歩18分

間取り/建物面積
5LDK / 145.72m²
土地面積
290.91m²
築年月
2009年01月築
  • 気になるリストへ
  • 比較リストへ

資料請求・お問い合わせ

兼六ホーム株式会社旧分譲〜閑静な住宅街に佇む4LDK〜

  • 低層住居専用地域に立地
フロア画像を拡大する
画像枚数26枚
価格
5,780万円
所在地
東京都練馬区三原台2丁目
交通

西武池袋・豊島線石神井公園」駅バス14分徒歩2分

東武東上線成増」駅バス18分徒歩5分

間取り/建物面積
4LDK / 92.12m²
土地面積
100.28m²
築年月
2004年06月築
  • 気になるリストへ
  • 比較リストへ

資料請求・お問い合わせ

石神井公園まで駅徒歩9分 ミサワ東洋(現ミサワホーム)施工の注文住宅

  • 駅徒歩10分以内
  • 建物面積が100m?以上
フロア画像を拡大する
画像枚数25枚
価格
8,480万円
所在地
東京都練馬区石神井町2丁目
交通

西武池袋・豊島線石神井公園」駅徒歩9分

西武新宿線上石神井」駅バス27分徒歩2分

東京メトロ有楽町線地下鉄成増」駅バス29分徒歩2分

間取り/建物面積
2LDK / 139.32m²
土地面積
161.17m²
築年月
2000年03月築
  • 気になるリストへ
  • 比較リストへ

資料請求・お問い合わせ

都立石神井公園まで徒歩2分 南西・北西接道の角地 日当たり良好

  • リフォーム済み
  • 駅徒歩10分以内
  • 南道路(南西・南東含む)に接道
  • 角地
  • 建物面積が100m?以上
フロア画像を拡大する
画像枚数25枚
価格
1億6,800万円
所在地
東京都練馬区石神井町5丁目
交通

西武池袋・豊島線石神井公園」駅徒歩9分

西武池袋・豊島線石神井公園」駅バス7分徒歩1分

間取り/建物面積
3LDK / 119.52m²
土地面積
137.68m²
築年月
1996年05月築
  • 気になるリストへ
  • 比較リストへ

資料請求・お問い合わせ

閑静な住宅街の4LDK物件 

  • 築10年以内
フロア画像を拡大する
画像枚数23枚
価格
4,480万円
所在地
東京都江戸川区中央1丁目
交通

総武線新小岩」駅徒歩23分

総武線新小岩」駅バス6分徒歩5分

間取り/建物面積
4LDK / 87.77m²
土地面積
53.18m²
築年月
2017年06月築
  • 気になるリストへ
  • 比較リストへ

資料請求・お問い合わせ

積水ハウス施工〜収納豊富な3LDK〜

  • 低層住居専用地域に立地
  • 建物面積が100m?以上
フロア画像を拡大する
画像枚数21枚
価格
5,800万円
所在地
東京都練馬区三原台2丁目
交通

西武池袋・豊島線石神井公園」駅徒歩23分

西武池袋・豊島線石神井公園」駅バス9分徒歩9分

間取り/建物面積
3LDK / 104.33m²
土地面積
118.38m²
築年月
2005年01月築
  • 気になるリストへ
  • 比較リストへ

資料請求・お問い合わせ

西武池袋線『石神井公園』駅徒歩8分の戸建住宅 2018年築

  • 駅徒歩10分以内
  • 築10年以内
フロア画像を拡大する
画像枚数20枚
価格
9,200万円
所在地
東京都練馬区高野台5丁目
交通

西武池袋・豊島線石神井公園」駅徒歩8分

西武池袋・豊島線練馬高野台」駅徒歩15分

間取り/建物面積
2LDK / 98.59m²
土地面積
102.92m²
築年月
2018年09月築
  • 気になるリストへ
  • 比較リストへ

資料請求・お問い合わせ

閑静な住宅街に存する戸建住宅です コンビニ徒歩5分の立地

  • 低層住居専用地域に立地
フロア画像を拡大する
画像枚数16枚
価格
2,400万円
所在地
東京都練馬区土支田2丁目
交通

都営大江戸線光が丘」駅徒歩20分

都営大江戸線光が丘」駅バス11分徒歩6分

間取り/建物面積
4DK / 84.2m²
土地面積
74.21m²
築年月
1980年09月築
  • 気になるリストへ
  • 比較リストへ

資料請求・お問い合わせ

土地面積:158.60u(47.97坪) 「石神井公園」駅まで徒歩13分 陽当たり良好

  • 南道路(南西・南東含む)に接道
  • 建物面積が100m?以上
フロア画像を拡大する
画像枚数15枚
価格
1億3,000万円
所在地
東京都練馬区高野台4丁目
交通

西武池袋・豊島線練馬高野台」駅徒歩12分

西武池袋・豊島線石神井公園」駅徒歩13分

間取り/建物面積
4LDK / 137.4m²
土地面積
158.6m²
築年月
2003年09月築
  • 気になるリストへ
  • 比較リストへ

資料請求・お問い合わせ

チェックした物件をまとめて

資料請求・お問い合わせ

  • 新着1週間以内に登録された物件
  • 価格更新1週間以内に価格が更新された物件
  • おすすめ物件営業センターのおすすめ物件
  • リフォーム済みリフォームやリノベーション済み
  • 駅徒歩10分以内駅徒歩10分以内
  • 築10年以内築10年以内
  • 南道路(南西・南東含む)南道路(南西・南東含む)に接道
  • 角地角地
  • 低層住居専用地域低層住居専用地域に立地
  • 建物面積100m²以上建物面積が100m²以上
  • 新築新築物件
  • 【現地見学】オープンハウス開催オープンハウス・予約制内覧会
  • 予告広告販売開始まで契約または予約の申し込みは出来ません