高槻営業センター
  • TEL
    0120-170-806
  • 最寄駅
    • ・阪急電鉄京都線 高槻市駅
    • ・東海道本線 高槻駅

取扱物件一覧(中古一戸建て)

  • マンション
  • 中古一戸建て
  • 新築一戸建て
  • 土地
  • 事業用
  • 投資用

20件中1〜20件を表示

  • 画像を大きく表示
  • リストで表示

表示件数

並び替え

チェックした物件をまとめて

資料請求・お問い合わせ

新築完成済! 内覧可能! 耐震等級3! 物件担当:吾勝(あかつ)

  • 築10年以内
フロア画像を拡大する
画像枚数20枚
価格
4,380万円
所在地
大阪府高槻市高西町
交通

阪急京都線高槻市」駅徒歩20分

JR東海道本線高槻」駅徒歩21分

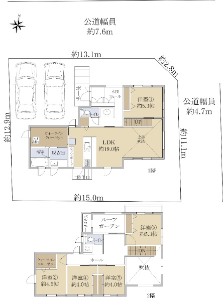
間取り/建物面積
2SLDK / 88.29m²
土地面積
126.4m²
築年月
2025年03月築
  • 気になるリストへ
  • 比較リストへ

資料請求・お問い合わせ

◇北東角地!約19.5帖の広々としたLD・K

  • 築10年以内
  • 角地
フロア画像を拡大する
画像枚数20枚
価格
4,650万円
所在地
大阪府高槻市柳川町2丁目
交通

阪急京都線総持寺」駅徒歩15分

間取り/建物面積
3LDK / 87.07m²
土地面積
91.7m²
築年月
2024年06月築
  • 気になるリストへ
  • 比較リストへ

資料請求・お問い合わせ

◇屋上にスカイバルコニーのある戸建◇

  • 築10年以内
フロア画像を拡大する
画像枚数28枚
価格
4,980万円
所在地
大阪府高槻市川西町3丁目
交通

JR東海道本線高槻」駅徒歩17分

間取り/建物面積
3LDK / 99.58m²
土地面積
91.02m²
築年月
2024年03月築
  • 気になるリストへ
  • 比較リストへ

資料請求・お問い合わせ

令和4年8月建築、室内大変綺麗に使用されています【担当:松浦】

  • 築10年以内
フロア画像を拡大する
画像枚数23枚
価格
2,180万円
所在地
大阪府高槻市津之江町2丁目
交通

阪急京都線高槻市」駅徒歩28分

間取り/建物面積
2LDK / 67.14m²
土地面積
41.23m²
築年月
2022年08月築
  • 気になるリストへ
  • 比較リストへ

資料請求・お問い合わせ

オール電化住宅(ZEH仕様)

  • 築10年以内
  • 南道路(南西・南東含む)に接道
  • 建物面積が100m?以上
フロア画像を拡大する
画像枚数27枚
価格
4,380万円
所在地
大阪府高槻市寿町1丁目
交通

阪急京都線富田」駅徒歩15分

JR東海道本線摂津富田」駅徒歩18分

間取り/建物面積
5LDK / 128.86m²
土地面積
81.15m²
築年月
2021年03月築
  • 気になるリストへ
  • 比較リストへ

資料請求・お問い合わせ

☆電動シャッター付き車庫!室内丁寧にお使いです! 物件担当:吾勝(あかつ)

  • 築10年以内
フロア画像を拡大する
画像枚数25枚
価格
4,080万円
所在地
大阪府高槻市芝生町1丁目
交通

阪急京都線高槻市」駅バス12分徒歩6分

阪急京都線富田」駅バス15分徒歩6分

間取り/建物面積
3LDK / 90m²
土地面積
100.01m²
築年月
2020年12月築
  • 気になるリストへ
  • 比較リストへ

資料請求・お問い合わせ

◎こだわりの内装!是非内覧してくだい◎テクノストラクチャー工法

  • 築10年以内
  • 南道路(南西・南東含む)に接道
  • 低層住居専用地域に立地
  • 建物面積が100m?以上
フロア画像を拡大する
画像枚数20枚
価格
6,490万円
所在地
大阪府高槻市日吉台二番町
交通

JR東海道本線高槻」駅バス20分徒歩2分

間取り/建物面積
2LDK / 123.9m²
土地面積
167.73m²
築年月
2018年05月築
  • 気になるリストへ
  • 比較リストへ

資料請求・お問い合わせ

■大和ハウス施工の建物!■角地!■オール電化住宅!

  • 築10年以内
  • 角地
  • 低層住居専用地域に立地
フロア画像を拡大する
画像枚数15枚
価格
4,180万円
所在地
大阪府高槻市奈佐原元町
交通

JR東海道本線摂津富田」駅バス15分徒歩3分

間取り/建物面積
4LDK / 99.46m²
土地面積
109.63m²
築年月
2017年04月築
  • 気になるリストへ
  • 比較リストへ

資料請求・お問い合わせ

◆住友不動産施工・オール電化住宅! 担当:酒井(さかい)

  • 低層住居専用地域に立地
  • 建物面積が100m?以上
フロア画像を拡大する
画像枚数19枚
価格
2,980万円
所在地
大阪府高槻市清水台1丁目
交通

JR東海道本線高槻」駅バス20分徒歩9分

間取り/建物面積
4LDK / 118.41m²
土地面積
145.39m²
築年月
2008年03月築
  • 気になるリストへ
  • 比較リストへ

資料請求・お問い合わせ

◆土地108.83坪!◆建物46.06坪!◆平成18年5月築!

  • 低層住居専用地域に立地
  • 建物面積が100m?以上
フロア画像を拡大する
画像枚数24枚
価格
4,980万円
所在地
大阪府高槻市大和1丁目
交通

JR東海道本線摂津富田」駅バス23分徒歩4分

間取り/建物面積
6SLDK / 152.28m²
土地面積
359.8m²
築年月
2006年05月築
  • 気になるリストへ
  • 比較リストへ

資料請求・お問い合わせ

2台分駐車可能なの掘込車庫(車種による)! 担当:吾勝(あかつ)

  • 低層住居専用地域に立地
  • 建物面積が100m?以上
フロア画像を拡大する
画像枚数30枚
価格
3,980万円
所在地
大阪府高槻市花林苑
交通

JR東海道本線高槻」駅バス15分徒歩5分

間取り/建物面積
4LDK / 114.06m²
土地面積
188.17m²
築年月
2004年09月築
  • 気になるリストへ
  • 比較リストへ

資料請求・お問い合わせ

■2沿線利用可!■南西角家! ■日当たり良好!

  • 駅徒歩10分以内
  • 南道路(南西・南東含む)に接道
  • 低層住居専用地域に立地
  • 建物面積が100m?以上
フロア画像を拡大する
画像枚数26枚
価格
5,190万円
所在地
大阪府高槻市桜ケ丘南町
交通

阪急京都線富田」駅徒歩8分

JR東海道本線摂津富田」駅徒歩9分

阪急京都線高槻市」駅バス11分徒歩1分

間取り/建物面積
4LDK / 112.96m²
土地面積
126.46m²
築年月
2003年11月築
  • 気になるリストへ
  • 比較リストへ

資料請求・お問い合わせ

土地面積:195.26u(約59.06坪)、平成11年8月建築の戸建です!

  • 南道路(南西・南東含む)に接道
  • 角地
  • 建物面積が100m?以上
フロア画像を拡大する
画像枚数5枚
価格
2,480万円
所在地
大阪府高槻市郡家本町
交通

JR東海道本線高槻」駅バス15分徒歩4分

間取り/建物面積
4LDK / 177.44m²
土地面積
195.26m²
築年月
1999年08月築
  • 気になるリストへ
  • 比較リストへ

資料請求・お問い合わせ

現況空家!弊社に鍵有り!お気軽にご覧ください。 担当:吾勝(あかつ)

  • 建物面積が100m?以上
フロア画像を拡大する
画像枚数30枚
価格
2,280万円
所在地
大阪府高槻市山手町1丁目
交通

JR東海道本線高槻」駅バス13分徒歩3分

間取り/建物面積
5LDK / 105.75m²
土地面積
89.63m²
築年月
1992年06月築
  • 気になるリストへ
  • 比較リストへ

資料請求・お問い合わせ

三井ホーム施工の建物! 土地面積:254.52u (約76.99坪) 担当:酒井(さかい)

  • 南道路(南西・南東含む)に接道
  • 低層住居専用地域に立地
  • 建物面積が100m?以上
フロア画像を拡大する
画像枚数11枚
価格
2,060万円
所在地
大阪府高槻市大和2丁目
交通

JR東海道本線摂津富田」駅バス23分徒歩7分

間取り/建物面積
4LDK / 154.15m²
土地面積
254.52m²
築年月
1990年12月築
  • 気になるリストへ
  • 比較リストへ

資料請求・お問い合わせ

建物延床面積205.06uの6LDK・土地面積約107.5坪・南東側道路

  • 南道路(南西・南東含む)に接道
  • 低層住居専用地域に立地
  • 建物面積が100m?以上
フロア画像を拡大する
画像枚数10枚
価格
8,480万円
所在地
大阪府高槻市芝谷町
交通

JR東海道本線高槻」駅バス16分徒歩5分

間取り/建物面積
6LDK / 205.06m²
土地面積
355.53m²
築年月
1988年03月築
  • 気になるリストへ
  • 比較リストへ

資料請求・お問い合わせ

土地面積:185.18u(約56.01坪)の整形地です【担当:松浦】

  • 低層住居専用地域に立地
  • 建物面積が100m?以上
フロア画像を拡大する
画像枚数19枚
価格
3,780万円
所在地
大阪府高槻市芝谷町
交通

JR東海道本線高槻」駅バス16分徒歩4分

間取り/建物面積
4LDK / 103.09m²
土地面積
185.18m²
築年月
1983年09月築
  • 気になるリストへ
  • 比較リストへ

資料請求・お問い合わせ

阪急京都線「桂駅」徒歩22分、4LDKの間取りの戸建です!【担当:松浦】

  • 低層住居専用地域に立地
フロア画像を拡大する
画像枚数18枚
価格
2,480万円
所在地
京都府京都市西京区樫原上池田町
交通

阪急京都線」駅徒歩22分

間取り/建物面積
4LDK / 79.48m²
土地面積
81.47m²
築年月
1983年07月築
  • 気になるリストへ
  • 比較リストへ

資料請求・お問い合わせ

■高台のため眺望良好! ■全居室6帖以上のゆったり6LDK!

  • 低層住居専用地域に立地
  • 建物面積が100m?以上
フロア画像を拡大する
画像枚数26枚
価格
2,380万円
所在地
大阪府高槻市安岡寺町3丁目
交通

JR東海道本線高槻」駅バス18分徒歩6分

阪急京都線高槻市」駅バス13分徒歩4分

JR東海道本線高槻」駅バス20分徒歩4分

間取り/建物面積
6LDK / 135.01m²
土地面積
161.98m²
築年月
1978年05月築
  • 気になるリストへ
  • 比較リストへ

資料請求・お問い合わせ

6駅利用可!南東角地! 物件担当:吾勝(あかつ)

  • 駅徒歩10分以内
  • 南道路(南西・南東含む)に接道
  • 角地
  • 建物面積が100m?以上
画像枚数5枚
価格
3,480万円
所在地
大阪府大阪市天王寺区清水谷町
交通

大阪メトロ谷町線谷町六丁目」駅徒歩7分

近鉄難波・奈良線大阪上本町」駅徒歩16分

JR大阪環状線玉造」駅徒歩13分

間取り/建物面積
4DK / 101m²
土地面積
31.63m²
築年月
1970年08月築
  • 気になるリストへ
  • 比較リストへ

資料請求・お問い合わせ

チェックした物件をまとめて

資料請求・お問い合わせ

  • 新着1週間以内に登録された物件
  • 価格更新1週間以内に価格が更新された物件
  • おすすめ物件営業センターのおすすめ物件
  • リフォーム済みリフォームやリノベーション済み
  • 駅徒歩10分以内駅徒歩10分以内
  • 築10年以内築10年以内
  • 南道路(南西・南東含む)南道路(南西・南東含む)に接道
  • 角地角地
  • 低層住居専用地域低層住居専用地域に立地
  • 建物面積100m²以上建物面積が100m²以上
  • 新築新築物件
  • 【現地見学】オープンハウス開催オープンハウス・予約制内覧会
  • 予告広告販売開始まで契約または予約の申し込みは出来ません