戸塚営業センター
  • TEL
    0120-045-211
  • 最寄駅
    • ・東海道本線 戸塚駅
    • ・横浜市ブルーライン 戸塚駅

取扱物件一覧(中古一戸建て)

  • マンション
  • 中古一戸建て
  • 新築一戸建て
  • 土地
  • 事業用
  • 投資用

41件中1〜30件を表示

  • 画像を大きく表示
  • リストで表示

表示件数

並び替え

チェックした物件をまとめて

資料請求・お問い合わせ

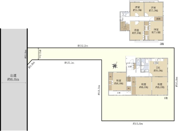
■2001年12月築の木造3階建

  • 南道路(南西・南東含む)に接道
フロア画像を拡大する
画像枚数18枚
価格
3,680万円
所在地
神奈川県横浜市磯子区洋光台1丁目
交通

京浜東北・根岸線洋光台」駅徒歩13分

間取り/建物面積
4LDK / 93.44m²
土地面積
80.45m²
築年月
2001年12月築
  • 気になるリストへ
  • 比較リストへ

資料請求・お問い合わせ

☆南側道路に面するため陽当たり良好です! ☆収納豊富

  • リフォーム済み
  • 南道路(南西・南東含む)に接道
フロア画像を拡大する
画像枚数16枚
価格
3,480万円
所在地
神奈川県横浜市戸塚区平戸3丁目
交通

横須賀線東戸塚」駅徒歩23分

湘南新宿ライン(宇都宮〜逗子)東戸塚」駅バス9分徒歩4分

京急本線戸部」駅バス25分徒歩4分

間取り/建物面積
2SLDK / 92.59m²
土地面積
53.8m²
築年月
2013年10月築
  • 気になるリストへ
  • 比較リストへ

資料請求・お問い合わせ

二方道路のため日当たり良好 オーナーチェンジ物件 利回り8.37%

  • 駅徒歩10分以内
  • 南道路(南西・南東含む)に接道
  • 低層住居専用地域に立地
  • 建物面積が100m?以上
フロア画像を拡大する
画像枚数13枚
価格
2,580万円
所在地
神奈川県逗子市池子3丁目
交通

京急逗子線神武寺」駅徒歩8分

横須賀線東逗子」駅徒歩12分

間取り/建物面積
4LDK / 102.47m²
土地面積
105.5m²
築年月
1989年04月築
  • 気になるリストへ
  • 比較リストへ

資料請求・お問い合わせ

■1DK ■徒歩5分圏内に保育園・公園・コンビニ・郵便局あります

フロア画像を拡大する
画像枚数30枚
価格
3,500万円
所在地
東京都足立区千住元町
交通

常磐線北千住」駅徒歩18分

常磐線北千住」駅バス9分徒歩6分

東京メトロ千代田線北千住」駅徒歩18分

間取り/建物面積
1DK / 39.74m²
土地面積
32.36m²
築年月
1978年03月築
  • 気になるリストへ
  • 比較リストへ

資料請求・お問い合わせ

●全居室南向き 日当たり良好

  • 低層住居専用地域に立地
  • 建物面積が100m?以上
フロア画像を拡大する
画像枚数26枚
価格
4,490万円
所在地
神奈川県横浜市泉区西が岡1丁目
交通

相鉄いずみ野線弥生台」駅徒歩12分

横浜市ブルーライン中田」駅徒歩23分

東海道本線戸塚」駅バス17分徒歩4分

間取り/建物面積
4LDK / 135.61m²
土地面積
195.87m²
築年月
1988年02月築
  • 気になるリストへ
  • 比較リストへ

資料請求・お問い合わせ

■大和ハウス施工住宅 ■南東・南西角地につき陽当り良好

  • 南道路(南西・南東含む)に接道
  • 角地
  • 低層住居専用地域に立地
  • 建物面積が100m?以上
フロア画像を拡大する
画像枚数24枚
価格
6,290万円
所在地
神奈川県横浜市戸塚区汲沢3丁目
交通

横浜市ブルーライン踊場」駅徒歩19分

東海道本線戸塚」駅バス9分徒歩6分

横須賀線戸塚」駅バス9分徒歩6分

間取り/建物面積
4LDK / 132.09m²
土地面積
207.19m²
築年月
1998年04月築
  • 気になるリストへ
  • 比較リストへ

資料請求・お問い合わせ

◆土地面積:104.37u ◆建物面積:83.44u 

  • 駅徒歩10分以内
  • 低層住居専用地域に立地
フロア画像を拡大する
画像枚数24枚
価格
3,490万円
所在地
神奈川県横浜市栄区柏陽
交通

京浜東北・根岸線本郷台」駅徒歩9分

東海道本線大船」駅バス18分徒歩7分

間取り/建物面積
4LDK / 83.44m²
土地面積
104.37m²
築年月
1994年07月築
  • 気になるリストへ
  • 比較リストへ

資料請求・お問い合わせ

【リフォーム履歴有】オーナー様こだわりの注文住宅♪ カースペース2台分!

  • リフォーム済み
  • 低層住居専用地域に立地
  • 建物面積が100m?以上
フロア画像を拡大する
画像枚数24枚
価格
4,450万円
所在地
神奈川県横浜市戸塚区平戸3丁目
交通

横須賀線東戸塚」駅徒歩20分

湘南新宿ライン(宇都宮〜逗子)東戸塚」駅徒歩20分

横須賀線東戸塚」駅バス10分徒歩3分

間取り/建物面積
4LDK / 117.58m²
土地面積
156.08m²
築年月
1998年05月築
  • 気になるリストへ
  • 比較リストへ

資料請求・お問い合わせ

閑静な分譲地 南東、南西の角地 陽当たり良好 

  • リフォーム済み
  • 南道路(南西・南東含む)に接道
  • 角地
  • 低層住居専用地域に立地
  • 建物面積が100m?以上
フロア画像を拡大する
画像枚数24枚
価格
3,870万円
所在地
神奈川県横須賀市湘南鷹取2丁目
交通

京急本線追浜」駅徒歩19分

間取り/建物面積
3LDK / 177.23m²
土地面積
191.73m²
築年月
1980年12月築
  • 気になるリストへ
  • 比較リストへ

資料請求・お問い合わせ

☆鉄筋コンクリート造3階建 ☆事務所利用も可能 ☆エレベーター、露天風呂有

  • 南道路(南西・南東含む)に接道
  • 建物面積が100m?以上
フロア画像を拡大する
画像枚数23枚
価格
6,780万円
所在地
神奈川県横浜市戸塚区鳥が丘
交通

横浜市ブルーライン踊場」駅徒歩14分

東海道本線戸塚」駅バス10分徒歩4分

相鉄いずみ野線弥生台」駅バス10分徒歩3分

間取り/建物面積
2LDK / 228.26m²
土地面積
167.06m²
築年月
1995年08月築
  • 気になるリストへ
  • 比較リストへ

資料請求・お問い合わせ

●2世帯住宅 3LDK+1LDK(畳スペース含む)+S

  • 南道路(南西・南東含む)に接道
  • 低層住居専用地域に立地
  • 建物面積が100m?以上
フロア画像を拡大する
画像枚数23枚
価格
4,390万円
所在地
神奈川県横浜市戸塚区上矢部町
交通

東海道本線戸塚」駅バス17分徒歩3分

間取り/建物面積
4SLDK / 144.83m²
土地面積
181.48m²
築年月
2007年07月築
  • 気になるリストへ
  • 比較リストへ

資料請求・お問い合わせ

オープンハウス☆旭化成施工の二世帯住宅 ☆へーベルハウス ☆2000年築 ☆軽量鉄骨造

  • 南道路(南西・南東含む)に接道
  • 低層住居専用地域に立地
  • 建物面積が100m?以上
フロア画像を拡大する
画像枚数22枚
価格
5,380万円
所在地
神奈川県横浜市戸塚区南舞岡1丁目
交通

横浜市ブルーライン下永谷」駅徒歩13分

横浜市ブルーライン舞岡」駅徒歩14分

横浜市ブルーライン上永谷」駅徒歩22分

間取り/建物面積
4LDK / 149.12m²
土地面積
188.37m²
築年月
2000年11月築
  • 気になるリストへ
  • 比較リストへ

資料請求・お問い合わせ

【空き家】旭化成工業施工の注文住宅!リフォーム履歴あり♪

  • リフォーム済み
  • 低層住居専用地域に立地
  • 建物面積が100m?以上
フロア画像を拡大する
画像枚数20枚
価格
5,280万円
所在地
神奈川県横浜市栄区元大橋2丁目
交通

京浜東北・根岸線港南台」駅徒歩18分

間取り/建物面積
5LDK / 171.4m²
土地面積
222.18m²
築年月
1987年11月築
  • 気になるリストへ
  • 比較リストへ

資料請求・お問い合わせ

■2015年2月築の戸建 ■南向きにつき、日当たり良好 ■閑静な住宅地 

  • 南道路(南西・南東含む)に接道
  • 低層住居専用地域に立地
  • 建物面積が100m?以上
フロア画像を拡大する
画像枚数20枚
価格
4,180万円
所在地
神奈川県横浜市南区六ツ川3丁目
交通

京急本線井土ヶ谷」駅バス15分徒歩5分

横須賀線保土ケ谷」駅バス22分徒歩5分

間取り/建物面積
3LDK / 100.55m²
土地面積
128.3m²
築年月
2015年02月築
  • 気になるリストへ
  • 比較リストへ

資料請求・お問い合わせ

◆西・南・東の三方角地 ◆閑静な住宅街に佇む約146坪の敷地

  • 南道路(南西・南東含む)に接道
  • 角地
  • 低層住居専用地域に立地
  • 建物面積が100m?以上
フロア画像を拡大する
画像枚数20枚
価格
1億7,800万円
所在地
神奈川県横浜市港南区日限山3丁目
交通

横浜市ブルーライン舞岡」駅バス6分徒歩5分

東海道本線戸塚」駅バス16分徒歩5分

横須賀線戸塚」駅バス16分徒歩5分

間取り/建物面積
4LDK / 203.28m²
土地面積
485m²
築年月
1979年10月築
  • 気になるリストへ
  • 比較リストへ

資料請求・お問い合わせ

2008年築!長後駅まで徒歩13分!

  • 低層住居専用地域に立地
フロア画像を拡大する
画像枚数19枚
価格
3,380万円
所在地
神奈川県藤沢市長後
交通

小田急江ノ島線長後」駅徒歩13分

間取り/建物面積
4LDK / 94.39m²
土地面積
120.11m²
築年月
2008年05月築
  • 気になるリストへ
  • 比較リストへ

資料請求・お問い合わせ

☆☆☆オーナーチェンジ戸建2棟 個別売却可能☆☆☆

  • 低層住居専用地域に立地
  • 建物面積が100m?以上
フロア画像を拡大する
画像枚数19枚
価格
8,000万円
所在地
神奈川県横浜市栄区小菅ケ谷2丁目
交通

京浜東北・根岸線本郷台」駅徒歩15分

東海道本線大船」駅徒歩21分

間取り/建物面積
2SLDK / 122.56m²
土地面積
678.2m²
築年月
1997年06月築
  • 気になるリストへ
  • 比較リストへ

資料請求・お問い合わせ

●ブルーライン「中田」駅平坦徒歩9分 ●全居室南東向き 日当たり良好

  • 駅徒歩10分以内
  • 低層住居専用地域に立地
フロア画像を拡大する
画像枚数18枚
価格
4,480万円
所在地
神奈川県横浜市泉区中田東4丁目
交通

横浜市ブルーライン中田」駅徒歩9分

横浜市ブルーライン立場」駅徒歩18分

間取り/建物面積
3LDK / 98.32m²
土地面積
106.96m²
築年月
2015年02月築
  • 気になるリストへ
  • 比較リストへ

資料請求・お問い合わせ

☆積水ハウス施工イズシリーズ注文住宅☆床面積45坪以上/土地面積95坪以上

  • 南道路(南西・南東含む)に接道
  • 低層住居専用地域に立地
  • 建物面積が100m?以上
フロア画像を拡大する
画像枚数18枚
価格
7,980万円
所在地
神奈川県横浜市戸塚区柏尾町
交通

横須賀線東戸塚」駅バス11分徒歩9分

東海道本線戸塚」駅バス8分徒歩12分

横浜市ブルーライン上永谷」駅バス12分徒歩11分

間取り/建物面積
4LDK / 179.4m²
土地面積
322.52m²
築年月
1992年11月築
  • 気になるリストへ
  • 比較リストへ

資料請求・お問い合わせ

☆戸塚駅まで徒歩14分 ☆閑静な住宅地

  • 南道路(南西・南東含む)に接道
フロア画像を拡大する
画像枚数16枚
価格
3,980万円
所在地
神奈川県横浜市戸塚区矢部町
交通

東海道本線戸塚」駅徒歩14分

間取り/建物面積
4LDK / 87.57m²
土地面積
56.37m²
築年月
2005年07月築
  • 気になるリストへ
  • 比較リストへ

資料請求・お問い合わせ

■旭化成ホームズ(スクラムハウス)施工住宅 ■駐車スペース2台以上可■5LDK

  • 南道路(南西・南東含む)に接道
  • 低層住居専用地域に立地
  • 建物面積が100m?以上
フロア画像を拡大する
画像枚数16枚
価格
3,490万円
所在地
神奈川県横浜市保土ケ谷区今井町
交通

湘南新宿ライン(宇都宮〜逗子)東戸塚」駅バス12分徒歩5分

横須賀線保土ケ谷」駅バス20分徒歩2分

横須賀線東戸塚」駅バス12分徒歩5分

間取り/建物面積
5LDK / 135.8m²
土地面積
255.09m²
築年月
1996年12月築
  • 気になるリストへ
  • 比較リストへ

資料請求・お問い合わせ

■土地面積:152.48u ■4LDK+DK

  • 建物面積が100m?以上
フロア画像を拡大する
画像枚数16枚
価格
980万円
所在地
神奈川県横浜市保土ケ谷区法泉1丁目
交通

横須賀線保土ケ谷」駅バス21分徒歩3分

間取り/建物面積
4LDK / 135.8m²
土地面積
152.48m²
築年月
1961年01月築
  • 気になるリストへ
  • 比較リストへ

資料請求・お問い合わせ

☆北東・北西角地 ☆ロフト約6.2帖付き ☆2023年3月築

  • 築10年以内
  • 角地
  • 低層住居専用地域に立地
フロア画像を拡大する
画像枚数15枚
価格
5,300万円
所在地
神奈川県横浜市港南区下永谷5丁目
交通

横浜市ブルーライン下永谷」駅徒歩16分

横浜市ブルーライン舞岡」駅徒歩21分

間取り/建物面積
3LDK / 86.26m²
土地面積
107.39m²
築年月
2023年03月築
  • 気になるリストへ
  • 比較リストへ

資料請求・お問い合わせ

◇3駅利用可能!車でのアクセスも便利な立地! ◇室内大変丁寧にご使用です!

  • 南道路(南西・南東含む)に接道
  • 低層住居専用地域に立地
フロア画像を拡大する
画像枚数15枚
価格
2,980万円
所在地
神奈川県横浜市保土ケ谷区新桜ケ丘1丁目
交通

横須賀線東戸塚」駅バス11分徒歩7分

湘南新宿ライン(宇都宮〜逗子)保土ケ谷」駅バス13分徒歩6分

相鉄本線星川」駅バス25分徒歩6分

間取り/建物面積
3LDK / 73.29m²
土地面積
91.75m²
築年月
2014年07月築
  • 気になるリストへ
  • 比較リストへ

資料請求・お問い合わせ

◆3LDK ◆2004年3月築 ◆二面採光 ◆オール電化

  • 南道路(南西・南東含む)に接道
フロア画像を拡大する
画像枚数15枚
価格
2,480万円
所在地
神奈川県藤沢市葛原
交通

小田急江ノ島線長後」駅バス15分徒歩3分

小田急江ノ島線湘南台」駅バス19分徒歩3分

相鉄いずみ野線湘南台」駅バス19分徒歩3分

間取り/建物面積
3LDK / 72.86m²
土地面積
150.22m²
築年月
2004年03月築
  • 気になるリストへ
  • 比較リストへ

資料請求・お問い合わせ

☆南道路

  • 南道路(南西・南東含む)に接道
  • 低層住居専用地域に立地
フロア画像を拡大する
画像枚数14枚
価格
2,280万円
所在地
神奈川県横浜市戸塚区深谷町
交通

東海道本線戸塚」駅バス21分徒歩4分

東海道本線大船」駅バス17分徒歩4分

横浜市ブルーライン立場」駅バス24分徒歩4分

間取り/建物面積
4LDK / 85.72m²
土地面積
109.62m²
築年月
1994年02月築
  • 気になるリストへ
  • 比較リストへ

資料請求・お問い合わせ

◆平成30年3月建築の注文住宅 ◆1階は車椅子対応に設計されています。

  • 築10年以内
  • 南道路(南西・南東含む)に接道
  • 低層住居専用地域に立地
  • 建物面積が100m?以上
フロア画像を拡大する
画像枚数14枚
価格
6,290万円
所在地
神奈川県横浜市港南区日限山4丁目
交通

横浜市ブルーライン上永谷」駅バス10分徒歩7分

東海道本線戸塚」駅バス16分徒歩7分

間取り/建物面積
4LDK / 127.8m²
土地面積
181.91m²
築年月
2018年03月築
  • 気になるリストへ
  • 比較リストへ

資料請求・お問い合わせ

■平成21年戸建■駐車スペース2台以上可■3LDK

フロア画像を拡大する
画像枚数14枚
価格
2,990万円
所在地
神奈川県横浜市保土ケ谷区今井町
交通

横須賀線東戸塚」駅バス15分徒歩3分

間取り/建物面積
3LDK / 79.49m²
土地面積
125.08m²
築年月
2009年03月築
  • 気になるリストへ
  • 比較リストへ

資料請求・お問い合わせ

2020年3月築 LDK約17.9帖

  • 築10年以内
フロア画像を拡大する
画像枚数14枚
価格
2,880万円
所在地
神奈川県横浜市保土ケ谷区今井町
交通

横須賀線東戸塚」駅バス12分徒歩4分

横須賀線保土ケ谷」駅バス22分徒歩3分

相鉄本線二俣川」駅バス28分徒歩3分

間取り/建物面積
3SLDK / 96.92m²
土地面積
61.47m²
築年月
2020年03月築
  • 気になるリストへ
  • 比較リストへ

資料請求・お問い合わせ

カーポート3台分! 住友不動産旧分譲地内の4LDK戸建♪

  • 南道路(南西・南東含む)に接道
  • 建物面積が100m?以上
フロア画像を拡大する
画像枚数14枚
価格
3,800万円
所在地
神奈川県横浜市戸塚区柏尾町
交通

東海道本線戸塚」駅バス13分徒歩3分

横須賀線東戸塚」駅バス18分徒歩5分

間取り/建物面積
4LDK / 111.79m²
土地面積
138.21m²
築年月
2001年03月築
  • 気になるリストへ
  • 比較リストへ

資料請求・お問い合わせ

チェックした物件をまとめて

資料請求・お問い合わせ

  • 新着1週間以内に登録された物件
  • 価格更新1週間以内に価格が更新された物件
  • おすすめ物件営業センターのおすすめ物件
  • リフォーム済みリフォームやリノベーション済み
  • 駅徒歩10分以内駅徒歩10分以内
  • 築10年以内築10年以内
  • 南道路(南西・南東含む)南道路(南西・南東含む)に接道
  • 角地角地
  • 低層住居専用地域低層住居専用地域に立地
  • 建物面積100m²以上建物面積が100m²以上
  • 新築新築物件
  • 【現地見学】オープンハウス開催オープンハウス・予約制内覧会
  • 予告広告販売開始まで契約または予約の申し込みは出来ません