戸塚営業センター
  • TEL
    0120-045-211
  • 最寄駅
    • ・東海道本線 戸塚駅
    • ・横浜市ブルーライン 戸塚駅

取扱物件一覧(新築一戸建て)

  • マンション
  • 中古一戸建て
  • 新築一戸建て
  • 土地
  • 事業用
  • 投資用

23件中1〜23件を表示

  • 画像を大きく表示
  • リストで表示

表示件数

並び替え

チェックした物件をまとめて

資料請求・お問い合わせ

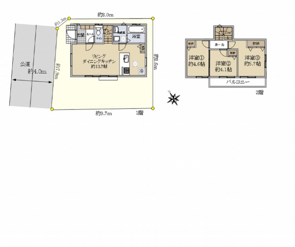
◆土地面積:180.71u ◆建物面積:100.19u

  • 築10年以内
  • 低層住居専用地域に立地
  • 建物面積が100m?以上
フロア画像を拡大する
画像枚数29枚
価格
6,280万円
所在地
神奈川県横浜市泉区領家4丁目
交通

横浜市ブルーライン中田」駅徒歩18分

東海道本線戸塚」駅バス13分徒歩2分

相鉄いずみ野線弥生台」駅バス7分徒歩4分

間取り/建物面積
4LDK / 100.19m²
土地面積
180.71m²
築年月
2025年11月築新築
  • 気になるリストへ
  • 比較リストへ

資料請求・お問い合わせ

◆令和7年12月完成済 ◆土地面積:198.61u ◆建物面積:109.30u

  • 南道路(南西・南東含む)に接道
  • 低層住居専用地域に立地
  • 建物面積が100m?以上
フロア画像を拡大する
画像枚数22枚
価格
5,790万円
所在地
神奈川県横浜市金沢区釜利谷東4丁目
交通

京急本線金沢文庫」駅バス12分徒歩9分

京急本線金沢文庫」駅徒歩24分

間取り/建物面積
4LDK / 109.3m²
土地面積
198.61m²
築年月
2025年12月築新築
  • 気になるリストへ
  • 比較リストへ

資料請求・お問い合わせ

◆令和8年2月完成予定 ◆4LDK

  • 南道路(南西・南東含む)に接道
  • 建物面積が100m?以上
フロア画像を拡大する
画像枚数22枚
価格
5,699万円
所在地
神奈川県横浜市戸塚区上矢部町
交通

東海道本線戸塚」駅バス18分徒歩4分

相鉄いずみ野線弥生台」駅バス14分徒歩4分

間取り/建物面積
4LDK / 105.5m²
土地面積
169.28m²
築年月
2026年02月築新築
  • 気になるリストへ
  • 比較リストへ

資料請求・お問い合わせ

◆令和8年2月完成予定 ◆3SLDK

  • 南道路(南西・南東含む)に接道
  • 建物面積が100m?以上
フロア画像を拡大する
画像枚数22枚
価格
5,999万円
所在地
神奈川県横浜市戸塚区上矢部町
交通

東海道本線戸塚」駅バス18分徒歩4分

相鉄いずみ野線弥生台」駅バス14分徒歩4分

間取り/建物面積
3SLDK / 105.04m²
土地面積
170.42m²
築年月
2026年02月築新築
  • 気になるリストへ
  • 比較リストへ

資料請求・お問い合わせ

◆令和7年10月完成 ◆土地面積:85.34u ◆建物面積:89.25u

  • 築10年以内
フロア画像を拡大する
画像枚数20枚
価格
3,680万円
所在地
神奈川県横浜市戸塚区下倉田町
交通

東海道本線戸塚」駅バス15分徒歩4分

横須賀線戸塚」駅バス15分徒歩4分

横浜市ブルーライン戸塚」駅バス15分徒歩4分

間取り/建物面積
3SLDK / 89.25m²
土地面積
85.34m²
築年月
2025年10月築新築
  • 気になるリストへ
  • 比較リストへ

資料請求・お問い合わせ

☆2025年9月完成の新築戸建 ☆カースペース2台分(車種による)

  • 築10年以内
  • 南道路(南西・南東含む)に接道
  • 低層住居専用地域に立地
フロア画像を拡大する
画像枚数18枚
価格
4,980万円
所在地
神奈川県横浜市港南区下永谷5丁目
交通

横浜市ブルーライン下永谷」駅徒歩15分

間取り/建物面積
3LDK / 91.08m²
土地面積
114.48m²
築年月
2025年09月築新築
  • 気になるリストへ
  • 比較リストへ

資料請求・お問い合わせ

◇2線2駅利用可能 ◇全居室収納あり

  • 駅徒歩10分以内
  • 低層住居専用地域に立地
フロア画像を拡大する
画像枚数16枚
価格
5,980万円
所在地
神奈川県横浜市泉区和泉中央南2丁目
交通

横浜市ブルーライン立場」駅徒歩9分

相鉄いずみ野線いずみ中央」駅徒歩14分

間取り/建物面積
4LDK / 98.12m²
土地面積
125.19m²
築年月
2026年02月築新築
  • 気になるリストへ
  • 比較リストへ

資料請求・お問い合わせ

カースペース3台分♪(車種による) 北東角地の4LDK物件です!

  • 南道路(南西・南東含む)に接道
  • 角地
  • 低層住居専用地域に立地
  • 建物面積が100m?以上
フロア画像を拡大する
画像枚数15枚
価格
6,190万円
所在地
神奈川県横浜市戸塚区平戸町
交通

横須賀線東戸塚」駅バス14分徒歩5分

京急本線上大岡」駅バス17分徒歩5分

横浜市ブルーライン上永谷」駅バス17分徒歩5分

間取り/建物面積
4LDK / 109.3m²
土地面積
141.98m²
築年月
2026年04月築新築
  • 気になるリストへ
  • 比較リストへ

資料請求・お問い合わせ

◇2線2駅利用可能 ◇全居室収納あり

  • 駅徒歩10分以内
  • 角地
  • 低層住居専用地域に立地
フロア画像を拡大する
画像枚数15枚
価格
6,180万円
所在地
神奈川県横浜市泉区和泉中央南2丁目
交通

横浜市ブルーライン立場」駅徒歩9分

相鉄いずみ野線いずみ中央」駅徒歩13分

間取り/建物面積
4LDK / 96.88m²
土地面積
125.21m²
築年月
2026年02月築新築
  • 気になるリストへ
  • 比較リストへ

資料請求・お問い合わせ

◇2線2駅利用可能 ◇全居室収納あり

  • 駅徒歩10分以内
  • 低層住居専用地域に立地
フロア画像を拡大する
画像枚数15枚
価格
5,980万円
所在地
神奈川県横浜市泉区和泉中央南2丁目
交通

横浜市ブルーライン立場」駅徒歩9分

相鉄いずみ野線いずみ中央」駅徒歩13分

間取り/建物面積
4LDK / 96.26m²
土地面積
125.19m²
築年月
2026年02月築新築
  • 気になるリストへ
  • 比較リストへ

資料請求・お問い合わせ

◇2025年7月完成の新築戸建 ◇全居室収納あり

  • 駅徒歩10分以内
  • 築10年以内
  • 低層住居専用地域に立地
フロア画像を拡大する
画像枚数15枚
価格
5,980万円
所在地
神奈川県横浜市泉区和泉中央南2丁目
交通

横浜市ブルーライン立場」駅徒歩9分

相鉄いずみ野線いずみ中央」駅徒歩14分

間取り/建物面積
4LDK / 93m²
土地面積
116.44m²
築年月
2025年07月築新築
  • 気になるリストへ
  • 比較リストへ

資料請求・お問い合わせ

カースペース3台分♪(車種による) 建物面積109.30u

  • 低層住居専用地域に立地
  • 建物面積が100m?以上
フロア画像を拡大する
画像枚数14枚
価格
6,090万円
所在地
神奈川県横浜市戸塚区平戸町
交通

横須賀線東戸塚」駅バス14分徒歩5分

京急本線上大岡」駅バス17分徒歩5分

横浜市ブルーライン上永谷」駅バス17分徒歩5分

間取り/建物面積
4LDK / 109.3m²
土地面積
142.54m²
築年月
2026年04月築新築
  • 気になるリストへ
  • 比較リストへ

資料請求・お問い合わせ

●横浜いずみ野線「いずみ中央」駅徒歩9分、ブルーライン「立場」駅徒歩16分

  • 駅徒歩10分以内
  • 低層住居専用地域に立地
フロア画像を拡大する
画像枚数14枚
価格
3,980万円
所在地
神奈川県横浜市泉区和泉中央北4丁目
交通

相鉄いずみ野線いずみ中央」駅徒歩9分

横浜市ブルーライン立場」駅徒歩16分

間取り/建物面積
3LDK / 66.1m²
土地面積
85.21m²
築年月
2026年01月築新築
  • 気になるリストへ
  • 比較リストへ

資料請求・お問い合わせ

◇2025年7月完成の新築戸建 ◇全居室収納あり

  • 駅徒歩10分以内
  • 築10年以内
  • 低層住居専用地域に立地
フロア画像を拡大する
画像枚数14枚
価格
5,980万円
所在地
神奈川県横浜市泉区和泉中央南2丁目
交通

横浜市ブルーライン立場」駅徒歩9分

相鉄いずみ野線いずみ中央」駅徒歩14分

間取り/建物面積
4LDK / 97.7m²
土地面積
125.2m²
築年月
2025年07月築新築
  • 気になるリストへ
  • 比較リストへ

資料請求・お問い合わせ

■4LDK ■2026年2月完成予定の新築戸建 ■南西向き

  • 駅徒歩10分以内
  • 低層住居専用地域に立地
  • 建物面積が100m?以上
フロア画像を拡大する
画像枚数13枚
価格
5,780万円
所在地
神奈川県横浜市港南区下永谷3丁目
交通

横浜市ブルーライン下永谷」駅徒歩7分

京急本線上大岡」駅バス18分徒歩7分

横須賀線東戸塚」駅バス14分徒歩7分

間取り/建物面積
4LDK / 117.51m²
土地面積
126.97m²
築年月
2026年02月築新築
  • 気になるリストへ
  • 比較リストへ

資料請求・お問い合わせ

●横浜市営地下鉄ブルーライン「下飯田」駅徒歩10分 ●南西角地日当たり良好

  • 駅徒歩10分以内
  • 南道路(南西・南東含む)に接道
  • 角地
フロア画像を拡大する
画像枚数12枚
価格
5,790万円
所在地
神奈川県横浜市泉区和泉町
交通

横浜市ブルーライン下飯田」駅徒歩10分

相鉄いずみ野線ゆめが丘」駅徒歩14分

相鉄いずみ野線いずみ中央」駅徒歩22分

間取り/建物面積
3SLDK / 97.29m²
土地面積
127.03m²
築年月
2026年02月築新築
  • 気になるリストへ
  • 比較リストへ

資料請求・お問い合わせ

☆2026年3月完成予定の新築戸建 

  • 低層住居専用地域に立地
フロア画像を拡大する
画像枚数12枚
価格
4,490万円
所在地
神奈川県横浜市港南区日限山3丁目
交通

横浜市ブルーライン下永谷」駅徒歩20分

横浜市ブルーライン上永谷」駅バス12分徒歩3分

東海道本線戸塚」駅バス16分徒歩3分

間取り/建物面積
3LDK / 79.69m²
土地面積
102.08m²
築年月
2026年03月築新築
  • 気になるリストへ
  • 比較リストへ

資料請求・お問い合わせ

☆2026年3月完成予定の新築戸建

  • 低層住居専用地域に立地
フロア画像を拡大する
画像枚数12枚
価格
5,290万円
所在地
神奈川県横浜市港南区日限山3丁目
交通

横浜市ブルーライン下永谷」駅徒歩20分

横浜市ブルーライン上永谷」駅バス12分徒歩3分

東海道本線戸塚」駅バス16分徒歩3分

間取り/建物面積
4LDK / 98.12m²
土地面積
125.01m²
築年月
2026年03月築新築
  • 気になるリストへ
  • 比較リストへ

資料請求・お問い合わせ

2026年4月完成予定の新築戸建て!全居室収納ありの4LDK!

  • 角地
  • 低層住居専用地域に立地
フロア画像を拡大する
画像枚数12枚
価格
6,390万円
所在地
神奈川県藤沢市本藤沢5丁目
交通

小田急江ノ島線善行」駅徒歩14分

間取り/建物面積
4LDK / 99.36m²
土地面積
154.42m²
築年月
2026年04月築新築
  • 気になるリストへ
  • 比較リストへ

資料請求・お問い合わせ

●横浜市営地下鉄ブルーライン「下飯田」駅徒歩11分 ●南西道路日当たり良好

  • 南道路(南西・南東含む)に接道
フロア画像を拡大する
画像枚数11枚
価格
5,690万円
所在地
神奈川県横浜市泉区和泉町
交通

横浜市ブルーライン下飯田」駅徒歩11分

相鉄いずみ野線ゆめが丘」駅徒歩15分

相鉄いずみ野線いずみ中央」駅徒歩22分

間取り/建物面積
4LDK / 97.7m²
土地面積
145.48m²
築年月
2026年02月築新築
  • 気になるリストへ
  • 比較リストへ

資料請求・お問い合わせ

■2026年1月完成予定の4LDK ■カースペース2台あり(車種による)

  • 南道路(南西・南東含む)に接道
  • 低層住居専用地域に立地
フロア画像を拡大する
画像枚数11枚
価格
5,990万円
所在地
神奈川県横浜市保土ケ谷区新桜ケ丘1丁目
交通

湘南新宿ライン(宇都宮〜逗子)東戸塚」駅バス9分徒歩7分

相鉄本線星川」駅バス13分徒歩1分

横須賀線保土ケ谷」駅バス26分徒歩1分

間取り/建物面積
4LDK / 99.16m²
土地面積
179.23m²
築年月
2026年01月築新築
  • 気になるリストへ
  • 比較リストへ

資料請求・お問い合わせ

◆土地面積:107.92u   ◆建物面積:85.28u

  • 築10年以内
  • 南道路(南西・南東含む)に接道
  • 低層住居専用地域に立地
フロア画像を拡大する
画像枚数10枚
価格
5,090万円
所在地
神奈川県横浜市保土ケ谷区権太坂1丁目
交通

横須賀線東戸塚」駅バス12分徒歩3分

湘南新宿ライン(宇都宮〜逗子)保土ケ谷」駅バス14分徒歩7分

間取り/建物面積
4LDK / 85.28m²
土地面積
107.92m²
築年月
2025年11月築新築
  • 気になるリストへ
  • 比較リストへ

資料請求・お問い合わせ

☆☆☆延床面積103.30uの4LDK、間口広々駐車場5台(車種による)☆☆☆

  • 低層住居専用地域に立地
  • 建物面積が100m?以上
フロア画像を拡大する
画像枚数10枚
価格
5,590万円
所在地
神奈川県横浜市栄区庄戸5丁目
交通

京浜東北・根岸線港南台」駅バス11分徒歩6分

京急本線金沢八景」駅バス20分徒歩9分

東海道本線大船」駅バス27分徒歩9分

間取り/建物面積
4LDK / 103.3m²
土地面積
283.96m²
築年月
2026年01月築新築
  • 気になるリストへ
  • 比較リストへ

資料請求・お問い合わせ

チェックした物件をまとめて

資料請求・お問い合わせ

  • 新着1週間以内に登録された物件
  • 価格更新1週間以内に価格が更新された物件
  • おすすめ物件営業センターのおすすめ物件
  • リフォーム済みリフォームやリノベーション済み
  • 駅徒歩10分以内駅徒歩10分以内
  • 築10年以内築10年以内
  • 南道路(南西・南東含む)南道路(南西・南東含む)に接道
  • 角地角地
  • 低層住居専用地域低層住居専用地域に立地
  • 建物面積100m²以上建物面積が100m²以上
  • 新築新築物件
  • 【現地見学】オープンハウス開催オープンハウス・予約制内覧会
  • 予告広告販売開始まで契約または予約の申し込みは出来ません