現在の検索条件
- 宮城県
-
-
市区町村を絞る
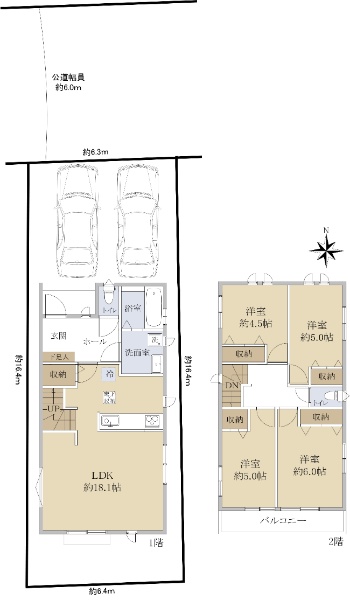
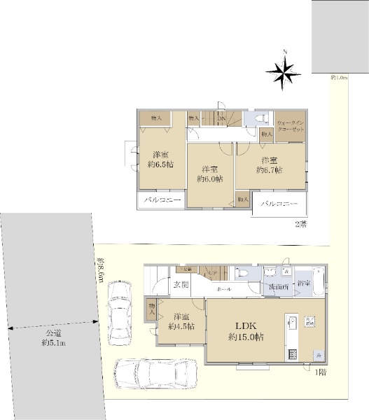
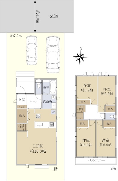
| 検索条件 | 価格 : 下限なし〜上限なし 建物面積 : 下限なし 〜 上限なし 土地面積 : 下限なし 〜 上限なし 間取り : 指定なし 駅徒歩 : 指定なし 築年数 : 15年以内 | |
|---|---|---|
| こだわり条件 | 指定なし |
![]()
1週間以内に登録された物件
1週間以内に価格が更新された物件
営業センターのおすすめ物件
リフォームやリノベーション済み
駅徒歩10分以内
築10年以内
南道路(南西・南東含む)に接道
角地
低層住居専用地域に立地
建物面積が100m²以上
新築物件
オープンハウス・予約制内覧会
販売開始まで契約または予約の申し込みは出来ません































































