買うさいたま市の一戸建てを探す

現在の検索条件

検索条件 価格 : 下限なし〜上限なし 建物面積 : 下限なし 〜 上限なし 土地面積 : 下限なし 〜 上限なし 間取り : 指定なし 駅徒歩 : 指定なし 築年数 : 30年以内 検索条件を変更
こだわり条件 指定なし こだわり条件を変更

55件中1〜30件を表示

  • 画像を大きく表示
  • リストで表示

表示件数

並び替え

チェックした物件をまとめて

資料請求・お問い合わせ

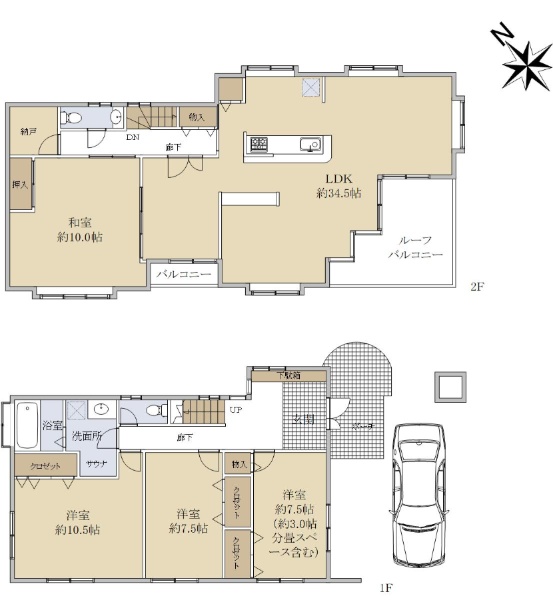
4LDK+屋根裏収納。南西側約4.0m×北西側約4.0mの角地。土地区画整理事業施工中

  • 南道路(南西・南東含む)に接道
  • 角地
  • 低層住居専用地域に立地
フロア画像を拡大する
画像枚数29枚
価格
1,490万円
所在地
埼玉県さいたま市見沼区大字中川
交通

京浜東北・根岸線大宮」駅バス24分徒歩3分

東武野田線大宮」駅バス24分徒歩3分

埼玉新都市交通大宮」駅バス24分徒歩3分

間取り/建物面積
4LDK / 95.83m²
土地面積
102.61m²
築年月
1997年03月築
  • 気になるリストへ
  • 比較リストへ

資料請求・お問い合わせ

東北本線「東大宮」駅徒歩19分。木造2階建て4LDK 小屋裏収納付き。

フロア画像を拡大する
画像枚数18枚
価格
1,880万円
所在地
埼玉県さいたま市見沼区春岡3丁目
交通

東北本線東大宮」駅徒歩19分

間取り/建物面積
4LDK / 96.81m²
土地面積
107.57m²
築年月
1996年07月築
  • 気になるリストへ
  • 比較リストへ

資料請求・お問い合わせ

◆2014年築◆3LDK(2階建)◆2022年9月 外壁塗装済

  • リフォーム済み
フロア画像を拡大する
画像枚数30枚
価格
2,180万円
所在地
埼玉県さいたま市見沼区大字大谷
交通

東武野田線七里」駅徒歩22分

間取り/建物面積
3LDK / 80m²
土地面積
100.06m²
築年月
2014年02月築
  • 気になるリストへ
  • 比較リストへ

資料請求・お問い合わせ

■「七里」駅徒歩12分 ■4LDK ■東側前面道路 約4.5m

フロア画像を拡大する
画像枚数20枚
価格
2,480万円
所在地
埼玉県さいたま市見沼区島町
交通

東武野田線七里」駅徒歩12分

湘南新宿ライン(宇都宮〜逗子)東大宮」駅徒歩25分

間取り/建物面積
4LDK / 96.87m²
土地面積
100.74m²
築年月
2002年01月築
  • 気になるリストへ
  • 比較リストへ

資料請求・お問い合わせ

平成26年5月築の4LDK、「佐知川原」バス停まで160m、コンビニまで約100m、

フロア画像を拡大する
画像枚数14枚
価格
2,880万円
所在地
埼玉県さいたま市西区大字佐知川
交通

京浜東北・根岸線大宮」駅バス16分徒歩2分

東武野田線大宮」駅バス16分徒歩2分

埼玉新都市交通大宮」駅バス16分徒歩2分

間取り/建物面積
4LDK / 97.19m²
土地面積
122.04m²
築年月
2014年05月築
  • 気になるリストへ
  • 比較リストへ

資料請求・お問い合わせ

北・東側角地〜4LDK+WIC

  • 駅徒歩10分以内
  • 角地
フロア画像を拡大する
画像枚数2枚
価格
2,980万円
所在地
埼玉県さいたま市見沼区大字小深作
交通

東武野田線七里」駅徒歩9分

間取り/建物面積
4LDK / 94.39m²
土地面積
64.85m²
築年月
2026年03月築新築
  • 気になるリストへ
  • 比較リストへ

資料請求・お問い合わせ

◆2011年6月築◆2024年2月外壁・屋根塗装工事済み◆収納が豊富な3SLDK

  • リフォーム済み
  • 低層住居専用地域に立地
フロア画像を拡大する
画像枚数10枚
価格
2,980万円
所在地
埼玉県さいたま市緑区大字三室
交通

高崎線さいたま新都心」駅バス27分徒歩5分

京浜東北・根岸線北浦和」駅バス25分徒歩5分

間取り/建物面積
3SLDK / 99.36m²
土地面積
100.1m²
築年月
2011年06月築
  • 気になるリストへ
  • 比較リストへ

資料請求・お問い合わせ

☆南東向きにつき陽当たり良好 ☆2LDK+S

  • 築10年以内
  • 南道路(南西・南東含む)に接道
  • 低層住居専用地域に立地
フロア画像を拡大する
画像枚数28枚
価格
2,990万円
所在地
埼玉県さいたま市西区プラザ
交通

埼京線大宮」駅バス27分徒歩9分

京浜東北・根岸線大宮」駅バス27分徒歩9分

川越線指扇」駅バス19分徒歩10分

間取り/建物面積
2SLDK / 81.25m²
土地面積
84.32m²
築年月
2025年08月築新築
  • 気になるリストへ
  • 比較リストへ

資料請求・お問い合わせ

〜 太陽光発電+蓄電設備あり 2019年8月築 〜

  • 築10年以内
  • 南道路(南西・南東含む)に接道
  • 建物面積が100m?以上
フロア画像を拡大する
画像枚数30枚
価格
2,990万円
所在地
埼玉県さいたま市見沼区春岡2丁目
交通

東武野田線七里」駅徒歩20分

東北本線東大宮」駅バス26分徒歩7分

間取り/建物面積
4LDK / 105.99m²
土地面積
211.78m²
築年月
2019年08月築
  • 気になるリストへ
  • 比較リストへ

資料請求・お問い合わせ

☆令和5年9月築☆4LDKの間取り☆北西、南西角地☆

  • 築10年以内
  • 南道路(南西・南東含む)に接道
  • 角地
  • 建物面積が100m?以上
フロア画像を拡大する
画像枚数30枚
価格
2,990万円
所在地
埼玉県さいたま市岩槻区大字大戸
交通

東武野田線岩槻」駅バス20分徒歩12分

東武伊勢崎・大師線越谷」駅バス26分徒歩12分

間取り/建物面積
4LDK / 100.43m²
土地面積
155.53m²
築年月
2023年09月築
  • 気になるリストへ
  • 比較リストへ

資料請求・お問い合わせ

【住友不動産ステップ専任物件】2017年2月築 閑静な住宅街

  • 築10年以内
  • 低層住居専用地域に立地
フロア画像を拡大する
画像枚数29枚
価格
3,080万円
所在地
埼玉県さいたま市岩槻区原町
交通

東武野田線岩槻」駅徒歩19分

間取り/建物面積
3LDK / 93.94m²
土地面積
117.59m²
築年月
2017年02月築
  • 気になるリストへ
  • 比較リストへ

資料請求・お問い合わせ

◇4LDK・2階建◇東武アーバンパークライン「大和田」駅 徒歩17分

  • 南道路(南西・南東含む)に接道
  • 角地
  • 低層住居専用地域に立地
フロア画像を拡大する
画像枚数16枚
価格
3,150万円
所在地
埼玉県さいたま市見沼区大字南中丸
交通

東武野田線大和田」駅徒歩17分

京浜東北・根岸線大宮」駅バス20分徒歩6分

埼京線大宮」駅バス21分徒歩7分

間取り/建物面積
4LDK / 94.19m²
土地面積
102.89m²
築年月
2009年01月築
  • 気になるリストへ
  • 比較リストへ

資料請求・お問い合わせ

◆新築戸建て ◆南向き道路に面しており、陽当たり良好 

  • 南道路(南西・南東含む)に接道
フロア画像を拡大する
画像枚数17枚
価格
3,180万円
所在地
埼玉県さいたま市北区日進町1丁目
交通

川越線日進」駅徒歩12分

間取り/建物面積
3LDK / 95.81m²
土地面積
56.5m²
築年月
2026年03月築新築
  • 気になるリストへ
  • 比較リストへ

資料請求・お問い合わせ

埼玉新都市交通「東宮原」駅徒歩13分。 東北本線「土呂」駅徒歩16分

フロア画像を拡大する
画像枚数28枚
価格
3,180万円
所在地
埼玉県さいたま市北区本郷町
交通

埼玉新都市交通東宮原」駅徒歩13分

東北本線土呂」駅徒歩16分

間取り/建物面積
4LDK / 88.49m²
土地面積
108.88m²
築年月
2014年03月築
  • 気になるリストへ
  • 比較リストへ

資料請求・お問い合わせ

☆南東向きにつき陽当たり良好 ☆2LDK+S

  • 築10年以内
  • 南道路(南西・南東含む)に接道
  • 低層住居専用地域に立地
フロア画像を拡大する
画像枚数28枚
価格
3,190万円
所在地
埼玉県さいたま市西区プラザ
交通

埼京線大宮」駅バス27分徒歩9分

京浜東北・根岸線大宮」駅バス27分徒歩9分

川越線指扇」駅バス19分徒歩10分

間取り/建物面積
2LDK / 81.25m²
土地面積
84.31m²
築年月
2025年08月築新築
  • 気になるリストへ
  • 比較リストへ

資料請求・お問い合わせ

◆新築戸建て ◆南側×東側道路の角地に面しており、陽当たり良好 

  • 南道路(南西・南東含む)に接道
  • 角地
フロア画像を拡大する
画像枚数20枚
価格
3,280万円
所在地
埼玉県さいたま市北区日進町1丁目
交通

川越線日進」駅徒歩12分

間取り/建物面積
3LDK / 75.45m²
土地面積
55.96m²
築年月
2026年03月築新築
  • 気になるリストへ
  • 比較リストへ

資料請求・お問い合わせ

◆東武野田線「七里駅」徒歩約13分 ◆間取り:3LDK

  • 角地
フロア画像を拡大する
画像枚数21枚
価格
3,480万円
所在地
埼玉県さいたま市見沼区大字東門前
交通

東武野田線七里」駅徒歩13分

間取り/建物面積
3LDK / 90.25m²
土地面積
102.19m²
築年月
2015年04月築
  • 気になるリストへ
  • 比較リストへ

資料請求・お問い合わせ

◆2012年築◆コンビニ、公園徒歩10分以内◆東川口駅徒歩12分

  • 南道路(南西・南東含む)に接道
  • 角地
  • 建物面積が100m?以上
フロア画像を拡大する
画像枚数15枚
価格
3,480万円
所在地
埼玉県さいたま市緑区大字大門
交通

武蔵野線東川口」駅徒歩12分

埼玉高速鉄道東川口」駅徒歩12分

間取り/建物面積
4K / 119.24m²
土地面積
103m²
築年月
2012年11月築
  • 気になるリストへ
  • 比較リストへ

資料請求・お問い合わせ

◇「日進」駅徒歩10分 LDK:約19.4帖 ◇室内大変綺麗にお使いです

  • 駅徒歩10分以内
  • 築10年以内
  • 南道路(南西・南東含む)に接道
フロア画像を拡大する
画像枚数19枚
価格
3,480万円
所在地
埼玉県さいたま市北区日進町2丁目
交通

川越線日進」駅徒歩10分

間取り/建物面積
4LDK / 99.42m²
土地面積
144.28m²
築年月
2020年11月築
  • 気になるリストへ
  • 比較リストへ

資料請求・お問い合わせ

土地面積124.93u(37.79坪)、建物面積97.70u

フロア画像を拡大する
画像枚数11枚
価格
3,580万円
所在地
埼玉県さいたま市西区宮前町
交通

川越線西大宮」駅徒歩18分

間取り/建物面積
4LDK / 97.7m²
土地面積
124.93m²
築年月
2026年01月築新築
  • 気になるリストへ
  • 比較リストへ

資料請求・お問い合わせ

土地面積125.58u(37.98u)、建物面積96.87u

フロア画像を拡大する
画像枚数11枚
価格
3,580万円
所在地
埼玉県さいたま市西区宮前町
交通

川越線西大宮」駅徒歩18分

間取り/建物面積
4LDK / 96.87m²
土地面積
125.58m²
築年月
2026年01月築新築
  • 気になるリストへ
  • 比較リストへ

資料請求・お問い合わせ

2022年3月築 土地面積約69坪 カースペース2台分(車種による) 

  • 築10年以内
  • 建物面積が100m?以上
フロア画像を拡大する
画像枚数30枚
価格
3,800万円
所在地
埼玉県さいたま市西区大字高木
交通

川越線指扇」駅徒歩14分

京浜東北・根岸線大宮」駅バス33分徒歩18分

埼京線大宮」駅バス33分徒歩18分

間取り/建物面積
4LDK / 101.02m²
土地面積
228.11m²
築年月
2022年03月築
  • 気になるリストへ
  • 比較リストへ

資料請求・お問い合わせ

2駅2路線利用可能です!2020年築7月築で閑静な住宅街に存しております。

  • 築10年以内
  • 南道路(南西・南東含む)に接道
フロア画像を拡大する
画像枚数28枚
価格
3,800万円
所在地
埼玉県さいたま市見沼区島町
交通

東北本線東大宮」駅徒歩21分

東武野田線七里」駅徒歩18分

間取り/建物面積
4LDK / 95.44m²
土地面積
85m²
築年月
2020年07月築
  • 気になるリストへ
  • 比較リストへ

資料請求・お問い合わせ

敷地面積255.68u、駐車スペース3台分有(車種による)!!

  • 南道路(南西・南東含む)に接道
  • 建物面積が100m?以上
フロア画像を拡大する
画像枚数25枚
価格
3,880万円
所在地
埼玉県さいたま市見沼区大字南中丸
交通

京浜東北・根岸線大宮」駅バス18分徒歩11分

東武野田線大和田」駅徒歩24分

東武野田線大宮」駅バス18分徒歩11分

間取り/建物面積
4LDK / 163.14m²
土地面積
255.68m²
築年月
1999年11月築
  • 気になるリストへ
  • 比較リストへ

資料請求・お問い合わせ

前面道路約6.5m公道 カースペース2台分(車種による)

  • 築10年以内
  • 建物面積が100m?以上
フロア画像を拡大する
画像枚数29枚
価格
3,900万円
所在地
埼玉県さいたま市北区日進町1丁目
交通

埼玉新都市交通鉄道博物館(大成)」駅徒歩25分

京浜東北・根岸線大宮」駅バス25分徒歩7分

間取り/建物面積
4LDK / 100.5m²
土地面積
119.32m²
築年月
2021年01月築
  • 気になるリストへ
  • 比較リストへ

資料請求・お問い合わせ

2019年築、注文住宅

  • 築10年以内
  • 南道路(南西・南東含む)に接道
  • 建物面積が100m?以上
フロア画像を拡大する
画像枚数30枚
価格
3,980万円
所在地
埼玉県さいたま市緑区大字中尾
交通

武蔵野線東浦和」駅徒歩18分

間取り/建物面積
2SLDK / 113.85m²
土地面積
137.27m²
築年月
2019年11月築
  • 気になるリストへ
  • 比較リストへ

資料請求・お問い合わせ

◇東武野田線「東岩槻」駅徒歩19分◇建物面積172.30u(52.12坪)

  • 南道路(南西・南東含む)に接道
  • 建物面積が100m?以上
フロア画像を拡大する
画像枚数8枚
価格
3,980万円
所在地
埼玉県さいたま市岩槻区大字岩槻
交通

東武野田線東岩槻」駅徒歩19分

東武野田線岩槻」駅バス12分徒歩2分

間取り/建物面積
3LDK / 172.3m²
土地面積
395m²
築年月
1998年12月築
  • 気になるリストへ
  • 比較リストへ

資料請求・お問い合わせ

JR埼京線「南与野」駅徒歩17分、「与野本町」駅徒歩18分の新築戸建です。

  • 南道路(南西・南東含む)に接道
  • 建物面積が100m?以上
フロア画像を拡大する
画像枚数15枚
価格
4,180万円
所在地
埼玉県さいたま市中央区上峰3丁目
交通

埼京線南与野」駅徒歩17分

埼京線与野本町」駅徒歩18分

間取り/建物面積
3LDK / 100.39m²
土地面積
75.4m²
築年月
2025年12月築新築
  • 気になるリストへ
  • 比較リストへ

資料請求・お問い合わせ

ダイワハウス施工の注文住宅 区画整理地内

  • 南道路(南西・南東含む)に接道
  • 低層住居専用地域に立地
  • 建物面積が100m?以上
フロア画像を拡大する
画像枚数23枚
価格
4,200万円
所在地
埼玉県さいたま市緑区大間木2丁目
交通

武蔵野線東浦和」駅徒歩23分

間取り/建物面積
3LDK / 111.94m²
土地面積
114.52m²
築年月
2003年09月築
  • 気になるリストへ
  • 比較リストへ

資料請求・お問い合わせ

◇「南浦和」駅徒歩14分 ◇2路線利用可能 ◇全3棟の新築戸建 

  • 築10年以内
フロア画像を拡大する
画像枚数12枚
価格
4,280万円
所在地
埼玉県さいたま市南区文蔵3丁目
交通

京浜東北・根岸線南浦和」駅徒歩14分

武蔵野線南浦和」駅徒歩14分

間取り/建物面積
2SLDK / 97.49m²
土地面積
76.94m²
築年月
2025年08月築新築
  • 気になるリストへ
  • 比較リストへ

資料請求・お問い合わせ

チェックした物件をまとめて

資料請求・お問い合わせ

  • 新着1週間以内に登録された物件
  • 価格更新1週間以内に価格が更新された物件
  • おすすめ物件営業センターのおすすめ物件
  • リフォーム済みリフォームやリノベーション済み
  • 駅徒歩10分以内駅徒歩10分以内
  • 築10年以内築10年以内
  • 南道路(南西・南東含む)南道路(南西・南東含む)に接道
  • 角地角地
  • 低層住居専用地域低層住居専用地域に立地
  • 建物面積100m²以上建物面積が100m²以上
  • 新築新築物件
  • 【現地見学】オープンハウス開催オープンハウス・予約制内覧会
  • 予告広告販売開始まで契約または予約の申し込みは出来ません