• 新着
  • 空き物件
建物面積
129.57 m2
(約39.19坪)
土地面積
33.85 m2
(約10.23坪)※公簿
築年月
1995年06月

事業用不動産

1億2,980万円

台東区浅草2丁目一棟ビル

ビル(一棟)

ビル(一棟)

  • 新着
  • 空き物件
1億2,980万円

台東区浅草2丁目一棟ビル

■つくばエクスプレス「浅草」駅 徒歩5分 □北西角地

東京都台東区浅草2丁目

建物面積129.57m2(約39.19坪)・土地面積33.85m2(約10.23坪)※公簿・1995年06月築

■つくばエクスプレス「浅草」駅 徒歩5分 □北西角地

東京都台東区浅草2丁目

物件のポイント

物件の特徴

  • 角地
    角地
  • 容積率100%以上
    容積率100%以上
  • 駅徒歩5分以内
    駅徒歩5分以内
  • 前面道路幅員6m以上
    前面道路幅員6m以上
  • 商業地域
    商業地域
  • セットバックなし・済み
    セットバックなし・済み
  • 前面道路公道
    前面道路公道
  • 角地
    角地
  • 容積率100%以上
    容積率100%以上
  • 駅徒歩5分以内
    駅徒歩5分以内
  • 前面道路幅員6m以上
    前面道路幅員6m以上
  • 商業地域
    商業地域
  • セットバックなし・済み
    セットバックなし・済み
  • 前面道路公道
    前面道路公道
  • セットバックなし・済み
    リフォーム

    --

    立地・周辺環境

    角地|容積率100%以上|駅徒歩5分以内|前面道路幅員6m以上|商業地域|防火・準防火|前面道路公道

    セールスポイント

    〔交通アクセス〕
    ◆2駅利用可能
    ・つくばエクスプレス「浅草」駅 徒歩5分
    ・JR総武線「浅草」駅 徒歩10分


    ☆店舗使用中
    1階〜5階:着物&浴衣レンタル店オーナーが経営

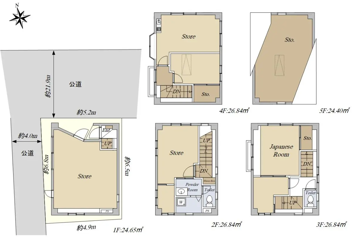
    ●建物概要
    ・建物面積:129.57u(39.19坪)
    ・築年月:1995年6月築
    ・構造:鉄骨造ルーフィング葺5階建て

    ●土地概要(所有権)
    土地面積(公簿):33.85u(10.23坪)
    ・接道状況:北側公道、幅員約21.9mに約5.2m接する
    ・接道状況:西側公道、幅員約4.0mに約6.8m接する
    ・角地
    ・用途地域:商業地域
    ・建ぺい率:100% ※建蔽率は緩和による数値です。
    ・容積率:600% 
    ・地目:宅地
    ・防火地域
    ・駐車場整備地区

    ◆買い物便利
    《お買い物》
    ・オーケー浅草店 徒歩4分(約300m)
    ・ローソンH台東浅草三丁目店 徒歩2分(約100m)

    担当からのひとこと

    この度は、本物件の詳細ページをご覧いただきまして、誠にありがとうございます。

    詳細資料のお問い合わせは、下記フリーコールから、
    担当 石動(イシドウ) までお気軽にお問い合わせください。


    お客様専用フリーコール:0120-492-428

    現在ご所有の不動産から買い替え等をご検討の場合も、お気軽にお問い合わせください。
    ご所有不動産の無料査定、ご相談も承ります。

    皆様からのお問い合わせを心よりお待ちしております。

    ・オーケー浅草店 徒歩4分(約300m)
    ・ローソンH台東浅草三丁目店 徒歩2分(約100m)

    物件詳細

    物件名 台東区浅草2丁目一棟ビル
    物件番号 15124045
    所在地 東京都台東区浅草2丁目
    価格
    1億2,980万円
    交通 つくばエクスプレス浅草」駅徒歩5 分
    総武線浅草橋」駅徒歩10 分
    建物面積 129.57m2(約39.19坪)
    土地面積 33.85m2(約10.23坪)※公簿
    階数
    構造
    地上5階建て
    鉄骨造
    築年月 1995年06月
    地目
    地勢
    宅地
    平坦
    接道状況 角地・北21.9m(公道)接面5.2m/西4m(公道)接面6.8m
    建ぺい率 100%
    容積率 600%
    都市計画 市街化区域
    用途地域 商業地域
    地域・地区 防火地域
    引渡時期 相談
    現況 空家
    駐車場 無し
    土地権利 所有権
    取引態様 仲介
    国土法 届出不要

    この情報は2026年01月30日当社物件システムのデータにもとづくものであり、次回更新予定日は2026年02月13日です。