• おすすめ物件
建物面積
368.76 m2
(約111.54坪)
土地面積
257.85 m2
(約77.99坪)/他に私道負担:11.05m2あり
築年月
1979年12月

事業用不動産

9,990万円

川崎市川崎区中島3丁目借地権付き店舗併用住宅

一戸建て

一戸建て

9,990万円

川崎市川崎区中島3丁目借地権付き店舗併用住宅

■有効宅地面積:257.85u(77.99坪) 建物面積:368.76u(111.54坪)

神奈川県川崎市川崎区中島3丁目

建物面積368.76m2(約111.54坪)・土地面積257.85m2(約77.99坪)/他に私道負担:11.05m2あり・1979年12月築

■有効宅地面積:257.85u(77.99坪) 建物面積:368.76u(111.54坪)

神奈川県川崎市川崎区中島3丁目

物件のポイント

物件の特徴

  • 容積率100%以上
    容積率100%以上
  • 前面道路幅員6m以上
    前面道路幅員6m以上
  • 第二種住居地域
    第二種住居地域
  • 近隣商業地域
    近隣商業地域
  • セットバックなし・済み
    セットバックなし・済み
  • 土地面積50坪以上
    土地面積50坪以上
  • 前面道路公道
    前面道路公道
  • 容積率100%以上
    容積率100%以上
  • 前面道路幅員6m以上
    前面道路幅員6m以上
  • 第二種住居地域
    第二種住居地域
  • 近隣商業地域
    近隣商業地域
  • セットバックなし・済み
    セットバックなし・済み
  • 土地面積50坪以上
    土地面積50坪以上
  • 前面道路公道
    前面道路公道
  • セットバックなし・済み
  • 借地
  • 土地面積50坪以上
    リフォーム

    --

    立地・周辺環境

    容積率100%以上|前面道路幅員6m以上|第二種住居地域|近隣商業地域|前面道路公道

    セールスポイント

    ◇2駅利用可能
    ・京急大師線「港町」駅 徒歩15分
    ・京急大師線「鈴木町」徒歩15分
    ◇借地面積:257.85u(77.99坪)

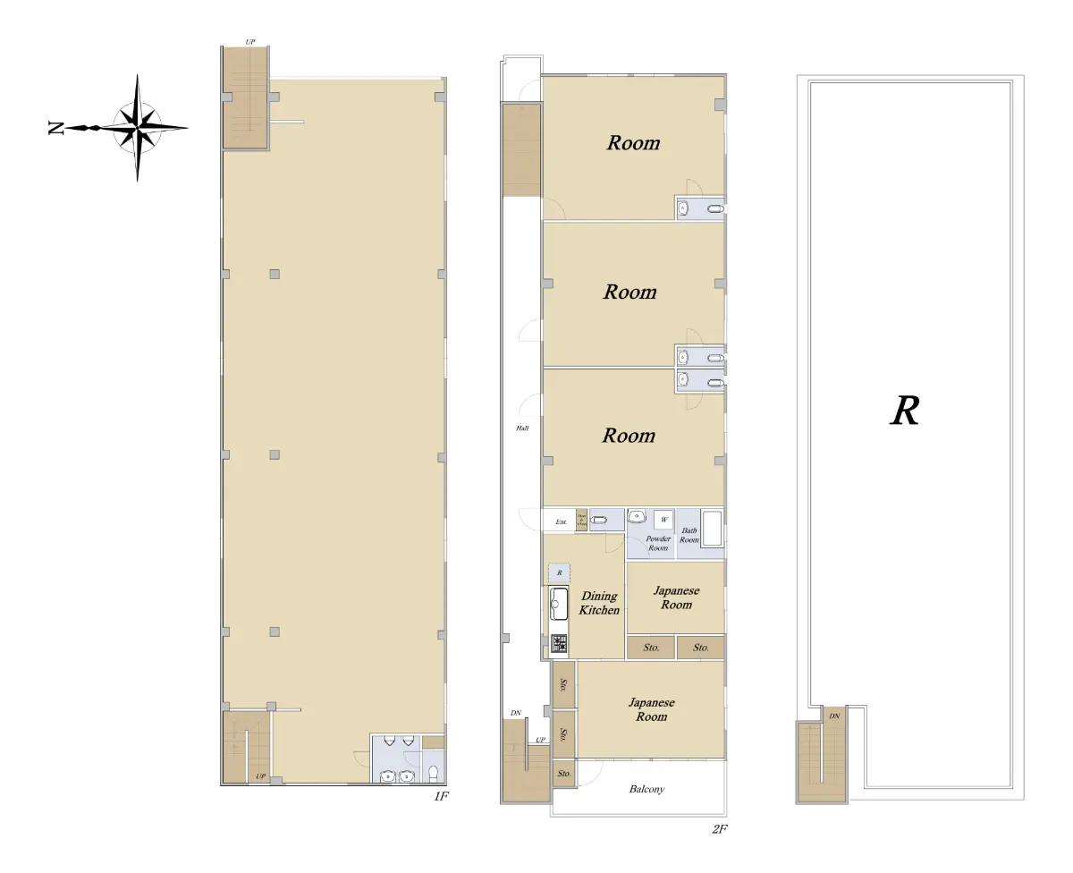
    ◇建物面積:1階 209.97u 2階 158.79u 合計:368.76u(111.54坪)

    ライフインフォメーション
    ・ローソン中島三丁目店 徒歩2分(約120m)
    ・セブンイレブン川崎大島5丁目店 徒歩4分(約250m)
    ・まいばすけっと大島5丁目店 徒歩3分(約210m)
    ・ライフ川崎大島店 徒歩8分(約580m)
    ・大島第1公園 徒歩3分(約220m)
    ・川崎市立向小学校 徒歩5分(約350m)
    ・川崎市立富士見中学校 徒歩13分(約1000m)
    ・川崎市立川崎高等学校附属中学校 徒歩5分(約400m)
    ・総合川崎臨港病院 徒歩3分(約200m)

    担当からのひとこと

    本物件は中盛会通りに位置する借地権付き戸建てでございます。

    不動産のご購入に関しては、写真や図面だけでなく、実際に現地をご覧いただくことをお勧めいたします。
    現地をご覧いただくことにより、周辺環境や眺望、陽当たり等をご確認いただくだけでなく、ご案内する担当者より、プロ

    の目から見た長所・短所等を詳しくご説明差し上げることもできます。

    本物件は勿論のこと、周辺の施設や地域柄につきましてもご案内いたしますのでお気軽にお問い合わせください。
    簡単な資料だけご覧になりたいという方もお気軽にお問い合わせください。

    また、住宅ローン等でご不明な点がございましたら、購入にかかる諸経費や住宅ローンを組まれた際の月々返済額等をご案内させていただきます。

    ・ローソン中島三丁目店 徒歩2分(約120m)
    ・セブンイレブン川崎大島5丁目店 徒歩4分(約250m)
    ・まいばすけっと大島5丁目店 徒歩3分(約210m)
    ・ライフ川崎大島店 徒歩8分(約580m)
    ・川崎市立向小学校 徒歩5分(約350m)

    物件詳細

    物件名 川崎市川崎区中島3丁目借地権付き店舗併用住宅
    物件番号 15152022
    所在地 神奈川県川崎市川崎区中島3丁目
    価格
    9,990万円
    交通 京急大師線港町」駅徒歩15 分
    間取り 2DK
    建物面積 368.76m2(約111.54坪)
    土地面積 257.85m2(約77.99坪)/他に私道負担:11.05m2あり
    階数
    構造
    地上2階建て
    軽量鉄骨
    築年月 1979年12月
    地目
    地勢
    宅地
    平坦
    接道状況 二方道路・東8m(公道)接面8.3m/西4m(私道)接面8.2m
    建ぺい率 60%
    容積率 200%
    都市計画 市街化区域
    用途地域 近隣商業地域/第2種住居地域
    引渡時期 相談
    現況 居住中
    駐車場 無し
    土地権利 普通借地権(賃借権)
    借地条件 借地料:月額83,300円/借地期限:2026年07月
    取引態様 仲介
    国土法 届出不要
    備考
    • ・間取りは2DK+店舗×4
    • ・近隣商業地域 建ぺい率80%、容積率300%
    • ・1階は店舗跡となっております。

    この情報は2026年02月21日当社物件システムのデータにもとづくものであり、次回更新予定日は2026年03月07日です。