建物面積
77.37 m2
(約23.40坪)
土地面積
82.36 m2
(約24.91坪)※公簿/セットバック済み/路地状部分:32.48m2含む
築年月
2024年10月

事業用不動産

1億1,000万円

江東区扇橋1丁目建物

一戸建て

一戸建て

1億1,000万円

江東区扇橋1丁目建物

☆令和6年10月築 ☆2駅3路線利用可能

東京都江東区扇橋1丁目

建物面積77.37m2(約23.40坪)・土地面積82.36m2(約24.91坪)※公簿/セットバック済み/路地状部分:32.48m2含む・2024年10月築

☆令和6年10月築 ☆2駅3路線利用可能

東京都江東区扇橋1丁目

物件のポイント

物件の特徴

  • 築5年以内
    築5年以内
  • 容積率100%以上
    容積率100%以上
  • スーパーまで徒歩10分以内
    スーパーまで徒歩10分以内
  • コンビニまで徒歩5分以内
    コンビニまで徒歩5分以内
  • 駐車場有
    駐車場有
  • 商業地域
    商業地域
  • 準工業地域
    準工業地域
  • セットバックなし・済み
    セットバックなし・済み
  • 前面道路公道
    前面道路公道
  • 築5年以内
    築5年以内
  • 容積率100%以上
    容積率100%以上
  • スーパーまで徒歩10分以内
    スーパーまで徒歩10分以内
  • コンビニまで徒歩5分以内
    コンビニまで徒歩5分以内
  • 駐車場有
    駐車場有
  • 商業地域
    商業地域
  • 準工業地域
    準工業地域
  • セットバックなし・済み
    セットバックなし・済み
  • 前面道路公道
    前面道路公道
  • 築5年以内
  • 駐車場有
  • セットバックなし・済み
    リフォーム

    --

    立地・周辺環境

    容積率100%以上|スーパーまで徒歩10分以内|コンビニまで徒歩5分以内|商業地域|準工業地域|防火・準防火|前面道路公道

    セールスポイント

    ╋┓アクセス
    ┗╋━━━━━━━━━━━━━━━━━
     ◇東京メトロ半蔵門線・都営新宿線「住吉」駅 徒歩12分
     ◇都営大江戸線「清澄白河」駅 徒歩14分

     
    ╋┓物件概要
    ┗╋━━━━━━━━━━━━━━━━━
     ◇令和6年10月築
     ◇木造2階建
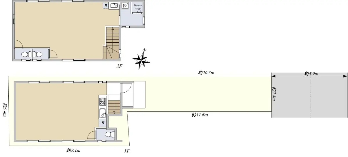
     ◇土地面積:82.36u(24.91坪)
     ◇建物面積:77.37u(公簿)

    ╋┓アピールポイント
    ┗╋━━━━━━━━━━━━━━━━━
     ◇令和6年10月築
     ◇2駅3路線利用可能
     ◇セットバック済み
     ◇お手洗3か所
     ◇主要用途:事務所

    担当からのひとこと

    〜ご購入をご検討中のお客様へ〜

    この度は、「江東区扇橋1丁目建物」のページをご覧いただき誠にありがとうございます。

    本物件は、最寄りの東京メトロ半蔵門線「住吉」駅まで徒歩12分の場所に位置しております。

    令和6年10月築の建物は、4方向採光につき、明るい室内でお過ごし頂けます。

    ご質問等・何かございましたら担当までご連絡くださいませ。

    ぜひ、現地をご案内させて頂けますと幸いです。

    ・セブンイレブン江東扇橋店 徒歩3分(約240m)
    ・業務スーパー石島店 徒歩4分(約310m)
    ・扇橋一丁目児童遊園 徒歩3分(約210m)
    ・江東区立扇橋小学校 徒歩3分(約180m)
    ・どらっぐぱぱす江東千石店 徒歩7分(約530m)

    物件詳細

    物件名 江東区扇橋1丁目建物
    物件番号 15222043
    所在地 東京都江東区扇橋1丁目
    価格
    1億1,000万円
    交通 東京メトロ半蔵門線住吉」駅徒歩12 分
    都営大江戸線清澄白河」駅徒歩14 分
    間取り 2K
    建物面積 77.37m2(約23.40坪)
    土地面積 82.36m2(約24.91坪)※公簿/セットバック済み/路地状部分:32.48m2含む
    階数
    構造
    地上2階建て
    木造
    築年月 2024年10月
    地目
    地勢
    宅地
    平坦
    接道状況 一方道路・東5.9m(公道)接面2.8m
    建ぺい率 60%
    容積率 300%
    都市計画 市街化区域
    用途地域 準工業地域/商業地域
    地域・地区 防火地域/第2種特別工業地区・準防火地域・第三種高度地区
    引渡時期 相談
    現況 居住中
    駐車場 有り/台数1台
    土地権利 所有権
    取引態様 仲介
    国土法 届出不要
    備考
    • ・駐車場:車種による
    • ・商業地域部分の建蔽率は80%、容積率は354%となります
    • ・システム上2Kとありますが、間取り・帖数詳細は不明です

    この情報は2026年04月06日当社物件システムのデータにもとづくものであり、次回更新予定日は2026年04月20日です。