• 予約制内覧会開催情報
  • 投資向け
  • 空き物件
建物面積
108.60 m2
(約32.85坪)
土地面積
65.24 m2
(約19.73坪)※公簿
築年月
1986年02月

事業・投資用不動産

7,980万円

板橋区坂下3丁目ビル

旅館

旅館

  • 予約制内覧会開催情報
  • 投資向け
  • 空き物件
7,980万円

板橋区坂下3丁目ビル

旅館業・民泊利用可 利便性良好

東京都板橋区坂下3丁目

建物面積108.60m2(約32.85坪)・土地面積65.24m2(約19.73坪)※公簿・1986年02月築

旅館業・民泊利用可 利便性良好

東京都板橋区坂下3丁目

予約制内覧会開催情報

現地で実際に物件をご覧いただけます。ぜひこの機会にお越しください。
事前に必ずお問い合わせください

開催日
  • 2026/3/20(金) 11:00〜17:00
  • 2026/3/21(土) 11:00〜17:00
  • 2026/3/22(日) 11:00〜17:00
住所

東京都板橋区坂下3丁目

パノラマ

物件のポイント

本物件は投資向け物件です

現在の賃貸状況
空き物件
投資用・事業用不動産について
  • 賃料等の収入や利回りは、将来にわたり、確実に得られることを保証するものではありません。
  • 賃料等は、賃貸中のものについては現在の賃料等で、新築および空室または一部空き有のものについては、周辺の賃料相場に基づき満室となった場合を想定して表示しています。
  • 利回りは、現況または満室想定時の賃料等の収入に基づく単純利回り(賃料等の年間合計金額÷ 販売価格(税込))で、公租公課や維持管理費等の必要経費は控除されていません。

物件の特徴

  • 容積率100%以上
    容積率100%以上
  • スーパーまで徒歩10分以内
    スーパーまで徒歩10分以内
  • コンビニまで徒歩5分以内
    コンビニまで徒歩5分以内
  • 前面道路幅員6m以上
    前面道路幅員6m以上
  • 準工業地域
    準工業地域
  • セットバックなし・済み
    セットバックなし・済み
  • 前面道路公道
    前面道路公道
  • 容積率100%以上
    容積率100%以上
  • スーパーまで徒歩10分以内
    スーパーまで徒歩10分以内
  • コンビニまで徒歩5分以内
    コンビニまで徒歩5分以内
  • 前面道路幅員6m以上
    前面道路幅員6m以上
  • 準工業地域
    準工業地域
  • セットバックなし・済み
    セットバックなし・済み
  • 前面道路公道
    前面道路公道
  • セットバックなし・済み
    リフォーム

    --

    立地・周辺環境

    容積率100%以上|スーパーまで徒歩10分以内|コンビニまで徒歩5分以内|前面道路幅員6m以上|準工業地域|防火・準防火|前面道路公道

    セールスポイント

    【板橋区坂下3丁目ビル】のページをご覧頂き有難うございます。

    ◇不動産の購入を検討中のお客様へ◇
    物件のご検討については、一度現地を見ていただく事をお勧めします。

    間取り図面や写真では判断できない部分もあります。
    現地をご覧頂くことで周辺環境や室内の状況等を確認いただくだけでなく、
    担当者より、物件の長所・短所や購入の流れ等を詳しくご説明させて頂きます。
    内覧をご希望のお客様はお気軽にお問い合わせ下さい。

    <<おススメポイント>>
    〇旅館業・民泊利用可エリア※建築基準法及び東京都建築安全条例の基準を満たす必要があります。
    〇各階独立
    〇利便性良好
    〇公道接道

    <<周辺施設>>
    〇セブンイレブン蓮根店…約100m(徒歩2分)
    〇スギ薬局蓮根店…約240m(徒歩3分)
    〇志村橋郵便局…約340m(徒歩5分)
    〇ビッグ・エー板橋蓮根店…約350m(徒歩5分)
    〇まいばすけっと蓮根駅前店…約430m(徒歩6分)
    〇セブンイレブン板橋蓮根駅前店…約440m(徒歩6分)

    担当からのひとこと

    【板橋区坂下3丁目ビル】のページをご覧頂きありがとうございます。

    物件に関することやその他不動産の購入に関するご質問等ございましたら、
    フリーコール【0120−060−406】

    お気軽に物件担当の『竹内(たけうち)』までお問い合わせください。

    ◆◆お買い替えによるご自宅の無料査定実施中◆◆
    今お住まいのご自宅からお買い替えを検討しているお客様が

    いらっしゃいましたらお気軽にお問い合わせください。
    ご自宅の無料査定、無料相談は随時承っております。
    他地域にご所有の遊休地やビル、アパート等、不動産に関することは
    お気軽に『竹内(たけうち)』までお問い合わせください。

    ・セブンイレブン蓮根店 徒歩2分(約100m)
    ・志村橋郵便局 徒歩5分(約340m)
    ・ビッグ・エー板橋蓮根店 徒歩5分(約350m)
    ・まいばすけっと蓮根駅前店 徒歩6分(約430m)
    ・セブンイレブン板橋蓮根駅前店 徒歩6分(約440m)

    物件詳細

    物件名 板橋区坂下3丁目ビル
    物件番号 15424028
    所在地 東京都板橋区坂下3丁目
    価格
    7,980万円
    交通 都営三田線蓮根」駅徒歩7 分
    都営三田線西台」駅徒歩10 分
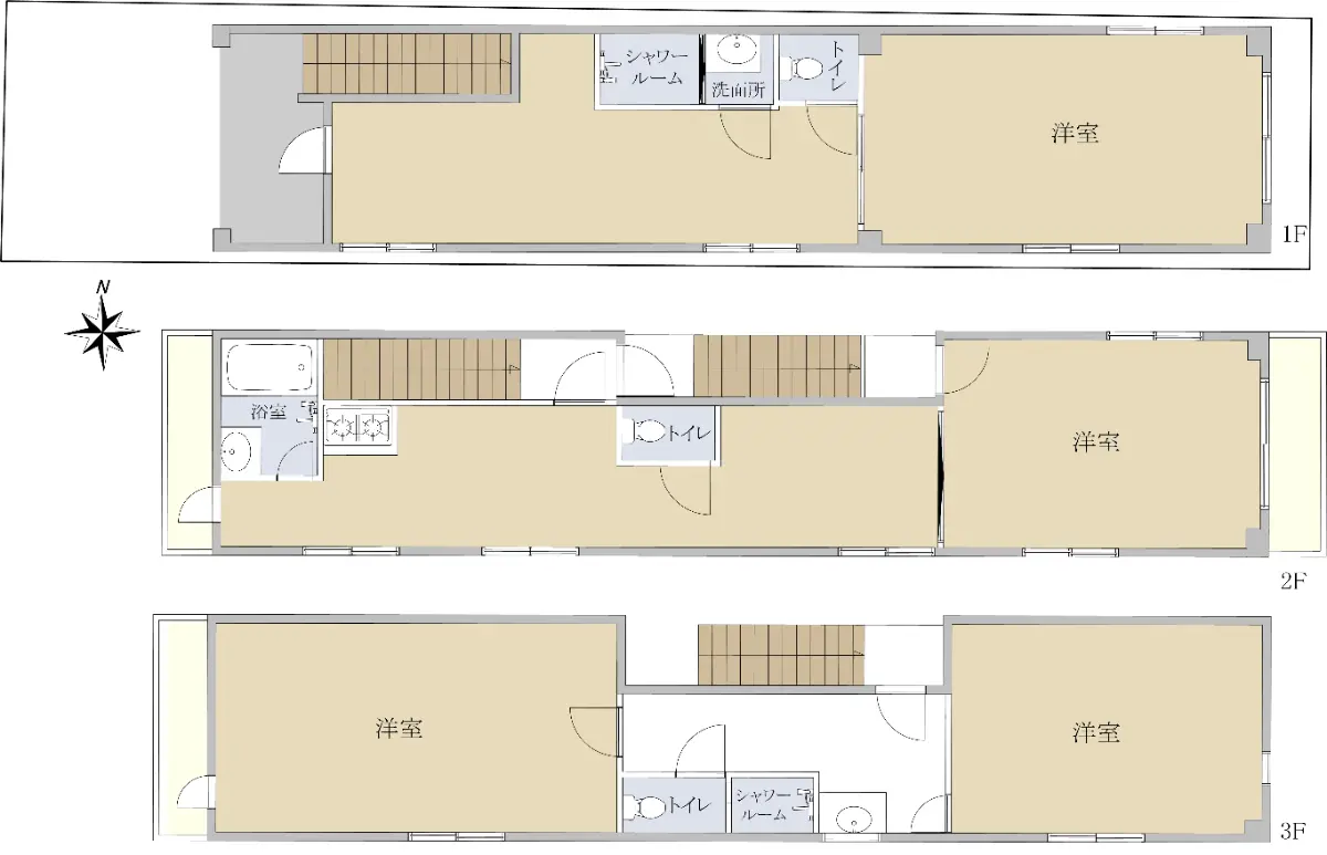
    建物面積 108.60m2(約32.85坪)
    土地面積 65.24m2(約19.73坪)※公簿
    階数
    構造
    地上3階建て
    鉄骨造
    築年月 1986年02月
    地目
    地勢
    宅地
    平坦
    接道状況 一方道路・西10.9m(公道)接面3.6m
    建ぺい率 60%
    容積率 200%
    都市計画 市街化区域
    用途地域 準工業地域
    地域・地区 準防火地域
    引渡時期 相談
    現況 空家
    駐車場 無し
    土地権利 所有権
    取引態様 仲介
    国土法 届出不要

    この情報は2026年03月12日当社物件システムのデータにもとづくものであり、次回更新予定日は2026年03月26日です。