• 新着
  • 空き物件
建物面積
116.76 m2
(約35.31坪)
土地面積
380.77 m2
(約115.18坪)
築年月
2000年11月

事業用不動産

2,980万円

青梅市塩船店舗付き戸建

一戸建て

一戸建て

  • 新着
  • 空き物件
2,980万円

青梅市塩船店舗付き戸建

◆◇青梅市塩船店舗付き戸建◇◆

東京都青梅市塩船

  • 青梅線河辺」駅バス10 分「塩船観音入口」バス停徒歩7 分
建物面積116.76m2(約35.31坪)・土地面積380.77m2(約115.18坪)・2000年11月築

◆◇青梅市塩船店舗付き戸建◇◆

東京都青梅市塩船

  • 青梅線河辺」駅バス10 分「塩船観音入口」バス停徒歩7 分

物件のポイント

物件の特徴

  • 低層住居専用地域
    低層住居専用地域
  • 小学校まで徒歩10分以内
    小学校まで徒歩10分以内
  • 公園まで徒歩5分以内
    公園まで徒歩5分以内
  • 駐車場有
    駐車場有
  • 土地面積100坪以上
    土地面積100坪以上
  • 前面道路公道
    前面道路公道
  • 低層住居専用地域
    低層住居専用地域
  • 小学校まで徒歩10分以内
    小学校まで徒歩10分以内
  • 公園まで徒歩5分以内
    公園まで徒歩5分以内
  • 駐車場有
    駐車場有
  • 土地面積100坪以上
    土地面積100坪以上
  • 前面道路公道
    前面道路公道
  • 駐車場有
  • 土地面積100坪以上
    リフォーム

    --

    立地・周辺環境

    低層住居専用地域|小学校まで徒歩10分以内|公園まで徒歩5分以内|前面道路公道

    セールスポイント

    ■JR青梅線「河辺」駅 バス10分「塩船観音入口」バス停徒歩7分
    ■土地面積:380.77u(115.18坪)
    ■閑静な住宅街にある店舗付き戸建
    ■四季折々の情景を感じられる住環境

    ■カースペース3台分有(車種による)【ライフインフォメーション】
    ◇青梅市立吹上小学校 ・・・ 約730m
    ◇青梅市立吹上中学校 ・・・ 約280m
    ◇ファミリーマート青梅大門店 ・・・ 約760m
    ◇オザムバリュー野上店 ・・・ 約1430m
    ◇クリエイトSD青梅野上店 ・・・ 約1490m
    ◇青梅慶友病院 ・・・ 約700m
    ◇霞丘陵南公園 ・・・ 約20m

    担当からのひとこと

    この度は『 青梅市塩船店舗付き戸建 』をご覧いただき、誠に有難うございます。
    本物件は、徒歩10分圏内に小学校、中学校、コンビニエンスストア、公園、総合病院などがあり利便性が高いです。
    ご興味をお持ちの際は、是非一度ご内覧ください。

    現地見学希望・住宅ローンのご相談など、お問い合わせお待ちしております。
    物件の詳細や資料請求のお問い合わせは担当『木下』まで、お気軽にお問い合わせください。
    お客様専用フリーコール:0120-258-532

    ・青梅市立吹上小学校 徒歩10分(約730m)
    ・青梅市立吹上中学校 徒歩4分(約280m)
    ・ファミリーマート青梅大門店 徒歩10分(約760m)
    ・オザムバリュー野上店 徒歩18分(約1430m)
    ・霞丘陵南公園 徒歩1分(約20m)

    物件詳細

    物件名 青梅市塩船店舗付き戸建
    物件番号 15492044
    所在地 東京都青梅市塩船
    価格
    2,980万円
    交通 青梅線河辺」駅バス10 分「塩船観音入口」バス停徒歩7 分
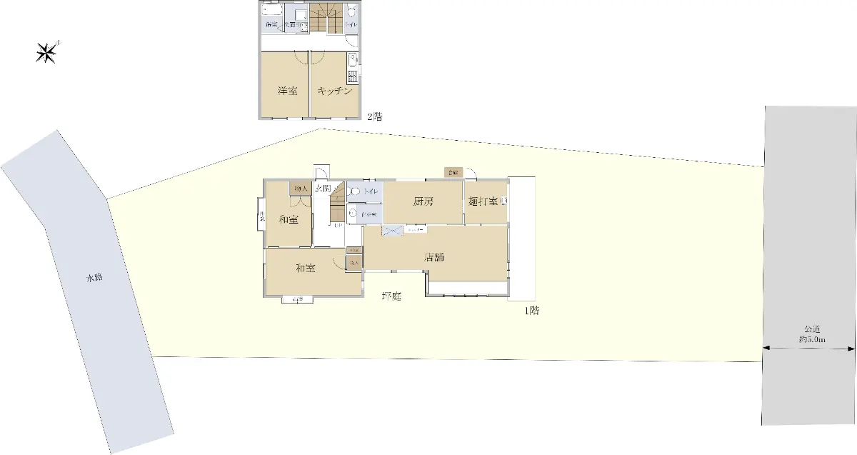
    間取り 3DK
    建物面積 116.76m2(約35.31坪)
    土地面積 380.77m2(約115.18坪)
    階数
    構造
    地上2階建て
    木造
    築年月 2000年11月
    地目
    地勢
    宅地
    平坦
    接道状況 一方道路・北東5m(公道)接面10.4m
    建ぺい率 40%
    容積率 80%
    都市計画 市街化区域
    用途地域 第1種低層住居専用地域
    引渡時期 相談
    現況 空家
    駐車場 有り/台数3台/自走/屋根なし
    土地権利 所有権
    取引態様 仲介
    国土法 届出不要
    備考
    • ・カースペース3台(車種による)
    • ・間取帖数不詳

    この情報は2025年10月09日当社物件システムのデータにもとづくものであり、次回更新予定日は2025年10月23日です。