• 新着
建物面積
433.86 m2
(約131.24坪)
土地面積
247.96 m2
(約75.00坪)※公簿
築年月
1983年04月

事業用不動産

7,950万円

逗子市池子2丁目一棟ビル

事務所

事務所

  • 新着
7,950万円

逗子市池子2丁目一棟ビル

■京浜急行線「神武寺駅」徒歩5分の一棟ビル

神奈川県逗子市池子2丁目

建物面積433.86m2(約131.24坪)・土地面積247.96m2(約75.00坪)※公簿・1983年04月築

■京浜急行線「神武寺駅」徒歩5分の一棟ビル

神奈川県逗子市池子2丁目

物件のポイント

物件の特徴

  • 容積率100%以上
    容積率100%以上
  • 駅徒歩5分以内
    駅徒歩5分以内
  • 駐車場有
    駐車場有
  • 前面道路幅員6m以上
    前面道路幅員6m以上
  • 第一種住居地域
    第一種住居地域
  • セットバックなし・済み
    セットバックなし・済み
  • 土地面積50坪以上
    土地面積50坪以上
  • 前面道路公道
    前面道路公道
  • 容積率100%以上
    容積率100%以上
  • 駅徒歩5分以内
    駅徒歩5分以内
  • 駐車場有
    駐車場有
  • 前面道路幅員6m以上
    前面道路幅員6m以上
  • 第一種住居地域
    第一種住居地域
  • セットバックなし・済み
    セットバックなし・済み
  • 土地面積50坪以上
    土地面積50坪以上
  • 前面道路公道
    前面道路公道
  • 駐車場有
  • セットバックなし・済み
  • 土地面積50坪以上
    リフォーム

    --

    立地・周辺環境

    容積率100%以上|駅徒歩5分以内|前面道路幅員6m以上|第一種住居地域|前面道路公道

    セールスポイント

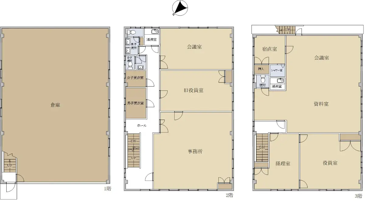
    ■敷地面積247.96u(約75坪)
    ■建物延べ床面積433.86u(約131坪)
    ■1階部分は倉庫、2・3階部分は事務所
    ■室内状況はとても綺麗な状況です

    担当からのひとこと

    この度は「逗子市池子2丁目一棟ビル」をご覧頂き、誠にありがとうございます。
    1階はフロア前面が倉庫、2、3階が事務所となっている物件です。
    法人の本社としてはもちろん、リフォーム次第で様々な用途に利用できる物件です。
    ぜひ一度現地をご内覧してみてはいかがでしょうか。


    *****お客様へお願い******
    物件探しの基本はやはり「物件を実際に見て頂くこと」にあります。
    写真や図面だけではなく、実際に現地を見て頂く事をお勧めいたします。
    現地を見て頂くことで、周辺環境や、
    物件の状態が明確にご理解いただけるとともに、
    プロの目から見た物件の長所・短所、購入の際の注意点を
    詳しくご説明させていただきます。

    --

    物件詳細

    物件名 逗子市池子2丁目一棟ビル
    物件番号 15724008
    所在地 神奈川県逗子市池子2丁目
    価格
    7,950万円
    交通 京急逗子線神武寺」駅徒歩5 分
    建物面積 433.86m2(約131.24坪)
    土地面積 247.96m2(約75.00坪)※公簿
    階数
    構造
    地上3階建て
    鉄骨造
    築年月 1983年04月
    地目
    地勢
    宅地
    平坦
    接道状況 一方道路・北西9.5m(公道)接面11m
    建ぺい率 60%
    容積率 200%
    都市計画 市街化区域
    用途地域 第1種住居地域
    引渡時期 相談
    現況 居住中
    駐車場 有り/自走/屋根なし
    土地権利 所有権
    取引態様 仲介
    国土法 届出不要
    備考
    • ・駐車場:車種による

    この情報は2026年03月30日当社物件システムのデータにもとづくものであり、次回更新予定日は2026年04月13日です。