• 新着
  • 空き物件
建物面積
90.74 m2
(約27.44坪)
土地面積
82.64 m2
(約24.99坪)※公簿
築年月
2005年10月

事業用不動産

4,999万円

江戸川区北小岩7丁目建物

一戸建て

一戸建て

  • 新着
  • 空き物件
4,999万円

江戸川区北小岩7丁目建物

☆平成17年10月建築 ☆土地面積:82.64u ☆西側公道に面す

東京都江戸川区北小岩7丁目

建物面積90.74m2(約27.44坪)・土地面積82.64m2(約24.99坪)※公簿・2005年10月築

☆平成17年10月建築 ☆土地面積:82.64u ☆西側公道に面す

東京都江戸川区北小岩7丁目

物件のポイント

物件の特徴

  • 2沿線以上利用可
    2沿線以上利用可
  • リフォーム済み
    リフォーム済み
  • 容積率100%以上
    容積率100%以上
  • 前面道路幅員6m以上
    前面道路幅員6m以上
  • 第一種中高層住居専用地域
    第一種中高層住居専用地域
  • 前面道路公道
    前面道路公道
  • 2沿線以上利用可
    2沿線以上利用可
  • リフォーム済み
    リフォーム済み
  • 容積率100%以上
    容積率100%以上
  • 前面道路幅員6m以上
    前面道路幅員6m以上
  • 第一種中高層住居専用地域
    第一種中高層住居専用地域
  • 前面道路公道
    前面道路公道
  • プロパンガス
  • 上水道
  • 下水道
  • システムキッチン
    リフォーム

    ●2023年06月/外壁塗装

    ●2023年06月/屋根上張り

    ●2023年06月/コーキング打替え

    立地・周辺環境

    2沿線以上利用可|容積率100%以上|前面道路幅員6m以上|第一種中高層住居専用地域|防火・準防火|前面道路公道

    セールスポイント

    アクセス
    ――――――――――――――――■■■ 
     〜3駅2路線利用可能〜

    ・京成本線「京成小岩」駅まで徒歩13分
    ・京成本線「江戸川」駅まで徒歩15分
    ・北総線 「新柴又」駅まで徒歩16分




    修繕履歴(2023年6月工事完了)
    ――――――――――――――――■■■ 

    ・外壁塗装
    ・コーキング打替え
    ・屋根上張り



    物件概要
    ――――――――――――――――■■■ 

    ・土地面積(公簿):82.64u(24.99坪)
    ・建物面積(公簿):90.74u(27.44坪)
    ・築年月:平成17年10月建築
    ・木造スレートぶき2階建
    ・接道:西側公道(幅員約7.2m)

    担当からのひとこと

    この度は「江戸川区北小岩7丁目建物」のページをご覧頂き、誠にありがとうございます。

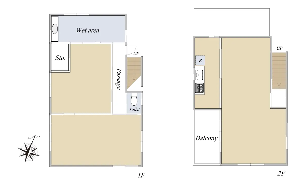
    本物件は、オーナー様が『やきもの工房』として利用していました。
    1階を工房や作業スペースとしてお使いいただき、2階にはLDKがあります。
    作業の合間に休憩しながら作品作りができるおすすめ物件でございます。

    ご質問・資料請求・現地見学希望の際は、お気軽にご相談ください。
    フリーコール:0120−122−271 
    ご連絡を心よりお待ちしております。

    --

    物件詳細

    物件名 江戸川区北小岩7丁目建物
    物件番号 16222004
    所在地 東京都江戸川区北小岩7丁目
    価格
    4,999万円
    交通 京成本線京成小岩」駅徒歩13 分
    京成本線江戸川」駅徒歩15 分
    北総鉄道新柴又」駅徒歩16 分
    間取り 1K
    建物面積 90.74m2(約27.44坪)
    土地面積 82.64m2(約24.99坪)※公簿
    階数
    構造
    地上2階建て
    木造
    築年月 2005年10月
    地目
    地勢
    宅地
    平坦
    接道状況 一方道路・西7.2m(公道)接面10.4m
    建ぺい率 60%
    容積率 150%
    都市計画 市街化区域
    用途地域 第1種中高層住居専用地域
    地域・地区 準防火地域
    引渡時期 相談
    現況 空家
    駐車場 無し
    土地権利 所有権
    取引態様 仲介
    国土法 届出不要
    備考
    • ・システム上1Kとありますが、正しくは不詳です

    この情報は2026年04月17日当社物件システムのデータにもとづくものであり、次回更新予定日は2026年05月01日です。