• おすすめ物件
  • 新着
  • 投資向け
  • オーナーチェンジ
建物面積
531.56 m2
(約160.79坪)
土地面積
229.92 m2
(約69.55坪)※公簿
築年月
築年月不詳

事業・投資用不動産

18億5,900万円

千代田区西神田1棟ビル

ビル(一棟)

ビル(一棟)

  • 新着
  • 投資向け
  • オーナーチェンジ
18億5,900万円

千代田区西神田1棟ビル

■千代田区西神田エリアに佇む収益1棟ビル ■前面道路22m以上

東京都千代田区西神田2丁目

建物面積531.56m2(約160.79坪)・土地面積229.92m2(約69.55坪)※公簿・築年月不詳

■千代田区西神田エリアに佇む収益1棟ビル ■前面道路22m以上

東京都千代田区西神田2丁目

物件のポイント

本物件は投資向け物件です

想定利回り
0.68 %
想定利回り
0.68 %
年間想定賃料等
1,265万8,128
月額賃料等
105万4,844
現在の賃貸状況
一部賃貸中
オーナーチェンジ
投資用・事業用不動産について
  • 賃料等の収入や利回りは、将来にわたり、確実に得られることを保証するものではありません。
  • 賃料等は、賃貸中のものについては現在の賃料等で、新築および空室または一部空き有のものについては、周辺の賃料相場に基づき満室となった場合を想定して表示しています。
  • 利回りは、現況または満室想定時の賃料等の収入に基づく単純利回り(賃料等の年間合計金額÷ 販売価格(税込))で、公租公課や維持管理費等の必要経費は控除されていません。

物件の特徴

  • 都市ガス
    都市ガス
  • 南道路(南東・南西含む)
    南道路(南東・南西含む)
  • 容積率100%以上
    容積率100%以上
  • 駅徒歩5分以内
    駅徒歩5分以内
  • 前面道路幅員6m以上
    前面道路幅員6m以上
  • 商業地域
    商業地域
  • セットバックなし・済み
    セットバックなし・済み
  • 土地面積50坪以上
    土地面積50坪以上
  • 前面道路公道
    前面道路公道
  • 都市ガス
    都市ガス
  • 南道路(南東・南西含む)
    南道路(南東・南西含む)
  • 容積率100%以上
    容積率100%以上
  • 駅徒歩5分以内
    駅徒歩5分以内
  • 前面道路幅員6m以上
    前面道路幅員6m以上
  • 商業地域
    商業地域
  • セットバックなし・済み
    セットバックなし・済み
  • 土地面積50坪以上
    土地面積50坪以上
  • 前面道路公道
    前面道路公道
  • 都市ガス
  • 上水道
  • 下水道
  • 給湯
  • セットバックなし・済み
  • 土地面積50坪以上
    リフォーム

    --

    立地・周辺環境

    南道路(南東・南西含む)|容積率100%以上|駅徒歩5分以内|前面道路幅員6m以上|商業地域|前面道路公道

    セールスポイント

    〔交通アクセス〕
    ◆3駅利用可能

    〔物件概要〕
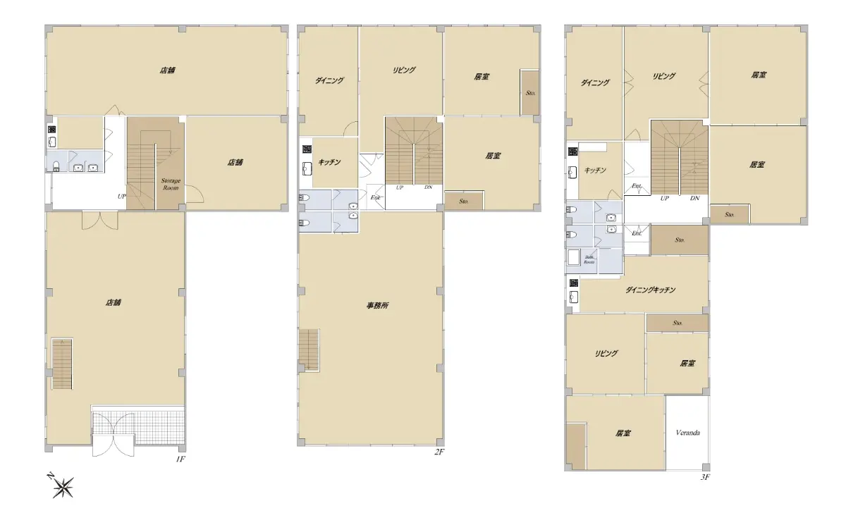
    ・千代田区西神田1棟ビル

    ●建物概要
    ・建物面積:531.56u(160.79坪)
    ※屋上に2棟の増築未登記建物(小屋)あり
    ※1階東側壁面に増築未登記家屋(倉庫)あり

    ●土地概要(所有権)
    ・土地面積(公簿):229.92u(69.55坪)
    ・接道状況:南西側公道、幅員約22.9mに約6.8m接する
    ・接道状況:北西側公道、幅員約3mに約20.7m接する
    ・用途地域:商業地域
    ・建ぺい率:80% 
    ・容積率:600%
    ・地目:宅地
    ・その他:「千代田区駐車場整備地区」「神田地域」等・賃貸状況(オーナーチェンジ):一部賃貸中(現況貸室数9/総貸室数8)

    ・月額賃料:「1,054,844円」円(2026年4月19日現在)
    ・年額賃料:「12,658,128」円(2026年4月19日現在)※現況貸室数8/総貸室数9
    ・表面利回り:「0.68」%
    ※賃料等の収入や利回りは、将来にわたり、確実に得られることを保証するものではありません。
    ※賃料等は、賃貸中のものについては現在の賃料等で、新築および空室または一部空き有のものについては、周辺の賃料相場に基づき満室となった場合を想定して表示しています。
    ※利回りは、現況または満室想定時の賃料等の収入に基づく単純利回り(賃料等の年間合計金額÷ 販売価格(税込)×100%)で、公租公課や維持管理費等の必要経費は控除されていません。

    担当からのひとこと

    この度は【宮川ビル】をご覧頂き誠に有り難う御座います。
    本物件は、東京メトロ半蔵門線「神保町」駅 徒歩4分、都営新宿線「九段下」駅 徒歩6分、JR総武・中央緩行線「水道橋」駅 徒歩7分。水道橋西通りに面した南西向きの1棟収益ビルです。
    ご興味がありましたら、お気軽に申し付けください。

    ☆不動産の購入を検討されているお客様へ☆ 
    初めて不動産を探される方は、住宅ローンや税金等、安い買い物ではない為、不安な部分も多いかと思います。
    ローンを組まれる場合、担当者の知識や経験により、組める金融機関の選定が変わってきます。
    その為、お支払い金額も変わってきますので、担当者選びがとても重要になります。
    物件選びも担当者の提案力により新たな選択肢も増えてきます。
    弊社に掲載されている物件以外でも、気になる物件があればまずはお気軽に相談頂ければと思います。


    ☆不動産の売却を検討中のお客様へ☆
    ご所有不動産の無料査定、無料相談を随時承っております。
    マンション、戸建、ビル、アパート、相続等、買い替えなど不動産に関することはお気軽にご相談下さい。
    重要な資産をご売却するにあたって、仲介業者によって変わってきます。

    --

    物件詳細

    物件名 千代田区西神田1棟ビル
    物件番号 162Q4001
    所在地 東京都千代田区西神田2丁目
    価格
    18億5,900万円
    交通 東京メトロ半蔵門線神保町」駅徒歩4 分
    都営新宿線九段下」駅徒歩6 分
    総武線水道橋」駅徒歩7 分
    建物面積 531.56m2(約160.79坪)
    土地面積 229.92m2(約69.55坪)※公簿
    階数
    構造
    地上3階建て
    鉄筋コンクリート造
    築年月 築年月不詳
    地目
    地勢
    宅地
    平坦
    総住戸数 9 戸
    各住戸の専有面積 不詳
    接道状況 一方道路・南西22.9m(公道)接面6.8m/北西3m(公道)接面20.7m
    建ぺい率 80%
    容積率 600%
    都市計画 市街化区域
    用途地域 商業地域
    その他月額費用 町会費:月額840円
    引渡時期 相談
    現況 賃貸中
    駐車場 無し
    土地権利 所有権
    取引態様 仲介
    備考
    • ・1階東側壁面に増築未登記家屋(倉庫)あり
    • ・屋上に2棟の増築未登記建物(小屋)あり

    この情報は2026年04月20日当社物件システムのデータにもとづくものであり、次回更新予定日は2026年05月04日です。