• 空き物件
建物面積
1762.18 m2
(約533.05坪)
土地面積
1661.00 m2
(約502.45坪)※公簿
築年月
1994年02月

事業用不動産

1億6,000万円

北広島市共栄

その他建物(一棟)

その他建物(一棟)

  • 空き物件
1億6,000万円

北広島市共栄

◎敷地面積:1661u(502.45坪)

北海道北広島市共栄

建物面積1762.18m2(約533.05坪)・土地面積1661.00m2(約502.45坪)※公簿・1994年02月築

◎敷地面積:1661u(502.45坪)

北海道北広島市共栄

物件のポイント

物件の特徴

  • 容積率100%以上
    容積率100%以上
  • 駐車場有
    駐車場有
  • 前面道路幅員6m以上
    前面道路幅員6m以上
  • 準工業地域
    準工業地域
  • セットバックなし・済み
    セットバックなし・済み
  • 土地面積100坪以上
    土地面積100坪以上
  • 前面道路公道
    前面道路公道
  • 容積率100%以上
    容積率100%以上
  • 駐車場有
    駐車場有
  • 前面道路幅員6m以上
    前面道路幅員6m以上
  • 準工業地域
    準工業地域
  • セットバックなし・済み
    セットバックなし・済み
  • 土地面積100坪以上
    土地面積100坪以上
  • 前面道路公道
    前面道路公道
  • 駐車場有
  • セットバックなし・済み
  • 土地面積100坪以上
    リフォーム

    --

    立地・周辺環境

    容積率100%以上|前面道路幅員6m以上|準工業地域|前面道路公道

    セールスポイント

    ◎敷地面積:1661u(502.45坪)
    ◆建物面積:1762.18u(533.05坪)
    ◆バス停「共栄」まで徒歩1分
    ◆1994年2月築


    【周辺環境】
    ・わかくさ公園 約590m(徒歩8分)
    ・コープさっぽろきたひろしま店 約1270m(徒歩16分)
    ・セブンイレブン北広島朝日町店 約1540m(徒歩20分)

    担当からのひとこと

    「北広島市共栄」の土地建物を販売いたします。

    本物件は、国道274号線と江別恵庭線の交差点近くに位置しており、札幌市、江別市、恵庭市、南幌町、長沼町、北広島
    市内への車での交通が便利です。

    土地面積1661u(502.45坪)、土地間口約23.6m、江別恵庭線に面しています。
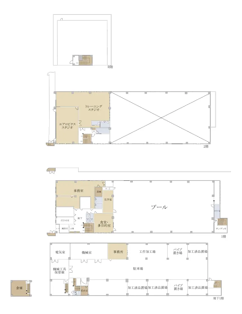
    建物面積1762.18u(533.05坪)、1994年2月築、構造は鉄筋コンクリート・鉄骨・鉄骨鉄筋コンクリート造亜鉛メッキ鋼板葺・陸屋根地下1階付2階建、登記上の種類は体育館・駐車場となっています。
    建物は元々総合スポーツジム施設だったものを2020年7月頃に一部を事務所に改修しています。
    同時期に屋上防水改修工事、一部外壁塗装・一部外壁サイディング重ね張りも行っています。
    屋内駐車場と屋外駐車スペースを合わせますと車種によりますが、約40台ほど駐車可能です。

    担当「大西」までお問い合わせください。
    フリーコール0120-925-952

    --

    物件詳細

    物件名 北広島市共栄
    物件番号 95434013
    所在地 北海道北広島市共栄
    価格
    1億6,000万円
    交通 千歳線北広島」駅バス10 分「共栄」バス停徒歩1 分
    建物面積 1762.18m2(約533.05坪)
    土地面積 1661.00m2(約502.45坪)※公簿
    階数
    構造
    地上2階地下1階建て
    その他
    築年月 1994年02月
    地目
    地勢
    雑種地(現況:宅地)
    平坦
    接道状況 一方道路・西29.3m(公道)接面23.6m
    建ぺい率 60%
    容積率 200%
    都市計画 市街化区域
    用途地域 準工業地域
    地域・地区 建築基準法第22条区域/宅地造成工事規制区域
    引渡時期 相談
    現況 空家
    駐車場 有り/自走/屋根なし
    土地権利 所有権
    取引態様 仲介
    国土法 届出不要
    備考
    • ・バス所要時間調査日:2025年11月7日
    • ・建物面積には地下面積741.44uを含む/地目:原野、雑種地
    • ・構造:鉄筋コンクリート・鉄骨・鉄骨鉄筋コンクリート造/登記上は体育館・駐車場となっております。

    この情報は2026年03月20日当社物件システムのデータにもとづくものであり、次回更新予定日は2026年04月03日です。