• 新着
建物面積
454.18 m2
(約137.38坪)
土地面積
301.82 m2
(約91.30坪)※公簿
築年月
1995年02月

事業用不動産

1億9,500万円

中村区並木1丁目戸建

一戸建て

一戸建て

  • 新着
1億9,500万円

中村区並木1丁目戸建

■地下鉄東山線「八田」駅徒歩5分 

愛知県名古屋市中村区並木1丁目

建物面積454.18m2(約137.38坪)・土地面積301.82m2(約91.30坪)※公簿・1995年02月築

■地下鉄東山線「八田」駅徒歩5分 

愛知県名古屋市中村区並木1丁目

物件のポイント

物件の特徴

  • 容積率100%以上
    容積率100%以上
  • 駅徒歩5分以内
    駅徒歩5分以内
  • 駐車場有
    駐車場有
  • 前面道路幅員6m以上
    前面道路幅員6m以上
  • 準工業地域
    準工業地域
  • セットバックなし・済み
    セットバックなし・済み
  • 土地面積50坪以上
    土地面積50坪以上
  • 前面道路公道
    前面道路公道
  • 容積率100%以上
    容積率100%以上
  • 駅徒歩5分以内
    駅徒歩5分以内
  • 駐車場有
    駐車場有
  • 前面道路幅員6m以上
    前面道路幅員6m以上
  • 準工業地域
    準工業地域
  • セットバックなし・済み
    セットバックなし・済み
  • 土地面積50坪以上
    土地面積50坪以上
  • 前面道路公道
    前面道路公道
  • 駐車場有
  • セットバックなし・済み
  • 土地面積50坪以上
    リフォーム

    --

    立地・周辺環境

    容積率100%以上|駅徒歩5分以内|前面道路幅員6m以上|準工業地域|防火・準防火|前面道路公道

    セールスポイント

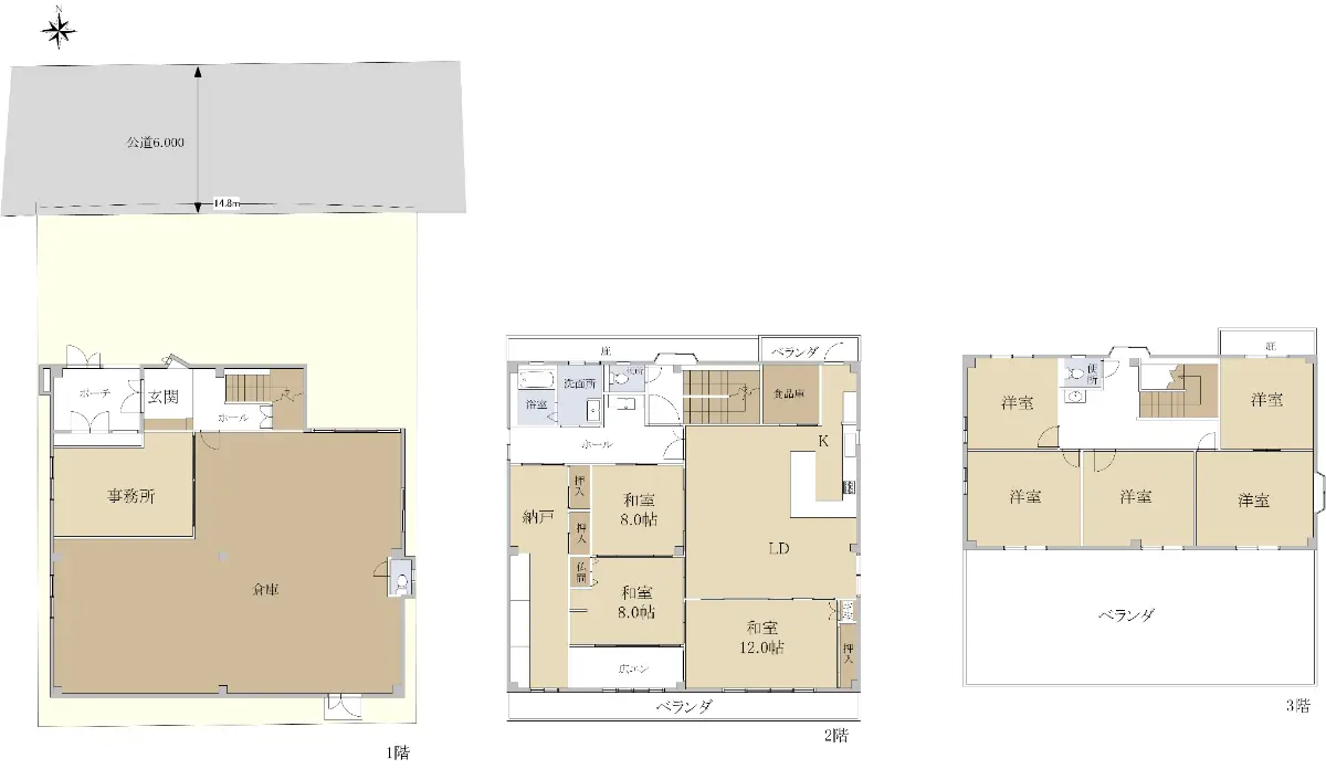
    ■8LDK+事務所+倉庫
    ■1階部分倉庫兼事務所
    ■2階、3階部分居宅スペース
    ■1995年築

    ■鉄骨造

    担当からのひとこと

    ***不動産の購入を検討中のお客様へ****
    物件探しの基本は「物件を実際に見て頂くこと」にあります。
    写真や図面だけではなく、実際に現地を見て頂く事をお勧めいたします。
    現地を見て頂くことで、周辺環境や物件の状態が明確にご理解頂けるとともに、

    プロの目から見た物件の長所・短所、購入の際の注意点を詳しくご説明させて頂きます。
    こちらの物件にご興味をお持ちのお客様は是非ともお問い合わせください。
    心よりお待ちしております。

    *-*-*-*-*ご自宅の『売却』もお任せください*-*-*-*-*
    ・『売却が先か購入が先か』買替えたいけど、何から始めたら良いのか分からない。
    ・所有不動産の相場を確認しておきたい。
    ・自宅の住宅ローンがまだ残っているので、無理のない資金計画を相談したい。

    お住まいの購入から売却まで、お客様のご事情に合わせてサポートいたします。

    ・セブンイレブン名古屋豊国通烏森店 徒歩3分(約220m)
    ・スギドラッグ岩塚店 徒歩7分(約560m)
    ・岩塚小学校 徒歩14分(約1100m)
    ・御田中学校 徒歩9分(約700m)

    物件詳細

    物件名 中村区並木1丁目戸建
    物件番号 95712124
    所在地 愛知県名古屋市中村区並木1丁目
    価格
    1億9,500万円
    交通 地下鉄東山線八田」駅徒歩5 分
    関西本線八田」駅徒歩7 分
    地下鉄東山線岩塚」駅徒歩10 分
    間取り 8LDK
    建物面積 454.18m2(約137.38坪)
    土地面積 301.82m2(約91.30坪)※公簿
    階数
    構造
    地上3階建て
    鉄骨造
    築年月 1995年02月
    地目
    地勢
    宅地
    平坦
    接道状況 一方道路・北6m(公道)接面14.8m
    建ぺい率 60%
    容積率 200%
    都市計画 市街化区域
    用途地域 準工業地域
    地域・地区 準防火地域
    引渡時期 相談
    現況 居住中
    駐車場 有り/台数5台/自走
    土地権利 所有権
    取引態様 仲介
    国土法 届出不要
    備考
    • ・駐車場:車種による。
    • ・事務所・倉庫:各面積不詳。

    この情報は2026年03月30日当社物件システムのデータにもとづくものであり、次回更新予定日は2026年04月13日です。