千早営業センター
  • TEL
    0120-228-667
  • 最寄駅
    • ・鹿児島本線 千早駅
    • ・西日本鉄道貝塚線 西鉄千早駅

取扱物件一覧(中古一戸建て)

  • マンション
  • 中古一戸建て
  • 新築一戸建て
  • 土地
  • 事業用
  • 投資用

31件中1〜30件を表示

  • 画像を大きく表示
  • リストで表示

表示件数

並び替え

チェックした物件をまとめて

資料請求・お問い合わせ

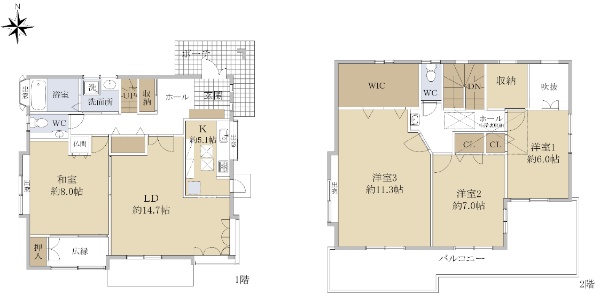
◆谷川建設施工の注文住宅◆8SLDK+屋根裏収納あり♪リフォーム履歴多数♪

  • 南道路(南西・南東含む)に接道
  • 低層住居専用地域に立地
  • 建物面積が100m?以上
フロア画像を拡大する
画像枚数19枚
価格
3,980万円
所在地
福岡県大野城市月の浦2丁目
交通

鹿児島本線大野城」駅バス22分徒歩1分

西鉄天神大牟田線春日原」駅バス27分徒歩1分

西鉄天神大牟田線下大利」駅バス26分徒歩1分

間取り/建物面積
8SLDK / 170.47m²
土地面積
284.05m²
築年月
2001年12月築
  • 気になるリストへ
  • 比較リストへ

資料請求・お問い合わせ

☆注文住宅☆ALL電化☆2002年築☆床面積155u☆駐車場3台分☆庭付

  • 建物面積が100m?以上
フロア画像を拡大する
画像枚数18枚
価格
3,480万円
所在地
福岡県糟屋郡新宮町花立花2丁目
交通

鹿児島本線福工大前」駅バス20分徒歩2分

間取り/建物面積
3LDK / 155m²
土地面積
258.37m²
築年月
2002年10月築
  • 気になるリストへ
  • 比較リストへ

資料請求・お問い合わせ

◆積水施工の注文住宅◆ オーバーハング/玄関テラス/吹抜/太陽光発電あり♪

  • 駅徒歩10分以内
  • 南道路(南西・南東含む)に接道
  • 建物面積が100m?以上
フロア画像を拡大する
画像枚数15枚
価格
1億500万円
所在地
福岡県福岡市南区塩原1丁目
交通

鹿児島本線竹下」駅徒歩6分

西鉄天神大牟田線大橋」駅徒歩11分

西鉄天神大牟田線高宮」駅徒歩25分

間取り/建物面積
4LDK / 119m²
土地面積
136.02m²
築年月
2013年07月築
  • 気になるリストへ
  • 比較リストへ

資料請求・お問い合わせ

◆2018年10月築◆敷地面積:114.87u(34.74坪)◆オール電化住宅◆

  • 築10年以内
  • 南道路(南西・南東含む)に接道
  • 建物面積が100m?以上
フロア画像を拡大する
画像枚数12枚
価格
2,790万円
所在地
福岡県福津市西福間3丁目
交通

鹿児島本線福間」駅徒歩21分

間取り/建物面積
4LDK / 100.19m²
土地面積
114.87m²
築年月
2018年10月築
  • 気になるリストへ
  • 比較リストへ

資料請求・お問い合わせ

■オール電化■東宝ホーム施工■JR鹿児島本線「東福間」駅まで徒歩5分

  • 駅徒歩10分以内
  • 南道路(南西・南東含む)に接道
フロア画像を拡大する
画像枚数10枚
価格
3,300万円
所在地
福岡県福津市あけぼの
交通

鹿児島本線東福間」駅徒歩5分

間取り/建物面積
3LDK / 93.56m²
土地面積
162.46m²
築年月
2015年03月築
  • 気になるリストへ
  • 比較リストへ

資料請求・お問い合わせ

◇◆敷地面積:306.00u(92.56坪)、 バス停徒歩圏内!◆◇

  • 角地
  • 低層住居専用地域に立地
  • 建物面積が100m?以上
画像枚数14枚
価格
2,380万円
所在地
福岡県宗像市ひかりヶ丘5丁目
交通

鹿児島本線赤間」駅バス20分徒歩1分

鹿児島本線東郷」駅バス13分徒歩10分

間取り/建物面積
4LDK / 172.52m²
土地面積
306m²
築年月
1982年10月築
  • 気になるリストへ
  • 比較リストへ

資料請求・お問い合わせ

■パナソニックホームズのオール電化住宅■閑静な住宅街の角地

  • 南道路(南西・南東含む)に接道
  • 角地
  • 低層住居専用地域に立地
  • 建物面積が100m?以上
フロア画像を拡大する
画像枚数29枚
価格
3,480万円
所在地
福岡県宗像市自由ヶ丘南2丁目
交通

鹿児島本線赤間」駅バス18分徒歩4分

間取り/建物面積
5SLDK / 164.06m²
土地面積
274.13m²
築年月
2008年09月築
  • 気になるリストへ
  • 比較リストへ

資料請求・お問い合わせ

RCの注文住宅♪ 5LDK+書斎+WIC付き♪ 延床面積230.63u♪

  • 建物面積が100m?以上
フロア画像を拡大する
画像枚数25枚
価格
3,980万円
所在地
福岡県久留米市小森野4丁目
交通

西鉄天神大牟田線宮の陣」駅徒歩24分

鹿児島本線久留米」駅バス13分徒歩5分

西鉄天神大牟田線西鉄久留米」駅バス19分徒歩5分

間取り/建物面積
5LDK / 230.63m²
土地面積
506m²
築年月
2001年03月築
  • 気になるリストへ
  • 比較リストへ

資料請求・お問い合わせ

◇宗像市ひかりヶ丘6SLDKK◇オール電化

  • 南道路(南西・南東含む)に接道
  • 低層住居専用地域に立地
  • 建物面積が100m?以上
フロア画像を拡大する
画像枚数24枚
価格
2,080万円
所在地
福岡県宗像市ひかりヶ丘5丁目
交通

鹿児島本線東郷」駅バス13分徒歩10分

間取り/建物面積
6SLDK / 165.84m²
土地面積
337.99m²
築年月
1984年07月築
  • 気になるリストへ
  • 比較リストへ

資料請求・お問い合わせ

◇1998年築 4SLDK+3LDK 2世帯仕様の注文住宅◇土地面積530.91u(160.60坪)

  • リフォーム済み
  • 南道路(南西・南東含む)に接道
  • 低層住居専用地域に立地
  • 建物面積が100m?以上
フロア画像を拡大する
画像枚数22枚
価格
9,800万円
所在地
福岡県福岡市東区青葉5丁目
交通

香椎線舞松原」駅徒歩15分

間取り/建物面積
4SLDK / 333.97m²
土地面積
530.91m²
築年月
1998年04月築
  • 気になるリストへ
  • 比較リストへ

資料請求・お問い合わせ

☆注文住宅☆2LDK⇒3LDK変更可☆LDK約19.3帖☆広々庭付き☆駐車場2台分

  • 建物面積が100m?以上
フロア画像を拡大する
画像枚数22枚
価格
3,280万円
所在地
福岡県古賀市今の庄2丁目
交通

鹿児島本線古賀」駅徒歩11分

間取り/建物面積
2LDK / 100.6m²
土地面積
193.07m²
築年月
2014年04月築
  • 気になるリストへ
  • 比較リストへ

資料請求・お問い合わせ

4LDK+太陽光発電システム♪フローリング・クロス張り替え済♪敷地面積56.67坪♪

  • 低層住居専用地域に立地
フロア画像を拡大する
画像枚数20枚
価格
2,280万円
所在地
福岡県福岡市東区大岳3丁目
交通

香椎線西戸崎」駅徒歩25分

間取り/建物面積
4LDK / 94.77m²
土地面積
187.36m²
築年月
2012年04月築
  • 気になるリストへ
  • 比較リストへ

資料請求・お問い合わせ

■□福岡市地下鉄空港線・七隈線のWアクセス□2023年7月築の戸建□■

  • 駅徒歩10分以内
  • 築10年以内
フロア画像を拡大する
画像枚数20枚
価格
6,580万円
所在地
福岡県福岡市中央区鳥飼3丁目
交通

福岡市空港線西新」駅徒歩10分

福岡市七隈線別府」駅徒歩14分

間取り/建物面積
4LDK / 95.01m²
土地面積
62.59m²
築年月
2023年07月築
  • 気になるリストへ
  • 比較リストへ

資料請求・お問い合わせ

敷地面積231.70u、庭、吹き抜け玄関、メーターモジュール、駐車2台可

  • 低層住居専用地域に立地
  • 建物面積が100m?以上
フロア画像を拡大する
画像枚数20枚
価格
1,490万円
所在地
福岡県宗像市天平台
交通

鹿児島本線赤間」駅バス19分徒歩6分

間取り/建物面積
4LDK / 124m²
土地面積
231.7m²
築年月
1992年06月築
  • 気になるリストへ
  • 比較リストへ

資料請求・お問い合わせ

◆◇宗像市自由ヶ丘8丁目戸建◇◆

  • 南道路(南西・南東含む)に接道
  • 角地
  • 低層住居専用地域に立地
  • 建物面積が100m?以上
フロア画像を拡大する
画像枚数20枚
価格
1,800万円
所在地
福岡県宗像市自由ヶ丘8丁目
交通

鹿児島本線赤間」駅バス9分徒歩6分

間取り/建物面積
4SLDK / 140.76m²
土地面積
347.7m²
築年月
1995年08月築
  • 気になるリストへ
  • 比較リストへ

資料請求・お問い合わせ

◆住友不動産施工◆一部リフォーム済み

  • リフォーム済み
  • 南道路(南西・南東含む)に接道
  • 角地
  • 低層住居専用地域に立地
  • 建物面積が100m?以上
フロア画像を拡大する
画像枚数19枚
価格
3,200万円
所在地
福岡県古賀市舞の里4丁目
交通

鹿児島本線千鳥」駅徒歩27分

間取り/建物面積
4LDK / 120.89m²
土地面積
230.47m²
築年月
1998年08月築
  • 気になるリストへ
  • 比較リストへ

資料請求・お問い合わせ

■福岡市東区三苫丁目■オール電化■駐車3台可■ミサワホーム注文住宅

  • 低層住居専用地域に立地
  • 建物面積が100m?以上
フロア画像を拡大する
画像枚数19枚
価格
4,700万円
所在地
福岡県福岡市東区三苫2丁目
交通

香椎線奈多」駅徒歩14分

西鉄貝塚線三苫」駅徒歩18分

間取り/建物面積
5LDK / 141.6m²
土地面積
281.97m²
築年月
1996年12月築
  • 気になるリストへ
  • 比較リストへ

資料請求・お問い合わせ

◆◇宗像市須恵2丁目戸建◇◆リフォーム済◇◆室内大変綺麗です!

  • 低層住居専用地域に立地
  • 建物面積が100m?以上
フロア画像を拡大する
画像枚数18枚
価格
3,300万円
所在地
福岡県宗像市須恵2丁目
交通

鹿児島本線赤間」駅徒歩18分

間取り/建物面積
3LDK / 182.73m²
土地面積
674m²
築年月
1992年04月築
  • 気になるリストへ
  • 比較リストへ

資料請求・お問い合わせ

城西ヶ丘6丁目!リフォーム済み!敷地面積210.89u、建物面積108.62u!角地!

  • リフォーム済み
  • 南道路(南西・南東含む)に接道
  • 角地
  • 低層住居専用地域に立地
  • 建物面積が100m?以上
フロア画像を拡大する
画像枚数18枚
価格
2,170万円
所在地
福岡県宗像市城西ヶ丘6丁目
交通

鹿児島本線赤間」駅バス9分徒歩5分

間取り/建物面積
4LDK / 108.62m²
土地面積
210.89m²
築年月
1987年02月築
  • 気になるリストへ
  • 比較リストへ

資料請求・お問い合わせ

☆「舞松原」駅徒歩10分☆「博多幼稚園」徒歩1分

  • 駅徒歩10分以内
  • 南道路(南西・南東含む)に接道
  • 低層住居専用地域に立地
  • 建物面積が100m?以上
フロア画像を拡大する
画像枚数17枚
価格
2,780万円
所在地
福岡県福岡市東区舞松原5丁目
交通

香椎線舞松原」駅徒歩10分

鹿児島本線千早」駅徒歩21分

間取り/建物面積
4LDK / 104.33m²
土地面積
179.66m²
築年月
2007年05月築
  • 気になるリストへ
  • 比較リストへ

資料請求・お問い合わせ

二世帯住宅仕様、5LDK+3K、駐車4台可(車種による)

  • 南道路(南西・南東含む)に接道
  • 角地
  • 建物面積が100m?以上
フロア画像を拡大する
画像枚数15枚
価格
4,980万円
所在地
福岡県糟屋郡新宮町夜臼5丁目
交通

鹿児島本線福工大前」駅徒歩15分

間取り/建物面積
8LDK / 233.47m²
土地面積
338.28m²
築年月
1993年07月築
  • 気になるリストへ
  • 比較リストへ

資料請求・お問い合わせ

☆角地☆二方道路☆4LDK☆LDK約19.8帖☆駐車場2台分☆広々庭付き

  • 南道路(南西・南東含む)に接道
  • 角地
  • 低層住居専用地域に立地
  • 建物面積が100m?以上
フロア画像を拡大する
画像枚数15枚
価格
3,280万円
所在地
福岡県福津市有弥の里2丁目
交通

鹿児島本線千鳥」駅徒歩20分

間取り/建物面積
4LDK / 142.36m²
土地面積
286.21m²
築年月
1996年08月築
  • 気になるリストへ
  • 比較リストへ

資料請求・お問い合わせ

2022年9月築、敷地面積:161.28u、駐車3台可、オール電化住宅

  • 駅徒歩10分以内
  • 築10年以内
  • 南道路(南西・南東含む)に接道
  • 建物面積が100m?以上
フロア画像を拡大する
画像枚数13枚
価格
4,990万円
所在地
福岡県糟屋郡粕屋町原町3丁目
交通

篠栗線原町」駅徒歩7分

間取り/建物面積
4LDK / 108.99m²
土地面積
161.28m²
築年月
2022年09月築
  • 気になるリストへ
  • 比較リストへ

資料請求・お問い合わせ

〜利便性とくつろぎを兼ね備えた4LDK〜

  • 駅徒歩10分以内
  • 南道路(南西・南東含む)に接道
  • 建物面積が100m?以上
フロア画像を拡大する
画像枚数13枚
価格
2,480万円
所在地
福岡県糟屋郡須惠町大字旅石
交通

香椎線須恵」駅徒歩10分

間取り/建物面積
4LDK / 103.68m²
土地面積
151.88m²
築年月
2014年04月築
  • 気になるリストへ
  • 比較リストへ

資料請求・お問い合わせ

◇福津市光陽台5丁目◇平家◇和風造り◇広縁

  • 建物面積が100m?以上
フロア画像を拡大する
画像枚数12枚
価格
1,800万円
所在地
福岡県福津市光陽台5丁目
交通

鹿児島本線東福間」駅徒歩26分

間取り/建物面積
4DK / 118.21m²
土地面積
316.75m²
築年月
1989年09月築
  • 気になるリストへ
  • 比較リストへ

資料請求・お問い合わせ

◆JR鹿児島本線「千鳥」駅 徒歩11分◆

  • 南道路(南西・南東含む)に接道
  • 角地
  • 建物面積が100m?以上
フロア画像を拡大する
画像枚数10枚
価格
2,900万円
所在地
福岡県福津市花見の里1丁目
交通

鹿児島本線千鳥」駅徒歩11分

間取り/建物面積
7DK / 168.09m²
土地面積
279.41m²
築年月
1992年08月築
  • 気になるリストへ
  • 比較リストへ

資料請求・お問い合わせ

■福岡市東区奈多2丁目■タマホーム施工の注文住宅■オール電化住宅

  • 駅徒歩10分以内
  • 築10年以内
  • 南道路(南西・南東含む)に接道
  • 角地
  • 低層住居専用地域に立地
  • 建物面積が100m?以上
フロア画像を拡大する
画像枚数10枚
価格
4,200万円
所在地
福岡県福岡市東区奈多2丁目
交通

香椎線奈多」駅徒歩7分

間取り/建物面積
3LDK / 121.52m²
土地面積
310m²
築年月
2017年06月築
  • 気になるリストへ
  • 比較リストへ

資料請求・お問い合わせ

6LDK、戸建兼事務所として利用可!2021年8月リフォーム済!

  • リフォーム済み
  • 南道路(南西・南東含む)に接道
  • 建物面積が100m?以上
フロア画像を拡大する
画像枚数10枚
価格
7,900万円
所在地
福岡県福岡市東区舞松原2丁目
交通

香椎線舞松原」駅徒歩12分

鹿児島本線千早」駅徒歩17分

西鉄貝塚線西鉄千早」駅徒歩17分

間取り/建物面積
6LDK / 303.83m²
土地面積
264.46m²
築年月
1969年06月築
  • 気になるリストへ
  • 比較リストへ

資料請求・お問い合わせ

■福岡市東区松崎1丁目■3LDK■オール電化住宅

  • 南道路(南西・南東含む)に接道
  • 低層住居専用地域に立地
  • 建物面積が100m?以上
フロア画像を拡大する
画像枚数8枚
価格
3,300万円
所在地
福岡県福岡市東区松崎1丁目
交通

西鉄貝塚線名島」駅徒歩24分

間取り/建物面積
3LDK / 119.42m²
土地面積
234.7m²
築年月
2010年06月築
  • 気になるリストへ
  • 比較リストへ

資料請求・お問い合わせ

◇◆オーナーチェンジ物件◆◇宗像市大谷3LDK戸建

  • 南道路(南西・南東含む)に接道
  • 低層住居専用地域に立地
  • 建物面積が100m?以上
フロア画像を拡大する
画像枚数5枚
価格
1,200万円
所在地
福岡県宗像市大谷
交通

鹿児島本線赤間」駅徒歩18分

間取り/建物面積
3LDK / 112.08m²
土地面積
235.12m²
築年月
1988年08月築
  • 気になるリストへ
  • 比較リストへ

資料請求・お問い合わせ

チェックした物件をまとめて

資料請求・お問い合わせ

  • 新着1週間以内に登録された物件
  • 価格更新1週間以内に価格が更新された物件
  • おすすめ物件営業センターのおすすめ物件
  • リフォーム済みリフォームやリノベーション済み
  • 駅徒歩10分以内駅徒歩10分以内
  • 築10年以内築10年以内
  • 南道路(南西・南東含む)南道路(南西・南東含む)に接道
  • 角地角地
  • 低層住居専用地域低層住居専用地域に立地
  • 建物面積100m²以上建物面積が100m²以上
  • 新築新築物件
  • 【現地見学】オープンハウス開催オープンハウス・予約制内覧会
  • 予告広告販売開始まで契約または予約の申し込みは出来ません