学園前営業センター
  • TEL
    0120-601-128
  • 最寄駅
    • ・近鉄難波・奈良線 学園前駅

取扱物件一覧(中古一戸建て)

  • マンション
  • 中古一戸建て
  • 新築一戸建て
  • 土地
  • 事業用
  • 投資用

81件中31〜60件を表示

  • 画像を大きく表示
  • リストで表示

表示件数

並び替え

チェックした物件をまとめて

資料請求・お問い合わせ

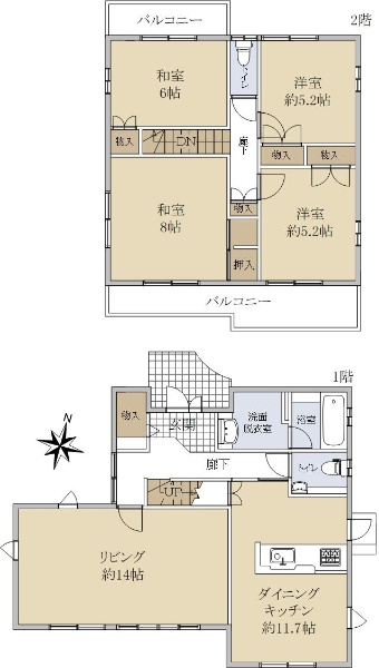
◆ダイワハウス施工の家 ◆近鉄けいはんな線「白庭台」駅徒歩12分

  • 南道路(南西・南東含む)に接道
  • 角地
  • 低層住居専用地域に立地
  • 建物面積が100m?以上
フロア画像を拡大する
画像枚数21枚
価格
3,980万円
所在地
奈良県生駒市上町台
交通

近鉄けいはんな線白庭台」駅徒歩12分

近鉄けいはんな線学研北生駒」駅徒歩13分

間取り/建物面積
3LDK / 119.44m²
土地面積
169.21m²
築年月
2008年08月築
  • 気になるリストへ
  • 比較リストへ

資料請求・お問い合わせ

☆土地114.60坪 ☆建物56.82坪 ☆前面道路との高低差少ない

  • 低層住居専用地域に立地
  • 建物面積が100m?以上
フロア画像を拡大する
画像枚数21枚
価格
3,580万円
所在地
奈良県奈良市中山町西4丁目
交通

近鉄難波・奈良線学園前」駅バス9分徒歩4分

間取り/建物面積
5LDK / 187.84m²
土地面積
378.86m²
築年月
1974年01月築
  • 気になるリストへ
  • 比較リストへ

資料請求・お問い合わせ

☆旭化成ホームズ施工 ☆土地面積:71.61坪 ☆建物面積:46.44坪 ☆5SLDK

  • 建物面積が100m?以上
フロア画像を拡大する
画像枚数21枚
価格
1,180万円
所在地
奈良県香芝市関屋北7丁目
交通

近鉄大阪線関屋」駅徒歩12分

間取り/建物面積
5SLDK / 153.54m²
土地面積
236.75m²
築年月
1988年04月築
  • 気になるリストへ
  • 比較リストへ

資料請求・お問い合わせ

◎5LDK ◎ミサワホーム設計の建物です。

  • 南道路(南西・南東含む)に接道
  • 角地
  • 低層住居専用地域に立地
  • 建物面積が100m?以上
フロア画像を拡大する
画像枚数21枚
価格
4,980万円
所在地
奈良県奈良市中山町
交通

近鉄難波・奈良線大和西大寺」駅バス13分徒歩1分

間取り/建物面積
5LDK / 149.47m²
土地面積
501.44m²
築年月
1984年09月築
  • 気になるリストへ
  • 比較リストへ

資料請求・お問い合わせ

オープンハウス■三井ホーム施工、4LDKの間取り、南側・北西側の二方道路■

  • 南道路(南西・南東含む)に接道
  • 低層住居専用地域に立地
  • 建物面積が100m?以上
フロア画像を拡大する
画像枚数21枚
価格
2,680万円
所在地
奈良県奈良市中山町
交通

近鉄難波・奈良線大和西大寺」駅バス13分徒歩5分

近鉄難波・奈良線学園前」駅バス12分徒歩8分

間取り/建物面積
4LDK / 149.91m²
土地面積
283.1m²
築年月
1983年04月築
  • 気になるリストへ
  • 比較リストへ

資料請求・お問い合わせ

令和4年5月建築 セキスイハイム施工の家

  • 築10年以内
フロア画像を拡大する
画像枚数20枚
価格
4,980万円
所在地
奈良県奈良市法蓮町
交通

近鉄難波・奈良線新大宮」駅徒歩11分

間取り/建物面積
2LDK / 84.82m²
土地面積
137.61m²
築年月
2022年05月築
  • 気になるリストへ
  • 比較リストへ

資料請求・お問い合わせ

♪2017年3月大規模リノベーション済、最寄り駅まで徒歩9分♪

  • リフォーム済み
  • 駅徒歩10分以内
  • 南道路(南西・南東含む)に接道
  • 低層住居専用地域に立地
  • 建物面積が100m?以上
フロア画像を拡大する
画像枚数20枚
価格
4,200万円
所在地
奈良県生駒市西旭ケ丘
交通

近鉄難波・奈良線生駒」駅徒歩9分

近鉄けいはんな線生駒」駅徒歩9分

近鉄生駒線生駒」駅徒歩9分

間取り/建物面積
1LDK / 120.51m²
土地面積
215.15m²
築年月
1977年11月築
  • 気になるリストへ
  • 比較リストへ

資料請求・お問い合わせ

南西角地♪大和ハウスのお家♪駐車3台可(車種による)♪ 

  • 南道路(南西・南東含む)に接道
  • 角地
  • 低層住居専用地域に立地
  • 建物面積が100m?以上
フロア画像を拡大する
画像枚数20枚
価格
2,980万円
所在地
大阪府四條畷市さつきヶ丘
交通

近鉄難波・奈良線生駒」駅バス18分徒歩7分

間取り/建物面積
4SLDK / 129.43m²
土地面積
255.16m²
築年月
2003年05月築
  • 気になるリストへ
  • 比較リストへ

資料請求・お問い合わせ

◆2018年6月建築◆建物26.92坪◆3LDK

  • リフォーム済み
  • 築10年以内
  • 南道路(南西・南東含む)に接道
  • 低層住居専用地域に立地
フロア画像を拡大する
画像枚数20枚
価格
2,299万円
所在地
奈良県生駒市小明町
交通

近鉄難波・奈良線生駒」駅バス14分徒歩8分

近鉄難波・奈良線東生駒」駅バス6分徒歩8分

間取り/建物面積
3LDK / 89m²
土地面積
130.77m²
築年月
2018年06月築
  • 気になるリストへ
  • 比較リストへ

資料請求・お問い合わせ

■土地125.63坪 ■建物60.47坪 ■間取り4SLDK ■担当:嶋ア

  • 低層住居専用地域に立地
  • 建物面積が100m?以上
フロア画像を拡大する
画像枚数20枚
価格
7,480万円
所在地
京都府相楽郡精華町光台7丁目
交通

近鉄けいはんな線学研奈良登美ヶ丘」駅バス7分徒歩4分

間取り/建物面積
4SLDK / 199.93m²
土地面積
415.31m²
築年月
1996年02月築
  • 気になるリストへ
  • 比較リストへ

資料請求・お問い合わせ

☆5LDK ☆両面道路(北・南)☆駐車3台可(車種による)

  • 南道路(南西・南東含む)に接道
  • 低層住居専用地域に立地
  • 建物面積が100m?以上
フロア画像を拡大する
画像枚数20枚
価格
3,680万円
所在地
京都府相楽郡精華町精華台1丁目
交通

JR片町線(学研都市線)祝園」駅バス7分徒歩3分

近鉄京都線新祝園」駅バス7分徒歩3分

近鉄けいはんな線学研奈良登美ヶ丘」駅バス27分徒歩4分

間取り/建物面積
5LDK / 135.8m²
土地面積
171.85m²
築年月
2001年09月築
  • 気になるリストへ
  • 比較リストへ

資料請求・お問い合わせ

◆2沿線利用可能 ◆土地:約64.9坪

  • 南道路(南西・南東含む)に接道
  • 低層住居専用地域に立地
  • 建物面積が100m?以上
フロア画像を拡大する
画像枚数20枚
価格
2,880万円
所在地
奈良県奈良市松陽台4丁目
交通

近鉄けいはんな線学研北生駒」駅徒歩23分

近鉄けいはんな線学研北生駒」駅バス7分徒歩5分

近鉄難波・奈良線学園前」駅バス9分徒歩5分

間取り/建物面積
4SLDK / 127.9m²
土地面積
214.55m²
築年月
1989年03月築
  • 気になるリストへ
  • 比較リストへ

資料請求・お問い合わせ

♪近鉄生駒駅まで徒歩6分、ミサワホーム施工、蔵のある家♪

  • 駅徒歩10分以内
  • 南道路(南西・南東含む)に接道
  • 低層住居専用地域に立地
  • 建物面積が100m?以上
フロア画像を拡大する
画像枚数19枚
価格
9,800万円
所在地
奈良県生駒市東旭ケ丘
交通

近鉄難波・奈良線生駒」駅徒歩6分

近鉄けいはんな線生駒」駅徒歩6分

近鉄生駒線生駒」駅徒歩6分

間取り/建物面積
5SLDK / 229.17m²
土地面積
382.01m²
築年月
2011年09月築
  • 気になるリストへ
  • 比較リストへ

資料請求・お問い合わせ

土地58.30坪 間取り6DK 担当:嶋ア(しまざき)

  • 低層住居専用地域に立地
  • 建物面積が100m?以上
フロア画像を拡大する
画像枚数19枚
価格
1,090万円
所在地
奈良県生駒郡三郷町城山台3丁目
交通

近鉄生駒線信貴山下」駅徒歩11分

間取り/建物面積
6DK / 143.25m²
土地面積
192.74m²
築年月
1981年10月築
  • 気になるリストへ
  • 比較リストへ

資料請求・お問い合わせ

室内一部リフォーム済♪即内覧・入居可能です♪

  • リフォーム済み
  • 南道路(南西・南東含む)に接道
  • 低層住居専用地域に立地
  • 建物面積が100m?以上
フロア画像を拡大する
画像枚数19枚
価格
3,380万円
所在地
京都府木津川市城山台11丁目
交通

JR関西本線(大和路線)木津」駅徒歩24分

JR関西本線(大和路線)木津」駅バス9分徒歩2分

JR片町線(学研都市線)木津」駅バス9分徒歩2分

間取り/建物面積
4LDK / 117.58m²
土地面積
168.8m²
築年月
2016年01月築
  • 気になるリストへ
  • 比較リストへ

資料請求・お問い合わせ

■4LDKの間取り・LDKに床暖房有・リフォーム歴有■

  • リフォーム済み
  • 低層住居専用地域に立地
フロア画像を拡大する
画像枚数19枚
価格
1,980万円
所在地
奈良県生駒市辻町
交通

近鉄難波・奈良線東生駒」駅徒歩11分

近鉄難波・奈良線生駒」駅徒歩14分

近鉄けいはんな線白庭台」駅バス19分徒歩6分

間取り/建物面積
4LDK / 89.46m²
土地面積
112.1m²
築年月
2001年03月築
  • 気になるリストへ
  • 比較リストへ

資料請求・お問い合わせ

◆3LDK ◆土地約76.28坪 ◆建物約45.82坪

  • 築10年以内
  • 低層住居専用地域に立地
  • 建物面積が100m?以上
フロア画像を拡大する
画像枚数19枚
価格
6,480万円
所在地
奈良県奈良市朝日町2丁目
交通

近鉄難波・奈良線菖蒲池」駅徒歩19分

近鉄難波・奈良線学園前」駅バス11分徒歩2分

間取り/建物面積
3LDK / 151.5m²
土地面積
252.19m²
築年月
2023年02月築
  • 気になるリストへ
  • 比較リストへ

資料請求・お問い合わせ

オープンハウス【すみふの仲介】■一条工務店施工の高気密・高断熱のオール電化住宅

  • 築10年以内
  • 角地
フロア画像を拡大する
画像枚数19枚
価格
4,280万円
所在地
奈良県生駒郡斑鳩町龍田西4丁目
交通

JR関西本線(大和路線)王寺」駅徒歩23分

近鉄生駒線王寺」駅徒歩23分

JR関西本線(大和路線)王寺」駅バス5分徒歩3分

間取り/建物面積
3LDK / 95.72m²
土地面積
139.49m²
築年月
2023年02月築
  • 気になるリストへ
  • 比較リストへ

資料請求・お問い合わせ

土地:63.16坪 建物:44.96坪 4LDK 前面道路幅員:約12.0m

  • 南道路(南西・南東含む)に接道
  • 建物面積が100m?以上
フロア画像を拡大する
画像枚数19枚
価格
4,730万円
所在地
奈良県香芝市真美ヶ丘6丁目
交通

近鉄大阪線五位堂」駅徒歩15分

間取り/建物面積
4LDK / 148.65m²
土地面積
208.81m²
築年月
1998年12月築
  • 気になるリストへ
  • 比較リストへ

資料請求・お問い合わせ

☆5LDK+離れ ☆土地面積:152.85坪 ☆近鉄南大阪線【高田市駅】まで徒歩12分

  • 建物面積が100m?以上
フロア画像を拡大する
画像枚数19枚
価格
2,200万円
所在地
奈良県大和高田市礒野町
交通

近鉄南大阪線高田市」駅徒歩12分

間取り/建物面積
5LDK / 194.04m²
土地面積
505.32m²
築年月
1999年10月築
  • 気になるリストへ
  • 比較リストへ

資料請求・お問い合わせ

◆土地面積:約84.24坪

  • 南道路(南西・南東含む)に接道
  • 低層住居専用地域に立地
  • 建物面積が100m?以上
フロア画像を拡大する
画像枚数18枚
価格
2,980万円
所在地
奈良県生駒市鹿ノ台北1丁目
交通

近鉄けいはんな線学研奈良登美ヶ丘」駅バス5分徒歩4分

近鉄難波・奈良線学園前」駅バス13分徒歩4分

間取り/建物面積
4LDK / 129.17m²
土地面積
278.5m²
築年月
1979年05月築
  • 気になるリストへ
  • 比較リストへ

資料請求・お問い合わせ

◆H29年1月建築 ◆住友不動産施工の注文住宅 ◆室内大変丁寧にお使いです

  • 築10年以内
  • 南道路(南西・南東含む)に接道
  • 低層住居専用地域に立地
  • 建物面積が100m?以上
フロア画像を拡大する
画像枚数18枚
価格
5,480万円
所在地
奈良県生駒市東生駒4丁目
交通

近鉄難波・奈良線東生駒」駅バス5分徒歩3分

近鉄生駒線一分」駅徒歩14分

間取り/建物面積
4LDK / 147.08m²
土地面積
255.72m²
築年月
2017年01月築
  • 気になるリストへ
  • 比較リストへ

資料請求・お問い合わせ

☆3沿線利用可(近鉄京都線・けいはんな線・JR学研都市線)☆オール電化

フロア画像を拡大する
画像枚数17枚
価格
2,490万円
所在地
京都府相楽郡精華町大字植田小字新田
交通

近鉄京都線新祝園」駅徒歩16分

JR片町線(学研都市線)祝園」駅徒歩16分

近鉄けいはんな線学研奈良登美ヶ丘」駅バス28分徒歩4分

間取り/建物面積
3LDK / 80.99m²
土地面積
100.01m²
築年月
2013年05月築
  • 気になるリストへ
  • 比較リストへ

資料請求・お問い合わせ

◆オーナーチェンジ物件 ◆2007年7月建築

  • 南道路(南西・南東含む)に接道
  • 建物面積が100m?以上
フロア画像を拡大する
画像枚数17枚
価格
2,550万円
所在地
奈良県奈良市藤ノ木台1丁目
交通

近鉄難波・奈良線学園前」駅バス7分徒歩3分

間取り/建物面積
4LDK / 122.96m²
土地面積
138.75m²
築年月
2007年07月築
  • 気になるリストへ
  • 比較リストへ

資料請求・お問い合わせ

【すみふの仲介ステップ】◇白橿ニュータウン内◇室内丁寧にお使いです!

  • リフォーム済み
  • 駅徒歩10分以内
  • 南道路(南西・南東含む)に接道
  • 低層住居専用地域に立地
  • 建物面積が100m?以上
フロア画像を拡大する
画像枚数16枚
価格
1,480万円
所在地
奈良県橿原市白橿町7丁目
交通

近鉄吉野線岡寺」駅徒歩10分

間取り/建物面積
4LDK / 103.88m²
土地面積
208.99m²
築年月
1987年03月築
  • 気になるリストへ
  • 比較リストへ

資料請求・お問い合わせ

◆住友林業施工 ◆床暖房付き ◆角地につき日当たり良好 ◆2016年9月築

  • 築10年以内
  • 南道路(南西・南東含む)に接道
  • 低層住居専用地域に立地
フロア画像を拡大する
画像枚数16枚
価格
2,980万円
所在地
奈良県生駒郡三郷町勢野北5丁目
交通

近鉄生駒線勢野北口」駅徒歩18分

近鉄生駒線信貴山下」駅徒歩19分

間取り/建物面積
3LDK / 97.62m²
土地面積
175.08m²
築年月
2016年09月築
  • 気になるリストへ
  • 比較リストへ

資料請求・お問い合わせ

☆土地 約105.27坪 建物 約42.08坪 ☆4LDK

  • 建物面積が100m?以上
フロア画像を拡大する
画像枚数16枚
価格
3,480万円
所在地
奈良県北葛城郡広陵町馬見中2丁目
交通

近鉄大阪線五位堂」駅バス10分徒歩2分

間取り/建物面積
4LDK / 139.14m²
土地面積
348m²
築年月
1989年08月築
  • 気になるリストへ
  • 比較リストへ

資料請求・お問い合わせ

☆オーナーチェンジ物件 ☆表面利回り4.87% ☆学園前駅まで徒歩13分 

  • 角地
  • 低層住居専用地域に立地
フロア画像を拡大する
画像枚数16枚
価格
2,215万円
所在地
奈良県奈良市学園南3丁目
交通

近鉄難波・奈良線学園前」駅徒歩13分

近鉄難波・奈良線学園前」駅バス4分徒歩5分

間取り/建物面積
3LDK / 79.38m²
土地面積
133.88m²
築年月
2000年03月築
  • 気になるリストへ
  • 比較リストへ

資料請求・お問い合わせ

■近鉄不動産株式会社旧分譲、3方角地で日当たり良好、リフォーム歴有■

  • リフォーム済み
  • 南道路(南西・南東含む)に接道
  • 角地
  • 低層住居専用地域に立地
  • 建物面積が100m?以上
フロア画像を拡大する
画像枚数15枚
価格
2,080万円
所在地
奈良県奈良市帝塚山南4丁目
交通

近鉄難波・奈良線富雄」駅バス6分徒歩1分

近鉄難波・奈良線富雄」駅徒歩18分

間取り/建物面積
3SLDK / 114.28m²
土地面積
195.26m²
築年月
1977年11月築
  • 気になるリストへ
  • 比較リストへ

資料請求・お問い合わせ

◆◆学研北生駒駅徒歩13分◆南北両面道路◆野村不動産施工の建物◆◆

  • 南道路(南西・南東含む)に接道
  • 低層住居専用地域に立地
  • 建物面積が100m?以上
フロア画像を拡大する
画像枚数15枚
価格
3,480万円
所在地
奈良県生駒市北大和2丁目
交通

近鉄けいはんな線学研北生駒」駅バス16分徒歩2分

間取り/建物面積
4LDK / 124.12m²
土地面積
207.38m²
築年月
1993年07月築
  • 気になるリストへ
  • 比較リストへ

資料請求・お問い合わせ

チェックした物件をまとめて

資料請求・お問い合わせ

  • 新着1週間以内に登録された物件
  • 価格更新1週間以内に価格が更新された物件
  • おすすめ物件営業センターのおすすめ物件
  • リフォーム済みリフォームやリノベーション済み
  • 駅徒歩10分以内駅徒歩10分以内
  • 築10年以内築10年以内
  • 南道路(南西・南東含む)南道路(南西・南東含む)に接道
  • 角地角地
  • 低層住居専用地域低層住居専用地域に立地
  • 建物面積100m²以上建物面積が100m²以上
  • 新築新築物件
  • 【現地見学】オープンハウス開催オープンハウス・予約制内覧会
  • 予告広告販売開始まで契約または予約の申し込みは出来ません