蒲田営業センター
  • TEL
    0120-217-301
  • 最寄駅
    • ・京浜東北・根岸線 蒲田駅
    • ・東急池上線 蒲田駅

取扱物件一覧(中古一戸建て)

  • マンション
  • 中古一戸建て
  • 新築一戸建て
  • 土地
  • 事業用
  • 投資用

16件中1〜16件を表示

  • 画像を大きく表示
  • リストで表示

表示件数

並び替え

チェックした物件をまとめて

資料請求・お問い合わせ

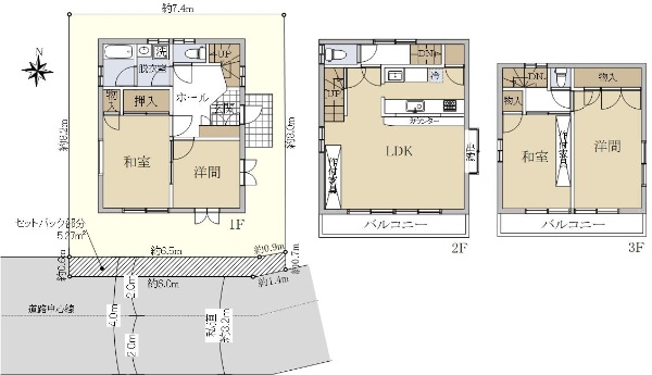
オープンハウス【ミサワホーム施工の注文住宅】空室のためお好きなお時間にご覧いただけます。

  • 駅徒歩10分以内
  • 築10年以内
フロア画像を拡大する
画像枚数14枚
価格
5,480万円
所在地
東京都大田区東蒲田2丁目
交通

京急本線京急蒲田」駅徒歩5分

京浜東北・根岸線蒲田」駅徒歩13分

東急池上線蒲田」駅徒歩14分

間取り/建物面積
3LDK / 77.42m²
土地面積
73.28m²
築年月
2016年09月築
  • 気になるリストへ
  • 比較リストへ

資料請求・お問い合わせ

◇2023年12月新築の3LDK◇デザイナーズ風のお洒落な室内

  • 駅徒歩10分以内
  • 築10年以内
フロア画像を拡大する
画像枚数10枚
価格
8,490万円
所在地
東京都大田区大森北6丁目
交通

京急本線平和島」駅徒歩4分

京浜東北・根岸線大森」駅徒歩17分

間取り/建物面積
3LDK / 90.29m²
土地面積
63.62m²
築年月
2023年12月築
  • 気になるリストへ
  • 比較リストへ

資料請求・お問い合わせ

〜蒲田駅徒歩圏内/新蒲田1丁目戸建〜

画像枚数9枚
価格
7,680万円
所在地
東京都大田区新蒲田1丁目
交通

東急池上線蒲田」駅徒歩11分

東急多摩川線蒲田」駅徒歩11分

京浜東北・根岸線蒲田」駅徒歩15分

間取り/建物面積
3SLDK / 96.32m²
土地面積
50.2m²
築年月
1999年09月築
  • 気になるリストへ
  • 比較リストへ

資料請求・お問い合わせ

【住友不動産ステップ】大田区久が原2丁目 プール付き戸建

  • 築10年以内
  • 低層住居専用地域に立地
  • 建物面積が100m?以上
フロア画像を拡大する
画像枚数27枚
価格
1億6,900万円
所在地
東京都大田区久が原2丁目
交通

東急池上線久が原」駅徒歩12分

東急池上線千鳥町」駅徒歩15分

都営浅草線西馬込」駅徒歩16分

間取り/建物面積
3LDK / 125.74m²
土地面積
180.21m²
築年月
2018年07月築
  • 気になるリストへ
  • 比較リストへ

資料請求・お問い合わせ

■整形地■南向きのリビングではぽかぽかの日差しが感じられます

フロア画像を拡大する
画像枚数26枚
価格
2,480万円
所在地
東京都大田区西六郷2丁目
交通

京急本線雑色」駅徒歩12分

間取り/建物面積
2LDK / 98.74m²
土地面積
74.38m²
築年月
2004年08月築
  • 気になるリストへ
  • 比較リストへ

資料請求・お問い合わせ

オープンハウス【ミサワホーム施工の注文住宅】空室のためお好きなお時間にご覧いただけます。

  • 駅徒歩10分以内
  • 築10年以内
  • 南道路(南西・南東含む)に接道
  • 低層住居専用地域に立地
フロア画像を拡大する
画像枚数24枚
価格
1億1,990万円
所在地
東京都世田谷区上用賀3丁目
交通

東急田園都市線用賀」駅徒歩10分

間取り/建物面積
2LDK / 81.98m²
土地面積
82.46m²
築年月
2019年09月築
  • 気になるリストへ
  • 比較リストへ

資料請求・お問い合わせ

広々3LDK+2サービスルーム(納戸)/家族が増えても住み続けられる家です

  • 南道路(南西・南東含む)に接道
  • 建物面積が100m?以上
フロア画像を拡大する
画像枚数24枚
価格
8,540万円
所在地
東京都大田区中央7丁目
交通

東急池上線池上」駅徒歩16分

間取り/建物面積
3SLDK / 107.72m²
土地面積
88.28m²
築年月
2013年08月築
  • 気になるリストへ
  • 比較リストへ

資料請求・お問い合わせ

南西道路につき陽当り良好

  • 駅徒歩10分以内
  • 南道路(南西・南東含む)に接道
フロア画像を拡大する
画像枚数20枚
価格
6,780万円
所在地
東京都大田区下丸子4丁目
交通

東急多摩川線下丸子」駅徒歩7分

東急池上線千鳥町」駅徒歩14分

間取り/建物面積
3LDK / 93.15m²
土地面積
54.27m²
築年月
2002年10月築
  • 気になるリストへ
  • 比較リストへ

資料請求・お問い合わせ

■3駅3路線利用可能 ■2021年12月築

  • 駅徒歩10分以内
  • 築10年以内
  • 南道路(南西・南東含む)に接道
  • 低層住居専用地域に立地
フロア画像を拡大する
画像枚数15枚
価格
9,990万円
所在地
東京都大田区田園調布本町
交通

東急多摩川線沼部」駅徒歩6分

東急池上線御嶽山」駅徒歩10分

東急目黒線多摩川」駅徒歩12分

間取り/建物面積
1SLDK / 80.68m²
土地面積
98.91m²
築年月
2021年12月築
  • 気になるリストへ
  • 比較リストへ

資料請求・お問い合わせ

■積水ハウス施工の注文住宅 ■閑静な住宅地 ■複数路線使用可能

  • 駅徒歩10分以内
  • 低層住居専用地域に立地
フロア画像を拡大する
画像枚数14枚
価格
8,980万円
所在地
東京都練馬区練馬4丁目
交通

都営大江戸線豊島園」駅徒歩5分

西武池袋・豊島線豊島園」駅徒歩6分

西武池袋・豊島線練馬」駅徒歩13分

間取り/建物面積
2SLDK / 93m²
土地面積
100.05m²
築年月
2010年09月築
  • 気になるリストへ
  • 比較リストへ

資料請求・お問い合わせ

オープンハウス平成9年12月築・木造3階建・6DK・空家・蒲田駅徒歩11分

  • 南道路(南西・南東含む)に接道
  • 建物面積が100m?以上
フロア画像を拡大する
画像枚数13枚
価格
7,980万円
所在地
東京都大田区蒲田本町1丁目
交通

京浜東北・根岸線蒲田」駅徒歩11分

京急本線京急蒲田」駅徒歩14分

京急本線雑色」駅徒歩11分

間取り/建物面積
6DK / 142.01m²
土地面積
81.52m²
築年月
1997年12月築
  • 気になるリストへ
  • 比較リストへ

資料請求・お問い合わせ

オープンハウス鉄筋コンクリート造2階建の戸建です! 敷地面積118.20uございます!

フロア画像を拡大する
画像枚数12枚
価格
1億6,800万円
所在地
東京都目黒区下目黒4丁目
交通

東急目黒線不動前」駅徒歩12分

間取り/建物面積
4LDK / 98.98m²
土地面積
118.2m²
築年月
1998年01月築
  • 気になるリストへ
  • 比較リストへ

資料請求・お問い合わせ

〜4LDK+S(納戸) 駐車場付きの戸建〜

  • 南道路(南西・南東含む)に接道
  • 建物面積が100m?以上
フロア画像を拡大する
画像枚数12枚
価格
7,880万円
所在地
東京都大田区池上1丁目
交通

東急池上線池上」駅徒歩12分

間取り/建物面積
4SLDK / 106.1m²
土地面積
79.78m²
築年月
2008年10月築
  • 気になるリストへ
  • 比較リストへ

資料請求・お問い合わせ

◆複数路線利用可能◆南西角地の整形地◆

  • 駅徒歩10分以内
  • 南道路(南西・南東含む)に接道
  • 角地
画像枚数19枚
価格
4,180万円
所在地
東京都大田区東矢口3丁目
交通

東急池上線蓮沼」駅徒歩4分

東急多摩川線矢口渡」駅徒歩8分

京浜東北・根岸線蒲田」駅徒歩12分

間取り/建物面積
2K / 45.55m²
土地面積
40.93m²
築年月
1978年07月築
  • 気になるリストへ
  • 比較リストへ

資料請求・お問い合わせ

3路線利用可能/蒲田駅利用

  • 南道路(南西・南東含む)に接道
画像枚数-枚
価格
3,100万円
所在地
東京都大田区西六郷1丁目
交通

京浜東北・根岸線蒲田」駅徒歩18分

東急池上線蒲田」駅徒歩15分

東急多摩川線蒲田」駅徒歩15分

間取り/建物面積
3LDK / 92.74m²
土地面積
82.64m²
築年月
1973年04月築
  • 気になるリストへ
  • 比較リストへ

資料請求・お問い合わせ

3路線利用可能/蒲田駅利用

画像枚数-枚
価格
3,200万円
所在地
東京都大田区西六郷1丁目
交通

京浜東北・根岸線蒲田」駅徒歩18分

東急池上線蒲田」駅徒歩15分

東急多摩川線蒲田」駅徒歩15分

間取り/建物面積
3DK / 67.18m²
土地面積
82.64m²
築年月
1973年06月築
  • 気になるリストへ
  • 比較リストへ

資料請求・お問い合わせ

チェックした物件をまとめて

資料請求・お問い合わせ

  • 新着1週間以内に登録された物件
  • 価格更新1週間以内に価格が更新された物件
  • おすすめ物件営業センターのおすすめ物件
  • リフォーム済みリフォームやリノベーション済み
  • 駅徒歩10分以内駅徒歩10分以内
  • 築10年以内築10年以内
  • 南道路(南西・南東含む)南道路(南西・南東含む)に接道
  • 角地角地
  • 低層住居専用地域低層住居専用地域に立地
  • 建物面積100m²以上建物面積が100m²以上
  • 新築新築物件
  • 【現地見学】オープンハウス開催オープンハウス・予約制内覧会
  • 予告広告販売開始まで契約または予約の申し込みは出来ません