本八幡営業センター
  • TEL
    0120-988-156
  • 最寄駅
    • ・総武・中央緩行線 本八幡駅
    • ・東京都新宿線 本八幡駅

取扱物件一覧(中古一戸建て)

  • マンション
  • 中古一戸建て
  • 新築一戸建て
  • 土地
  • 事業用
  • 投資用

16件中1〜16件を表示

  • 画像を大きく表示
  • リストで表示

表示件数

並び替え

チェックした物件をまとめて

資料請求・お問い合わせ

公園や緑地が点在する緑豊かな住環境の陽当り良好な戸建

  • 南道路(南西・南東含む)に接道
  • 低層住居専用地域に立地
フロア画像を拡大する
画像枚数13枚
価格
2,090万円
所在地
千葉県市川市国分5丁目
交通

総武線市川」駅バス13分徒歩6分

間取り/建物面積
2LDK / 85.86m²
土地面積
111.45m²
築年月
1994年12月築
  • 気になるリストへ
  • 比較リストへ

資料請求・お問い合わせ

【平成29年11月築】スウェーデンハウス株式会社の注文住宅、カースペース2台

  • 駅徒歩10分以内
  • 築10年以内
  • 低層住居専用地域に立地
フロア画像を拡大する
画像枚数30枚
価格
8,950万円
所在地
千葉県市川市菅野2丁目
交通

京成本線菅野」駅徒歩5分

間取り/建物面積
3LDK / 96.2m²
土地面積
306.17m²
築年月
2017年11月築
  • 気になるリストへ
  • 比較リストへ

資料請求・お問い合わせ

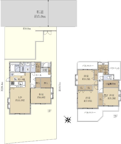
総武・中央線「本八幡」駅徒歩7分

  • 駅徒歩10分以内
  • 築10年以内
  • 南道路(南西・南東含む)に接道
  • 建物面積が100m?以上
フロア画像を拡大する
画像枚数30枚
価格
4,680万円
所在地
千葉県市川市南八幡3丁目
交通

総武線本八幡」駅徒歩7分

都営新宿線本八幡」駅徒歩9分

京成本線京成八幡」駅徒歩12分

間取り/建物面積
2SLDK / 102.04m²
土地面積
81.98m²
築年月
2017年07月築
  • 気になるリストへ
  • 比較リストへ

資料請求・お問い合わせ

陽当たり・風通し良好 間取り4LDK! 屋根裏収納もあります

  • 低層住居専用地域に立地
  • 建物面積が100m?以上
フロア画像を拡大する
画像枚数30枚
価格
3,590万円
所在地
千葉県千葉市稲毛区稲毛町5丁目
交通

総武線新検見川」駅徒歩17分

間取り/建物面積
4LDK / 102.26m²
土地面積
145m²
築年月
1999年12月築
  • 気になるリストへ
  • 比較リストへ

資料請求・お問い合わせ

京成電鉄 松戸線「前原駅」徒歩5分/土地面積:180.67u(約54.65坪)

  • 駅徒歩10分以内
  • 建物面積が100m?以上
フロア画像を拡大する
画像枚数30枚
価格
4,250万円
所在地
千葉県船橋市前原東4丁目
交通

京成電鉄松戸線前原」駅徒歩5分

総武線津田沼」駅徒歩17分

間取り/建物面積
4LDK / 105.16m²
土地面積
180.67m²
築年月
2003年03月築
  • 気になるリストへ
  • 比較リストへ

資料請求・お問い合わせ

三井ホーム施工注文住宅です。カースペース2台分+庭付き住宅

  • 南道路(南西・南東含む)に接道
  • 低層住居専用地域に立地
  • 建物面積が100m?以上
フロア画像を拡大する
画像枚数30枚
価格
6,480万円
所在地
千葉県市川市東菅野4丁目
交通

京成本線京成八幡」駅徒歩19分

総武線本八幡」駅徒歩23分

間取り/建物面積
4LDK / 104.34m²
土地面積
182.44m²
築年月
2009年03月築
  • 気になるリストへ
  • 比較リストへ

資料請求・お問い合わせ

2022年築 間取り4LDK 庭付き住戸です。

  • 築10年以内
  • 南道路(南西・南東含む)に接道
  • 低層住居専用地域に立地
  • 建物面積が100m?以上
フロア画像を拡大する
画像枚数30枚
価格
4,200万円
所在地
千葉県市川市大野町1丁目
交通

武蔵野線市川大野」駅徒歩20分

武蔵野線市川大野」駅バス5分徒歩7分

間取り/建物面積
3LDK / 102.68m²
土地面積
115.81m²
築年月
2022年11月築
  • 気になるリストへ
  • 比較リストへ

資料請求・お問い合わせ

・全室南東向きにより陽当り良好、カースペース2台分(車種による)

  • 築10年以内
  • 南道路(南西・南東含む)に接道
  • 角地
  • 低層住居専用地域に立地
フロア画像を拡大する
画像枚数30枚
価格
3,480万円
所在地
千葉県市川市大野町1丁目
交通

武蔵野線市川大野」駅徒歩19分

間取り/建物面積
4LDK / 98.54m²
土地面積
119.2m²
築年月
2018年12月築
  • 気になるリストへ
  • 比較リストへ

資料請求・お問い合わせ

☆現況空家です!平成25年10月築の木造3階建戸建!

フロア画像を拡大する
画像枚数30枚
価格
3,480万円
所在地
千葉県市川市鬼高1丁目
交通

総武線本八幡」駅徒歩17分

間取り/建物面積
3LDK / 70.39m²
土地面積
45.45m²
築年月
2013年10月築
  • 気になるリストへ
  • 比較リストへ

資料請求・お問い合わせ

3路線5駅利用可能 京成本線菅野駅徒歩4分の好立地 

  • リフォーム済み
  • 駅徒歩10分以内
  • 低層住居専用地域に立地
  • 建物面積が100m?以上
フロア画像を拡大する
画像枚数25枚
価格
9,180万円
所在地
千葉県市川市菅野2丁目
交通

京成本線菅野」駅徒歩4分

京成本線市川真間」駅徒歩8分

総武線市川」駅徒歩15分

間取り/建物面積
5LDK / 131.37m²
土地面積
149.75m²
築年月
1984年05月築
  • 気になるリストへ
  • 比較リストへ

資料請求・お問い合わせ

【平成22年4月築の注文住宅】武蔵野線「市川大野」駅徒歩6分!

  • 駅徒歩10分以内
  • 南道路(南西・南東含む)に接道
  • 低層住居専用地域に立地
フロア画像を拡大する
画像枚数20枚
価格
3,480万円
所在地
千葉県市川市大野町3丁目
交通

武蔵野線市川大野」駅徒歩6分

間取り/建物面積
2LDK / 88.19m²
土地面積
146.78m²
築年月
2010年04月築
  • 気になるリストへ
  • 比較リストへ

資料請求・お問い合わせ

2025年3月 住友リフォームにて 内外装リフォーム済み

  • リフォーム済み
  • 低層住居専用地域に立地
フロア画像を拡大する
画像枚数16枚
価格
2,400万円
所在地
千葉県市川市本北方3丁目
交通

総武線下総中山」駅バス11分徒歩6分

間取り/建物面積
2LDK / 60.31m²
土地面積
83.06m²
築年月
1977年01月築
  • 気になるリストへ
  • 比較リストへ

資料請求・お問い合わせ

2024年築 未入居物件!! 小学校、コンビニ、公園が徒歩5分圏内

  • 築10年以内
  • 角地
  • 低層住居専用地域に立地
フロア画像を拡大する
画像枚数14枚
価格
3,490万円
所在地
千葉県市川市曽谷5丁目
交通

総武線市川」駅バス17分徒歩6分

間取り/建物面積
3LDK / 73.42m²
土地面積
74.19m²
築年月
2024年11月築
  • 気になるリストへ
  • 比較リストへ

資料請求・お問い合わせ

【令和3年5月築】京成電鉄本線「鬼越」駅徒歩10分!太陽光パネル設置済!

  • 駅徒歩10分以内
  • 築10年以内
  • 低層住居専用地域に立地
フロア画像を拡大する
画像枚数14枚
価格
5,490万円
所在地
千葉県市川市北方3丁目
交通

京成本線鬼越」駅徒歩10分

間取り/建物面積
3LDK / 92.74m²
土地面積
183.85m²
築年月
2021年05月築
  • 気になるリストへ
  • 比較リストへ

資料請求・お問い合わせ

都営新宿線篠崎駅徒歩9分。閑静な住宅街にある戸建

  • 駅徒歩10分以内
  • 南道路(南西・南東含む)に接道
フロア画像を拡大する
画像枚数13枚
価格
4,480万円
所在地
東京都江戸川区谷河内1丁目
交通

都営新宿線篠崎」駅徒歩9分

間取り/建物面積
4DK / 78.24m²
土地面積
101.55m²
築年月
1999年02月築
  • 気になるリストへ
  • 比較リストへ

資料請求・お問い合わせ

前面道路幅員 約10m 小学校・スーパー・コンビニ・公園が徒歩10分圏内

  • 駅徒歩10分以内
  • 低層住居専用地域に立地
フロア画像を拡大する
画像枚数13枚
価格
4,380万円
所在地
千葉県市川市南大野3丁目
交通

武蔵野線市川大野」駅徒歩9分

間取り/建物面積
4LDK / 97.92m²
土地面積
120.43m²
築年月
2015年03月築
  • 気になるリストへ
  • 比較リストへ

資料請求・お問い合わせ

チェックした物件をまとめて

資料請求・お問い合わせ

  • 新着1週間以内に登録された物件
  • 価格更新1週間以内に価格が更新された物件
  • おすすめ物件営業センターのおすすめ物件
  • リフォーム済みリフォームやリノベーション済み
  • 駅徒歩10分以内駅徒歩10分以内
  • 築10年以内築10年以内
  • 南道路(南西・南東含む)南道路(南西・南東含む)に接道
  • 角地角地
  • 低層住居専用地域低層住居専用地域に立地
  • 建物面積100m²以上建物面積が100m²以上
  • 新築新築物件
  • 【現地見学】オープンハウス開催オープンハウス・予約制内覧会
  • 予告広告販売開始まで契約または予約の申し込みは出来ません