KDXレジデンス横濱紅葉坂
※KDDI一括受電方式※インターネット基本使用料無料(au光利用の場合)※保証会社利用必須(大手法人で利用しない場合は敷金2カ月)※ペット相談(小型犬又は猫1匹のみ、敷金1ヶ月積増)
- 賃料
- 330,000円
- 共益費等
- 15,000円
- 敷金
- 330,000円/1ヶ月
- 礼金
- 495,000円/1.5ヶ月
- 保証金
- なし
- 権利金
- なし


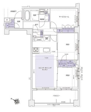
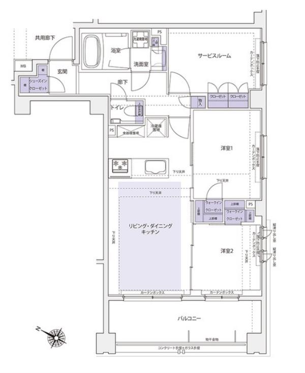
- 間取り
- 2SLDK※Sはサービスルーム(納戸)
- 専有面積
- 70.11m2
- 所在階
(向き) - 6階部分(南西)/地上6階地下1階建て・RC造
- 築年月
- 2021年03月
- 所在地
- 神奈川県横浜市西区紅葉ケ丘
- 交通
- 京浜東北・根岸線「桜木町」駅徒歩7分
横浜市ブルーライン「桜木町」駅徒歩7分

- 建物外観
- エントランス
- 共用部
- 建物外観
間取り図
-
建物外観
-
エントランス
-
共用部
-
建物外観
物件の特徴
セールスポイント
- ◆2021年築・最上階角部屋
物件の特色
- 設備・仕様
- エアコン/追焚機能/バス・トイレ別/温水洗浄便座/収納スペース/ウォークインクローゼット/システムキッチン/カウンターキッチン/洗面所/シャンプードレッサー/室内洗濯機置場/浴室乾燥機/フローリング/エレベータ/オートロック/モニター付きオートロック/宅配ボックス/インターネット対応/角部屋
物件詳細
| 所在地 | 神奈川県横浜市西区紅葉ケ丘 | ||
|---|---|---|---|
| 交通 | 京浜東北・根岸線「桜木町」駅徒歩7分 横浜市ブルーライン「桜木町」駅徒歩7分 |
||
| 賃料 | 330,000円 | 共益費等 | 15,000円 |
| 礼金 | 495,000円/1.5ヶ月 | 敷金 | 330,000円/1ヶ月 |
| 保証金 | なし | 権利金 | なし |
| 解約引 | なし | その他一時費用 | なし |
| 専有面積 | 70.11m2 | 間取り | 2SLDK ※Sはサービスルーム(納戸) |
| 所在階・構造 | 6階部分/地上6階地下1階建て・RC造 | 採光方向 | 南西 |
| 築年月 | 2021年03月 | 駐車場 | 無 |
| 契約形態 | 普通建物賃貸借 | ||
| 契約期間 | 2年 | 更新料 | 新賃料の一ヶ月 |
| 現況 | 居住中 | 入居時期 | 2026年02月下旬 |
| 損害保険 | 保険加入・借家人賠償責任保険/10,000円/1年 | ||
| 取引態様 | 仲介 | ||
| 設備・条件 | エアコン/追焚機能/バス・トイレ別/温水洗浄便座/収納スペース/ウォークインクローゼット/システムキッチン/カウンターキッチン/洗面所/シャンプードレッサー/室内洗濯機置場/浴室乾燥機/フローリング/エレベータ/オートロック/モニター付きオートロック/宅配ボックス/インターネット対応 | ||
| 備考 | ※保証会社利用必須(オリコフォレントインシュア)初回保証委託料:月額賃料等の50%、2年目以降:10000円/年※口座振替事務手数料110円(税込)※退去時室内清掃費用有(借主様負担):107969円(税込)※成約時に仲介手数料(税込)を申し受けます※入居時鍵交換代22000円(税込)※納戸=S=サービスルーム | ||
この情報は2025年12月05日当社物件システムのデータにもとづくものであり、次回更新予定日は2025年12月19日です。
物件の情報についてお問い合わせ
物件に関するご質問から、資金のご相談までお気軽にお問い合わせください。
0120-994-382
担当:佐伯

- 10:00〜18:00

- 毎週火・水曜
※土日・祝(火水除)も営業しています

- 神奈川県横浜市 西区北幸2−11−10 シティハウス横浜 2・3階 ※受付は1階にございます。

- 横浜市ブルーライン 横浜駅
東海道本線 横浜駅

住友不動産ステップ株式会社 国土交通大臣免許(13)第2077号



















