パークアクシス東陽町レジデンス
◇礼金無し◇ペット相談可(小型犬又は猫計1匹迄、敷金1カ月積増、規約による制限有)◇楽器相談可(アップライトピアノ可、規約による制限有)
- 賃料
- 181,000円
- 共益費等
- 18,000円
- 敷金
- 181,000円/1ヶ月
- 礼金
- なし
- 保証金
- なし
- 権利金
- なし


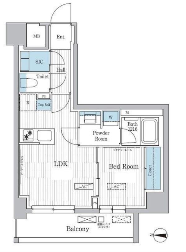
- 間取り
- 1LDK
- 専有面積
- 37.59m2
- 所在階
(向き) - 3階部分(西)/地上12階建て・RC造
- 築年月
- 2022年08月
- 所在地
- 東京都江東区東陽5丁目
- 交通
- 東京メトロ東西線「東陽町」駅徒歩6分

- 建物外観
- エントランス
- 共有部分
- 建物外観
間取り図
-
建物外観
-
エントランス
-
共有部分
-
建物外観
物件の特徴
セールスポイント
- ◆専有設備:エアコン/室内洗濯機置場/バス・トイレ別/浴室乾燥機/システムキッチン◆共用設備:オートロック/エレベーター/宅配ボックス/CATV
物件の特色
- 設備・仕様
- エアコン/バス・トイレ別/CATV/システムキッチン/洗濯機置場/室内洗濯機置場/フローリング/エレベータ/オートロック/宅配ボックス/即入居可
物件詳細
| 所在地 | 東京都江東区東陽5丁目 | ||
|---|---|---|---|
| 交通 | 東京メトロ東西線「東陽町」駅徒歩6分 | ||
| 賃料 | 181,000円 | 共益費等 | 18,000円 |
| 礼金 | なし | 敷金 | 181,000円/1ヶ月 |
| 保証金 | なし | 権利金 | なし |
| 解約引 | なし | その他一時費用 | なし |
| 専有面積 | 37.59m2 | 間取り | 1LDK |
| 所在階・構造 | 3階部分/地上12階建て・RC造 | 採光方向 | 西 |
| 築年月 | 2022年08月 | 駐車場 | 無 |
| 契約形態 | 普通建物賃貸借 | ||
| 契約期間 | 2年 | 更新料 | 新賃料の一ヶ月 |
| 現況 | 空家 | 入居時期 | 即時 |
| 損害保険 | 保険加入・借家人賠償保険/10,000円/1年 | ||
| 取引態様 | 仲介 | ||
| 設備・条件 | エアコン/バス・トイレ別/CATV/システムキッチン/洗濯機置場/室内洗濯機置場/フローリング/エレベータ/オートロック/宅配ボックス | ||
| 備考 | ※保証会社利用必須(レジデントアシスタンス株式会社) 初回保証委託料:月額賃料等の50%、2年目以降:9600円/年※入居時鍵交換費用:33000円(税込)※退去時室内清掃費用:59400円(税込)※口座振替事務手数料:月額110円(税込)※1年未満解約の場合違約金賃料等の1カ月分※成約時に仲介手数料(税込)を申し受けます。※事務所不可※入居:即時【※諸手続き完了次第】 | ||
この情報は2025年10月24日当社物件システムのデータにもとづくものであり、次回更新予定日は2025年11月07日です。
物件の情報についてお問い合わせ
物件に関するご質問から、資金のご相談までお気軽にお問い合わせください。
0120-984-528
担当:註

- 10:00〜18:00

- 毎週火・水曜
※土日・祝(火水除)も営業しています

- 東京都江東区豊洲4−1−23 ティ・ビィ豊洲ビル 5階

- 東京メトロ有楽町線 豊洲駅
ゆりかもめ 豊洲駅

住友不動産ステップ株式会社 国土交通大臣免許(13)第2077号




















