田園調布三丁目邸宅
◇ペット飼育応相談(敷金1ヶ月積増退去時償却)◇楽器応相談◇南東向き◇5LDK◇室内設備:床暖房・トイレ2個所・カウンターシステムキッチン・食洗機・オーブンレンジ
- 賃料
- 1,500,000円
- 共益費等
- なし
- 敷金
- 3,000,000円/2ヶ月
- 礼金
- 1,500,000円/1ヶ月
- 保証金
- なし
- 権利金
- なし


- 間取り
- 5LDK
- 専有面積
- 333.72m2
- 所在階
(向き) - (南東)/地上2階地下1階建て・木造
- 築年月
- 2012年05月
- 所在地
- 東京都大田区田園調布3丁目
- 交通
- 東急東横線「田園調布」駅徒歩4分

- 外観
- 外観
- エントランス側
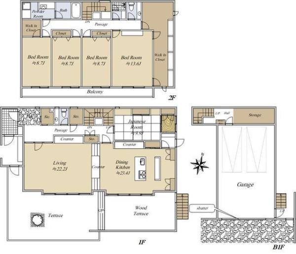
間取り図
-
外観
-
外観
-
エントランス側
物件の特徴
セールスポイント
- ※定期借家契約3年◆専有設備:エアコン/床暖房/室内洗濯機置場/バス・トイレ別/追焚機能/浴室乾燥機/システムキッチン/食洗機/オーブンレンジ/トイレ2個所/
物件の特色
- 設備・仕様
- 上水道/下水道/エアコン/床暖房/追焚機能/トイレ2箇所/バス・トイレ別/温水洗浄便座/ウォークインクローゼット/システムキッチン/カウンターキッチン/食器洗浄乾燥機/IHクッキングヒーター/洗面所/洗面台/洗濯機置場/室内洗濯機置場/浴室乾燥機/フローリング/TVモニタ付きインターホン/ペット相談/駅徒歩5分以内
物件詳細
| 所在地 | 東京都大田区田園調布3丁目 | ||
|---|---|---|---|
| 交通 | 東急東横線「田園調布」駅徒歩4分 | ||
| 賃料 | 1,500,000円 | 共益費等 | なし |
| 礼金 | 1,500,000円/1ヶ月 | 敷金 | 3,000,000円/2ヶ月 |
| 保証金 | なし | 権利金 | なし |
| 解約引 | なし | その他一時費用 | なし |
| 専有面積 | 333.72m2 | 間取り | 5LDK |
| 間取内訳 | LDK45.6畳 洋室13.6畳 洋室8.7畳 洋室8.7畳 洋室8.7畳 和室9.9畳 | ||
| 所在階・構造 | 地上2階地下1階建て・木造 | 採光方向 | 南東 |
| 築年月 | 2012年05月 | 駐車場 | 有 |
| 契約形態 | 定期建物賃貸借 | ||
| 契約期間 | 3年 | 更新料 | -- |
| 現況 | 空家 | 入居時期 | 2026年02月下旬 |
| 損害保険 | 保険加入・借家人賠償保険/15,600円/1年 | ||
| 取引態様 | 仲介 | ||
| 設備・条件 | 上水道/下水道/エアコン/床暖房/追焚機能/トイレ2箇所/バス・トイレ別/温水洗浄便座/ウォークインクローゼット/システムキッチン/カウンターキッチン/食器洗浄乾燥機/IHクッキングヒーター/洗面所/洗面台/洗濯機置場/室内洗濯機置場/浴室乾燥機/フローリング/TVモニタ付きインターホン/ペット相談 | ||
| 備考 | ※保証会社利用必須(エルズサポート株式会社)【初回保証委託料:月額賃料等の40%、月額保証委託料:1000円/月〔口座振替事務手数料250円(税込)含む〕】※退去時に借主様負担にて貸主指定業者による室内クリーニングを行って頂きます。【目安:355740円(税込)/車庫部分除く】※成約時に仲介手数料(税込)を申し受けます。事務所利用・喫煙不可※専有面積に車庫面積(64.26u)含む | ||
この情報は2026年01月12日当社物件システムのデータにもとづくものであり、次回更新予定日は2026年01月26日です。
物件の情報についてお問い合わせ
物件に関するご質問から、資金のご相談までお気軽にお問い合わせください。
0120-984-528
担当:鈴木

- 10:00〜18:00

- 毎週火・水曜
※土日・祝(火水除)も営業しています

- 東京都江東区豊洲4−1−23 ティ・ビィ豊洲ビル 5階

- 東京メトロ有楽町線 豊洲駅
ゆりかもめ 豊洲駅

住友不動産ステップ株式会社 国土交通大臣免許(13)第2077号














