テラス杉並方南町
◆エアコン◆室内洗濯機置場◆バス・トイレ別◆追焚機能◆浴室乾燥機◆システムキッチン◆バルコニー◆フローリング
- 賃料
- 201,000円
- 共益費等
- 18,000円
- 敷金
- 201,000円/1ヶ月
- 礼金
- なし
- 保証金
- なし
- 権利金
- なし


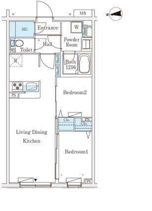
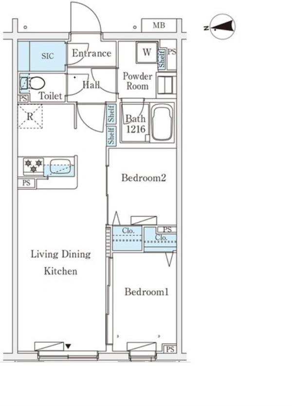
- 間取り
- 2LDK
- 専有面積
- 45.26m2
- 所在階
(向き) - 1階部分(西)/地上5階建て・RC造
- 築年月
- 2024年09月
- 所在地
- 東京都杉並区堀ノ内2丁目
- 交通
- 東京メトロ方南支線「方南町」駅徒歩6分

- 外観
間取り図
-
外観
物件の特徴
セールスポイント
- ■オートロック■エレベーター■宅配ボックス■BS・CS・CATV接続可■管理人(日勤)■ペット相談(小型犬・猫1匹まで、規約等制限有、敷金1ケ月積増)■バイク置場あり3300円(税込)/月
物件の特色
- 設備・仕様
- 冷房/暖房/エアコン/追焚機能/バス・トイレ別/CATV/BS端子/CS/収納スペース/システムキッチン/洗面所/洗面台/室内洗濯機置場/浴室乾燥機/フローリング/エレベータ/オートロック/宅配ボックス/バイク置き場/フリーレント/管理人/シューズインクローゼット/ペット相談/即入居可
物件詳細
| 所在地 | 東京都杉並区堀ノ内2丁目 | ||
|---|---|---|---|
| 交通 | 東京メトロ方南支線「方南町」駅徒歩6分 | ||
| 賃料 | 201,000円 | 共益費等 | 18,000円 |
| 礼金 | なし | 敷金 | 201,000円/1ヶ月 |
| 保証金 | なし | 権利金 | なし |
| 解約引 | なし | その他一時費用 | なし |
| 専有面積 | 45.26m2 | 間取り | 2LDK |
| 所在階・構造 | 1階部分/地上5階建て・RC造 | 採光方向 | 西 |
| 築年月 | 2024年09月 | 駐車場 | 無 |
| 契約形態 | 普通建物賃貸借 | ||
| 契約期間 | 2年 | 更新料 | 新賃料の一ヶ月 |
| 現況 | 空家 | 入居時期 | 即時 |
| 損害保険 | 保険加入・借家人賠償保険/11,060円/1年 | ||
| 取引態様 | 仲介 | ||
| 設備・条件 | 冷房/暖房/エアコン/追焚機能/バス・トイレ別/CATV/BS端子/CS/収納スペース/システムキッチン/洗面所/洗面台/室内洗濯機置場/浴室乾燥機/フローリング/エレベータ/オートロック/宅配ボックス/バイク置き場/フリーレント/管理人/シューズインクローゼット/ペット相談 | ||
| 備考 | ※成約時に仲介手数料(税込)を申し受けます※保証会社必須:クレディセゾン・レジデントアシスタンス【初回保証委託料:賃料等の50%(最低1.5万円)、2年目以降:1万円/年】※退去時清掃費用借主負担69700円(税込)※入居時鍵交換費用借主負担22000円(税込)※口座振替事務手数料月額110円(税込)※フリーレント1ケ月(管理費含む)※1年未満解約時違約金有(賃料+共益費) | ||
この情報は2025年12月05日当社物件システムのデータにもとづくものであり、次回更新予定日は2025年12月19日です。
物件の情報についてお問い合わせ
物件に関するご質問から、資金のご相談までお気軽にお問い合わせください。
0120-988-690
担当:加藤

- 10:00〜18:00

- 毎週火・水曜
※土日・祝(火水除)も営業しています

- 東京都武蔵野市中町1−16−10 日本生命武蔵野ビル4階

- 中央線 三鷹駅

住友不動産ステップ株式会社 国土交通大臣免許(13)第2077号















