ジェノヴィア新中野スカイガーデン
東京メトロ丸ノ内線「新中野駅」徒歩3分
- 賃料
- 133,000円
- 共益費等
- 20,000円
- 敷金
- 133,000円/1ヶ月
- 礼金
- なし
- 保証金
- なし
- 権利金
- なし


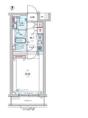
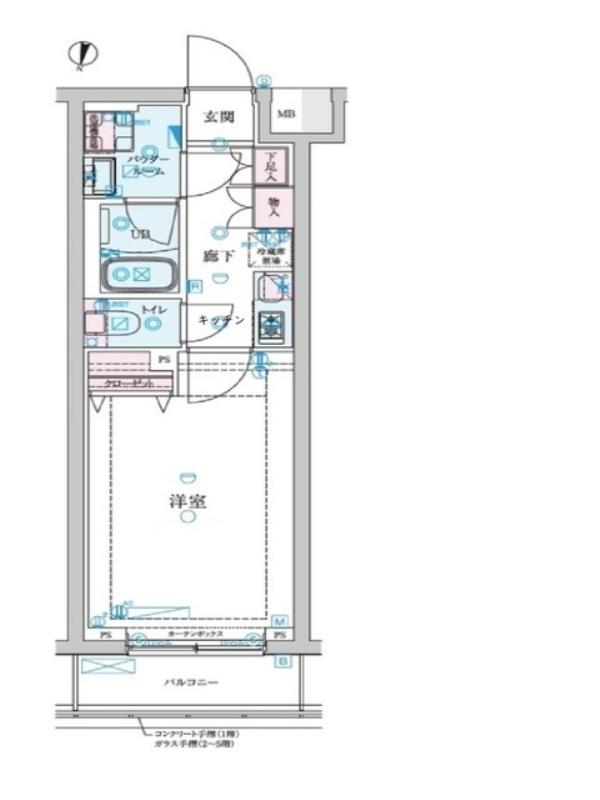
- 間取り
- 1K
- 専有面積
- 25.18m2
- 所在階
(向き) - 2階部分(北)/地上5階建て・RC造
- 築年月
- 2019年08月
- 所在地
- 東京都中野区本町6丁目
- 交通
- 東京メトロ丸ノ内線「新中野」駅徒歩3分
中央線「中野」駅徒歩15分

- RC造 地上5階建
- オートロック有
- 宅配ボックス有
間取り図
-
RC造 地上5階建
-
オートロック有
-
宅配ボックス有
物件の特徴
セールスポイント
- ※ペット相談可(規約による制限有・小型犬のみ(猫不可)、敷金1カ月積増)◆浴室乾燥機◆エアコン◆オートロック◆宅配ロッカー◆敷地内ゴミ置き場
物件の特色
- 設備・仕様
- バス・トイレ別/室内洗濯機置場/浴室乾燥機/オートロック/宅配ボックス/ペット相談/駅徒歩5分以内
物件詳細
| 所在地 | 東京都中野区本町6丁目 | ||
|---|---|---|---|
| 交通 | 東京メトロ丸ノ内線「新中野」駅徒歩3分 中央線「中野」駅徒歩15分 |
||
| 賃料 | 133,000円 | 共益費等 | 20,000円 |
| 礼金 | なし | 敷金 | 133,000円/1ヶ月 |
| 保証金 | なし | 権利金 | なし |
| 解約引 | なし | その他一時費用 | なし |
| 専有面積 | 25.18m2 | 間取り | 1K |
| 所在階・構造 | 2階部分/地上5階建て・RC造 | 採光方向 | 北 |
| 築年月 | 2019年08月 | 駐車場 | 無 |
| 契約形態 | 普通建物賃貸借 | ||
| 契約期間 | 2年 | 更新料 | 新賃料の一ヶ月 |
| 現況 | 空家 | 入居時期 | 2025年11月中旬 |
| 損害保険 | 保険加入・借家人賠償責任保険/10,000円/1年 | ||
| 取引態様 | 仲介 | ||
| 設備・条件 | バス・トイレ別/室内洗濯機置場/浴室乾燥機/オートロック/宅配ボックス/ペット相談 | ||
| 備考 | ※成約時に仲介手数料(税込)を申し受けます※保証会社利用必須/クレディセゾン 初回保証委託料:月額賃料等の50% 2年目以降:10000円/年※鍵交換費用:22000円(税込)※退去時清掃費用:44000円(税込)※1年未満解約時違約金有(賃料1カ月分)※楽器演奏不可 | ||
この情報は2025年12月14日当社物件システムのデータにもとづくものであり、次回更新予定日は2025年12月28日です。
物件の情報についてお問い合わせ
物件に関するご質問から、資金のご相談までお気軽にお問い合わせください。
0120-988-690
担当:林

- 10:00〜18:00

- 毎週火・水曜
※土日・祝(火水除)も営業しています

- 東京都武蔵野市中町1−16−10 日本生命武蔵野ビル4階

- 中央線 三鷹駅

住友不動産ステップ株式会社 国土交通大臣免許(13)第2077号



















