世田谷区奥沢2丁目戸建
●住友不動産新築そっくりさんにてリフォーム【外壁塗り替え、エアコン3台・システムキッチン・温水洗浄便座・独立洗面台交換(2024年11月完了)】●ペット相談(敷金1ヶ月積増)●楽器相談
- 賃料
- 300,000円
- 共益費等
- 20,000円
- 敷金
- 600,000円/2ヶ月
- 礼金
- 300,000円/1ヶ月
- 保証金
- なし
- 権利金
- なし


- 間取り
- 2LDK
- 専有面積
- 125.13m2
- 所在階
(向き) - (南東)/地上3階建て・その他
- 築年月
- 1976年10月
- 所在地
- 東京都世田谷区奥沢2丁目
- 交通
- 東急大井町線「緑が丘」駅徒歩3分
東急東横線「自由が丘」駅徒歩12分
東急大井町線「自由が丘」駅徒歩12分

- 建物外観
- 建物外観
- 建物入口
- ポスト
- LDK
- システムキッチン
- 浴室
- 洗面所
- トイレ
- 洋室収納
- 玄関
- 屋上
- 屋上眺望
- 洋室
- LDK
- 洗濯機置き場
- 洋室
- 階段
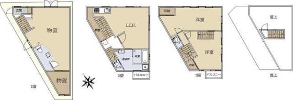
間取り図
-
建物外観
-
建物外観
-
建物入口
-
ポスト
-
LDK
-
システムキッチン
-
浴室
-
洗面所
-
トイレ
-
洋室収納
-
玄関
-
屋上
-
屋上眺望
-
洋室
-
LDK
-
洗濯機置き場
-
洋室
-
階段
物件の特徴
セールスポイント
- ※建物面積に最上階の踊り場・階段部分約2.24平米含む
物件の特色
- 設備・仕様
- 都市ガス/エアコン/給湯/追焚機能/バス・トイレ別/シャワー/温水洗浄便座/収納スペース/システムキッチン/洗面所/洗面台/洗濯機置場/室内洗濯機置場/フローリング/物置/ペット相談/楽器相談/駅徒歩5分以内/即入居可
物件詳細
| 所在地 | 東京都世田谷区奥沢2丁目 | ||
|---|---|---|---|
| 交通 | 東急大井町線「緑が丘」駅徒歩3分 東急東横線「自由が丘」駅徒歩12分 東急大井町線「自由が丘」駅徒歩12分 |
||
| 賃料 | 300,000円 | 共益費等 | 20,000円 |
| 礼金 | 300,000円/1ヶ月 | 敷金 | 600,000円/2ヶ月 |
| 保証金 | なし | 権利金 | なし |
| 解約引 | なし | その他一時費用 | なし |
| 専有面積 | 125.13m2 | 間取り | 2LDK |
| 所在階・構造 | 地上3階建て・その他 | 採光方向 | 南東 |
| 築年月 | 1976年10月 | 駐車場 | 無 |
| 契約形態 | 定期建物賃貸借 | ||
| 契約期間 | 5年 | 更新料 | -- |
| 現況 | 空家 | 入居時期 | 即時 |
| 損害保険 | 保険加入・借家人賠償保険/14,000円/1年 | ||
| 取引態様 | 仲介 | ||
| 設備・条件 | 都市ガス/エアコン/給湯/追焚機能/バス・トイレ別/シャワー/温水洗浄便座/収納スペース/システムキッチン/洗面所/洗面台/洗濯機置場/室内洗濯機置場/フローリング/物置/ペット相談/楽器相談 | ||
| 備考 | ※定期借家契約5年※成約時、仲介手数料(税込)を申し受けます。※退去時には借主費用負担にて室内クリーニングを行って頂きます【貸主指定業者・目安金額:165220円(税込)】※保証会社利用必須(エルズサポート株式会社)【初回保証委託料:月額賃料等の40%、:月額保証料1000円(口座振替手数料250円(税込)含む)】※喫煙・事務所利用不可※2階物置・3階洋室の収納側の床に傾きあり | ||
この情報は2026年04月05日当社物件システムのデータにもとづくものであり、次回更新予定日は2026年04月19日です。
物件の情報についてお問い合わせ
物件に関するご質問から、資金のご相談までお気軽にお問い合わせください。
0120-944-784
担当:羽生

- 10:00〜18:00

- 毎週火・水曜
※土日・祝(火水除)も営業しています

- 東京都新宿区西新宿2−6−1 新宿住友ビル6階

- 山手線 新宿駅
都営大江戸線 都庁前駅

住友不動産ステップ株式会社 国土交通大臣免許(13)第2077号


























