箕面市桜ケ丘3丁目戸建
阪急箕面線「桜井」駅まで徒歩7分
- 賃料
- 350,000円
- 共益費等
- なし
- 敷金
- 350,000円/1ヶ月
- 礼金
- 700,000円/2ヶ月
- 保証金
- なし
- 権利金
- なし


- 間取り
- 6LDK
- 専有面積
- 181.35m2
- 所在階
(向き) - (南)/地上2階建て・その他
- 築年月
- 2015年12月
- 所在地
- 大阪府箕面市桜ケ丘3丁目
- 交通
- 阪急箕面線「桜井」駅徒歩7分

- 建物外観
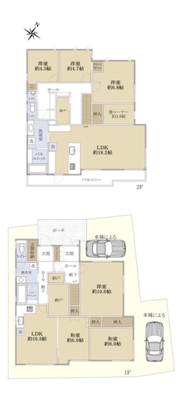
間取り図
-
建物外観
物件の特徴
セールスポイント
- ◇サンヨーホームズ施工の2世帯住宅◇システム上、間取り6LDK表示ですが、実際は3LDK+3LDKです。
物件の特色
- 設備・仕様
- 床暖房/追焚機能/バス・トイレ別/温水洗浄便座/収納スペース/ガスキッチン/システムキッチン/洗面所/洗面台/洗濯機置場/室内洗濯機置場/フローリング/24時間換気システム/ペット相談/楽器相談
物件詳細
| 所在地 | 大阪府箕面市桜ケ丘3丁目 | ||
|---|---|---|---|
| 交通 | 阪急箕面線「桜井」駅徒歩7分 | ||
| 賃料 | 350,000円 | 共益費等 | なし |
| 礼金 | 700,000円/2ヶ月 | 敷金 | 350,000円/1ヶ月 |
| 保証金 | なし | 権利金 | なし |
| 解約引 | なし | その他一時費用 | なし |
| 専有面積 | 181.35m2 | 間取り | 6LDK |
| 間取内訳 | LDK18.2畳 洋室6.8畳 洋室4.7畳 洋室4.5畳 LDK10.5畳 洋室10.0畳 和室6.0畳 | ||
| 所在階・構造 | 地上2階建て・その他 | 採光方向 | 南 |
| 築年月 | 2015年12月 | 駐車場 | 有 |
| 契約形態 | 普通建物賃貸借 | ||
| 契約期間 | 2年 | 更新料 | 無し |
| 現況 | 居住中 | 入居時期 | 2026年03月下旬 |
| 損害保険 | 保険加入・火災保険/15,600円/1年 | ||
| 取引態様 | 仲介 | ||
| 設備・条件 | 床暖房/追焚機能/バス・トイレ別/温水洗浄便座/収納スペース/ガスキッチン/システムキッチン/洗面所/洗面台/洗濯機置場/室内洗濯機置場/フローリング/24時間換気システム/ペット相談/楽器相談 | ||
| 備考 | ※成約時に仲介手数料(税込)を申し受けます☆保証会社利用必須(エルズサポート株式会社)初回保証委託料:月額賃料等の40%、月額保証委託料:1000円(口座振替手数料税込250円含む)☆ペット可(制限有)☆楽器不可☆法人契約希望有☆事務所不可☆喫煙不可☆駐車場2台有(車種による※内1台は軽自動車に限る)※賃料に駐車料金含む◇車庫証明発行手数料として3300円(税込)/台がかかります。 | ||
この情報は2026年03月06日当社物件システムのデータにもとづくものであり、次回更新予定日は2026年03月20日です。
物件の情報についてお問い合わせ
物件に関するご質問から、資金のご相談までお気軽にお問い合わせください。
0120-974-560
担当:青木

- 10:00〜18:00

- 毎週火・水曜
※土日・祝(火水除)も営業しています

- 大阪府大阪市 北区梅田1−1−3−3100 大阪駅前第3ビル31階

- JR東海道本線 大阪駅

住友不動産ステップ株式会社 国土交通大臣免許(13)第2077号














