上沢通6丁目 戸建
☆神戸市営地下鉄西神・山手線「上沢」駅徒歩4分!※退去時借主費用負担による原状回復義務有り(実費)※保険料は業種により異なる※用途地域:近隣商業地域
- 賃料
- 150,000円
- 共益費等
- なし
- 敷金
- 150,000円/1ヶ月
- 礼金
- 300,000円/2ヶ月
- 保証金
- なし
- 権利金
- なし


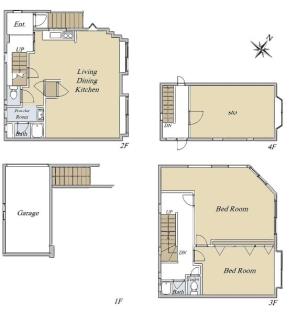
- 間取り
- 2SLDK※Sはサービスルーム(納戸)
- 専有面積
- 100.39m2
- 所在階
(向き) - (北東)/地上3階建て・鉄骨造
- 築年月
- 1986年09月
- 所在地
- 兵庫県神戸市兵庫区上沢通6丁目
- 交通
- 神戸市営地下鉄西神山手線「上沢」駅徒歩4分
神戸高速鉄道南北線「湊川」駅徒歩11分

- 建物外観
- リビング
- IHクッキングヒーター
- 洋室北側
- 洋室南側
- 洋室南側のクローゼット
- 屋根裏部屋
- 屋上スペース
- 屋上スペースA
- 電動シャッター付駐車場
- トイレ
- リビングA
間取り図
-
建物外観
-
リビング
-
IHクッキングヒーター
-
洋室北側
-
洋室南側
-
洋室南側のクローゼット
-
屋根裏部屋
-
屋上スペース
-
屋上スペースA
-
電動シャッター付駐車場
-
トイレ
-
リビングA
物件の特徴
セールスポイント
- 【事務所利用時】 賃料:165000円・礼金:330000円(全て税込)、敷金1ケ月※保証会社必須(エルズサポート株式会社)/初回保証委託料:月額賃料等の80%、年間保証委託料:年度毎に2万円
物件の特色
- 設備・仕様
- トイレ2箇所/バス・トイレ別/収納スペース/ペット相談/駅徒歩5分以内/即入居可
物件詳細
| 所在地 | 兵庫県神戸市兵庫区上沢通6丁目 | ||
|---|---|---|---|
| 交通 | 神戸市営地下鉄西神山手線「上沢」駅徒歩4分 神戸高速鉄道南北線「湊川」駅徒歩11分 |
||
| 賃料 | 150,000円 | 共益費等 | なし |
| 礼金 | 300,000円/2ヶ月 | 敷金 | 150,000円/1ヶ月 |
| 保証金 | なし | 権利金 | なし |
| 解約引 | なし | その他一時費用 | なし |
| 専有面積 | 100.39m2 | 間取り | 2SLDK ※Sはサービスルーム(納戸) |
| 所在階・構造 | 地上3階建て・鉄骨造 | 採光方向 | 北東 |
| 築年月 | 1986年09月 | 駐車場 | 有 |
| 契約形態 | 普通建物賃貸借 | ||
| 契約期間 | 2年 | 更新料 | 無し |
| 現況 | 空家 | 入居時期 | 即時 |
| 損害保険 | 保険加入・借家人賠償責任保険/15,600円/1年 | ||
| 取引態様 | 仲介 | ||
| 設備・条件 | トイレ2箇所/バス・トイレ別/収納スペース/ペット相談 | ||
| 備考 | ☆成約時に仲介手数料(税込)を申し受けます。保証会社利用必須(エルズサポート株式会社)/初回保証委託料:月額賃料等の40%、月額保証委託料:1000円[口座振替事務手数料250円(税込)含む]☆ペット飼育相談☆楽器演奏相談☆敷地内駐車場有(車種による)☆専有面積とは別に小屋根裏収納が使用可☆諸手続き完了後、入居可☆屋上スペース有り※間取り、その他は、納戸=サービスルーム | ||
この情報は2025年12月08日当社物件システムのデータにもとづくものであり、次回更新予定日は2025年12月22日です。
物件の情報についてお問い合わせ
物件に関するご質問から、資金のご相談までお気軽にお問い合わせください。
0120-285-776
担当:吉川

- 10:00〜18:00

- 毎週火・水曜
※土日・祝(火水除)も営業しています

- 兵庫県西宮市深津町2−32 フレンシア西宮北口 1階

- 阪急神戸線 西宮北口駅
阪急今津線 西宮北口駅

住友不動産ステップ株式会社 国土交通大臣免許(13)第2077号























