ブランズタワー南堀江
◇14階南東角部屋2LDK ◇敷地内駐車場空き有(車種による) ◇入居時期:即時(諸手続き完了次第)
- 賃料
- 238,000円
- 共益費等
- 30,000円
- 敷金
- 150,000円
- 礼金
- 536,000円
- 保証金
- なし
- 権利金
- なし


- 間取り
- 2LDK
- 専有面積
- 65.66m2
- 所在階
(向き) - 14階部分(南)/地上35階建て・RC造
- 築年月
- 2014年02月
- 所在地
- 大阪府大阪市西区南堀江1丁目
- 交通
- 大阪メトロ四つ橋線「四ツ橋」駅徒歩4分
大阪メトロ御堂筋線「なんば」駅徒歩4分
JR関西本線(大和路線)「JR難波」駅徒歩5分

- 建物外観
- エントランス
- 19階スカイラウンジ(一部有償)
- エントランスホール
- 35階スカイデッキ(無償)
- 4階フィットネスルーム(無償)
- エントランスホール
- サブエントランス
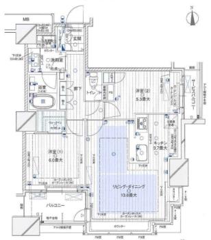
間取り図
-
建物外観
-
エントランス
-
19階スカイラウンジ(一部有償)
-
エントランスホール
-
35階スカイデッキ(無償)
-
4階フィットネスルーム(無償)
-
エントランスホール
-
サブエントランス
物件の特徴
セールスポイント
- ◇共用施設(一部有償):スカイデッキ・ビューラウンジ・ビューバスルーム・フィットネスルーム等
物件の特色
- 設備・仕様
- バス・トイレ別/収納スペース/ウォークインクローゼット/システムキッチン/カウンターキッチン/洗面所/洗面台/室内洗濯機置場/フローリング/エレベータ/オートロック/TVモニタ付きインターホン/宅配ボックス/分譲タイプ/駅徒歩5分以内/即入居可/角部屋
物件詳細
| 所在地 | 大阪府大阪市西区南堀江1丁目 | ||
|---|---|---|---|
| 交通 | 大阪メトロ四つ橋線「四ツ橋」駅徒歩4分 大阪メトロ御堂筋線「なんば」駅徒歩4分 JR関西本線(大和路線)「JR難波」駅徒歩5分 |
||
| 賃料 | 238,000円 | 共益費等 | 30,000円 |
| 礼金 | 536,000円 | 敷金 | 150,000円 |
| 保証金 | なし | 権利金 | なし |
| 解約引 | なし | その他一時費用 | なし |
| 専有面積 | 65.66m2 | 間取り | 2LDK |
| 間取内訳 | LDK17.3畳 洋室6.0畳 洋室5.3畳 | ||
| 所在階・構造 | 14階部分/地上35階建て・RC造 | 採光方向 | 南 |
| 築年月 | 2014年02月 | 駐車場 | 空有/25,000円 |
| 契約形態 | 普通建物賃貸借 | ||
| 契約期間 | 1年 | 更新料 | 無し |
| 現況 | 空家 | 入居時期 | 即時 |
| 損害保険 | 保険加入・火災保険/20,000円/2年 | ||
| 取引態様 | 仲介 | ||
| 設備・条件 | バス・トイレ別/収納スペース/ウォークインクローゼット/システムキッチン/カウンターキッチン/洗面所/洗面台/室内洗濯機置場/フローリング/エレベータ/オートロック/TVモニタ付きインターホン/宅配ボックス/分譲タイプ | ||
| 備考 | 成約時に仲介手数料(税込)を申し受けます。保証会社利用必須※初回保証委託料:賃料等の60%、次年度以降継続料:15000円/年、口座振替手数料:330円(税込)/月。鍵交換代:任意(実費)。退去時清掃費:55000円(税込)。ペット飼育、喫煙、事務所使用(SOHO含む)不可。 | ||
この情報は2025年12月06日当社物件システムのデータにもとづくものであり、次回更新予定日は2025年12月20日です。
物件の情報についてお問い合わせ
物件に関するご質問から、資金のご相談までお気軽にお問い合わせください。
0120-938-710
担当:升迫

- 10:00〜18:00

- 毎週火・水曜
※土日・祝(火水除)も営業しています

- 大阪府大阪市 中央区南本町1−8−14 JRE堺筋本町ビル1階

- 大阪メトロ中央線 堺筋本町駅

住友不動産ステップ株式会社 国土交通大臣免許(13)第2077号



















