1件中1〜1件を表示
物件詳細
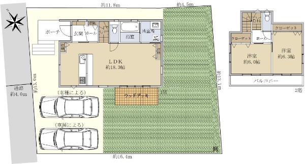
◆早稲田ハウス株式会社施工 2019年3月築 カースペース2台(車種による)
常磐線(各駅)「南柏」駅徒歩19分
検索条件を登録すれば、その条件に合う新着物件をパソコン・携帯メール宛にお知らせします。 まずは、右の「検索条件登録」ボタンから、現在の検索条件を登録してください。