建物面積
117.58 m2
(約35.56坪)
間取り
3SLDK
※Sはサービスルーム(納戸)
築年月
2026年04月

新築一戸建て

6,998万円

さいたま市南区白幡6丁目新築戸建3号棟

新築一戸建て

◇「武蔵浦和」駅徒歩15分 ◇2路線利用可能 ◇全3棟の新築戸建 

埼玉県さいたま市南区白幡6丁目

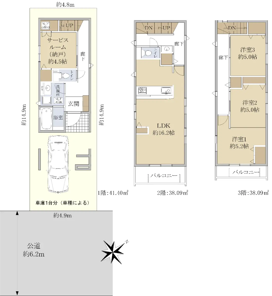
建物面積117.58m2(約35.56坪)・間取り3SLDK ※Sはサービスルーム(納戸)・2026年04月築

借入希望金額や金利を入力すると
返済計画を組み立てることができます。

ローンシミュレーション結果

毎月返済額
ボーナス月返済額
年間返済額
月々のお支払い

(ボーナス月お支払い額 ¥円)
ローン
  • 別途月額費用がかかる場合があります。詳しくは営業担当にお問い合わせください。

住宅ローンの詳細は三井住友銀行 のホームページをご覧ください。

  • このシミュレーションは、借入れを保証するものではありません。「免責事項」をご確認の上、ご利用ください。
  • ボーナス返済額の上限は、金融機関によって異なります。
  • ご購入にあたっては別途諸費用等が必要です。詳しくは営業担当にお問合せください。

金利:2026年3月時点のものです。

物件のポイント

物件の特徴

  • 都市ガス
    都市ガス
  • 床暖房
    床暖房
  • 床下収納
    床下収納
  • 食器洗浄乾燥機
    食器洗浄乾燥機
  • 浴室乾燥機
    浴室乾燥機
  • TVモニタ付きインターホン
    TVモニタ付きインターホン
  • 24時間換気システム
    24時間換気システム
  • 2沿線以上利用可
    2沿線以上利用可
  • 納戸
    納戸
  • 南道路(南東・南西含む)
    南道路(南東・南西含む)
  • 容積率100%以上
    容積率100%以上
  • 小学校まで徒歩10分以内
    小学校まで徒歩10分以内
  • 都市ガス
    都市ガス
  • 床暖房
    床暖房
  • 床下収納
    床下収納
  • 食器洗浄乾燥機
    食器洗浄乾燥機
  • 浴室乾燥機
    浴室乾燥機
  • TVモニタ付きインターホン
    TVモニタ付きインターホン
  • 24時間換気システム
    24時間換気システム
  • 2沿線以上利用可
    2沿線以上利用可
  • 納戸
    納戸
  • 南道路(南東・南西含む)
    南道路(南東・南西含む)
  • 容積率100%以上
    容積率100%以上
  • 小学校まで徒歩10分以内
    小学校まで徒歩10分以内
  • 都市ガス
  • 上水道
  • 下水道
  • 床暖房
  • 床下収納
  • 食器洗浄乾燥機
  • 浴室乾燥機
  • TVモニタ付きインターホン
  • 24時間換気システム
  • 納戸
  • 駐車場有
  • 新築
    リフォーム

    --

    立地・周辺環境

    2沿線以上利用可|南道路(南東・南西含む)|容積率100%以上|小学校まで徒歩10分以内|スーパーまで徒歩10分以内|コンビニまで徒歩5分以内|前面道路幅員6m以上|第一種住居地域|前面道路公道

    セールスポイント

    【新築物件】令和8年4月上旬完成予定

    ◇2路線利用可能
     JR埼京線・JR武蔵野線「武蔵浦和」駅徒歩15分
     JR埼京線「北戸田」駅徒歩19分

    ◇土地面積:73.58u(22.25坪)

    ◇建物面積:117.58u(35.56坪)※車庫部分6.62u含む

    ◇間取り3LDK+S(納戸)

    ◇木造3階建


    【設備・仕様】
    ◇床暖房
    ◇床下収納(洗面室部分)
    ◇24時間換気
    ◇食器洗浄乾燥機

    ◇浴室換気乾燥機
    ◇全居室クローゼット
    ◇テレビモニタ付インターホン
    ◇トイレ2か所あり(1階・2階部分)温水洗浄便座
    【ライフインフォメーション】
    ◇MEATMeet白幡食肉卸売センターまで約180m:徒歩3分
    ◇マミープラス武蔵浦和店まで約390m:徒歩5分
    ◇セブンイレブン浦和白幡6丁目店まで約240m:徒歩3分
    ◇スギ薬局白幡店まで約290m:徒歩4分
    ◇武蔵浦和ひなた保育園まで約120m:徒歩2分
    ◇さいたま市立辻小学校まで約780m:徒歩10分

    担当からのひとこと

    この度は、「南区白幡6丁目新築戸建 3号棟」のページをご覧いただき、誠に有難うございます。

    物件のご検討については、一度現地を見ていただく事をお勧めします。
    現地をご覧いただく事で周辺環境等を確認していただきたいと思っております。

    ご内覧希望日時についてや、物件に関するご質問事項、ご不明な点等が
    ございましたら、お気軽にお問い合わせください。


    【お問い合わせ先】

    フリーコール:0120−292−532

    ・МEATМeet白幡食肉卸売センター 徒歩3分(約180m)
    ・マミープラス武蔵浦和店 徒歩5分(約390m)
    ・セブンイレブン浦和白幡6丁目店 徒歩3分(約240m)
    ・スギ薬局白幡店 徒歩4分(約290m)
    ・さいたま市立辻小学校 徒歩10分(約780m)

    物件詳細

    物件名 さいたま市南区白幡6丁目新築戸建3号棟
    物件番号 15012060
    所在地 埼玉県さいたま市南区白幡6丁目
    価格
    6,998万円
    交通 埼京線武蔵浦和」駅徒歩15 分
    武蔵野線武蔵浦和」駅徒歩15 分
    埼京線北戸田」駅徒歩19 分
    間取り 3SLDK
    ※Sはサービスルーム(納戸)
    建物面積 117.58m2(約35.56坪)
    土地面積 73.58m2(約22.25坪)※公簿
    階数
    構造
    地上3階建て
    木造
    築年月 2026年04月
    地目
    地勢
    宅地
    平坦
    接道状況 一方道路・南東6.2m(公道)接面4.9m
    建ぺい率 60%
    容積率 200%
    都市計画 市街化区域
    用途地域 第1種住居地域
    地域・地区 高度地区/高度20m地区
    引渡時期 2026年05月上旬
    現況 未完成
    駐車場 有り
    土地権利 所有権
    取引態様 仲介
    国土法 届出不要
    建築確認番号 2SUDI1W建10402号

    この情報は2026年02月27日当社物件システムのデータにもとづくものであり、次回更新予定日は2026年03月13日です。