建物面積
124.61 m2
(約37.69坪)
間取り
3LDK
築年月
1998年06月

中古一戸建て

3億4,800万円

文京区小日向1丁目戸建

中古一戸建て

お気に入り 1

複数路線利用可能 閑静な住宅街に佇むミサワホーム施工「蔵」のある注文住宅

東京都文京区小日向1丁目

建物面積124.61m2(約37.69坪)・間取り3LDK・1998年06月築

借入希望金額や金利を入力すると
返済計画を組み立てることができます。

ローンシミュレーション結果

毎月返済額
ボーナス月返済額
年間返済額
月々のお支払い

(ボーナス月お支払い額 ¥円)
ローン
  • 別途月額費用がかかる場合があります。詳しくは営業担当にお問い合わせください。

住宅ローンの詳細は三井住友銀行 のホームページをご覧ください。

  • このシミュレーションは、借入れを保証するものではありません。「免責事項」をご確認の上、ご利用ください。
  • ボーナス返済額の上限は、金融機関によって異なります。
  • ご購入にあたっては別途諸費用等が必要です。詳しくは営業担当にお問合せください。

金利:2026年4月時点のものです。

物件のポイント

物件の特徴

  • 都市ガス
    都市ガス
  • 床暖房
    床暖房
  • 追焚機能
    追焚機能
  • トイレ2箇所
    トイレ2箇所
  • 床下収納
    床下収納
  • 食器洗浄乾燥機
    食器洗浄乾燥機
  • 複層ガラス
    複層ガラス
  • TVモニタ付きインターホン
    TVモニタ付きインターホン
  • 駐車場3台分
    駐車場3台分
  • バス1坪以上
    バス1坪以上
  • 2沿線以上利用可
    2沿線以上利用可
  • 主寝室8畳以上
    主寝室8畳以上
  • 都市ガス
    都市ガス
  • 床暖房
    床暖房
  • 追焚機能
    追焚機能
  • トイレ2箇所
    トイレ2箇所
  • 床下収納
    床下収納
  • 食器洗浄乾燥機
    食器洗浄乾燥機
  • 複層ガラス
    複層ガラス
  • TVモニタ付きインターホン
    TVモニタ付きインターホン
  • 駐車場3台分
    駐車場3台分
  • バス1坪以上
    バス1坪以上
  • 2沿線以上利用可
    2沿線以上利用可
  • 主寝室8畳以上
    主寝室8畳以上
  • 都市ガス
  • 上水道
  • 下水道
  • 床暖房
  • 追焚機能
  • トイレ2箇所
  • 温水洗浄便座
  • 床下収納
  • システムキッチン
  • 食器洗浄乾燥機
  • シャンプードレッサー
  • 複層ガラス
  • TVモニタ付きインターホン
  • 駐車場3台分
  • バス1坪以上
  • 主寝室8畳以上
  • 駐車場有
  • 土地面積30坪以上
    リフォーム

    --

    立地・周辺環境

    2沿線以上利用可|小学校まで徒歩10分以内|スーパーまで徒歩10分以内|コンビニまで徒歩5分以内|準工業地域|防火・準防火

    セールスポイント

    交通
    ■東京メトロ有楽町線「江戸川橋」駅徒歩9分
    ■東京メトロ丸ノ内線「茗荷谷」駅徒歩13分
    ■東京メトロ東西線「神楽坂」駅徒歩14分

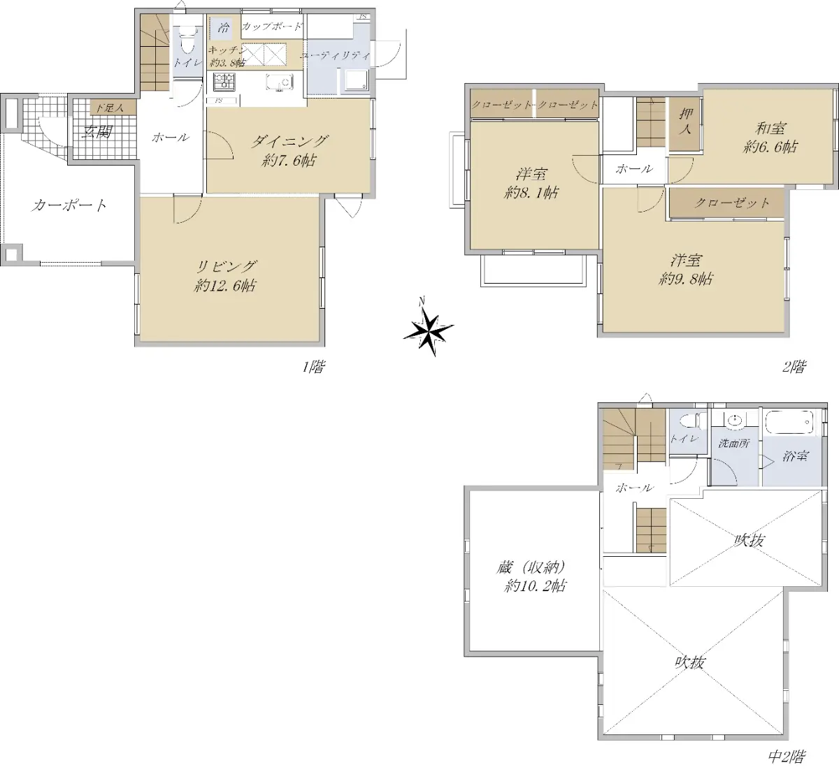
    物件概要
    ■土地面積:147.05u
    ■建物面積:124.61u
    ■間取り:3LDK
    ■接道:北西側4.0m私道
    ■接道長さ:約11.0m

    オススメポイント
    ■ミサワホーム株式会社施工の注文住宅
    ■中2階に約10.2帖の大収納空間「蔵」あり
    ■天井高約3.2mの開放感あふれるリビングダイニング
    ■車3台駐車可能(車種による)
    ■敷地東側は隣接建物がなく眺望・日照良好
    ■行き止まり私道に面するため交通量少なく
     落ち着いた住環境

    周辺環境
    ■セブンイレブン文京水道1丁目店 徒歩3分(約190m)
    ■マルエツプチ水道小桜店 徒歩3分 (約230m)
    ■ミニストップ茗荷谷店 徒歩7分(約540m)
    ■マルエツ江戸川橋店 徒歩7分(約560m)
    ■区立水道保育園 徒歩7分(約490m)
    ■小日向台町幼稚園 徒歩8分(約630m)
    ■区立小日向台町小学校 徒歩8分(約590m)
    ■区立茗台中学校 徒歩7分(約490m)
    ■東京学芸大学付属竹早小学校・中学校 徒歩8分(約630m)
    ■小石川医院 徒歩7分(約520m)
    ■水道端図書館 徒歩3分(約240m)

    担当からのひとこと

    この度は「文京区小日向1丁目戸建」のページをご覧いただき誠にありがとうございます。

    本物件は1998年6月築、オーナー様のこだわりが随所に散りばめられたミサワホーム施工の注文住宅です。
    リビングダイニングの天井高は約3.2mのため、開放感あふれる空間になっております。
    2階の西側洋室の床部分にはミサワホームの特徴である約10.2帖の「蔵」が設けられており、
    季節用品や趣味道具、お子様のおもちゃ等の収納に重宝します。
    駐車スペースは3台分ございます。
    お車の台数によっては余ったスペースで自転車・バイクが駐輪できるほか、
    来客の駐車スペース、外部への貸し出しなどにも使用可能です。
    前面道路が行き止まり私道のため車の交通量が少なく、お車の出し入れもし易くなっております。


    本物件東側に東京地下鉄株式会社の所有地が広がっておりますが、隣接建物がないため
    眺望・日照ともに良好で、住宅街にありながら開放的なロケーションです。
    3駅利用可能な交通利便性の高さに加えて、スーパーやコンビニなどの買い物施設が徒歩10分歩圏内にある
    買い物利便性の高さも魅力です。

    本物件の魅力は間取図・写真では伝わりにくいため、周辺環境の確認も含めてご内覧されることをお勧めします。
    内覧申し込み・質問等は担当「山本」までお気軽にご連絡ください。
    皆様からのご連絡を心よりお待ちしております。

    ・セブンイレブン文京水道1丁目店 徒歩3分(約190m)
    ・マルエツプチ水道小桜店 徒歩3分(約230m)
    ・ミニストップ茗荷谷店 徒歩7分(約540m)
    ・マルエツ江戸川橋店 徒歩7分(約560m)
    ・区立小日向台町小学校 徒歩8分(約590m)

    物件詳細

    物件名 文京区小日向1丁目戸建
    物件番号 15092020
    所在地 東京都文京区小日向1丁目
    価格
    3億4,800万円
    交通 東京メトロ有楽町線江戸川橋」駅徒歩9 分
    東京メトロ丸ノ内線茗荷谷」駅徒歩13 分
    東京メトロ東西線神楽坂」駅徒歩14 分
    間取り 3LDK
    建物面積 124.61m2(約37.69坪)
    土地面積 147.05m2(約44.48坪)※公簿
    階数
    構造
    地上2階建て
    木造
    築年月 1998年06月
    地目
    地勢
    宅地
    平坦
    接道状況 一方道路・北西4m(私道)接面11m
    建ぺい率 60%
    容積率 240% ※前面道路幅員による
    都市計画 市街化区域
    用途地域 準工業地域
    地域・地区 準防火地域/22m第三種高度地区、特別工業地区
    引渡時期 相談
    現況 居住中
    駐車場 有り
    土地権利 所有権
    取引態様 仲介
    国土法 届出不要
    備考
    • ・駐車場あり(車種による)
    • ・上記土地面積に加えて他に私道負担9.27uあり

    この情報は2026年04月10日当社物件システムのデータにもとづくものであり、次回更新予定日は2026年04月24日です。