• 新着
建物面積
93.14 m2
(約28.17坪)
間取り
2SLDK
※Sはサービスルーム(納戸)
築年月
2018年04月

中古一戸建て

  • 新着
5,280万円

西東京市保谷町1丁目 戸建

中古一戸建て

◆西武新宿線「西武柳沢駅」徒歩15分 ◆リビングの他に2部屋+納戸2か所あり

東京都西東京市保谷町1丁目

建物面積93.14m2(約28.17坪)・間取り2SLDK ※Sはサービスルーム(納戸)・2018年04月築

借入希望金額や金利を入力すると
返済計画を組み立てることができます。

ローンシミュレーション結果

毎月返済額
ボーナス月返済額
年間返済額
月々のお支払い

(ボーナス月お支払い額 ¥円)
ローン
  • 別途月額費用がかかる場合があります。詳しくは営業担当にお問い合わせください。

住宅ローンの詳細は三井住友銀行 のホームページをご覧ください。

  • このシミュレーションは、借入れを保証するものではありません。「免責事項」をご確認の上、ご利用ください。
  • ボーナス返済額の上限は、金融機関によって異なります。
  • ご購入にあたっては別途諸費用等が必要です。詳しくは営業担当にお問合せください。

金利:2025年10月時点のものです。

物件のポイント

物件の特徴

  • 都市ガス
    都市ガス
  • 納戸
    納戸
  • 低層住居専用地域
    低層住居専用地域
  • 駐車場有
    駐車場有
  • 土地面積30坪以上
    土地面積30坪以上
  • 前面道路幅員4.0m以上
    前面道路幅員4.0m以上
  • 都市ガス
    都市ガス
  • 納戸
    納戸
  • 低層住居専用地域
    低層住居専用地域
  • 駐車場有
    駐車場有
  • 土地面積30坪以上
    土地面積30坪以上
  • 前面道路幅員4.0m以上
    前面道路幅員4.0m以上
  • 都市ガス
  • 上水道
  • 下水道
  • 納戸
  • 駐車場有
  • 土地面積30坪以上
    リフォーム

    --

    立地・周辺環境

    低層住居専用地域

    セールスポイント

    《交通情報》

    ◆西武新宿線「西武柳沢駅」徒歩15分

    《セールスポイント》

    ◆平成30年4月築
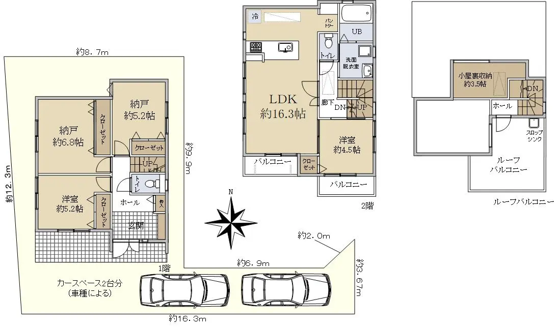
    ◆間取り:2SSLDK
    ◆リビング約16.3帖
    ◆便利なパントリー付き
    ◆全居室収納あり
    ◆屋根裏収納あり
    ◆カースペース2台分(車種による)
    ◆ルーフバルコニー付
    ◆横幅約2.2mの玄関のため広々しています。
    ◆太陽光パネル設置済み
     
     <ライフインフォメーション>

    ●セブンイレブン保谷本町店 約385m 徒歩5分

    ●オザム保谷店 約315m 徒歩4分
    ●サンドラッグ西東京泉町店 約440m 徒歩6分
    ●保谷小学校 約540m 徒歩7分
    ●保谷中学校 約540m 徒歩7分
    ●宝樹院幼稚園 約700m 徒歩9分

    担当からのひとこと

    ***不動産の購入を検討中のお客様へ****

    「西東京市保谷1丁目 戸建」のページをご覧いただき、誠にありがとうございます。
    本物件は、西武新宿線「西武柳沢」駅徒歩15分に立地します。
    こちらの物件は平成30年築となっており、リビングの他に2部屋+納戸2か所ございます。
    また、ルーフバルコニーがついているため、バーベキュー等が楽しめます。

    物件探しの基本は「物件を実際に見て頂くこと」にあります。
    写真や図面だけではなく、実際に現地を見て頂く事をお勧めいたします。


    現地を見て頂くことで、周辺環境や物件の状態が明確にご理解頂けるとともに、
    プロの目から見た物件の長所・短所、購入の際の注意点を詳しくご説明させて頂きます。
    こちらの物件にご興味をお持ちのお客様は是非ともお問い合わせください。
    心よりお待ちしております。

    --

    物件詳細

    物件名 西東京市保谷町1丁目 戸建
    物件番号 150B2034
    所在地 東京都西東京市保谷町1丁目
    価格
    5,280万円
    交通 西武新宿線西武柳沢」駅徒歩15 分
    西武池袋・豊島線ひばりヶ丘」駅バス9 分「保谷小学校」バス停徒歩4 分
    中央線三鷹」駅バス22 分「中町六丁目」バス停徒歩3 分
    間取り 2SLDK
    ※Sはサービスルーム(納戸)
    建物面積 93.14m2(約28.17坪)
    土地面積 121.32m2(約36.69坪)/路地状部分:20.70m2含む/他に私道負担:19.58m2あり
    階数
    構造
    地上2階建て
    木造
    築年月 2018年04月
    地目
    地勢
    宅地/宅地
    平坦
    接道状況 一方道路・東4.5m(私道)接面2.3m
    建ぺい率 40%
    容積率 80%
    都市計画 市街化区域
    用途地域 第1種低層住居専用地域
    引渡時期 相談
    現況 居住中
    駐車場 有り
    土地権利 所有権
    取引態様 仲介
    国土法 届出不要
    備考
    • ・カースペース2台分/車種による

    この情報は2025年11月01日当社物件システムのデータにもとづくものであり、次回更新予定日は2025年11月15日です。