建物面積
91.29 m2
(約27.61坪)
間取り
3SLDK
※Sはサービスルーム(納戸)
築年月
2026年06月

新築一戸建て

3,720万円

横浜市保土ケ谷区今井町新築戸建 A棟

新築一戸建て

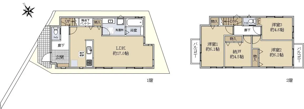
◇A号棟 3SLDK 2階建 ZEH水準住宅 地震保証10年 約17.0帖の広々としたLDK

神奈川県横浜市保土ケ谷区今井町

建物面積91.29m2(約27.61坪)・間取り3SLDK ※Sはサービスルーム(納戸)・2026年06月築

借入希望金額や金利を入力すると
返済計画を組み立てることができます。

ローンシミュレーション結果

毎月返済額
ボーナス月返済額
年間返済額
月々のお支払い

(ボーナス月お支払い額 ¥円)
ローン
  • 別途月額費用がかかる場合があります。詳しくは営業担当にお問い合わせください。

住宅ローンの詳細は三井住友銀行 のホームページをご覧ください。

  • このシミュレーションは、借入れを保証するものではありません。「免責事項」をご確認の上、ご利用ください。
  • ボーナス返済額の上限は、金融機関によって異なります。
  • ご購入にあたっては別途諸費用等が必要です。詳しくは営業担当にお問合せください。

金利:2026年3月時点のものです。

物件のポイント

物件の特徴

  • 都市ガス
    都市ガス
  • トイレ2箇所
    トイレ2箇所
  • 浴室乾燥機
    浴室乾燥機
  • TVモニタ付きインターホン
    TVモニタ付きインターホン
  • バス1坪以上
    バス1坪以上
  • 納戸
    納戸
  • 駐車場有
    駐車場有
  • 新築
    新築
  • 第一種住居地域
    第一種住居地域
  • 前面道路公道
    前面道路公道
  • 都市ガス
    都市ガス
  • トイレ2箇所
    トイレ2箇所
  • 浴室乾燥機
    浴室乾燥機
  • TVモニタ付きインターホン
    TVモニタ付きインターホン
  • バス1坪以上
    バス1坪以上
  • 納戸
    納戸
  • 駐車場有
    駐車場有
  • 新築
    新築
  • 第一種住居地域
    第一種住居地域
  • 前面道路公道
    前面道路公道
  • 都市ガス
  • 上水道
  • 下水道
  • トイレ2箇所
  • バス・トイレ別
  • 洗面所
  • 洗面台
  • 室内洗濯機置場
  • 浴室乾燥機
  • 2面バルコニー
  • TVモニタ付きインターホン
  • バス1坪以上
  • 納戸
  • 駐車場有
  • 新築
    リフォーム

    --

    立地・周辺環境

    第一種住居地域|防火・準防火|前面道路公道

    セールスポイント

    ■ZEH水準
    ・断熱等性能等級5
    ・一次エネルギー消費量等級6
    ・地震保証10年
    ■3SLDK※S=サービスルーム(納戸)
    ■LDK約17.0帖
    ■パントリーあり
    ■カースペースあり(車種による)
    ■仕様設備
    ・テレビモニター付インターホン
    ・食器洗浄乾燥機付システムキッチン
    ・全居室収納あり
    ・暖房乾燥機付ユニットバス
    ・温水洗浄便座付トイレ2箇所(1階、2階)

    担当からのひとこと

    ―不動産の購入を検討中のお客様へ−
    物件のご検討については、一度現地を見ていただく事をお勧めします。
    間取り図面や写真では判断できない部分もあります。
    現地をご覧頂くことで周辺環境や室内の状況等を確認いただくだけでなく、
    担当者より、物件の長所、短所や購入の流れ等を詳しくご説明させて頂きます。
    内覧をご希望のお客様はお気軽にお問い合わせください。
    皆様からのお問い合わせ心からお待ちしております。

    ・今井町公園 徒歩2分(約150m)
    ・サンドラッグ美立橋店 徒歩4分(約270m)
    ・業務スーパー左近山団地店 徒歩7分(約560m)
    ・ファミリーマート横浜今井町店 徒歩8分(約640m)
    ・クリエイトS・D保土ヶ谷今井町店 徒歩8分(約640m)

    物件詳細

    物件名 横浜市保土ケ谷区今井町新築戸建 A棟
    物件番号 15242078
    所在地 神奈川県横浜市保土ケ谷区今井町
    価格
    3,720万円
    交通 横須賀線東戸塚」駅バス8 分「藤塚小学校」バス停徒歩8 分
    間取り 3SLDK
    ※Sはサービスルーム(納戸)
    建物面積 91.29m2(約27.61坪)
    土地面積 94.92m2(約28.71坪)※公簿/セットバック:8.40m2含む
    階数
    構造
    地上2階建て
    木造
    築年月 2026年06月
    地目
    地勢
    宅地
    ひな段
    接道状況 一方道路・北西4m(公道)接面5.4m
    建ぺい率 60%
    容積率 160% ※容積率は前面道路幅員による制限数値
    都市計画 市街化区域
    用途地域 第1種住居地域
    地域・地区 準防火地域
    引渡時期 2026年07月下旬
    現況 未完成
    駐車場 有り
    土地権利 所有権
    取引態様 仲介
    国土法 届出不要
    建築確認番号 第KBI-YKH25-10-3440号
    備考
    • ・バス便調査日:2026年1月8日
    • ・カースペース1台分(車種による)

    この情報は2026年02月27日当社物件システムのデータにもとづくものであり、次回更新予定日は2026年03月13日です。